peerless-AV DS-LEDUNV Kitted Series Universal dvLED Mounting System

Product Information
- The Universal for Latching dvLED Series is a versatile product designed for mounting and assembling video walls. It includes various parts such as a latch assembly, horizontal extrusion, template, depth adjustment bracket, allen wrenches, wall plates, connector plate, Z-bracket, wood screws, washers, and more.
- This product is suitable for installing Peerless wall mounts on a wood stud wall covered with plywood. The wood studs should be a minimum of 2 x 4 nominal size, and the plywood should be a minimum Grade BC, 1/2 (13mm) thick. The plywood may be covered by gypsum board (drywall) up to 5/8 thick.
- When installing multiple displays, the mounting surface must be plumb (+/- .25) across the height of the video wall and straight (+/- .25) across the width of the video wall. The provided drawing should be referred to for dimensions.
Product Usage Instructions
- Before beginning the assembly, ensure that you have all the parts mentioned in the parts list included with your model.
- To properly tighten screws, follow these steps
- Tighten until the screw head makes contact.
- Tighten an additional 1/2 turn. Do not overtighten.
- Wear anti-static gloves and gather the necessary tools for assembly.
- When installing the product on a wood stud wall covered with plywood, verify that the wood studs are a minimum of 2 x 4 nominal size and the plywood is a minimum Grade BC, 1/2 (13mm) thick. Plywood may be covered by gypsum board (drywall) up to 5/8 thick.
- Ensure the mounting surface is plumb (+/- .25) across the height of the video wall and straight (+/- .25) across the width of the video wall.
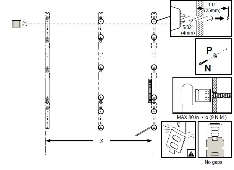
- Refer to the provided drawing to determine the placement of the template. Plumb and level the template, then drill mounting holes into the supporting surface.
- Install the product using the wood screws provided.
- When installing multiple displays, repeat the process for each display, ensuring proper alignment.
- To connect two horizontal extrusions, refer to the provided drawing for dimensions. Cut the extrusions to the required length.
- Slide wall plates onto the horizontal extrusions, one wall plate per display. Do not fully tighten the hardware.
- Align the wall plate mounting slots to the template mounting slots. Drill mounting holes into the supporting surface and install the wall plates using the provided wood screws (one screw per wall plate).
- If needed, follow the optional leveling instructions for bowed walls.
WARNING
- This product is designed to be installed on plywood walls. Hardware is included for plywood installation.
- This product is designed to be installed on flat, unobstructed, vertical walls.
- Do not install on curved or angled walls. Before installing make sure the supporting surface will support the combined load of the equipment and hardware.
- Screws must be tightly secured.
- Do not overtighten screws or damage can occur and product may fail.
- Never exceed the Maximum Load Capacity. Always use an assistant or mechanical lifting equipment to safely lift and position equipment.
- This product is intended for indoor use only.
- Use of this product outdoors could lead to product failure or personal injury.
- Be careful not to pinch fingers when operating the mount.
- For support please call customer care at 1-800-865-2112.
Symbols

Tools Needed for Assembly
To properly tighten screws: Tighten until screw head makes contact, then tighten another 1/2 turn. Do not overtighten screws.



Parts List
Parts
(Before beginning, make sure you have all parts shown below). Refer to parts list included with your model.
| Parts List Description |
| A latch assembly |
| B horizontal extrusion |
| C template |
| D depth adjustment bracket |
| E 3mm allen wrench |
| F wall plate |
| G connector plate |
| H wall plate shim |
| I M5 x 10mm socket screw |
| J #14 x 1.75″ wood screw |
| K 4mm Allen wrench |
| L washer |
| M Z-bracket |
| N #14 x 1″ wood screw |
| O socket cap screw |
| P 1/4″ SAE washer |



WARNING
When installing Peerless wall mounts on a wood stud wall covered with plywood, verify that the wood studs are a minimum of 2″ x 4″ nominal size and plywood is a minimum Grade BC, 1/2″ (13mm) thick. Plywood may be covered by gypsum board (drywall) up to 5/8″ thick.
- When installing more than one display, the mounting surface must be plumb (+/- .25″) across the height of the video wall and straight (+/- .25″) across the width of the video wall.
Refer to drawing included for dimensions. Plumb and level template, drill mounting holes into supporting surface and install using wood screws provided


- Refer to drawing included for dimensions. Plumb and level outer template, drill mounting holes into supporting surface and install using wood screws provided. Repeat to install remaining center templates.

- Refer to drawing included for dimensions. Plumb and level outer template using string line, drill mounting holes into supporting surface and install using wood screws provided. Repeat to install remaining center templates

- Refer to drawing included for dimensions. Plumb and level outer template, drill mounting holes into supporting surface and install using wood screws provided. Repeat to install remaining center templates.
- Optional: connecting two horizontal extrusions.


- Refer to drawing included for dimensions. Cut extrusions to length.

- Slide wall plates onto horizontal extrusions (one wall plate per display), do not fully tighten hardware.

- Refer to drawing included for dimensions. Align wall plate mounting slots to template mounting slots then drill mounting holes into supporting surface and install wall plates using wood screws provided (one screw per wall plate).

Optional leveling for bowed walls.

- Refer to drawing included for dimensions. Cut extrusions to length.
- Set a laser level so that it is parallel to the mounting surface (wall). Measure to the face of the extrusion so that all points of the extrusion are the same distance from the laser line, creating one flat plane across the face of the mount. Tighten screws.

- Double check using a straight edge to span three extrusions. Adjust low and high spots as needed.


- Double check using a straight edge to span three extrusions. Adjust low and high spots as needed.
- If mounting hardware is preinstalled, remove and replace with hardware provided
- Z-brackets on outer displays, bottom row only.


- Z-brackets on outer displays, bottom row only.
- Hook display cabinets onto horizontal extrusion, adjust height to level and join cabinets together using connecting system. Adjust plumb, close latch, then run cables one at a time starting from left to right. Plumb adjustment. Drill mounting holes into supporting surface and install using wood screws provided.


- Hook display cabinets onto horizontal extrusion, adjust height to level and join cabinets together using connecting system. Close latch, then run cables one at a time starting from left to right.

Optional: Height adjustment screw can be removed from top row displays. - To remove, start from the top right. Open latch assemblies, disconnect cables, separate cabinets and remove displays one at a time.

- Hook display cabinets onto horizontal extrusion, adjust height to level and join cabinets together using connecting system. Close latch, then run cables one at a time starting from left to right.
Peerless-AV
2300 White Oak Circle Aurora, IL 60502, USA [email protected] (800) 865-2112 (630)375-5100
Peerless-AV
EMEA Unit 2, Curo Park Frogmore, St. Albans, Hertfordshire, AL2 2DD United Kingdom +44 (0) 1923 200 100
Peerless-AV B.V.
Papendorpseweg 75 3528 BJ Utrecht The Netherlands +31 (0) 70 770 8037
Peerless-AV Latin America
Av. de las Industrias 413 Parque Industrial Escobedo General Escobedo N.L., México 66062 +52 (81) 8384-8300
© 2023 Peerless Industries, Inc. Peerless-AV® is a registered trademark of Peerless Industries, Inc. All rights reserved. Other parties’ marks are the property of their respective owners.

















