

Installation and User Manuals
Hybrid Charge System
| Document ID | 0XMACA00010000UGE5 | 5833 Orr Road Charlotte, NC 28213 P: 877-914-8999 F: 540-982-4287 www.GECIproducts.net |
| Revision number | 5 | |
| Revision date | Apr-22 | |
| ‘Original instructions’ | ||

http://www.chargers-batteries-consultants.eu/public/Manuals/_HPSLI/0XMACA00010000ULV0_EN.pdf
INTRODUCTION
This manual contains important safety instructions, cautions and warnings, to be followed by qualified personnel responsible for the installation, maintenance and operation of battery chargers.
We recommend this manual to be read and understood entirely, to ensure safe and reliable operation of this equipment. Inspect and understand all warning labels located on the charger. Order and replace labels if they cannot be easily read.
In case of doubts, please contact our service department.
Keep printed and electronic copies of this manual readily available for future needs. Please contact our service department if you need a new copy.
PRODUCTS
CLASS 5311 04 – POWER SUPPLIES – Battery Chargers
CLASS 5311 84 – POWER SUPPLIES – Battery Chargers – Certified to US Standards
APPLICABLE REQUIREMENTS
CSA Std C22.2 No. 107.2-01-R2011 – Battery Chargers
UL 1564 4th Ed. 2015 – Industrial Battery Chargers
CEC LBSC SPECIFICATIONS – Industrial Battery Chargers
| AC input | DC output | output Power | output at 80V | Battery Capacity | |
| Vac 60Hz | A | kW | A | AH | |
| HYB.12.US | 3×480 | 200 | 12. | 120 | 700 |
| HYB.12.NA | 3×480 | 200 | 12. | 120 | 700 |
| HYB.15.NA | 3×480 | 250 | 14. | 140 | 920 |
| HYB.20.NA | 3×480 | 320 | 18. | 200 | 1200 |
| HYB.24.NA | 3×480 | 400 | 23.0 | 240 | 1450 |
| HYB.30.NA | 3×480 | 500 | 29. | 300 | 1960 |
| HYB.36.NA | 3×480 | 600 | 35. | 360 | 2300 |

IMPORTANT SAFETY INSTRUCTION
2.1 IMPORTANT SAFETY INSTRUCTION
(a) THIS MANUAL CONTAINS IMPORTANT SAFETY AND OPERATING INSTRUCTIONS
(b) WORKING IN THE VICINITY OF A LEAD-ACID BATTERY IS DANGEROUS. BATTERIES GENERATE EXPLOSIVE GASES DURING NORMAL BATTERY OPERATION. FOR THIS REASON IT IS OF THE UTMOST IMPORTANCE THAT EACH TIME BEFORE USING YOUR CHARGER, YOU READ AND FOLLOW THE INSTRUCTIONS PROVIDED EXACTLY
(c) TO REDUCE RISK OF BATTERY EXPLOSION, FOLLOW THESE INSTRUCTIONS AND THOSE MARKED ON THE BATTERY
(d) NEVER SMOKE OR ALLOW AN OPEN SPARK OR FLAME IN THE VICINITY OF THE BATTERY OR ENGINE
(e) USE CHARGER FOR CHARGING A LEAD-ACID BATTERY ONLY. IT IS NOT INTENDED TO SUPPLY POWER TO AN EXTRA-LOW-VOLTAGE ELECTRICAL SYSTEM OR TO CHARGE DRY-CELL BATTERIES. CHARGING DRY-CELL BATTERIES MAY CAUSE THEM TO BURST AND CAUSE INJURY TO PERSONS AND DAMAGE TO PROPERTY
(f) NEVER CHARGE A FROZEN BATTERY
(g) IF IT IS NECESSARY TO REMOVE BATTERY FROM VEHICLE TO CHARGE IT, ALWAYS REMOVE GROUNDED TERMINAL FROM BATTERY FIRST. MAKE SURE ALL ACCESSORIES IN THE VEHICLE ARE OFF IN ORDER TO PREVENT AN ARC
(h) STUDY ALL BATTERY MANUFACTURER’S SPECIFIC PRECAUTIONS SUCH AS REMOVING OR NOT REMOVING CELL CAPS WHILE CHARGING AND RECOMMENDED RATES OF CHARGE.
(i) FOR A CHARGER HAVING AN OUTPUT VOLTAGE SELECTOR SWITCH, REFER TO THE CAR OWNER’S MANUAL IN ORDER TO DETERMINE THE VOLTAGE OF THE BATTERY AND TO MAKE SURE THE OUTPUT VOLTAGE IS SET AT THE CORRECT VOLTAGE. IF AN OUTPUT VOLTAGE SELECTOR SWITCH IS NOT PROVIDED, DO NOT USE THE BATTERY CHARGER UNLESS THE BATTERY VOLTAGE MATCHES THE OUTPUT VOLTAGE RATING OF THE CHARGER
(j) NEVER PLACE THE CHARGER DIRECTLY ABOVE OR BELOW THE BATTERY BEING CHARGED; GASES OR FLUIDS FROM THE BATTERY WILL CORRODE AND DAMAGE THE CHARGER. LOCATE THE CHARGER AS FAR AWAY FROM THE BATTERY AS DC CABLES PERMIT
(k) DO NOT OPERATE CHARGER IN A CLOSED-IN AREA OR RESTRICT VENTILATION IN ANY WAY
(l) CONNECT AND DISCONNECT DC OUTPUT CLIPS ONLY AFTER SETTING ANY CHARGER SWITCHES TO THE OFF POSITION AND REMOVING AC CORD FROM THE ELECTRIC OUTLET. NEVER ALLOW CLIPS TO TOUCH EACH OTHER
(m) FOLLOW THESE STEPS WHEN BATTERY IS INSTALLED IN VEHICLE. A SPARK NEAR BATTERY MAY CAUSE A BATTERY EXPLOSION. TO REDUCE RISK OF A SPARK NEAR BATTERY:
-(m.1) POSITION AC AND DC CORDS TO REDUCE RISK OF DAMAGE BY HOOD, DOOR, OR MOVING ENGINE PART;
-(m.2) STAY CLEAR OF FAN BLADES, BELTS, PULLEYS, AND OTHER PARTS THAT CAN CAUSE INJURY TO PERSONS;
-(m.3) CHECK POLARITY OF BATTERY POSTS. A POSITIVE (POS, P, +) BATTERY POST USUALLY HAS A LARGER DIAMETER THAN A NEGATIVE (NEG, N, –) POST;
-(m.4) DETERMINE WHICH POST OF BATTERY IS GROUNDED (CONNECTED) TO THE CHASSIS. IF NEGATIVE POST IS GROUNDED TO CHASSIS (AS IN MOST VEHICLES), SEE ITEM (v). IF POSITIVE POST IS GROUNDED TO THE CHASSIS, SEE ITEM (m.6);
-(m.5) FOR A NEGATIVE-GROUNDED VEHICLE, CONNECT THE POSITIVE (RED) CLIP FROM BATTERY CHARGER TO POSITIVE (POS, P, +) UNGROUNDED POST OF BATTERY. CONNECT THE NEGATIVE (BLACK) CLIP TO VEHICLE CHASSIS OR ENGINE BLOCK AWAY FROM BATTERY. DO NOT CONNECT CLIP TO CARBURETOR, FUEL LINES, OR SHEET-METAL BODY PARTS. CONNECT TO A HEAVY GAUGE METAL PART OF THE FRAME OR ENGINE BLOCK;
-(m.6) FOR A POSITIVE-GROUNDED VEHICLE, CONNECT THE NEGATIVE (BLACK) CLIP FROM BATTERY CHARGER TO NEGATIVE (NEG, N, –) UNGROUNDED POST OF BATTERY. CONNECT THE POSITIVE (RED) CLIP TO VEHICLE CHASSIS OR ENGINE BLOCK AWAY FROM BATTERY. DO NOT CONNECT CLIP TO CARBURETOR, FUEL LINES, OR SHEET-METAL BODY PARTS. CONNECT TO A HEAVY GAUGE METAL PART OF THE FRAME OR ENGINE BLOCK;
-(m.7) CONNECT CHARGER AC SUPPLY CORD TO ELECTRIC OUTLET;
-(m.8) WHEN DISCONNECTING CHARGER, TURN SWITCHES TO OFF, DISCONNECT AC CORD, REMOVE CLIP FROM VEHICLE CHASSIS, AND THEN REMOVE CLIP FROM BATTERY TERMINAL
(n) FOLLOW THESE STEPS WHEN BATTERY IS OUTSIDE VEHICLE. A SPARK NEAR THE BATTERY MAY CAUSE A BATTERY EXPLOSION. TO REDUCE RISK OF A SPARK NEAR BATTERY:
-(n.1) CHECK POLARITY OF BATTERY POSTS. A POSITIVE (POS, P, +) BATTERY POST USUALLY HAS A LARGER DIAMETER THAN A NEGATIVE (NEG, N, –) POST;
-(n.2) ATTACH AT LEAST A 60 CM 6-GAUGE (AWG) INSULATED BATTERY CABLE TO A NEGATIVE (NEG, N, –) BATTERY POST;
-(n.3) CONNECT THE POSITIVE (RED) CHARGER CLIP TO THE POSITIVE (POS, P, +) POST OF BATTERY;
-(n.4) POSITION YOURSELF AND THE FREE END OF CABLE AS FAR AWAY FROM BATTERY AS POSSIBLE, THEN CONNECT THE NEGATIVE (BLACK) CHARGER CLIP TO FREE END OF CABLE;
-(n.5) DO NOT FACE BATTERY WHEN MAKING FINAL CONNECTION;
-(n.6) CONNECT CHARGER AC SUPPLY CORD TO ELECTRICAL OUTLET;
-(n.7) WHEN DISCONNECTING CHARGER, ALWAYS DO SO IN REVERSE SEQUENCE OF CONNECTING PROCEDURE AND BREAK FIRST CONNECTION WHILE STANDING AS FAR AWAY FROM BATTERY AS PRACTICAL
(o) USE OF AN ADAPTER IS NOT ALLOWED IN CANADA. IF A GROUNDING TYPE RECEPTACLE IS NOT AVAILABLE, DO NOT USE THIS APPLIANCE UNTIL THE PROPER OUTLET IS INSTALLED BY A QUALIFIED ELECTRICIAN
(p) CERTIFIED DC OUTPUT CONNECTOR, SUFFICIENTLY RATED IN VOLTS AND AMPERES, SHALL CONNECTED TO FREE ENDS OF OUTPUT CABLE WITH ATTENTION TO MARKED POLARITY
2.2 IMPORTANT NOTES
- Only experienced and qualified personnel, knowledgeable on batteries and safety requirements involved, most perform installation and maintenance.
- Installation and wiring must comply with all the applicable local and the national electrical codes.
- Protection devices as fuses or circuit breakers, must be located on the AC mains where the charger is connected. Check the product nameplate for voltage and phase requirements. This charger can only charge motive power batteries of flooded lead-acid type. Strictly follow all setup and operating instructions to prevent damage to the battery and hazardous conditions.
DANGER! High Voltage - Dangerous AC and DC voltages and currents are present in these systems even when external indicators and LEDs are completely off. Before performing any maintenance, make sure that the AC power and battery are disconnected.
DANGER! Explosive Gases - Lead-Acid batteries generate an explosive mixture of oxygen and hydrogen during the normal charging process. Never smoke or allow sparks or flames in the vicinity of batteries. Ensure a sufficient ventilation to prevent explosive gases buildup.
DANGER! Corrosive Substances - Lead-Acid batteries contain a sulfuric acid (H2SO4) solution, which is capable of causing very severe skin burns and can induce permanent blindness if splashed onto eyes. Always wear correct eye and body protection when near batteries. In case of contact with eyes, flush immediately with clean water for at least 15 minutes, and seek professional medical attention immediately.
DANGER! High Temperature - The internal parts of the machine are not accessible during normal operation. To access these parts it is necessary to open the front and / or rear doors, closed by screws. Avoid prolonged contact with hot surfaces could cause discomfort or burns. Keep this in mind if you have a physical condition that affects your ability to feel heat on your skin.
- The weight of battery chargers can crush hands and feet if care is not taken when installing and handling them. Use adequate handling equipment and install chargers in a stable location.
- This charger has been designed for indoor use only. It must be installed in a well ventilated, cool, dry and clean place. Do not expose to rain, snow, moisture, dust and corrosive substances.
- To reduce the risk of fire, install chargers on a floor of non-combustible material.
- Never place the charger directly above or below the battery being charged; gases or fluids from the battery may damage the charger. Locate the charger as far away from the battery as DC cables permit.
- The shipping pallets and all packaging materials must be removed for proper and safe operation.
- Do not block the ventilation openings of the charger.
- Do not install or operate charger if it has been dropped during transport or damaged in any way.
- Never charge a frozen battery.
- Inspect AC and DC cables for damage to the insulation. Replace damaged cables immediately, with cables of the same type and length. Do not extend the DC charging cables, as it may cause improper operation of the charger, and damage the battery.
- The manufacturer is not responsible and the warranty is void if the product is damaged due to negligence, abuse, misuse, accident, modification, alteration, tampering and faulty installation.
DESCRIPTION AND THEORY OF OPERATION
Battery chargers receive energy from the main AC source (three-phase) and provide a controlled and isolated DC (direct current) output, suitable for charging batteries.
The DC output voltage and current follow pre-defined characteristics (usually called “charging curves” or “charging profiles”), depending on the battery type and state of charge.
The operation is controlled by microprocessor, and the typical charging cycle consists in 4 sections:
– INITIAL CHARGE
The battery is in a discharged state, as the SOC% (State-of-Charge %) ranges from 1% to 98%. The charger operates near its maximum power rating and keeps the battery voltage under control.
– BALANCE MODE
Once the initial charge is completed, the charger will deliver additional, controlled low current pulses. The purpose of this process, called “Balance”, is to bring all the battery cells exactly to the same State-of-Charge.
INSTALLATION
CAUTION!
The charger can be installed, configured and serviced by qualified personnel only
CAUTION!
Read and understand Chapter 2 “Important Safety Instructions” before installing, configuring, servicing or using the charger.
PRELIMINARY INSPECTION
- Unbox the charger and remove all packaging materials.
- Inspect the unit for potential damages, loose screws and missing parts.
- Ensure that the ventilation openings are not obstructed.
OPERATING CONDITIONS
| Storage Temperature: | -25°C to 55°C |
| Operating Temperature: | -25°C to 40°C |
| Humidity: | 0% to 70% |
The charger has been designed for indoor use only. It must be installed in a well ventilated, cool, dry and clean place. Do not expose to rain, snow, moisture, dust and corrosive substances.
To reduce the risk of fire, install chargers on a floor of non-combustible material.
PHYSICAL INSTALLATION
Choose your installation location to:
- Avoid temperature and humidity extremes.
- Minimize moisture and dust.
- Provide adequate air circulation to prevent the buildup of fumes.
- Install on a cement pad minimum 15 cm above surrounding curbing or walkways for water flood control,
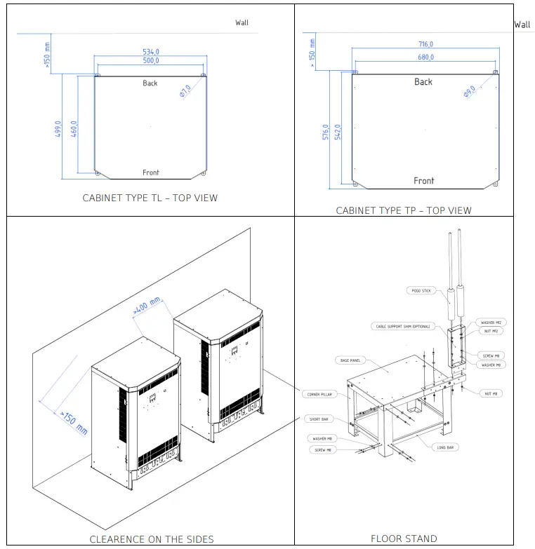
- Maintain a minimum of 40 cm of clearance on the sides of the unit for proper ventilation.
- Maintain 40 cm minimum clearance on Front and Back for servicing as required by local codes.
- Do not install unit where it will be exposed to direct sunlight.

INSTALLATION OF DC OUTPUT PLUG
Certified DC Output connector, sufficiently rated in volts and amperes, must be installed in the field by a qualified technician.
INSTALLATION OF AC INPUT CABLE and PLUG
Depending on the applicable local regulations and the electrical ratings of the chargers, certain units are supplied with AC input cable & plug included (plug-in models) and others are supplied without AC input cable and/or plug (cord connected models).
In cord-connected models, the AC input cable and plug should be installed by a qualified electrician, in accordance to the local and national electrical code, together with the proper fuses, breakers and disconnect switches.
3-PHASE MODEL LIST
| model | Pin max (kVA) | Pout max (kW) | Voltage nom.range | max current | cabinet |
| HPS.12 | 14 kVA | 11.5 kW | 12-180V | 200Amp | TL |
| HPS.15 | 17.5 kVA | 14.4 kW | 12-180V | 250Amp | TL |
| HPS.20 | 22.5 kVA | 18.1 kW | 12-180V | 320Amp | TP |
| HPS.24 | 28 kVA | 23.0 kW | 12-180V | 400Amp | TP |
| HPS.30 | 34 kVA | 28.8 kW | 12-180V | 500Amp | TP |
| HPS.36 | 42 kVA | 34.6 kW | 12-180V | 600Amp | TP |
TL cabinet mm (inches) L483 (19.0) x W530 (20.9) x H929 (36.6)
TP cabinet mm (inches) L560 (22.0) x W712 (28.0) x H1210(47.6)
INPUT VOLTAGE SETTINGS
The battery chargers are equipped with two adjustment blocks for AC input nominal voltage selection and charging curve optimization.
1. NOMINAL VOLTAGE SELECTION 3-phase
This setting is present on chargers designed to operate at different nominal AC input voltages, for specs. 3×400/415 VAC, 3×230/400 VAC, 3×208/240/480 VAC or 3×480/600 VAC (North American specs).
A screw type terminal block is used for this setting in certain chargers, while a bar-type (deltawye) standard terminal block is used in other chargers.
RECOMMENDED OPERATING SEQUENCE
➢ Disconnect the charger from the AC input and from the battery.
➢ Measure the AC input voltage, using an adequate voltmeter.
➢ Open the cabinet.
➢ Find the terminal blocks for NOMINAL VOLTAGE SELECTION.
➢ Make the necessary adjustments at the NOMINAL VOLTAGE SELECTION section.
➢ Double check that all connections are properly tightened.
➢ Close the cabinet.
➢ Connect the charger to the AC input.
➢ Connect the battery to the charger and verify the correct operation, by measuring the DC output current and DC output voltage.
AC INPUT PROTECTION AND INSTALLATION DEVICES – NorthAmerica
| Installation requires an upstream Listed UL / CSA Certified fuses of Type CC, J or RK5 | ||
| MODEL | AC INPUT | AC FUSES |
| HPS.12-US | AC Input 208V 3~60Hz AC 39 A | 50A, 200kA |
| AC Input 240V 3~60Hz AC 34 A | 50A, 200kA | |
| AC Input 480V 3~60Hz AC 17 A | 25A, 200kA | |
| HPS.12-NA | AC Input 480V 3~60Hz AC 17 A | 25A, 200kA |
| AC Input 600V 3~60Hz AC 13.5 A | 20A, 200kA | |
| HPS.15-NA | AC Input 480V 3~60Hz AC 21 A | 30A, 200kA |
| AC Input 600V 3~60HzAC 17 A | 25 A, 200kA | |
| HPS.20-NA | AC Input 480V 3~60Hz AC 27 A | 40A, 200kA |
| AC Input 600V 3~60HzAC 21.6 A | 30A, 200kA | |
| HPS.24-NA | AC Input 480V 3~60Hz AC 33.8 A | 45A, 200kA |
| AC Input 600V 3~60Hz AC 27 A | 40A, 200kA | |
| HPS.30-NA | AC Input 480V 3~60Hz AC 42 A | 60A, 200kA |
| AC Input 600V 3~60HzAC 34 A | 45 A, 200kA | |
| HPS.36-NA | AC Input 480V 3~60Hz AC 50 A | 60A, 200kA |
| AC Input 600V 3~60Hz AC 40.5 A | 50A, 200kA | |
AC INPUT PROTECTION AND INSTALLATION DEVICES – Europe/Asia/Australia

4.1 INSTALLATION 3-phase 3×230/400Vac 50Hz
4.1.1 NOMINAL VOLTAGE SELECTION
Remove screws from the top and left/right sides in order to open the top cover of the charger.
If the charger model is designed for AC Multi Input. Please set the internal terminal board according to the nominal AC Mains provided from the grid

4.2 INSTALLATION 3-phase 3×208/240/480Vac 60Hz
4.2.1 NOMINAL VOLTAGE SELECTION
Remove screws from the top and left/right sides in order to open the top cover of the charger.
If the charger model is designed for AC Multi Input. Please set the internal terminal board according to the nominal AC Mains provided from the grid

4.2.2 AUXILAIRY TRANSFORMER SETTING
Please set the auxiliary transformer primary input, according to the AC input mains incoming
3×208 → A need to be set 208
3×240 → A need to be set 240
3×480 → A need to be set 480

4.3 INSTALLATION 3-phase 3×480/600Vac 60Hz
4.3.1 NOMINAL VOLTAGE SELECTION
Remove screws from the top and left/right sides in order to open the top cover of the charger.
If the charger model is designed for AC Multi Input. Please set the internal terminal board according to the nominal AC Mains provided from the grid

4.3.2 AUXILAIRY TRANSFORMER SETTING
Please set the auxiliary transformer primary input, according to the AC input mains incoming
3×480 → A need to be set 480
3×600 → A need to be set 600

PROGRAMMING
HMI HUMAN MACHINE INTERFACE
The charger interface contains:
A) 4x LEDs
a. Red
b. Green
c. Blue
d. Alarm/Warning
B) 1x Push Button → button (EQ) EQUALIZE
C) 1x Push Button → button (<>) SPECIAL FUNCION
D) 1x Push Button → button (O) STOP/RE-START
E) ON/OFF Switch
F) Internal Buzzer
G) Optional. Serial communication line (RS232)
H) Optional. USB communication line
I) Optional. Can bus#1 communication line
J) Optional. Can bus#2 communication line

CONTROL BOARD
The charger is controlled by the new “GE00” Control Board.
This board is built in different configurations, depending on the presence of certain key components.

Board Configurations:
GE00/E/ * model ECO, it is not managing communication with external devices
GE00/B/ * model BASIC, it is managing communication with external devices like Rs232 and USB
GE00/P/ * model PRO, it is managing communication with external devices like Rs232,USB,
CANBUS#1, special analog signals
GE00/F/ * model FULL, it is managing communication with external devices like Rs232,USB,
CANBUS#1, special analog signals, CANBUS#2.
(*) Display definition
2L Remote display. Like i.e GE00/E/2L
4D Integrated display. Like i.e GE00/E/4D
PRELIMINARY INSPECTION
Before connecting a battery and proceeding with the programming sequence, make sure that the Charger has been installed by a qualified electrician, according with the instructions reported in this manual.
Before using the charger, it’s necessary to control that the ventilation openings are not obstructed, and that all the safety precautions reported in this manual are respected.
STARTUP SEQUENCE
When a battery is plugged to the charger, the display of the control board shows “BATTERY CONNECTED” and the internal buzzer beeps. The microprocessor performs a leds colour sequence that allows the user to identify that the charger is going to start to charge.
PROGRAMMING MODES
HOW TO ACTIVATE USER PROGRAMMING MODE
Press the button STOP/RE-START and keep it pressed for 5 seconds, the display shows “PASSWORD”, press EQ button’s 4 times
HOW TO ACTIVATE MFG/SERVICE PROGRAMMING MODE
Press the button STOP/RE-START and keep it pressed for 5 seconds, the display shows “PASSWORD”, press SPECIAL FUNCTION button’s 4 times
HOW TO MODIFY A VALUE
Scroll between parameters using the STOP/RE-START button and/or EQ button. Press button SPECIAL FUNCTION and keep it pressed for 3 seconds, the cursor will blink. Now it is possible to modify the value with buttons STOP/RE-START and/or EQ, and keep pressed 3 secs the button SPECIAL FUNCTION in order to save the new value.
HOW TO RETURN TO NORMAL MODE
Press the button STOP/RE-START and keep it pressed for 5 seconds.
PARAMETER 1: TIME/DATE
Programmable values: Year/Months/Day Hour/minute
PARAMETER 2: CHARGE STARTING TIME (START / STOP)
Programmable values: Hours during a day
Default value: ON.CH START>STOP 00:00 <> 23:59
PARAMETER 3: V.MAX-MAX LIMIT
Programmable values: 1.0, …, 3.54 V/Cell, with step 0.01V/cell or DISABLED
Default value: 2.80 V/Cell
NOTE:
This parameter sets a maximum limit for the cell voltage. If this limit has reached, the charge is finished and a specific error message is given.
PARAMETER 4: CAN BUS MSG SPEED
Programmable values: 125k, 250k, 500k, 1M
Default value: 250k
NOTE: This parameter sets can bus message speed (baud rate)
PARAMETER 5: NOMINAL VOLTAGE [only in ADMINISTRATOR MODE]
NOTE
Usually it’s not necessary to change these parameters.
Please contact the manufacturer for more details
Programmable values: 12, 24, 36, 48, 60, 72, 80, 96 Vdc
Default value: Nominal voltage of the charger
NOTE: This parameter may need to be adjusted after replacing the control board
PARAMETER 6: NOMINAL CURRENT [only in ADMINISTRATOR MODE]
NOTE
Usually it’s not necessary to change these parameters.
Please contact the manufacturer for more details
Programmable values: 200, …, 600 Amp
Default value: Nominal current of the charger
NOTE: This parameter may need to be adjusted after replacing the control board
OPERATION
CONTROL BOARD OPERATION
At the connection of the battery, if the battery and the AC input are properly connected, the charger cycle starts automatically.
According to the internal settings, the charge DC current follows the programmed curve.
When the charger output is active and a DC output current is present, LEDs blink.
Colour RED (blink)
During the initial charge when the battery state of charge is <50%

Colour RED fix and GREEN (blink)
During the charge when the battery state of charge is >50%

When the Final Charge is completed the control board stops the charge process. The LED GREEN is solid; the charge process is successfully completed.

DELAY ON START
It is possible to set a delay on start, in order to allow the battery to cool down before to begin the charging process, or to allow to the charger to operate during an off-peak energy time window.
In this case, the charger will wait 1 or more hours before starting the charge process, and the LED configuration will be RED solid during the countdown.
The delay can be bypassed by pressing the STOP/RE-START button.

WARNING SIGNALS The ALARM/WARNING RED LED will start blinking in these cases: Manual Stop

MANUAL STOP
DANGER!
Do not disconnect the battery while it’s being charged!
Always stop the charger by pushing the STOP button, before disconnecting the battery.
The ALAMR/WARNING LED needs to be in solid light, before to disconnect the battery.
Before to disconnect the battery, please check that leds RED, GREEN or BLUE are not blinking.
If the charger is providing current, it is recommended to press button “STOP/RE-START” in order to interrupt the charging.
When the ALARM/WARNING LED blinks and the GREEN LED is solid, it means that the user has properly interrupted the charging or the equalization cycle by pressing the button “STOP/RE-START”.
If the user will press again the button “STOP/RE-START”, the charger will restart the cycle from where it left off.

Stop Push-button pressed during the charge cycle or during an equalization cycle
MANUAL EQUALIZE
During the charging time, it will be possible to request a manual equalize by pressing the EQ button.
The charger is performing a standard cycle, and at the end it will immediately apply the EQ cycle, instead to wait the defined EQ BEGIN TIME setting.
HOT DISCONNECTION
DANGER!
Do not disconnect the battery while it’s being charged!
Always stop the charger by pushing the STOP button, before disconnecting the battery.
When the RED, GREEN or BLUE led blinks, the charger is active. Do not disconnect the battery!
When the RED, GREEN or BLUE led shows a SOLID colour, it is possible to disconnect the battery.
CONTROL BOARD ALARMS AND TROUBLESHOOTING
If the Alarm/Warning LED is solid means that the charge cycle or an Equalization cycle has been interrupted due to an alarm.

The display shows the cause of the alarm:
– Battery voltage too high
– Gassing Voltage not reached. Exceeded charging Time Out in First Phase
– Battery Temperature too high
– Battery type mismatch, Charging current too low or wrong AC Input setting, Charging current too high
7.1 BATTERY VOLTAGE TOO HIGH
The battery voltage reached during the charging cycle or during the balance cycle is too high, the charge cycle is terminated.
In order to fix this issue, it will be important check the battery status, evaluate voltage of every cell and check intercell connections.
It is recommended to check also the power connections in the DC Plug and DC Socket and in the charger inner parts, in order to identify if the torque of a power connection is insufficient.
The display shows: CHARGING STOP HIGH VOLTAGE
| ISSUE | CAUSES | FIX |
| Alarms appear. During the charging cycle | Battery sulphated | Repair battery. |
| Battery nominal voltage is not correct | Check compatibility between battery voltage and charger voltage | |
| One or more cells are shorted. | Repair battery. |
7.2 TIME OUT – END VOLTAGE NOT REACHED
The battery voltage hasn’t reached the end point within 12 hours of charge.
Please check the battery nominal voltage and the charger nominal matching.
Please check the AC input mains value and check the internal AC input setting of the charger. it will be important check the battery status, evaluate voltage of every cell and check intercell connections.
The display shows: CHARGING STOP MAX TIME EXCEEDED
| ISSUE | CAUSES | FIX |
| Alarms appear. During the charging cycle | Wrong AC input settings. | Adjust AC input settings to lower voltage. |
| Battery nominal voltage is not correct | Check compatibility between battery voltage and charger voltage | |
| Output fuse blown. | Replace output fuse and adjust AC input setting. | |
| One or more cells are shorted. | Repair battery. |
7.3 TEMPERATURE TOO HIGH
CASE A) Temperature sensor installed on the battery
If a temperature sensor has been installed on the battery.
During normal operation, if the control board detects an high temperature condition on the battery sensor, the charger will interrupt the charge and apply a cooling pause, at the end of the pause, the charger will restart from the point where it stopped.
CASE B) Temperature sensor installed on the charger
If a temperature sensor has been installed inside or outside the charger.
During normal operation, if the control board detects an high temperature condition on the NTC100 sensor, the charger will interrupt the charge and apply a cooling pause, at the end of the pause, the charger will restart from the point where it stopped.
The display shows: CHARGING STOP HIGH TEMPERATURE
| ISSUE | CAUSES | FIX |
| Alarms appear. During the charging cycle | AC input mains is too high or it is too low | Please check AC mains and the charger ACinput setting |
| Charger ventilation slots obstructed or bad location | Please check charger installation and location, in order to allow ventilation. Remove objects which may obstruct slots. | |
| Battery high temperature | Please check battery installation and battery location, in order to allow ventilation. Please evaluate to reduce the charger current |
7.4 BATTERY TYPE MISMATCH
CASE A) BATTERY NOMINAL VOLTAGE LOW The battery voltage is too low: the charge cycle doesn’t begin.
CASE B) BATTERY NOMINAL VOLTAGE HIGH The battery voltage is too high: the charge cycle doesn’t begin.
CASE C) BATTERY NOMINAL VOLTAGE ERROR The charge current is too high: the charger shuts down immediately.
The display shows: CHARGING STOP NOMINAL VOLTAGE, CURRENT TOO HIGH, HIGH VOLTAGE, LOW VOLTAGE, CHECK OUTPUT FUSE
| ISSUE | CAUSES | FIX |
| Alarms appear. The charger is not starting | Battery not connected properly. | Check battery connectors/harness. |
| Output cables reversed. | Check charger, connectors and battery polarities. Output fuse is probably blown. | |
| Battery nominal voltage is not correct _ | Check compatibility between battery voltage and charger voltage |
Battery Charger
Service Manual
0XMACA00010000UGE5 – Rev 5
DANGER! High Temperature
















