GWJ3012R Joinon Range Electric Vehicle Charging Wallbox
Instruction Manual
INFORMATION ABOUT THIS MANUAL
This manual describes the JOIN I-CON electrical vehicle recharging station and provides the necessary information for correct delivery, installation, start-up, maintenance and operation.
1.1 FIELD OF APPLICATION
This manual applies to the following charging stations:
– GWJ3001A – WB ICON AUTOSTART 4kW T2S IP55
– GWJ3002A – WB ICON AUTOSTART 7kW T2S IP55
– GWJ3003A – WB ICON AUTOSTART 11kW T2S IP55
– GWJ3004A – WB ICON AUTOSTART 22kW T2S IP55
– GWJ3011A – WB ICON AUTOSTART 4kW T2C IP55
– GWJ3012A – WB ICON AUTOSTART 7kW T2C IP55
– GWJ3013A – WB ICON AUTOSTART 11kW T2C IP55
– GWJ3014A – WB ICON AUTOSTART 22kW T2C IP55
– GWJ3002R – WB ICON RFID 7kW T2S IP55
– GWJ3004R – WB ICON RFID 22kW T2S IP55
– GWJ3012R – WB ICON RFID 7kW T2C IP55
– GWJ3014R – WB ICON RFID 22kW T2C IP55
– GWJ3002L – WB ICON RFID 7kW T2S IP55 – ETH
– GWJ3004L – WB ICON RFID 22kW T2S IP55 – ETH
– GWJ3012L – WB ICON RFID 7kW T2C IP55 – ETH
– GWJ3014L – WB ICON RFID 22kW T2C IP55 – ETH
– GWJ3002W – WB ICON RFID 7kW T2S IP55 – 4G
– GWJ3004W – WB ICON RFID 22kW T2S IP55 – 4G
– GWJ3012W – WB ICON RFID 7kW T2C IP55 – 4G
– GWJ3014W – WB ICON RFID 22kW T2C IP55 – 4G
1.2 INTENDED USERS
This document is intended for qualified personnel.
When this manual refers to qualified personnel, this means personnel complying with all the standards, directives, and laws concerning safety, as applicable to the installation and operation of this device.
It is recommended to have this device installed by a professional installer.
1.3 SYMBOLS
This manual uses various symbols to stress and highlight certain information.
Their general meaning is indicated below.
| General caution | |
| Electric risk | |
| Prohibition | |
| General information | |
| Refer to the indicated section |
REGULATORY ASPECTS
2.1 FULFILMENT OF REGULATIONS
CE marking
CE marking is essential for marketing the products in question within the European Union and the European Economic Area. The
charging stations have CE marking as they comply with the following directives:
- Low Voltage Directive 2014/35/EU
- Electromagnetic Compatibility directive 2014/30/EU
- RED directive 2014/53/EU (version with RFID and/or GSM)
Low Voltage directive
The recharging stations comply with this directive as they fulfill the applicable parts of the harmonized standard EN 61851-1 Electric vehicle conductive charging system – Part 1: General requirements
Electromagnetic Compatibility directive
The charging stations comply with this directive, as they fulfill the applicable parts of the harmonized standards:
- IEC 61851-21-2 Electric vehicle conductive charging system – Part 21-2: Electric vehicle requirements for conductive connection to an AC/DC supply – EMC requirements for offboard electric vehicle charging systems
- EN 61000-6-1 Electromagnetic compatibility. Part 6-1: Generic standards – Immunity for residential, commercial and light-industrial environments
- EN 61000-6-3 Electromagnetic compatibility. Part 6-3: Generic standards – Emissions for residential, commerce- cial and light-industrial environments
RED directive
The charging stations comply with this directive, as they fulfill the applicable parts of the harmonized standards:
- ETSI EN 300 330V 2.1.1
- ETSI EN 301 511 V 12.1.10 (GSM)
Fulfillment with this standard requires compliance with the requirements and procedures of the other standards in the same series.
2.2. DEGREE OF PROTECTION
These charging stations have an IP55 degree of protection against external agents.
This device is designed for indoor and outdoor use.
2.3. POLLUTION RATING
The pollution degree that these stations are designed for is level 3 with reference to Standard IEC 60664-1.
2.4. CURRENT SOCKET-OUTLETS
The charging stations can be supplied with various connector configurations, depending on the customer’s requirements.
The following connectors are available:

SAFETY FUNCTION
This section describes the safety warnings and the personal protective equipment.
3.1. SAFETY CONDITIONS
General warnings
The operations described in this manual may only be performed by duly qualified personnel.
When this manual refers to qualified personnel, this means personnel complying with all the standards, directives, and laws concerning safety, as applicable to the installation and operation of this device.
The selection of qualified personnel is always the responsibility of the company that carries out the work, which is the only party that can decide whether a worker is capable of doing a certain job, thereby ensuring their safety and respecting the applicable law with regard to safety in the workplace.
These companies must provide suitable training regarding the electrical devices for their personnel, and make sure they become familiar with the content of this manual.
It is mandatory to comply with the applicable safety laws relating to electrical work. There is the risk of possible electrical shock.
Risk of electric shock.
Compliance with the safety instructions provided in this manual or by the legislation indicated does not imply exemption from compliance with other specific standards regarding the installation, location, country, or other circumstances that concern the device.
The opening of the casing does not imply the absence of voltage inside.
Interventions must only be carried out once the voltage supply to the system has been cut off using a device that can guarantee insulation.
It may only be opened by qualified personnel, following the instructions given in this manual.
It is mandatory to read and understand all parts of this manual before starting to handle, install or use the unit.
Gewiss disclaims all liability for any damage caused by inappropriate use of the charging stations. Any operation carried out on these charging stations that involves a change to the original electrical settings must be authorized by Gewiss beforehand. All such proposals must be examined and approved by Gewiss.
Before carrying out any interventions, cut off the voltage supply to the system using a device that can guarantee insulation.
As the minimum safety measure for this operation, observe the following rules:
- Cut off the voltage supply.
- Prevent the reactivation of the power supply.
- Check there is no voltage.
- Protect yourself against energized elements nearby, and place safety signals to mark off the work area if necessary.
Until these steps have been applied, the product must be considered powered; no interventions are therefore authorized.
Potential hazards for people
In order to protect your own safety, observe the following warnings.
HAZARD: crushing and injury of limbs.
Always follow the instructions supplied in the manual for device handling and positioning.
The weight of the device can cause injuries if not handled correctly.
Potential hazards for the device
In order to protect the device, observe the following warnings.
Before reconnecting the voltage supply after any duly authorized operation, make sure the device is ready to start working.
Then, connect it following the instructions in the manual.
Do not touch the boards or the electronic components; the more sensitive components may get damaged or be destroyed by static electricity.
Do not disconnect or connect any terminal while the device is operating. Disconnect and check for the absence of voltage before performing any operation.
3.2. PERSONAL PROTECTIVE EQUIPMENT (PPE)
When working on the device, use at least the following items of safety equipment.
| Name | Explanation |
| Safety footwear | In accordance with UNE-EN-ISO 20345:2012 or the latest edition published |
| Helmet | In accordance with EN 397:1995 or the latest edition published |
| Helmet with a face mask | In accordance with UNE-EN 166:2002 or the latest edition published, if there are live elements that can be directly accessed. |
| Work garments | Close-fitting and non-flammable, in 100% cotton |
| Dielectric gloves | In accordance with EN 60903:2005 or the latest edition published |
The equipment or devices used for operations with the system energized must have at least category III-1000 Volt insulation.
If the regulations in the location of installation require other types of personal protective equipment, the equipment must be integrated in a suitable manner.
DEVICE DELIVERY AND STORAGE
4.1. DELIVERY
Keep the device packaged until installation.
4.2. DEVICE IDENTIFICATION
The serial number of the device identifies it in an unequivocal manner. In any communication with Gewiss, reference must be made to this number.
The device serial number is indicated with a data matrix on the technical data label (on the side of the front panel).
4.3. DAMAGE DURING TRANSPORT
If the device was damaged during transport:
- Do not install it.
- Notify the fact immediately (within 5 days of delivery).
If it is necessary to return the device to the manufacturer, the original packaging must be used.
4.4. STORAGE
Failure to observe the instructions provided in this section could cause damage to the device. The manufacturer declines all responsibility for damage deriving from the failure to observe these instructions.
If the device is not installed immediately upon delivery, to avoid its deterioration, proceed as indicated below:
- To correctly conserve the charging station, do not remove the original packaging until the moment it is installed.
- Deterioration of the packaging (cuts, holes, etc.) prevents the correct conservation of the charging station prior to installation. The manufacturer declines all responsibility relative to the consequences caused by packaging deterioration.
- Keep the device clean (remove dust, chips, grease, etc.) and avoid the presence of rodents.
- Protect it against water spray, welding sparks, etc.
- Cover the device with a protective breathable material to avoid condensation caused by environmental humidity.
- Charging stations kept in a warehouse must not be subjected to climatic conditions other than those indicated below:
Ambient storage conditions
| Minimum temperature | -40°C |
| Minimum temperature of the surrounding air | -40°C |
| Maximum temperature of the surrounding air | 70°C |
| Maximum relative humidity without condensation | 95% |
• It is very important to protect the system against corrosive chemical products and saline environments.
DEVICE HANDLING
During transport, the device must be protected against mechanical shocks, vibrations, water spray (rain), and any other product or situation able to damage it or alter its behavior. Failure to respect these instructions could cause the product warranty to be canceled without the manufacturer bearing any liability.
5.1. TRANSPORT
Handling the unpackaged device
At least the following provisions must be observed:
- Follow the fundamental ergonomic recommendations to avoid injuries when lifting weights.
- Do not release the device until it is perfectly fastened or positioned.
- Follow the instructions of another person who guides the movements to be made.
5.2. PACKAGING REMOVAL
The correct handling of the charging stations is very important to:
- Avoid damaging the packaging that maintains its optimum condition, from shipment to the moment they are installed.
- Avoid striking or dropping the mechanical stations as this could deteriorate the mechanical properties.
- Avoid, as far as possible, the vibrations that could cause subsequent abnormal operation.
If a fault is discovered, contact Gewiss immediately.
Packaging disposal
The packaging can be sent to an authorized non-hazardous waste agent.
In any case, each part of the packaging must be disposed of as follows: - Plastic (polystyrene, plastic bags, and bubble wrap): relative container.
- Cardboard: relative container.
PREPARATION FOR DEVICE INSTALLATION
To decide the location of the device and prepare for its installation, a series of instructions connected to the properties of the device must be followed.
6.1. ENVIRONMENT
- Position the charging station in a location that can be accessed for installation and maintenance, which permits its use and the reading of the LED indicators.
- Avoid corrosive environments that could have an influence on the correct operation of the device.
- It is prohibited to leave any object on the device.
6.2. ENVIRONMENTAL CONDITIONS
To select the most suitable location, take the environmental operating conditions of the device into consideration.
Environmental conditions
| Minimum temperature | -25°C |
| Minimum temperature of the surrounding air | -25°C |
| Maximum temperature of the surrounding air | +50°C |
| Maximum relative humidity without condensation | 95% |
NOTE= if the ambient temperature is higher than 40°C, a cover must be installed to protect the device from direct sunlight.
Remember that it could occasionally produce a small amount of condensation as a result of temperature changes.
Therefore, in addition to the protection it has, the charging stations must be monitored when they are used in areas where it is probable that not all the previously indicated conditions will be satisfied.
Never connect the device to the voltage supply when there is condensation.
6.3. SUPPORT AND FASTENING SURFACE
To ensure correct heat dispersal and good hold, the recharging stations must be installed on a perfectly vertical wall.

The wall on which the device is fastened must be solid. It must be possible to drill the wall and insert wall plugs and anchor bolts that are suitable for supporting the device’s weight.
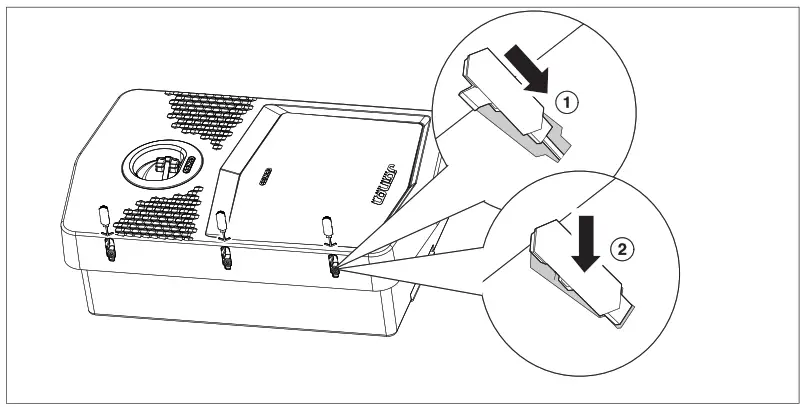
6.4. OPENING THE CASING
To open the casing from the main access, proceed as shown in the following figures.


6.5. CLOSING THE CASING



DEVICE INSTALLATION AND CONNECTION
Before proceeding with device installation, remove the packaging, paying particular attention to not damaging the casing.
Make sure there is no condensation inside the packaging. Otherwise, install the device only when it is completely dry.
All the installation operations must be carried out in compliance with the directive in force.
All operations that involve moving large weights must be done by two people.
The connection must be carried out when the system is de-energized and by qualified personnel.
Scrupulously check that the device is not energized when accessing it inside.
To measure the lack of voltage uses dielectric gloves and safety goggles that are type-approved for electrical risks.
After completing the installation of the wall box, remove the protective film from the front display.
7.1. GENERAL INSTALLATION REQUIREMENTS
- The device must be installed in a suitable environment that satisfies the information described in chapter “6.
Preparation for device installation”. Furthermore, the elements used in the rest of the installation must be compatible with the device and compliant with the applicable law. - The ventilation and workspace must be suitable for maintenance operations according to the directive in force.
- The external connection devices must be suitable and observe the distance established by the directive in force.
- The section of the connection cables must be suitable for the maximum current intensity.
7.2. BASIC JOINON WALLBOX I-CON
7.2.1. DEVICE INSTALLATION
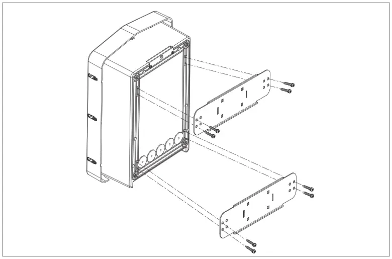
For device assembly, one of the two following solutions can be selected:
- Fixing on the wall



- Fixing with the aid of support brackets on pole GW46551

- Fixing to the support on the ground: after attaching the support to the ground, fix the column to the plate on the support (using the protruding screw, already installed), then use screws to fix the WB to the plate that includes the threaded rivets

Cable inlet on the back of the circled area. Make the necessary holes. - Fixing the WallBox to the wall (not valid for codes GWJ3001A, GWJ3002A, GWJ3003A, GWJ3004A, GWJ3011A, GWJ3012A, GWJ3013A, GWJ3014A)
Eliminate the relevant knockouts on the basis of the cable inlet chosen (A from below, B from the rear), then fix the box in the wall
Insert the WallBox in the box
Fix it to the columns of the flush-mounting box using self-threading screws Ø4
For the cable inlet from the bottom (A), use the cable glands supplied
For the cable inlet from the rear (B), prepare the back plate of the WallBox on the basis of your requirements

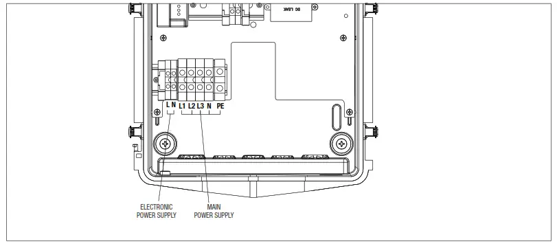
7.2.2. CONNECTION OF THE DEVICE POWER SUPPLY
Protection devices
Each charging station must be protected upstream by circuit breaker protection and residual current devices required by the low voltage electrical system standard. In particular, each individual station must be protected upstream by a Type A residual current circuit breaker 30 mA + miniature circuit breaker (the choice of the device must be suitable for the power level and the power supply of the recharging station; protection against DC leakage is provided by the DC Leakage 6 mA device built into the products).
Wiring requisites
The connection must satisfy some requirements:
Connection specifications
| Type of connection | Single-phase/ three-phase |
| Number of wires | 2P+E/3P+N+E |
| Rated current | Up to 32A |
| Maximum wire diameter | 10mm² |
Connection procedure
- Open the casing as shown in the figure.

- Power supply inlet

- Connect the power supply and signal cables according to the different models

- Once the electrical system is complete, the system is ready to be turned on.
If the station identifies a malfunction, the front status LED will turn red.
OPERATION AND CHARACTERISTICS
Depending on the model, there are different ways of accessing the recharging service. The various operating modes are explained below.
8.1. AUTOSTART
AUTOSTART mode indicates that the recharging station is always available, without the need to identify the client by means of RFID or APP cards.
The session begins as soon as the vehicle is connected to the recharging station.
To end the charging session, stop it first on the vehicle (the method will change depending on the vehicle model; we suggest you refer to the manual of your vehicle to find the
right method). The cable can now be removed from the vehicle, terminating the charging operation.
The station will now allow you to remove the plug. It’s also possible to select the recharging power by means of the selector on the side of the recharging station.
Some electric car models may have a minimum charge power limit.
To ensure that the minimum charge power selector on the I-CON AUTOSTART station is used correctly, please check this value in your car instruction manual.
For example, the minimum power limit for the Renault Zoe® is about 1.8kW (8A) for a single-phase recharge and 8.5kW (13A)
for three-phase, so in the case of a 4.6kW I-CON AUTOSTART charging station, the selector will have to be set at 100% or 60%.
A 30% selector setting is lower than the minimum power permitted by the car, so the recharging session will not be started.
8.2. RFID
RFID mode indicates that the session has to be activated and terminated using the RFID cards supplied by the provider and added to the local station White List beforehand.
8.3. CLOUD OCPP
CLOUD mode indicates that the charging station is connected to a control and management platform. Thanks to this platform, the station can be controlled and monitored while it’s operating, and the recharging sessions can be saved. The end user accesses the service via an app or using RFID cards associated with his/her own profile, with complete autonomy.
STATUS INDICATORS
The charging station uses RGB LEDs to inform the client about the status and indicate which actions need to be carried out. The meanings of the various colors are explained below.

| Colour and status | Description |
| Fixed green | The station is ready to start a charging session. No problem detected. This color is also used to indicate the correct acquisition or deletion of the RFID cards. The fixed green color will be visible for 2 seconds, preceded and followed by FLASHING WHITE (RFID card acquisition) or FLASHING RED (RFID card deletion) |
| Flashing green | The recharging station is waiting for the vehicle to be connected or disconnected. |
| Fixed blue | The charging session is in progress and the vehicle is absorbing energy. |
| Flashing blue | The charging session is in progress, but the vehicle is not absorbing energy (battery charged, or vehicle not ready for recharging). |
| Fixed red | An internal error has been detected by the station, and the charging process cannot be continued. or The RFID card used is not on the local white list. |
| Flashing red | The station has gone into RFID card deletion mode, to delete the cards from the local White List |
| Flashing white | The station has gone into RFID card acquisition mode, to save the cards in the local White List |
| None | The charging station does not have the necessary power supply |
CHARGING PROCESS
The steps needed to carry out a recharging session are indicated below (but they may vary according to the operating mode).
10.1. AUTOSTART
The recharging station is always accessible and ready to begin a charging session as soon as a vehicle is connected.
It’s fitted with a selector for choosing the recharging power.

NOTE= For AUTOSTART models with a nominal power of 4.6kW, charging at 30% is forced on a 6A current value to avoid any possible problems when the charging operation begins.
Some electric car models may have a minimum charge power limit.
To ensure that the minimum charge power selector on the I-CON AUTOSTART station is used correctly, please check this value in your car instruction manual.
For example, the minimum power limit for the Renault Zoe® is about 1.8kW (8A) for a single-phase recharge and 8.5kW (13A) for a three-phase, so in the case of a 4.6kW I-CON AUTOSTART charging station, the selector will have to be set at 100% or 60%.
A 30% selector setting is lower than the minimum power permitted by the car, so the recharging session will not be started.
To enable a recharging session:
| # | Action to be carried out | RGB LED status |
| 1 | Make sure there are no errors on the charging station | Fixed green |
| 2 | Use the selector on the side to decide the charging power you want to use. | Fixed green |
| 3 | Insert the charging plug in the socket outlet of the station, and in the vehicle or Connect the mobile connector to the vehicle. | Fixed green |
| 4 | Once the CP and PP signals have been checked, the recharging station will mechanically block the plug in the socket outlet. The recharging session begins | Flashing blue |
| 5 | The vehicle requests energy from the recharging station | Fixed blue |
| 6 | Recharging session in progress | Fixed blue or flashing blue |
| 7 | OPTIONAL During the charging process, the selector can be used to increase or reduce the charging power. The vehicle itself will then decide which power level to absorb | Fixed blue |
| 8 | To end the charging session, disconnect the recharging cable on the vehicle side | From fixed blue or flashing blue to flashing green |
| ” | Take the plug out of the socket-outlet on the charging station side | From flashing green to fixed green |
| 10 | If the station detects no errors, it will return to standby | Fixed green |
NOTE= To end the charging session, stop it first on the vehicle (the method will change depending on the vehicle model; we suggest you refer to the manual of your vehicle
to find the right method). The cable can now be removed from the vehicle, terminating the charging operation.
The station will now allow you to remove the plug.
The following table shows the charging power values used by the station on the basis of the position of the selector and the nominal power value of the station (to alter the NOMINAL POWER value, refer to chapter 13).
| TYPE | VERSION | POWER SUPPLY | FACTORY VALUE | NOMINAL value that can be set | Selector position 1 VALUE 60% | Selector position 2 VALUE 30% |
| FREE | CABLE OR SOCK- ET-OUT- LET | SINGLE-PHASE | 20 | 20 | 12 | 6 |
| 16 | 10 | 6 | ||||
| 14 | 8 | 6 | ||||
| 12 | 7 | 6 | ||||
| 10 | 7 | 6 | ||||
| 32 | 32 | 19 | 10 | |||
| 25 | 15 | 7 | ||||
| 20 | 12 | 6 | ||||
| 16 | 10 | 6 | ||||
| 14 | 8 | 6 | ||||
| THREE-PHASE | 16 | 16 | 10 | 6 | ||
| 14 | 8 | 6 | ||||
| 12 | 7 | 6 | ||||
| 10 | 6 | 6 | ||||
| 8 | 6 | 6 | ||||
| 32 | 32 | 19 | 10 | |||
| 25 | 15 | 7 | ||||
| 20 | 12 | 6 | ||||
| 16 | 10 | 6 | ||||
| 14 | 8 | 6 | ||||
| 12 | 7 | 6 | ||||
| 10 | 7 | 6 |
10.2. PARKING
The station activates the charging session once a valid RFID card has been swiped.
There are two ways of adding more RFID cards to the local list:
METHOD 1
| # | Action to be carried out | RGB LED status |
| 1 | Swipe the MASTER key across the RFID scanner to enable the storage phase | From fixed green to flashing white |
| 2 | Take each card that you want to add to the list and swipe them across the RFID scanner. The color of the RGB LED indicates the correct acquisition | Fixed green for 2 seconds |
| 3 | To quit the RFID card storage menu, swipe the MASTER key twice across the RFID scanner. | From flashing white to flashing red to fixed green |
METHOD 2
| # | Action to be carried out |
| 1 | Disconnect the power supply to the product by turning off the main switch |
| 2 | Open the charging station to access the electronic board |
| 3 | Remove the microSD card from its slot on the electronic board |
| 4 | Insert the microSD card in the specific slot of your PC to open the folder |
| 5 | Create a .csv file called “RFID.csv”. The file structure must be: UID1; UID2; Example Al 4HNL5T; DZ47TBD5; • • • • |
| 6 | Save the file in the main directory of the microSD card |
| 7 | Insert the microSD card in the slot on the electronic board again |
| 8 | Close the recharging station and reconnect the power supply to launch the procedure. If the procedure has been completed without errors, the station will import the and the data it contains. The LEDs will flash blue, 3 times. At the end of the import procedure, the file will be renamed RFID_old.csv on the microSD. |
| 9 | Once the command has been executed, the station will return to standby |
Contact GEWISS SAT customer service for the UID codes of your RFID cards; you will be asked to give the number on the cards. 4-byte or 7-byte cards can be saved, as long as they are compatible with standard ISO/IEC 14443 part A To delete an RFID card from the local list:
| # | Action to be carried out | RGB LED status |
| 1 | Swipe the MASTER key across the RFD scanner to enable the storage phase | From fixed green to flashing white |
| 2 | Swipe the MASTER key across the RFID scanner again to enable the deletion phase | From flashing white to flashing red |
| 3 | Swipe the card that you want to delete across the RFID scanner | Fixed green for 2 seconds |
| 4 | To quit the RFID card storage menu, swipe the MASTER key across the RFID scanner | From flashing red to fixed green |
To enable a recharging session:
| # | Action to be carried out | RGB LED status |
| 1 | Make sure there are no errors on the charging station | Fixed green |
| 2 | Swipe an RFID card across the scanner, close to the graphic symbol | Fixed green |
| 3 | If the card is recognized (i.e. it’s in the local list), the re-charging station is activated to begin the charging session and waits for the vehicle to be connected. | Flashing green |
| 4 | Once the vehicle has been connected, the station checks that everything is 01‹ for the charging session | Flashing green |
| 5 | If there are no problems, the charging station will block the plug in the socket outlet both electrically and mechanically. The recharging session begins | Flashing blue |
| 6 | The vehicle requests energy from the recharging station | Fixed blue |
| 7 | Recharging session in progress | Fixed blue or flashing blue |
| 8 | To end the charging session, take the same RFID card used to launch the session and swipe it across the scanner again. The station ends the charging session by releasing the plug from the Type 2 socket-outlet | From fixed blue or flashing blue to flashing green |
| 9 | Take the plug out of the socket-outlet on the charging station side | From flashing green to fixed green |
| 10 | If the station detects no errors, it will return to standby | Fixed green |
10.3. CLOUD PARKING
In this mode, the charging station is connected to a control platform via the OCPP protocol. The OCPP protocol allows the station to connect to any platform which uses that protocol.
To take advantage of this mode, a specific parameter configuration is needed in order to create correct station-platform communication.
The use of connected solutions allows access to a series of advanced options that give both the end user and the owner better access to the service.
The end user can use the JOIN app or a similar expedient to find the nearest recharging station and access the service by following the instructions given.
The station owner can monitor the status of the station and the consumption level remotely and in real time.
FAULTS AND TROUBLESHOOTING
The station codifies the errors found by the electronic board and saves them in the internal log.
The log files are saved on the microSD card on the electronic board. These files need to be analyzed in order to find the cause of the problem.
The errors that might be detected by the charging station are listed below
| Error code | Description | Solution |
| Eno | The contractor is working when it shouldn’t be. The Type 2 socket outlet s powered in the standby condition | Check the signal from the electronic board to the contactor, to make sure the former isn’t controlling the latter. If the board isn’t controlling the contactor, make sure the contactor contacts aren’t jammed. If necessary, replace the device |
| e 2 socket-out- ne shutters of the type let aren’t in the right condition (closed) | Check the mobility of the gates and the relative mechanical devices. If necessary, replace the socket outlet. | |
| Error 6 | Error in the control of the socket-outlet locking motor (i t doesn’t switch from the OPEN to the CLOSED position) | Manually check the mobility of the pin by moving the red lever on the back of type 2 socket-outlet locking motor. |
| Error 7 | Error in the control of the socket-outlet locking motor (it doesn’t switch from the CLOSED to the OPEN position) | Manually check the mobility of the pin by moving the red lever on the back of type 2 socket-outlet locking motor. |
| En ( ,, | The energy meters are no longer communicating with the electronic board | Check the Modbus line connection Check the power supply to the energy meters Make sure the energy meters are working properly Make sure the component on the Modbus line is numbered correctly |
| Error 10 | The charging station has been disconnected from the platform for more than 24h | Disconnect the power supply to the charging station. Leave the station switched off for at least 2 minutes Reconnect the power supply, then wait for the station to reconnect to the platform |
| Error 13 | DC current detected on the return line from the vehicle | In this situation, the charging session is immediately suspended. Remove the recharging cable from the vehicle and wait to begin a new session. If the problem persists, contact the manufacturer of the vehicle |
| Error 14 | Short-circuit detected on the CP signal | The station detects a short circuit between the CP signal and earth. Remove the cable and try again. If the error persists, replace the cable. |
| Error 15 | The load connected is not suitable for recharging | If a vehicle has been connected but the problem persists, contact the manufacturer of the vehicle. |
| Station OFF | The electronic board is not receiving the power supply it needs in order to work | Check the power supply upstream of the station Check the circuit breaker protection on the electron-is board protection panel is working properly Check the 12V power supply to the electronic board |
In the case of products connected to the JOIN platform, or if the maintenance package has been purchased, call the FreePhone number 800 123 325 when necessary.
In all other cases where technical support is required, call GEWISS SAT customer service.
UPDATING THE FIRMWARE
Recharging stations not designed for remote connection to the cloud platform can be updated by inserting the microSD card in the relative slot of the electronic board.
To understand which firmware version is installed in the product, open a LOG file saved on the MicroSD card itself (you are advised to use the most recent file).
In each LOG file, the first row contains the FW version(s) installed on the station.


To update the firmware, proceed as follows:
| # | Action to be carried out |
| 1 | Disconnect the power supply to the product by turning off the main switch |
| 2 | Open the charging station to access the electronic board |
| 3 | Remove the microSD card from its slot on the electronic board |
| 4 | Insert the microSD card in the specific slot on your PC, to open the folder |
| 5 | Paste the update file in the main folder of the microSD card NB: contact GEWISS SAT customer service for the most recent file <(which will also be available on the GEWISS website, using a code search) |
| 6 | Insert the microSD card in the slot on the electronic board |
| 7 | Close the charging station and reconnect the power supply to launch the updating procedure |
| 8 | At the end of the updating procedure, the station will confirm the positive outcome via the front LED, which will flash green 3 times. |
NOTE=The FW update package(s) is/are inserted in the main folder of the microSD as shown in the example below

MODIFYING THE OPERATING PARAMETERS OF THE RECHARGING STATION
Once the product has been installed, certain station operating parameters can be modified via a text file to be saved on the microSD card inserted in the charging station itself.
Use a computer to create a text file renamed “config.ini”, where you can insert the parameters you want to modify. The parameters must be added as indicated below.
The parameters that can be modified are:
| Function description | Name of the parameter to be used | Available options, and examples |
| Maximum input current | MAXAMPEREAVAILABLE | The input current set in the factory can be altered to suit the real availability and avoid problems during recharging. To do this, use the MAXAMPEREAVAILABLE parameter Example MAXAMPEREAVAILABLE=32 |
| current Maximum recharging | AMPERESOCKET_SX | It is possible to define a recharging current different from the one set in the factory. To do this, use the AM-PERESOCKET_SX parameter Example AMPERESOCKET_SX=10 |
| Date and time | DATETIME | If the station date is wrong, it can be updated using the DATETIME value. The format is YrN/MM/DD-hh: mm Example DATETIME=2021/01/31-14:00 |
| LOG level | LOG LEVEL | The LOG level saved by the recharging station on the microSD card can be modified using the loglevel parameter. There are 2 options: 3 (limited wordiness) or 4 (high degree of wordiness) Example LOGLEVEL=3 |
DISCONNECTING FROM THE MAINS SUPPLY
This section describes the procedure for disconnecting the device from the main network. If you want to work inside the device (qualified personnel only), interventions must first be made on the protection elements upstream of the line (both for the power level part and the power supply to the electronic board).
PREVENTIVE MAINTENANCE
15.1. RESIDUAL CURRENT DEVICES
The residual current circuit breakers installed upstream of the station must be checked at least once every 6 months to make sure they are working properly. To do this, press the TEST key and make sure the device actually trips.
cod. 7.55.4.522.8
Contact details according to the relevant European Directives and Regulations:
GEWISS S.p.A. Via A.Volta, 1 IT-24069 Cenate Sotto (BG) Italy
tel: +39 035 946 111 E-mail: [email protected]

+39 035 946 111
8.30 – 12.30 / 14.00 – 18.00
lunedì ÷ venerdì – monday ÷ friday
+ 39 035 946 260
[email protected]
www.gewiss.com
ULTIMA REVISIONE 05/2021





Cable inlet on the back of the circled area. Make the necessary holes.





















