POTTER VSR-S Series Waterflow Alarm Switch for Small Pipe Canada Owner’s Manual
UL, ULC, CSFM Listed and NYMEA Accepted
Service Pressure: Up to 300 PSI (20,7 BAR)
Minimum Flow Rate for Alarm: 10 GPM (38 LPM)
Maximum Surge: 18 FPS (5,5 m/s)
Enclosure: Die-cast, red enamel fi nish
Contact Ratings: Two sets of SPDT (Form C) 10.0 Amps at 125/250 VAC 2.0 Amps at 30 VDC Resistive
Conduit Entrances: Two knockouts provided for 1/2″ conduit. Individual switch compartments suitable for dissimilar voltages.
Usage: Listed plastic, copper and schedule 40 iron pipe. Fits pipe sizes – 1″ (25mm), 1 1/4″ (32mm), 1 1/2″ (38mm) and 2″ (50mm)
Note: 12 paddles are furnished with each unit, one for each pipe size of threaded and sweat TEE, one for 1″ (25mm) CPVC, one for 1″ (25mm) CPVC (Central), one for 1″ threaded Nibco CPVC, and one for 1 1/2″ (38mm) threaded (Japan).
Environmental Specifications:
- Suitable for indoor or outdoor use with factory installed gasket and die-cast housing.
- NEMA 4/IP55 rated enclosure – use with appropriate conduit fi tting.
- Temperature range: 40° F to 120° F, (4,5° C to 49° C)
Service Use: Automatic Sprinkler NFPA-13 One or two family dwelling NFPA-13D Residential occupancy up to four stories NFPA-13R National Fire Alarm Code
- Cover Tamper: Detects removal of cover
- Switch Contact: SPDT (Form C)
- Contact Rating: 3 Amps at 250 VAC 5 Amps at 125 VAC 1mA at 5 VDC min.
- Terminations: 8″ (20cm) 22 AWG wire leads
- Replaceable Components: Retard/Switch Assembly, stock no. 1029030
WARNING
Installation must be perfomed by qualifi ed personnel and in accordance with all national and local codes and ordinances.
Shock hazard. Disconnect power source before servicing. Serious injury or death could result.
Risk of explosion. Not for use in hazardous locations. Serious injury or death could result
The Model VSR-S is a vane type waterfl ow switch for use on wet sprinkler systems that use 1″ (25mm), 1 1/4″ (32mm), 1 1/2″ (38mm) or 2″ (50mm) pipe size. The unit may also be used as a sectional waterfl ow detector on large systems. The unit contains two single pole double throw snap action switches and an adjustable, instantly recycling pneumatic retard. The switches are actuated when a fl ow of 10 gallons per minute (38 LPM) or more occurs downstream of the device. The fl ow condition must exist for a period of time necessary to overcome the selected retard period.
Enclosure
The VSR-S switches and retard device are enclosed in a general purpose, die-cast housing. A cover tamper switch is included to indicate unauthorized removal of the cover.
Installation
These devices may be mounted in a horizontal or vertical pipe. On horizontal pipe they should be installed on the top side of the pipe where they will be accessible. The units should not be installed within 6″(15cm) of a valve, drain, or fi tting which changes the direction of the waterfl ow. Select the proper paddle for the pipe size and type of TEE used. See Fig. 1 for instructions on changing the paddle. The unit has a 1″ NPT bushing for threading into a non-corrosive TEE. See Fig. 2 for proper TEE size, type, and installation. Use no more than three wraps of Tefl on tape. Screw the device into the TEE fi tting as shown in Fig. 2. Care must be taken to properly orient the device for the direction of waterfl ow. The vane must not rub the inside of the TEE or bind in any way. The stem should move freely when operated by hand. The device can also be used in copper or plastic pipe installation with the proper adapters so that the specifi ed TEE fi tting may be installed on the pipe run.
Note: Do not leave cover off for an extended period of time.
FIG 1
Retard Adjustment
The time delay is factory set at 30 ± 10 seconds. The delay can be adjusted by rotating the retard adjustment knob from 0 to the max setting (60-90 seconds). The time delay should be set at the minimum required to prevent false alarms.
WARNING
There are 12 paddles furnished with each unit. One for each size of threaded, sweat or plastic TEE as described in Fig. 2. These paddles have raised lettering that shows the pipe size and type of TEE that they are to be used with. The proper paddle must be used. The paddle must be properly attached (see drawing) and the screw that holds the paddle must be securely tightened.
Screw the device into the tee fi tting as shown. Care must be taken to properly orient the device for the direction of water flow. On sweat tees, no threaded bushings, inserts, or adapters are permitted, unless they comply with the dimensions listed in the chart below.
Important – The depth to the inside bottom of the tee should have the following dimensions:
WARNING
Do not use more than three wraps of tefl on tape.
| Approximate Depth Requirement | |||
| Tee Size | Threaded | Sweat | CPVC |
| 1″ x 1″ x 1 | 2 1/16″ | 1 3/4″ | 2 7/16″ |
| 1 1/4″ x 1 1/4″ x 1″ | 2 7/16″ | 2 7/16 | N/A |
| 1 1/2″ x 1 1/2″ x 1″ | 2 11/16″ | 2 1/4″ | N/A |
| 2″ x 2″ x 1″ | 3 3/16″ | 2 3/4″ | N/A |
Switch Terminal Connections Clamping Plate Terminal
WARNING
An uninsulated section of a single conductor should not be looped around the terminal and serve as two separate connections. The wire must be severed, thereby providing supervision of the connection in the event that the wire becomes dislodged from under the terminal.
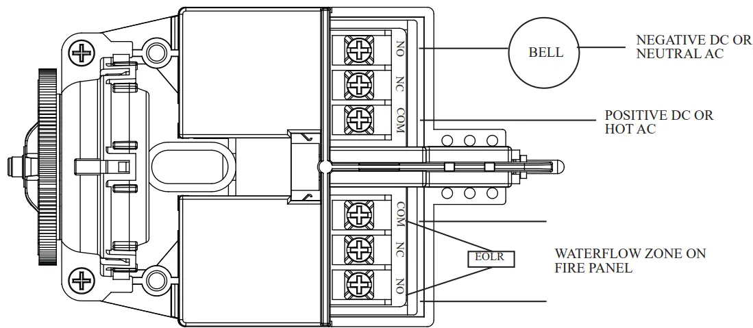
TYPICAL ELECTRICAL CONNECTIONS

NOTES:
- The model VSR-S has two switches, one can be used to operate a central station, proprietary or remote signaling unit, while the other is used to operate a local audible or visual annunciator.
- For supervised circuits see “Switch Terminal Connections” drawing and caution note (Fig. 3)

To remove knockouts: Place screwdriver at edge of knockouts, not in the center.
Break out thin section of cover when wiring both switches from one conduit entrance.
CAUTION
Due to the possibility of unintended discharges caused by pressure surges, trapped air, or short retard times, waterflow switches that are monitoring wet pipe sprinkler systems shall not be used as the sole initiating device to discharge AFFF, deluge, or chemical suppression systems.
Testing
The frequency of inspection and testing for the Model VSR-S and its associated protective monitoring system should be in accordance with applicable NFPA Codes and Standards and/or the authority having jurisdiction (manufacturer recommends quarterly or more frequently.) An inspector’s test valve (usually located at the end of the most remote branch line) should always be used for test purposes. If there are no provisions for testing the operation of the fl ow detection device on the system, application of the VSR-S is not recommended or advisable. A minimum flow of 10 gpm (38 Lpm) is required to activate this device.
NOTICE
Please advise the person responsible for testing of the fi re protection system that this system must be tested in accordance with the testing instructions.
Maintenance
Inspect detectors monthly for leaks. If leaks are found, replace the detector. The VSR waterflow switch should provide years of trouble-free service. The retard and switch assembly are easily fi eld replaceable. In the unlikely event that either component does not perform properly, please order replacement retard switch assembly stock #1029030. There is no maintenance required, only periodic testing and inspection.
Removal
- To prevent accidental water damage, all control valves should be shut tight and the system completely drained before waterflow detectors are removed or replaced.
- Turn off electrical power to the detector, then disconnect wiring.
- Use a wrench on the fl ats of the bushing . Turn the switch counterclockwise to disengage the pipe threads.
- Gently lift with your fi ngers, roll the vane so it will fi t through the hole while continuing to lift the waterflow detector.
- Lift detector clear of pipe.
CAUTION
Waterfl ow switches that are monitoring wet pipe sprinkler systems shall not be used as the sole initiating device to discharge AFFF, deluge, or chemical suppression systems. Waterflow switches used for this application may result in unintended discharges caused by surges, trapped air, or short retard times.
Mounting Dimensions

Support
- Potter Electric Signal Company, LLC
- 100 Westmore Dr. Units 6 & 7, Etobicoke, ON, Canada M9V5C3
- Phone: 888-882-1833
- www.pottersignal.com





















