Altronix eFlow104NKA8QM Series Networkable Dual Output Access Power Controllers

eFlow104NKA8QM Series
Networkable Dual Output
Access Power Controllers
Models Include:
eFlow104NKA8QM
- 12VDC or 5VDC up to 6A and/or 24VDC up to 10A (240W total power) selectable by output.
- Eight (8) programmable fuse protected outputs
- Eight (8) programmable trigger inputs
- Built-in Charger for sealed lead acid or gel type batteries
eFlow104NKA8DQM
- 12VDC or 5VDC up to 6A and/or 24VDC up to 10A (240W total power) selectable by output.
- Eight (8) programmable Class 2 power-limited PTC protected outputs
- Eight (8) programmable trigger inputs
- Built-in Charger for sealed lead acid or gel type batteries
Installation Guide
Rev. eFlow104NKA8Q-072720 More than just power.TM Installing Company: _______________ Service Rep. Name: __________________________________ Address: _____________________________________________ Phone #: __________________
Overview:
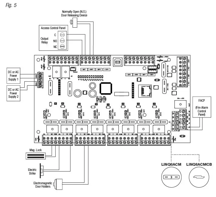
Altronix eFlow104NKA8QM and eFlow104NKA8DQM distribute and switch power to access control systems and accessories. They convert a 120VAC 60Hz input into eight (8) independently controlled 12VDC or 24VDC protected outputs. Access Power Controller’s dual input design allows power to be steered from two (2) factory installed independent low voltage 12 or 24VDC Altronix power supplies to eight (8) independently controlled fuse (eFlow104NKA8QM) or PTC (eFlow104NKA8DQM) protected outputs. Power outputs can be converted to dry form “C” contacts. Outputs are activated by an open collector sink, normally open (NO), normally closed (NC) dry trigger input, or wet output from an Access Control System, Card Reader, Keypad, Push Button, PIR, etc. eFlow104NKA8(D)QM will route power to a variety of access control hardware devices including Mag Locks, Electric Strikes, Magnetic Door Holders, etc. Outputs will operate in both Fail-Safe and/or Fail-Secure modes. The FACP Interface enables Emergency Egress, Alarm Monitoring, or may be used to trigger other auxiliary devices. The fire alarm disconnect feature is individually selectable for any or all of the eight (8) outputs. The spade connectors allow you to daisy chain power to multiple LINQ8ACM(CB) modules. This feature allows you to distribute the power over more outputs for larger systems. Built-in LINQTM Network Power Management facilitates monitoring, reporting and control of power/diagnostics.
Specifications:
Inputs:
eFlow104NB:
- 120VAC, 60Hz, 4.5A.
LINQ8ACM(CB):
- Eight (8) trigger inputs:
- Normally open (NO) inputs (dry contacts).
- Normally closed (NC) inputs (dry contacts).
- Open collector sink inputs.
- Wet Input (5VDC – 24VDC) with 10K resistor
- Any combination of the above.
Outputs:
Power:
- 12VDC or 5VDC up to 6A, 24VDC up to 10A (240W total power).
- Auxiliary Class 2 power-limited output rated @ 1A (unstitched).
- Overvoltage protection.
LINQ8ACM:
- Fuse protected outputs rated @ 2.5A per output, non power-limited. Total output 6A max.
LINQ8ACMCB:
- PTC protected outputs rated @ 2A per output, Class 2 power-limited. Total output 6A max. Do not exceed the individual power supply ratings.
- Eight (8) selectable independently controlled outputs or eight (8) indecently controlled Form “C” relay outputs (see below for ratings):
- Fail-Safe and/or Fail-Secure power outputs.
- Auxiliary power outputs (un switched).
- Any combination of the above.
- Individual outputs may be set to OFF position for servicing (output jumper set to middle position). Does not apply to Dry Contact applications.
- Any of the eight (8) fuse/PTC protected power outputs are selectable to follow power Input 1 or Input 2. Output voltage of each output is the same as the input voltage of the input selected.
- Surge suppression.
Fuse/PTC Ratings:
eFlow104NB:
- Input fuse is rated 6.3A/250V. Battery fuse rated 15A/32V. LINQ8ACM:
- Main input fuse is rated 15A/32V. Output fuses are rated 3A/32V.
LINQ8ACMCB:
- Main input PTC is rated 9A. Output PTCs are rated 2A.
Battery Backup (eFlow104NB):
- Built-in charger for sealed lead acid or gel type batteries.
- Maximum charge current 1.54A.
- Automatic switch over to stand-by battery when AC fails. Transfer to stand-by battery power is instantaneous with no interruption.
Supervision (eFlow104NB):
- AC fail supervision (form “C” contacts).
- Battery fail & presence supervision (form “C” contacts).
- Low power shutdown. Shuts down DC output terminals if battery voltage drops below 71-73% for 12V units and 70-75% for 24V units (depending on the power supply). Prevents deep battery discharge.
Fire Alarm Disconnect: eFlow104NB:
- Supervised Fire Alarm disconnect (latching or non-latching) 10K EOL resistor. Operates on a normally open (NO) or normally closed (NC) trigger.
LINQ8ACM(CB):
- Fire Alarm disconnect (latching or non-latching) is individually selectable for any or all of the eight (8) outputs. Fire Alarm disconnect input options:
- Normally open [NO] or normally closed [NC] dry contact input. Polarity reversal input from FACP signaling circuit.
- FACP input WET is rated 5-30VDC 7mA.
- FACP input EOL requires 10K end of line resistor.
- FACP output relay [NC]: Either Dry 1A/28VDC, 0.6 Power Factor or 10K resistance with [EOL JMP] intact.
Visual Indicators: eFlow104NB:
- Green AC LED: Indicates 120VAC present.
- Red DC LED: Indicates DC output.
- LINQ8ACM(CB):
- Green AC LED: Indicates AC trouble condition.
- Green BAT LED: Indicates battery trouble condition.
- Green FACP LED: Indicates FACP disconnect is triggered.
- Flashing Blue
Heartbeat LED: Indicates network connection. - Individual
OUT1 – OUT8
Red LEDs: Indicate outputs are triggered. - Individual
Voltage LEDs: Indicate 12VDC (Green) or 24VDC (Red). (see pg. 5 for LINQ8ACM(CB) LED Diagnostics).
Programmable Features (LINQ8ACM(CB)):
- Eight (8) programmable outputs:
- Fail-safe, fail-secure or auxiliary outputs.
- Input controlled or manually controlled through software.
- High (over) and low (under) voltage and current monitoring by output.
- Multiple outputs may be programmed to be triggered by a single input.
- Battery back-up by output.
- Eight (8) programmable trigger inputs:
- Normally open (NO).
- Normally closed (NC).
- Open collector sink inputs.
- Wet Input (5VDC – 24VDC) with 10k resistor.
- Any combination of the above.
- Programmable port IDs.
- Monitor power supply(ies) input for voltage and correct limits (high/low).
- Input and output current calibration.
- Programmable timer events.
- Programmable user levels.
- Enable or disable alerts by type.
- Programmable alert reporting delay/
Environmental:
- Operating temperature: 0ºC to 49ºC ambient.
- Humidity: 20 to 85%, non-condensing.
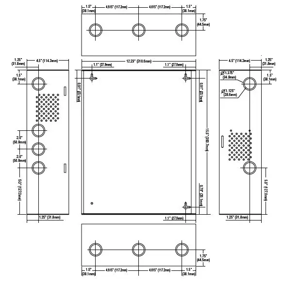
Enclosure Dimensions (approximate H x W x D): 15.5” x 12” x 4.5” (393.7mm x 304.8mm x 114.3mm).
eFlow104NKA8DQM Installation Guide
Stand-by Specifications:
| Battery | Burg. Applications 4 hr. Stand-by/ 15 min. Alarm | Fire Applications 24 hr. Stand-by/ 5 min. Alarm | Access Control Applications Stand-by |
| 7AH | 0.4A/10A | N/A | 5 Mins./10A |
| 12AH | 1A/10A | 0.3A/10A | 15 Mins./10A |
| 40AH | 6A/10A | 1.2A/10A | Over 2 Hours/10A |
| 65AH | 6A/10A | 1.5A/10A | Over 4 Hours/10A |
Installation Instructions:
Wiring methods shall be in accordance with the National Electrical Code/NFPA 70/NFPA 72/ANSI, the Canadian Electrical Code and with all local codes and authorities having jurisdiction. Product is intended for indoor use only.
- Mount unit in desired location. Mark and predrill holes in the wall to line up with the top two keyholes in the enclosure. Install two upper fasteners and screws in the wall with the screw heads protruding. Place the enclosure’s upper keyholes over the two upper screws, level and secure. Mark the position of the lower two holes. Remove the enclosure. Drill the lower holes and install the two fasteners. Place the enclosure’s upper keyholes over the two upper screws. Install the two lower screws and make sure to tighten all screws
(Enclosure Dimensions, pg. 8). Secure enclosure to earth ground. - Ensure all output jumpers [OUT1] – [OUT8] are placed in the OFF (center) position (Fig. 1, pg. 4).

- Connect un switched AC power (120VAC 60Hz) to terminals marked [L, N] (Fig. 2a, pg. 6). Green “AC” LED on power supply board will turn on. This light can be seen through the LED lens on the door of the enclosure. Use 14 AWG or larger for all power connections. Secure green wire lead to earth ground. Keep power-limited wiring separate from non power-limited wiring (120VAC 60Hz Input, Battery Wires). Minimum 0.25” spacing must be provided. CAUTION: Do not touch exposed metal parts. Shut branch circuit power before installing or servicing equipment. There are no user serviceable parts inside. Refer installation and servicing to qualified service personnel.
- Set each output [OUT1] – [OUT8] to route power from Input 1 or 2 (Fig. 1, pg. 4).
Note: Measure output voltage before connecting devices. This helps avoiding potential damage. - Turn power off before connecting devices.
- Output options:eFlow104NKA8DQM will provide up to eight (8) switched power outputs plus eight (8) un switched auxiliary power outputs. Switched Power outputs: Connect the negative (–) input of the device being powered to the terminal marked [COM].
- For Fail-Safe operation connect the positive (+) input of the device being powered to the terminal marked [NC].
- For Fail-Secure operation connect the positive (+) input of the device being powered to the terminal marked [NO].
Auxiliary Power Outputs (un switched):Connect positive (+) input of the device being powered to the terminal marked [C] and the negative (–) of the device being powered to the terminal marked [COM]. Output can be used to provide power for card readers, keypads etc. - Turn main power on after all devices are connected.
- Input Trigger Options (program trigger input options via LINQ software):
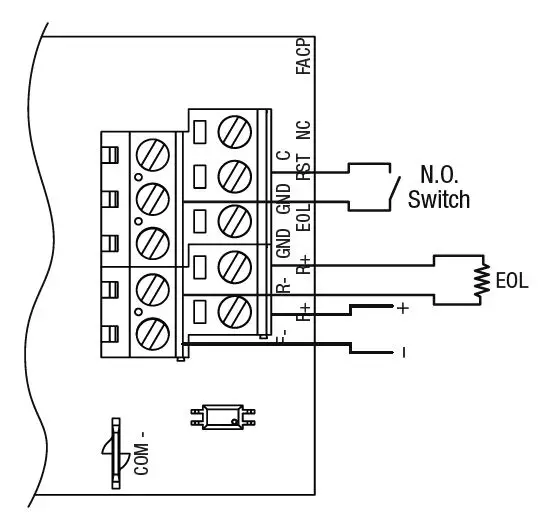
Note: If Fire Alarm disconnect is not used, connect a 10 k Ohm resistor to terminals marked [GND and EOL]. Input: Connect dry access control (NC/NO) input to terminals marked [+ INP1 –] to [+ INP8 –]. Open Collector Sink Input: Connect the open collector sink input to the terminal marked [+ INP1 –] to [+ INP8 –]. Wet (Voltage) Input Configuration: Carefully observing polarity, connect the voltage input trigger wires and the supplied 10K resistor to terminals marked [+ INP1 –] to [+ INP8 –]. - Fire Alarm Interface Options (program fire alarm interface options via LINQ software): A normally closed [NC], normally open [NO] input or polarity reversal input from FACP signaling circuit will trigger selected outputs. Normally
Open Input:
Wire your FACP relay and 10K resistor in parallel on terminals marked [GND] and [EOL].
Normally Closed Input:
Wire your FACP relay and 10K resistor in series on terminals marked [GND] and [EOL]. - FACP Dry NC output:
Connect desired device to be triggered by the unit’s dry contact output to the terminals marked [NC] and [C]. When [EOL JMP] is in the DIS position, the output is of 0 Ohm resistance in a normal condition. When [EOL JMP] is in the EN position, a 10k resistance will be passed to next device when in a normal condition. - Stand-by Battery Connections (Fig. 3, pg. 7, Fig. 4, pg. 8): For U.S. Access Control applications batteries are optional. Batteries are required for Canadian installations (ULC-S319). When batteries are not used, a loss of AC will result in the loss of output voltage. When the use of stand-by batteries is desired, they must be lead acid or gel type. Connect battery to LINQ8ACM(CB)’s terminals marked [+ BAT –] (Fig. 3, pg. 7). Use two (2) 12VDC batteries connected in series for 24VDC operation (battery leads included). Use batteries Cavil CL1270 (12V/7AH), CL12120 (12V/12AH), CL12400 (12V/40AH), CL12650 (12V/65AH) batteries or UL recognized BAZR2 and BAZR8 batteries of an appropriate rating.
- Battery and AC Supervision outputs (Fig. 3, pg. 7, Fig. 4, pg. 8): eFlow104NB is factory connected to LINQ8ACM(CB) for Battery and AC supervision.
- To delay AC reporting for 2 hrs. set DIP switch [AC Delay] to OFF position (Fig. 2c, pg. 6). To delay AC reporting for 1 min. set DIP switch [AC Delay] to ON position (Fig. 2c, pg. 6).
- eFlow104NB Fire Alarm Disconnect (Fig. 2c, pg. 6): To enable Fire Alarm Disconnect set DIP switch [Shutdown] to ON position. To disable Fire Alarm Disconnect set DIP switch [Shutdown] to OFF position.
- Installation of tamper switch: Mount UL Listed tamper switch (Altronix model TS112 or equivalent) at the top of the enclosure. Slide the tamper switch bracket onto the edge of the enclosure approximately 2” from the right side (Fig. 4a, pg. 8). Connect tamper switch wiring to the Access Control Panel input or the appropriate UL Listed reporting device. To activate alarm signal open the door of the enclosure.
Wiring:
Use 18 AWG or larger for all low voltage power connections.
Note: Take care to keep power-limited circuits separate from non power-limited wiring (120VAC, Battery).
Maintenance:
Unit should be tested at least once a year for the proper operation as follows:
Output Voltage Test: Under normal load conditions, the DC output voltage should be checked for proper voltage level eFlow104NB: 24VDC nominal rated @ 10A max.
Battery Test: Under normal load conditions check that the battery is fully charged, check specified voltage (24VDC @ 26.4) both at battery terminal and at the board terminals marked [– BAT +] to ensure that there is no break in the battery connection wires.
Note: Maximum charging current under discharges is 1.54A.
Note: Expected battery life is 5 years, however it is recommended changing batteries in 4 years or less if needed.
LED Diagnostics:
eFlow104NB Power Supply/Charger
| Red (DC) | Green (AC/AC1) | Power Supply Status |
| ON | ON | Normal operating condition. |
| ON | OFF | Loss of AC. Stand-by battery is supplying power. |
| OFF | ON | No DC output. |
| OFF | OFF | Loss of AC. Discharged or no stand-by battery. No DC output. |
LINQ8ACM and LINQ8ACMCB Networked Access Power Controller
| LED | ON | OFF |
| LED 1- LED 8 (Red) | Output relay(s) de-energized. | Output relay(s) energized. |
| FACP | FACP input triggered (alarm condition). | FACP normal (non-alarm condition). |
| Green Output 1-8 | 12VDC | – |
| Red Output 1-8 | 24VDC | – |
| AC | AC Fail | AC Normal |
| BAT | Battery Fail | Battery Normal |

Trouble/Time Limited Warning of Stand-by Batteries:
For compliance with ULC S318-96, the Time Limited Warning circuit must be connected for local or remote annunciation with an Amber or Red LED to indicate DC Trouble (low battery, loss of battery or when 95% of the stand-by battery has been depleted). Connect the circuit to the Batt Fail relay contacts to an appropriate input of a UL Listed Burglar Alarm or Access Control Panel. The following figure shows the circuitry needed for local annunciation.
Terminal Identification:
eFlow104NB Power Supply/Charger
| Terminal/Legend | Description | |
| A | – PWR1 + | Factory connected to eFlow104NB. |
| B | – PWR2 + | Optional second DC power supply input. |
| C | Output LED | Individual output voltage LEDs. 12VDC (Green) or 24VDC (Red). |
| D | Output Jumper | Individual output voltage selection jumper (factory selected for 24VDC output). |
| E | COM – | Common Negative [–] plug for spade connectors. |
| F | Output 1 through Output 8 NO, C, NC, COM | Eight (8) selectable independently controlled outputs [Fail-Safe (NC) or Fail-Secure (NO)]. |
| G | – F, + F | FACP Signaling Circuit Input terminals. Class 2 power-limited. |
| H | – R, + R | FACP Signaling Circuit Return terminals. Class 2 power-limited. |
| I | GND, EOL | EOL Supervised FACP Input terminals for polarity reversal FACP function. Class 2 power-limited. |
| J | GND, RST | FACP interface latching or non-latching. NO dry input. Class 2 power-limited. To be shorted for non-latching FACP interface or Latch FACP reset. |
| K | C, NC | FACP Dry NC output rated 1A/28VDC @ 0.6 Power Factor. Class 2 power-limited. With EOL JMP intact, will provide 10k resistance in a normal state. |
| L | + PS1 – | Factory connected to [+ BAT –] terminals of eFlow104NB power supply. |
| M | + BAT – | Connection to stand-by batteries. |
| N | + PS2 – | Connection to [+ BAT –] terminals of optional second DC power supply. |
| O | + BAT – | Connection to stand-by battery(ies) for optional second DC power supply. |
| P | + INP1 – through + INP8 – | Eight (8) independently controlled Normally Open (NO), Normally Closed (NC), Open Collector Sink or Wet Input Triggers. |
| Q | Tamper | Tamper Switch Input. |
| R | AC / NC, C | Connect appropriate signaling notification devices to the terminals to report AC fail. |
| S | BAT / NC, C | Connect appropriate signaling notification devices to the terminals to report battery fail. |
| T | Reserved for future use. | |
| U | 8-Pin Connector | For connection to VR6 or Tango1B. |
| V | USB | Laptop connection enables LINQ8ACM(CB) initial setup and programming. |
| W | RJ45 | Ethernet: LAN or laptop connection enables LINQ8ACM(CB) programming and status monitoring. |
| X | PWR1+, PWR2+ | Positive [+] plugs for spade connectors. |
| Y | 2-Pin Connector | Connection to [AC Fail] terminals on power supply. |
| Z | EOL Jumper | Engages 10 k Ohm End-of-Line resistor. |

Terminal Identification:
LINQ8ACM and LINQ8ACMCB Networked Access Power Controller
| Terminal Legend | Function/Description |
| L, N | Connect 120VAC 60Hz to these terminals: L to hot, N to neutral (non power-limited) (Fig. 2a, pg. 6). |
| – DC + | 24VDC nominal @ 10A continuous output (non power-limited output) (Fig. 2h, pg. 6). |
| Trigger EOL Supervised | Fire Alarm Interface trigger input from a short or FACP. Trigger inputs can be normally open, normally closed from an FACP output circuit (power-limited input) (Fig. 2d, pg. 6). |
| NO, GND RESET | FACP interface latching or non-latching (power-limited) (Fig. 2e, pg. 6). |
| + AUX – | Auxiliary Class 2 power-limited output rated @ 1A (un switched) (Fig. 2f, pg. 6). |
| AC Fail NC, C, NO | Indicates loss of AC power, e.g. connect to audible device or alarm panel. Relay normally energized when AC power is present. Contact rating 1A @ 30VDC (power-limited) (Fig. 2b, pg. 6). |
| Bat Fail NC, C, NO | Indicates low battery condition, e.g. connect to alarm panel. Relay normally energized when DC power is present. Contact rating 1A @ 30VDC. A removed battery is reported within 5 minutes. Battery reconnection is reported within 1 minute (power-limited) (Fig. 2b, pg. 6). |
| – BAT + | Factory connected to LINQ8ACM(CB). Maximum charge current 1.54A (non power-limited) (Fig. 2g, pg. 6). |

DC Output to devices
(eFlow104NKA8QM – non power-limited, eFlow104NKA8DQM – power-limited)
Optional Rechargeable Stand-by Battery for UL294 Applications Note: 12V batteries required for ULC-S319 installations.
Optional Rechargeable Stand-by Battery for UL294 Applications Note: 12V batteries required for ULC-S319 installations.
CAUTION: Use two (2) 12VDC stand-by batteries. Keep power-limited wiring separate from non power-limited. Use minimum 0.25” spacing. 12AH Rechargeable batteries are the largest batteries that can fit in this enclosure. A UL listed external battery enclosure must be used if using 40AH or 65AH batteries.


Network Setup:
Please be sure to visit altronix.com for latest firmware and installation instructions.
Network Programming Via Altronix Dashboard USB Connection:
The USB connection on the LINQ8ACM(CB) is used to setup the network parameters. When connected to a PC via the USB cable the LINQ8ACM(CB) will receive power from the USB port allowing network programming of the LINQ8ACM(CB) prior to being connected to the power supply.
- Install the software supplied with the LINQ8ACM(CB) on the PC being used for programming. NOTE: This software should be installed on all computers that will have access to the LINQ8ACM(CB).
- Connect the supplied USB cable to the USB port on the LINQ8ACM(CB) and the computer.
- Double click on the Dashboard icon on the desktop of the computer and open the Dashboard. Enter the User Name: admin and Password: admin to access the dashboard.
- Click on the button marked USB Network Setup in the upper hand side of the dashboard. This will open the USB Network Setup screen. In this screen the MAC Address of the LINQ8ACM(CB) module will be found along with the Network Settings.
Network Settings:
In the IP Address Method field select the method by which the IP Address for the LINQ8ACM(CB) will be obtained: “STATIC” or “DHCP”, then follow the appropriate steps (contact the network administrator to determine which method will be used).
Static:
- IP Address: Enter the IP address assigned to the LINQ8ACM(CB) by the network administrator.
- Subnet Mask: Enter the Subnet of the network.
- Gateway: Enter the TCP/IP gateway of the network access point (router) being used.
NOTE: Gateway configuration is required to properly receive emails from the device. - Inbound Port (HTTP): Enter the port number assigned to the LINQ8ACM(CB) module by the network administrator to allow remote access and monitoring.
- Click the button labeled Submit Network Settings. A dialog box will display “New network settings will take effect after the server is rebooted”. Click OK.
DHCP:
- After selecting DHCP in the IP Address Method field click the button labeled Submit Network Settings. A dialog box will display “New network settings will take effect after the server is rebooted”. Click OK. Next, click on the button labeled Reboot Server. After rebooting the LINQ8ACM(CB) will be set in the DHCP mode. The IP address will be assigned by the router when the LINQ8ACM(CB) is connected to the network. It is recommended to have the assigned IP Address reserved to ensure continued access (see the network administrator).
- Subnet Mask: When operating in DHCP, the router will assign the subnet mask values.
- Gateway: Enter the TCP/IP gateway of the network access point (router) being used.
- HTTP Port: Enter the HTTP port number assigned to the LINQ8ACM(CB) module by the network administrator to allow remote access and monitoring. The default inbound port setting is 80. HTTP is not encrypted and unsecure. Even though HTTP can be used for remote access, it is recommended primarily for use with LAN connections.
Secure Network Setup (HTTPS):
In order to setup HTTPS for a Secure Network Connection, a Valid Certificate and Key must be used. Certificates and Key should be in a “.PEM” format. Self-Certifications should only be used for testing purposes as no actual authentication is being performed. In a Self-Certified mode, the connection will still state that it is unsecure.
How to Upload Certificate and Key to Setup HTTPS:
- Open Tab Labeled Security.
- Select Tab Labeled Email/SSL.
- Scroll to bottom under SSL Settings.
- Click Select Certificate.
- Browse and select valid Certificate to upload from server.
- Click Select Key.
- Browse and select valid Key to upload from server.
- Click Submit Files.
Once the Certificate and Key is uploaded successfully you can proceed with setting up HTTPS in Network Settings.
- HTTPS Port: Enter the HTTPS port number assigned to the LINQ8ACM(CB) module by the network administrator to allow remote access and monitoring. The default inbound port setting is 443. Being encrypted and more secure, HTTPS is highly recommended for remote access.
- Click the button labeled Submit Network Settings. A dialog box will display “New network settings will take effect after the server is rebooted”. Click OK.
To access the LINQ8ACM(CB) via the Altronix Dashboard refer to the Dashboard Installation and Programming Manual located on supplied flash drive.
Programming Via Browser:
When not using the Altronix Dashboard USB connection for the initial Network setup, the LINQ8ACM(CB) needs to be connected to any DC power supply(ies) or eFlow power supply(ies) being monitored prior to programing. Refer to LINQ8ACM(CB)’s Installation Instructions on page 3 of this manual.
Factory Default Settings:
- IP Address: 192.168.168.168
- User Name: admin
- Password: admin
- Set the static IP address for the laptop to be used for programming to the same network IP address as the LINQ8ACM(CB), i.e. 192.168.168.200 (default address of the LINQ8ACM(CB) is 192.168.168.168).
- Connect one end of the network cable to the network jack on the LINQ8ACM(CB) and the other to the network connection of the laptop.
- Open a browser on the computer and enter “192.168.168.168” into the address bar. A dialog box Authentication Required will appear requesting both user name and password.
Enter the default values here. Click on the button labeled Log In. - The status page of the LINQ8ACM(CB) will appear. This page displays the real time status and health of each power supply connected to the LINQ8ACM(CB).To enter new network parameters, go to Network Setup under the LINQ8ACM(CB) Configuration section of this manual.
LINQ8ACM(CB) Configuration:
Setting Site ID, Time and Date:
Site ID is used to identify the location and description of the monitored device.
- Click on the Status tab to access the status page.
- Click on Site ID in the upper left, a dialog box will open.
- Enter the location and description of the monitored device.
- Click submit.
Time and Date must be set in order to accurately stamp the system log and email alerts.
- Click on the Status tab to access the status page.
- Click the time and date in the upper left, a dialog box will open.
- Click on “SYNC DATE AND TIME”.
- Hardware Setup:
Click on the Settings tab to open the Hardware Setup screen. Input / Output Setup:- Click on the INPUT / OUTPUT tab at the top of the screen.
- Output ID: Enter a descriptive name for the device connected to the associated output.
- Output Control: using the pulldown menu select whether the output will be controlled via an access control input to the trigger terminals or software controlled.
- Input Control: outputs are controlled via the Trigger Input,
- Manual Control: outputs are manually controlled through the LINQ software. Outputs will be controlled via a software-initiated trigger.
- Triggered: Checking or unchecking the associated output box will switch the output when the Submit button is clicked. Multiple outputs can be switched at the same time.
NOTE: This function if for use in Manual Control only. - Inputs: the input can be programmed to control a single output or multiple outputs.
- Single output control: using the pulldown menu of the corresponding output (i.e. Input1 g Output1), select the type of access control input NO Normally open or NC normally closed.
- Multiple output control: using the pull-down menu of all outputs to be controlled (i.e. Input1 g Output1 g Output4 g Output7) select the type of access control input NO Normally open or NC normally closed. All selected outputs will change state when the input is triggered.
- Output Type: using the pull-down tab select how the output will be used: Fail-Safe (devices that require to lock), Fail-Secure (device require power to release), or Auxiliary (devices that require constant un switched power).
- FACP: using the pull-down tab select how the output will react when the fire alarm disconnect is triggered: Inactive (the output will remain active), non-latching (the output will release when FACP is reset), Latching (the output will remain triggered when FACP is reset and remain triggered until manually released via an input to the reset terminals).
- Battery Backup: select whether the output will be backed up in the event of a power failure. Uncheck the associated box to disable battery back for that output.
- Over/Under Current: Enter both the High and Low current limits for the associated output. If either of these limits are exceeded an alert message and/or email notification will be generated.
- Over/Under Voltage: Enter both the High and Low voltage limits for the associated output. If either of these limits are exceeded an alert message and/or email notification will be generated.
- Click on the button labeled Submit to save the settings.
Temperature Settings:
- Click on the Temperature tab at the top of the screen.
- Enter the high temperature threshold in Celsius.
- Click on the button labeled Submit to save the settings.
Battery Service Date(s):
If batteries are not being used uncheck the box under Present to disable battery monitoring.
- Click on the Batteries tab at the top of the screen.
- Enter the date the batteries were installed under Installation Date for each connected power supply.
- Enter the date for battery service under Service Date for each connected power supply.
NOTE: Batteries should be inspected at least once a year. Even through the expected battery life is five (5) years it is recommended replacing batteries every four (4) years. - Click on the button labeled Submit to save the settings
Power Supply Settings:
If only one (1) power supply is being used uncheck the box under Present next to the unused power supply to disable monitoring.
- Click on the Power Supplies tab at the top of the screen.
- Over/Under Voltage: Enter both the High and Low voltage limits for the associated input. If either of these limits are exceeded an alert message and/or email notification will be generated.
- Over/Under Current: Enter both the High and Low current limits for the associated input. If either of these limits are exceeded an alert message and/or email notification will be generated.
- Click on the button labeled Submit to save the settings
Output Current Calibration:
During the initial setup all outputs need to be calibrated to insure accurate current readings.
- Click on the Calibration tab at the top of the screen.
- With all loads disconnected click on the tab labeled Calibrate All Zero Offset Currents to set all output currents to zero.
- Connecting each output one at a time, measure the current draw and enter this value for this output under Actual.
- Click on the button labeled Calibrate Gain to save the settings.
- Repeat steps 3 & 4 for all remaining outputs.
When replacing or adding a new device the output needs to be recalibrated.
- Click on the Calibration tab at the top of the screen.
- With the load disconnected from the output, click on the tab labeled Calibrate Offset for the output to set its current to zero.
- Connect the output, measure the current draw and enter this value under Actual.
- Click on the button labeled Calibrate Gain to save the settings.
- Repeat steps 3 & 4 for all remaining outputs.
B. Timer Setup:
Click on the Timers tab to access the timers setup screen.
- Click on the Add New Timer bar.
- Timer Label: Enter a descriptive name for the timer function.
- Timer Start Date: Enter the date on which the timing function will start (i.e. 10/09/2019).
- Timer Interval: Using the pulldown menu select the interval the time will operate.
- Timer Start Time: enter the time that the timer event will start.
- Timer Actions: Select the function for each output that will occur during the timer event.
- Click on the button labeled Submit to save the settings. To add additional timer events, repeat steps 1-7.
C. Network Setup:
Static:
- IP Address: Enter the IP address assigned to the LINQ8ACM(CB) by the network administrator.
- Subnet Mask: Enter the Subnet of the network.
- Gateway: Enter the TCP/IP gateway of the network access point (router) being used. Gateway configuration is required to properly receive emails from the device.
- HTTP Port: Enter the HTTP port number assigned to LINQ8ACM(CB) module by the network administrator to allow remote access and monitoring. The default inbound port setting is 80. HTTP is not encrypted and unsecure. Even though HTTP can be used for remote access, it is recommended primarily for use with LAN connections.
- HTTPS Port: Enter the HTTPS port number assigned to the LINQ8ACM(CB) module by the network administrator to allow remote access and monitoring. The default inbound port setting is 443. Being encrypted and more secure, HTTPS is highly recommended for remote access. When HTTPS is being used it is recommended to uncheck the box next to HTTP to disable its use.
- When all fields are completed click the button labeled Submit.
- Click the button labeled Reboot to save setting.
DHCP:
- After selecting DHCP in the Method field click the button labeled Submit. Next, click on the button labeled Reboot to save the settings. After rebooting the LINQ8ACM(CB) will be set in the DHCP mode. The IP address will be assigned by the router when the LINQ8ACM(CB) is connected to the network. See the network administrator for DHCP parameters.
- Subnet Mask: When operating in DHCP the router will assign the subnet mask values.
- Gateway: TCP/IP gateway of the network access point (router) being used will be displayed.eFlow104NKA8DQM Installation Guide
- d. HTTP Port: Enter the HTTP port number assigned to the Linq8ACM module by the network administrator to allow remote access and monitoring. The default inbound port setting is 80. HTTP is not encrypted and unsecure. Even though HTTP can be used for remote access it is recommended primarily for use with LAN connections.
- HTTPS Port: Enter the HTTPS port number assigned to the LINQ8ACM(CB) module by the network administrator to allow remote access and monitoring. The default inbound port setting is 443. Being encrypted and more secure, HTTPS is highly recommended for remote access.
- When all additional fields are completed click the button labeled Submit.
- Click button labeled Reboot to save setting.
D. Cloud Settings:
LINQ8ACM(CB)’s cloud support is disabled by default. When cloud support is enabled, LINQ8ACM(CB) will use cloud support to provide email notifications and offer updates when available. Check the box next to Enable to permit event email notifications via cloud support. Advanced Settings: Cloud network traffic can be redirected to local servers if desired.
- Enter local cloud server IP address in the IP Address field.
- Enter pro ID in the Port field.
- Check to box next to Enable.
- Click the button labeled Submit to save setting.
When using a local could server and SSL/TLS are active, a new certificate will need to be uploaded.
Certificate Upload:
- Click on the Certificate tab at the top of the screen.
- Click on Select Certificate File and locate the new certificate.
- Upload the certificate.
- Click the button labeled Submit to save the file.
E. Email Setup:
- Click on the Email tab to access the email settings screen.
- Click on Outgoing tab to access the outgoing Email Settings screen.
- Enter up to five (5) outgoing email addresses which will receive email alerts.
- Once all emails have been entered click the Submit button to save the setting.
Email Test:
- Click on the Test tab to access the Email Test screen.
- Using the pulldown menu select the test message to be sent.
- Click the Submit button to be sent the test message.
F. Network Security Settings:
- Click on the Security tab to access the Security Settings screen.
- Click the appropriate tab at the top of the screen for the fields to be programmed.
Policies:
Select the security warning to be displayed when logging in to the system by checking to display and unchecking not to display the warning message.
Self-Signed Certificate Setup:
Generating a self-signed SSL Certificate and Key:
- State: Two letter code representing the state where the organization is located.
- Location: The city where the organization is located.
- Organization: The legal name of the organization. This should not be abbreviated, and should include suffixes such as Inc., Corp, or LLC.
- Unit Name: Name of the device.
- Common Name: Domain name or IP address of the server. This is typically assigned by network administrator.
- Email Address: An email address used to contact the organization.
- After all field have been completed click on the button labeled Submit to save setting
NOTE: A self-signed SSL certificate will be generated with the information provided in the “SSL Certificate Settings” fields. The certificate will be valid for 500 days, and time stamped with the time settings present on the LINQ8ACM(CB) module. The date and time must be synced with the host computer before generating an SSL certificate.
Certificate Upload:
Uploading a private Certificate and Key.
- Under Certificate upload click on Select Certificate File.
- Locate the new certificate file.
- Upload the certificate file.
- Under Key upload click on Select Key File.
- Locate the new certificate file.
- Upload the Key file.
- Click on the button labeled Submit file save settings
User Settings:
There are several programable user levels available.
Administrator: Has access to all functions.
Status/Setup: Has on/off control and can rename power supplies. Network: This setting is for IT administrators.
Maintenance: Has access to modify Alerts and timer control.
Setting Up Users:
- Click on the Users tab.
- Click on the Add new user button the New User Form will open.
- Enter the user Name.
- Enter a unique password under New Password.
- Reenter the password under Confirm Password.
- Select the user type and the rights the user has: Read/Write (can make changes) or Read Only (view only). A user can be setup as an administrator by clicking on MAKE ADMIN above the Submit button.
- Click on Submit to save settings.
- Repeat the above to add additional users.
Alerts and Report Delay Settings:
Alerts can be enabled to send a notification that an event has occurred or disabled to ignore the event and not send a notification. To disable an event, uncheck the Enable box next to the event to be disabled. To re-enable the event check the box next to the event.
Events can be set to delay before reporting.
To set a report delay enter the delay time in the column under Delay Report for the associated event. Delay time is set in seconds. All events are preprogrammed for 2 seconds. Once all fields are completed click the button labeled Submit to save event settings. Repeat for all other events to be programmed.
Hook-Up Diagrams:
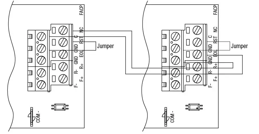
Fig. 6 – Daisy-chaining one or more LINQ8ACM(CB) units. EOL Jumper [EOL JMP] should be installed in the EOL position. Non-Latching.

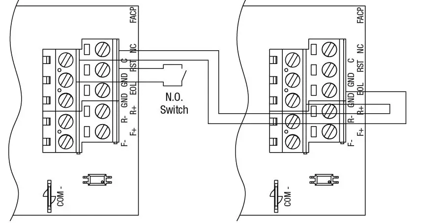
Fig. 7 – Daisy-chaining one or more LINQ8ACM(CB) units. EOL Jumper [EOL JMP] should be installed in the EOL position. Latching Single Reset.

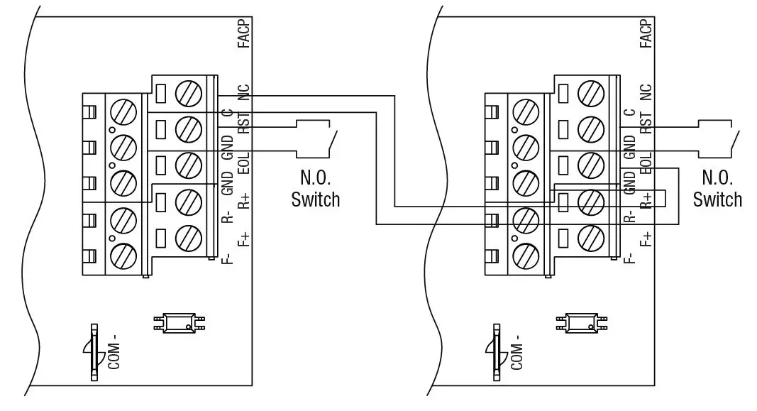
Fig. 8 – Daisy chaining one or more LINQ8ACM(CB) units. EOL Jumper [EOL JMP] should be installed in the EOL position. Latching Individual Reset.

Hook-Up Diagrams:
Fig. 9 – Polarity reversal input from FACP signaling circuit output (polarity is referenced in alarm condition). Non-Latching.

Fig. 10 – Polarity reversal input from FACP signaling circuit output (polarity is referenced in alarm condition). Latching.

Fig. 11 – Normally Closed trigger input (Non-Latching).

Fig. 12 – Normally Closed trigger input(Latching).

Fig. 13 – Normally Open trigger input (Non-Latching).

Fig. 14 – Normally Open trigger input (Latching).

Enclosure Dimensions (BC400):
15.5” x 12” x 4.5” (393.7mm x 304.8mm x 114.3mm)

Altronix is not responsible for any typographical errors. 140 58th Street, Brooklyn, New York 11220 USA | phone: 718-567-8181 | fax: 718-567-9056website: www.altronix.com | e-mail: [email protected] | Lifetime Warranty IIeeFlow104NKA8DQM G30U




















