Polhus Henry44 ISO Garage Henry
Product Information
The product is a multi-functional device designed for various applications. It is equipped with the following features:
- Model Number: +HQU,62
- Resolution: 5×90
- Resolution: 5×90
- Model: CS1
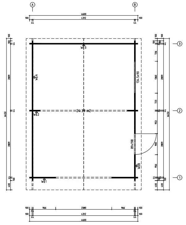
Please note that the provided user manual serves as an illustrative guide and does not serve as a project specification.
Product Usage Instructions
To effectively use the product, follow the instructions below:
Options
The product offers various options that can be utilized for specific purposes. The available options are:
- SB1
SBT1- TOP
- This option allows you to configure the top section of the device. Adjust the setting to a desired value of 40mm.
SBT1- BOTTOM
- This option enables you to configure the bottom section of the device. Adjust the setting to a desired value of 105mm.
- By understanding and utilizing these options effectively, you can optimize the functionality of the product for your specific needs.
Parts And Tools



Dimension








Installation Instructions
Info

- The guide is illustrative. This guide is not project specification.


Options




















