CELO Supply Air Beam
Instruction Manual
CELO
Dimensions

Celo is as standard delivered in steps of 0.1 m between 1.2 m -3.0 m ( 3.125 m ).
| Product | A mm | B mm | Kg / m |
| Celo | ( 1200 / ∙ ∙ ∙ ∙ ∙ ∙ ∙ ∙ ∙ / 3600 ln ) – 8 mm | 215 | 6.5 |
Symbols
Heavy Load – 2 man job. It is recommended to use a “lift” for mounting
Hot water
Cold water
Possible combinations – Air / Water


Connection dimensions, mm


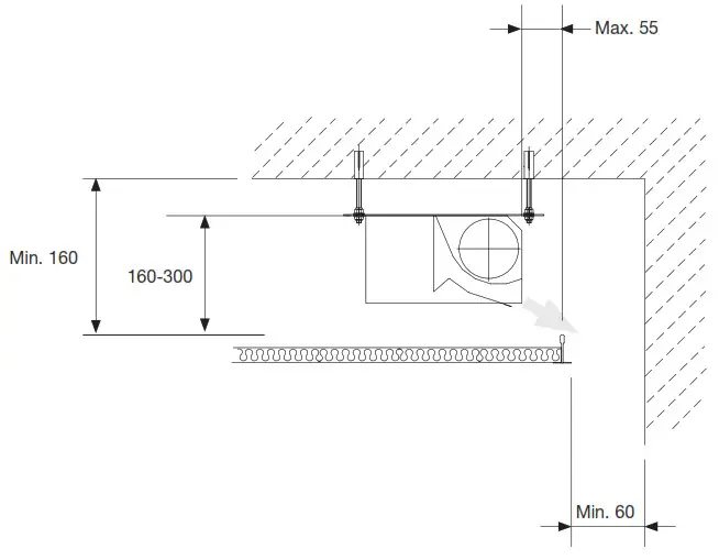
Mounting in ceiling



232-252 – Use the wire hanger, Threaded rod (M6/M8) or screw (M6/M8) for hanging.
Suspended installation

Installation on to a ceiling joist

Installation, outlet along the wall


Support
Here you can find product updates/mounting instructions and support telephone number/mail. www.lindab.com
Right to alterations reserved.
Do you have trouble finding your local contacts please go to:
www.lindab.com
CELO-02022021
Lindab reserves the right to make changes without prior notice
2021-02-02
www.lindab.com


















