Lindab 646009 Fasadium Facade Unit Instruction Manual
Installation instructions
Size Air flows
Possible marking: See sign mounted on the inside of the front plate and on the transport box.
Note: Some parts have been removed for the sake of clarity.
Mounting
Important things for the installer to know or find out:
- Height to bottom of window.
- Thickness of the windowsill.
- Which type of unit is it? (height, depth, length, duct dimension etc.).
- Is the wall strong enough to support the unit, piping and cover?
- Are there any special conditions that will affect the installation? E.g., the cover, curved walls etc.
- Drawings showing the location of the unit.

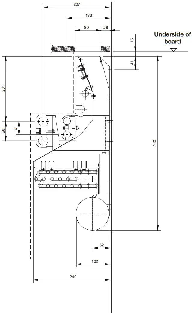
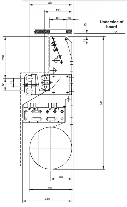
Figure 1. Dimensions for the strengthening of the wall
Of the unit
- The standard distance is 50-70 mm below the bottom of the windowsill, where a mark or line is drawn where the units are to be attached. Be consistent throughout the project. Exceptions from this measurement can be necessary, so find out if there are any special requirements, for instance from the person installing the cover. Note that the unit should have at least 300 mm of space from the wall to the right hand end of the unit, for the pipe support bracket and the cover.
- Screw the mounting rail in place (Fig. 2). The rail is supplied with the unit and is suited to the length of the unit. Height wise, the screw holes in the rail should line up with the markings on the wall. Lengthwise, the rail’s centre point should be adjusted as per the drawing, e.g. below the middle of the window.

- Hang the unit on the mounting rail. Check that it is positioned properly, heightwise and lengthwise. Fasten it with four screws in the ”ears” that are meant for this purpose, on the sides of the unit.
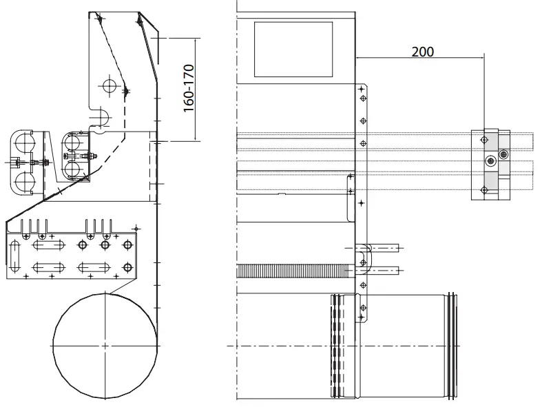
Mounting of the pipe support bracket
- The pipe support bracket is located 160-170 mm (to the top screw hole) below the marks. The pipe support bracket must sit at least 200 mm from the right-hand end of the unit. (See figure 3).

Figure 3. Distance between unit and pipe support bracket. - The pipe support bracket consists of three main parts: a bent steel plate and two standard pipe clamps made of plastic. The parts are assembled on site with the two accompanying screws. The pipe support bracket is fastened to the wall with two screws (not supplied). The maximum distance between pipe support brackets is 1800 mm for hard copper piping.
Of the pipe system:
- Start with the bottom Ø22 mm pipe and fasten it as figure 4.

- Install a T connection on the pipe, without locking it in place.
- Ensure that all pipe ends are deburred.
- Cooling supply
- Heating return
- Cooling return
- Check that everything is correct: Hose, T connection and pipe.
- Lock the T connection in place.
NOTE!
- The hose must not be bent to a radius of less than 40 mm.
- Make sure the hose’s highest point is not higher than the top pipes.
- The Ø15 copper pipe extension at the T connection must not point above the horizontal line of the main pipe.
At the end of every series of units, the Ø22 and Ø28 mm pipes must be fitted with an end kit with an air nipple. The copper pipes are 300 mm long and are installed in the last T connection of the series,
Battery types
- Figure 5.1 Shows a battery of Fasadium with unit length of ≤ 0,8m.

Figure 5.1 - Figure 5.2.1 Shows a battery of Fasadium with unit length of ≥ 1,0m.

Figure 5.2.1 - Figure 5.2.2, 5.2.3 and 5.2.4 Shows discontinued battery types of Fasadium with unit length of ≥1,0m.
A = Supply
B = Return
Discontinued battery types

Figure 5.2.2 Discontinued in 2014
Figure 5.2.3 Discontinued in 2009
Figure 5.2.4 Discontinued in 2007
Mounting of ventilation ducts
The ventilation ducts that are supplied may need to be cut to the right length before they are installed between the units and secured with screws. 2 self-tapping screws are used for Ø100 ducts, 3 for Ø160 ducts and 4 for Ø200 ducts. Take care not to drill into the rubber seals in the nipples.
Control
- A. Regulation unit Regula combi.

- B. Regula cable located between The Regula Combi and the Fasadium unit. (sold separately)

- C. Link cable L = 2,0m. Used when linking multiple Fasadium units togehter. (sold separately)
- D. Link extension cable required when c/c dimension of units exceeds 1.5 m (sold separately).

- E. Transformer 35VA, max 8 units 105VA, max 25 units. (sold separately).

After the devices are mounted and connections are complete the control cables are assembled.
The Regula cable is used to establish a connection between the Regula Combi regulation unit and a Fasadium unit.
The Link cable is a four pin cable, suppying passthrough power, heating and cooling signal. The Link cable is used to connect multiple Fasadium units in series.
Connection between the Regula Connect basic and the thermal actuators is done by the cable attached to the actuator open delivery.
Connection card:
Figure 6. Connection card.
- Connectors for heating output devices, such as heating circuit actuators.
- Connectors for cooling output devices, such as cooling circuit actuators.
- Connector for power and communication input from Regula Combi. (Regula cable)
- 4-5. Connector for power and communication link between two or more beams. (Link cable)
- Connector for direct power via external transformer.
For best result, connect the regulation unit to the center Fasadium of the zone.
Regula Combi
Wiring scheme for connecting Fasadium to Regula Combi.
For catual wiring scheme please use the wiring scheme configurator at www.lindQST.com
NB! The thermostat cable uses screw connection to the connectors on Regula Combi.
Fasadium with connection Ø100 mm
Fasadium 700 – 540 – 100
Fasadium 1000 – 600 – 160
Fasadium 1500 – 640 – 200
Most of us spend the majority of our time indoors. Indoor climate is crucial to how we feel, how productive we are and if we stay healthy.
We at Lindab have therefore made it our most important objective to contribute to an indoor climate that improves people’s lives. We do this by developing energy-efficient ventilation solutions and durable building products. We also aim to contribute to a better climate for our planet by working in a way that is sustainable for both people and the environment.




























