External wall grille VR
Description
VR is a square louvered grille for installation on external walls. VR is used for both fresh air intake and discharge. VR is equipped as standard with a safe-seal circular connection.
Maintenance
The grille should be removed to gain access to the duct. The external parts should be wiped with a damp cloth.
Order code

Linda B | we simplify construction
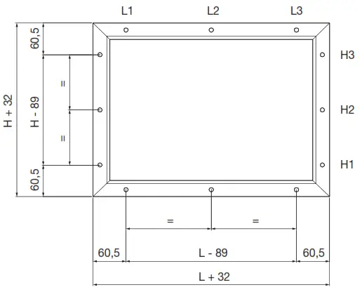
Dimensions
![]() | ![]() |
| Od | L mm (width) | H mm (hight) | Dept gov. Plenum | Outside width (L+32) | Outside hight (H+32) | C mm (Od connection) | Free area Ak (m2) | Weight kg | Screw hole location |
| 125 | 200 | 200 | 35 | 232 | 232 | 40 | 0.018 | 0.80 | H2 |
| 160 | 200 | 200 | 35 | 232 | 232 | 40 | 0.018 | 1.00 | H2 |
| 200 | 250 | 250 | 35 | 282 | 282 | 40 | 0.031 | 1.40 | H2 |
| 250 | 300 | 300 | 35 | 332 | 332 | 60 | 0.047 | 2.10 | H1+H3 |
| 315 | 400 | 400 | 35 | 432 | 432 | 60 | 0.091 | 2.60 | L1+L3 |
| 400 | 500 | 500 | 35 | 532 | 532 | 90 | 0.148 | 3.50 | L1+L3 |
Materials and finish
| Grille: Standard finish: Birdnet: Plenum box: | Aluminum Anodized Galvanized steel Galvanized steel |
Can be supplied anodized or powder-coated. Contact Lindab’s sales department for further information.
External wall grille
Technical data
Intake

Discharge

Lindab reserves the right to make changes without prior notice
2020-01-30




















