Convection Steam Oven
Installation Guide
SPECIFICATIONS, INSTALLATION,
AND MORE
Convection Steam Oven
Features and specifications are subject to change at any time without notice. Visit wolfappliance.com/specs for the most up-to-date information.
Important Note
To ensure this product is installed and operated as safely and efficiently as possible, take note of the following types of highlighted information throughout this guide:
IMPORTANT NOTE highlights information that is especially important.
CAUTION indicates a situation where minor injury or product damage may occur if instructions are not followed.
WARNING states a hazard that may cause serious injury or death if precautions are not followed.
IMPORTANT NOTE: Throughout this guide, dimensions in parentheses are millimeters unless otherwise specified.
IMPORTANT NOTE: Save these instructions for the local electrical inspector.
Product Information
Important product information, including the model and serial number, are listed on the product rating plate. The rating plate is located on the left side of the front face frame. The oven door must be open to view the rating plate. Refer to the illustration below.
If service is necessary, contact Wolf Factory Certified Service with the model and serial number. For the name of the nearest Wolf Factory Certified Service or for questions regarding the installation, visit the Product Support section of our website, wolfappliance.com, or call Wolf Customer Care at 800-222-7820.
Rating plate location
Specifications
Installation Requirements
The convection steam oven can be installed in a standard or flush inset application. The electrical supply for the oven must be located in an adjacent cabinet.
Finish the edges of the opening. They may be visible when the door is open.
For standard installations, the face trim overlaps stiles and rails. Refer to the chart.
For flush inset installations, a minimum 1/8″ (3) reveal is required on all sides. To ensure consistent reveals, each corner of the opening must be exactly 90°.
INSTALLATION REQUIREMENTS
| BASE SUPPORT | MIN |
| Convection Steam Oven | 100 lb (45 kg) |
| TRIM OVERLAP | 24″ MODEL | 30″ MODEL |
| Top | 3/16″ (5) | 3/16″ (5) |
| Bottom | 0″ (0) | 0″ (0) |
| Sides | 11/16″ (18) | 3 7/8″ (98) |
Electrical Requirements
Installation must comply with all applicable electrical codes.
Locate the electrical supply as shown in the illustrations on the following pages. A separate circuit servicing only this appliance is required. A ground fault circuit interrupter (GFCI) is not recommended and may cause interruption of operation. Refer to the illustration below for minimum power cord plug clearance.
Performance may be compromised if the electrical supply is less than 240 volts.
ELECTRICAL REQUIREMENTS
| Electrical Supply | grounded, 240/208 VAC, 60 Hz |
| Service | 20 amp dedicated circuit |
| Receptacle | NEMA 6-20R grounding-type |
| Power Cord | 6′ (1.8 m) |
![]() | ![]() |
| NEMA 6-20R receptacle | Power cord clearance |
WARNING
ELECTRICAL SHOCK HAZARD: Plug into a grounded 3-prong outlet. Do not remove the ground prong. Do not use an adapter. Failure to follow these instructions can result in electric shock, fire, or death.
Rating plate location
Convection Steam Oven
STANDARD INSTALLATION
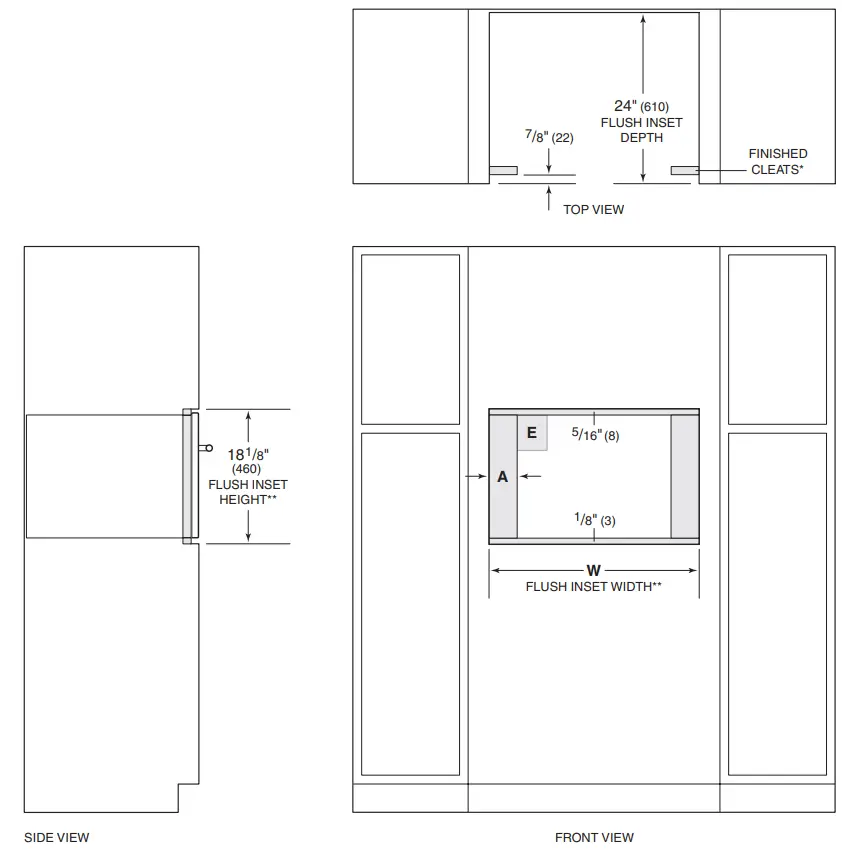
NOTE: 24″ (610) and 30″ (762) models require the same opening dimensions.
| OPENING WIDTH | W |
| 24″ Model | 22 1/8″ (562) |
| 30″ Model | 22 1/8″ (562) |
FLUSH INSET INSTALLATION
*Will be visible and should be finished to match cabinetry.
**Dimension provides minimum reveals.
| OPENING WIDTH | W | A |
| 24″ Model | 23 3/4″ (603) | 13/16″ (21) |
| 30″ Model | 30 1/8″ (765) | 4″ (102) |
Installation
Preparation
Before moving the oven, protect any finished flooring and secure the oven door closed to prevent damage.
Use an appliance dolly to move the unit near the opening.
Remove and recycle packing materials. Do not lift or carry the oven by the door handle.
OVEN DOOR REMOVAL
To remove, open the oven door completely. Rotate both hinges latch forward to the open position. Close the door to the at-rest position, then lift up and out. Refer to the illustrations below.
To reinstall, insert the door hinges into the frame openings.
Open the oven door completely and rotate both hinge latches back to the closed position.
Installation
Place the oven in the opening and slide it back partially.
Guide the power cord through the opening of the adjacent cabinet and slide the oven back fully. Verify the power cord is not trapped between the oven and cabinet wall.
Locate the mounting holes on the oven side trim, two on each side. Drill 1/16″ pilot holes. Use the provided mounting screws to secure the oven to cabinetry. Refer to the illustration below.
To avoid interference, a 90° doorstop may be required for any appliance or cabinet door installed next to the oven.
CAUTION
Failure to install the mounting screws may cause the oven to tip forward during use.
![]() | ||
| Oven door hinge latch | Door at-rest position | Oven installation |
Troubleshooting
IMPORTANT NOTE: If the oven does not operate properly, follow these troubleshooting steps:
- Verify electrical power is supplied to the oven.
- Verify proper electrical connections.
- If the oven does not operate properly, contact Wolf Factory Certified Service. Do not attempt to repair the oven. Wolf is not responsible for the service required to correct a faulty installation.
Sub-Zero, Sub-Zero & Design, Sub-Zero & Snowflake Design, Dual Refrigeration, The Living Kitchen, Great American Kitchens The Fine Art of Kitchen Design, Wolf, Wolf & Design, Wolf Gourmet, W & Design, red-colored knobs, Cove, and Cove & Design are registered trademarks and service marks of Sub-Zero Group, Inc. and its subsidiaries.
All other trademarks are property of their respective owners in the United States and other countries.
WOLF APPLIANCE, INC. P.O. BOX 44848 MADISON, WI 53744 WOLFAPPLIANCE.COM 800.222.7820 9015787 REV-B 4/2021
Wolf Customer Care 800.222.7820
























