WOLF Convection Steam Oven Installation Guide
Convection Steam Oven
Features and specifications are subject to change at any time without notice. Visit wolfappliance.com/specs for the most up-to-date information.
Important Note
To ensure this product is installed and operated as safely and efficiently as possible, take note of the following types of highlighted information throughout this guide:
IMPORTANT NOTE highlights information that is especially important.
CAUTION
Indicates a situation where minor injury or product damage may occur if instructions are not followed.
WARNING
States a hazard that may cause serious injury or death if precautions are not followed.
IMPORTANT NOTE: Throughout this guide, dimensions in parentheses are millimeters unless otherwise specified.
IMPORTANT NOTE: Save these instructions for the local electrical inspector
Product Information
Important product information, including the model and serial number, are listed on the product rating plate. The rating plate is located on the left side of the front face frame. The oven door must be open to view the rating plate. Refer to the illustration below.
If service is necessary, contact Wolf Factory Certified Service with the model and serial number. For the name of the nearest Wolf Factory Certified Service or for questions regarding the installation, visit the Product Support section of our website, wolfappliance.com, or call Wolf Customer Care at 800-222-7820.
Rating plate location
Specifications
Installation Requirements
The Convection Steam Oven can be installed in a standard or flush inset application. The back of the base support must be open for water and drain line accessibility and routing. Refer to the illustration below.
Finish the edges of the opening. They may be visible when the door is open.
For standard installations, the face trim overlaps stiles and rails. Refer to the chart below.
For flush inset installations, a minimum 1/8″ (3) reveal is required on all sides. To ensure consistent reveals, each corner of the opening must be exactly 90°.
INSTALLATION REQUIREMENTS
| Minimum Base Support | 150 lb (68 kg) | |
| TRIM OVERLAP | 24″ MODEL | 30″ MODEL |
| Top | 3/16″ (5) | 3/16″ (5 |
| Bottom | 0″ (0) | 0″ (0) |
| Sides | 5/8″ (16) | 11/16″ (18) |
Base support
Electrical Requirements
Installation must comply with all applicable electrical codes.
For ease of installation, the electrical supply for the oven should be placed in an adjacent cabinet within reach of the conduit.
Performance may be compromised if the electrical supply is less than 240 volts.
The oven is supplied with a conduit consisting of two hot lead conductors and a ground conductor. The wiring diagram covering the control circuit is provided with the oven.
ELECTRICAL REQUIREMENTS
| Electrical Supply | grounded, 240/208 VAC, 60 Hz |
| Service | 20 amp dedicated circuit |
| Conduit | 4′ (1.2 m) |
| Total Amps | 18 |
| Max Connected Load | 4.2 kW |
Rating plate location
Plumbing Requirements
PLUMBED MODELS ONLY
IMPORTANT NOTE: The unit needs minerals in the water to operate. Do not connect to a filtered water supply.
Installation must comply with all applicable plumbing codes.
IMPORTANT NOTE: The drain connection must be able to withstand temperatures up to 130°F (55°C).
The drain tube connection must be a minimum 2″ (51) below the unit and a minimum 4″ (102) from the floor. Locate the drain and water connections below the unit or in an adjacent cabinet. Any opening into the adjacent cabinet must meet the following: the longest dimension of the opening shall not be more than 1 1/2″ (38). The edges of the opening must be smooth and round.
IMPORTANT NOTE: The drain location can vary, but must be within reach of the corrugated tubing. Do not extend or reduce the drain tubing. A drain line high loop is required. Refer to the illustrations belo
PLUMBING REQUIREMENTS
| Water Connection | 6.5′ (2 m) braided tubing with 3/8″ female compression fitting |
| Drain Connection | 10′ (3 m) corrugated tubing |
| Pressure | 15–145 psi (1–10 bar) |

Connect the water supply to a cold water house supply with an easily accessible shut-off valve between the supply and the unit.
Purge the water supply prior to final connection to the unit. This will remove any debris that may be present in the tubing from installing the new water supply. Connect the braided tubing from the unit to the house water supply with the fitting provided. Check all water supply fittings for leaks.
STANDARD INSTALLATION

NOTE: Location of electrical supply within opening may require additional cabinet depth.
| OPENING WIDTH | W |
| 24″ Model | 22 1/8″ (562) |
| 30″ Model | 28 1/2″ (724) |
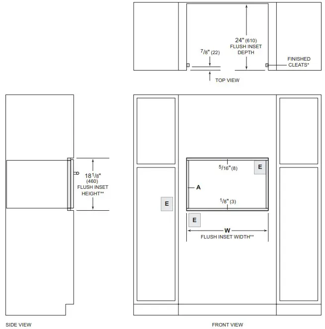
FLUSH INSET INSTALLATION
- Will be visible and should be finished to match cabinetry.
- Dimension provides minimum reveals.
NOTE: Location of electrical supply within opening may require additional cabinet depth.
| OPENING WIDTH | W | A |
| 24″ Model | 23 3/4″ (603) | 13/16″ (21) |
| 30″ Model | 30 1/8″ (765) | 13/16″ (21) |
Installation
Preparation
Before moving the oven, protect any finished flooring and secure the oven door closed to prevent damage.
Use an appliance dolly to move the unit near the opening. Remove and recycle packing materials. Do not lift or carry the oven by the door handle.
OVEN DOOR REMOVAL
To remove, open the oven door completely. Rotate both hinge latches forward to the open position. Partially close the door to the at-rest position (press and hold for handleless models), then lift up and out. Refer to the illustrations below.
To reinstall, insert door hinges into the frame openings. Open the oven door completely and rotate both hinge latches back to the closed position.
Electrical Connection
WARNING
Verify power is disconnected from the electrical box before proceeding.
If the electrical supply is located in the opening, the electrical connection must be made prior to placing the oven in the opening. If the electrical supply is in an adjacent cabinet, the electrical connection can be made after placing the oven in the opening.
- Connect the black appliance wire to the black (L1) power supply.
- Connect the red appliance wire to the red (L2) power supply.
- Connect the green appliance wire to the green/ground wire.
PLUMBED MODELS
- Place the unit near the opening.
- Remove the red cap from the water line.
- Connect the drain tube with the provided clamp, then secure the drain tube with the adhesive hose clamp provided.
- Hand tighten the water supply to the unit.
- Cut or shift the water/drain line tape and adjust, if necessary, then rotate the water connection in the desired direction. Refer to the illustration below.
- Connect the water connection to the water supply with the fitting provided, then check for leaks.
- Connect the drain tube following local code. The drain connection will accommodate 1″ (25), 3/4″ (19), and 5/8″ (16) drain connections. The connection must be cut to fit 3/4″ (19) and 5/8″ (16) connections. If connecting to a food waste disposer, remove the knockout prior to making the drain connection.
- Place the oven in the opening and slide back partially. Verify the conduit, drain line, and water supply are not kinked or trapped, then slide the oven back completely
Water connection
- Locate the mounting holes on the oven side trim, two on each side. Drill 1/16″ pilot holes. Use the provided mounting screws to secure the oven to cabinetry. Refer to the illustration below.
- Remove all contents from the unit.
- Remove the tape from the bottom of the oven cavity.
- Insert the filter over the water outlet. Refer to the illustration below.
Run a Steam cycle and check for leaks
CAUTION
Failure to install the mounting screws may cause the oven to tip forward during use.

NON-PLUMBED MODELS
- Place the unit near the opening.
- Place the oven in the opening and slide back partially. Verify the conduit is not kinked or trapped, then slide the oven back completely.
- Locate the mounting holes on the oven side trim, two on each side. Drill 1/16″ pilot holes. Use the provided mounting screws to secure the oven to cabinetry. Refer to the illustration below.
CAUTION
Failure to install the mounting screws may cause the oven to tip forward during use
Oven installation
Troubleshooting
IMPORTANT NOTE: If the oven does not operate properly, follow these troubleshooting steps:
- Verify electrical power is supplied to the oven.
- Verify proper electrical connections.
- If the oven does not operate properly, contact Wolf Factory Certified Service. Do not attempt to repair the oven. Wolf is not responsible for service required to correct a faulty installation
Sub-Zero, Sub-Zero & Design, Sub-Zero & Snowflake Design, Dual Refrigeration, The Living Kitchen, Great American Kitchens The Fine Art of Kitchen Design, Wolf, Wolf & Design, Wolf Gourmet, W & Design, red colored knobs, Cove, and Cove & Design are registered trademarks and service marks of Sub-Zero Group, Inc. and its subsidiaries.
All other trademarks are property of their respective owners in the United States and other countries.


















