Alde ZRT Zone Register Terminal User Manual
Description
ALDES patented* Zone Register Terminals (ZRT®) are designed to introduce flexibility and dynamic control to central ventilation systems. Used in both large and small systems, the ZRT® zonally regulates ventilation where it is required without the need for individual fans. Each ZRT® is a combination grille, register box, control damper, and optional flow regulator(s). This unique combination provides up to four different control schemes without the need for expensive pneumatic, electronic, or DDC control systems.
The ZRT® can be ordered in a supply or exhaust ventilation configuration. To ensure the proper operation of the damper assembly, do not exceed 1.0 in. w.g. of differential pressure across the damper door. ZRT® 6″ supply models require a minimum flow constant airflow regulator.
By replacing static grilles in large central systems, the ZRT-1 model provides on-off control for on-demand ventilation. This allows central fan downsizing and promotes energy savings by minimizing necessary fan horsepower and ventilation-induced heat and cooling loads on the building. The optional constant airflow regulator can be installed in the ZRT-1’s extended duct collar to place a maximum flow limit on each terminal. The automatic operation of the constant airflow regulator will prevent noise and excessive energy consumption caused by over-ventilation, as well as fluctuations in airflow rates as total system pressure varies
The ZRT-2 model can be used for combination low-flow indoor air quality ventilation and on-demand high-flow spot ventilation using the same central fan system. This is achieved by integrating a minimum constant airflow regulator directly into the damper sub-assembly. With the damper completely closed, the constant airlfow regulator will allow steady, low-continuous ventilation during fan operation. When other terminals are opened for on-demand control of spot ventilation, the closed ZRT-2 will maintain the specified low-continuous rate through the constant airflow regulator minimum flow control. By opening the ZRT-2’s control damper, the low-flow regulator is removed from the air stream, allowing either controlled (using optional second constant airflow regulator) or unrestricted maximum-boost ventilation.
ZRT-1 MODEL ZRT-2 MODEL
Airflow rate can be set or adjusted by rotating the dial from either side. The airflow indicator will move to show the selected CFM. The airflow label has multiple defined setpoints, but the unique adjustment mechanism of the CAR3 allows for infinite adjustability between the minimum and maximum limits.
The ZRT® can activate fans used in smaller central ventilation systems. Through the use of an integral damper end-switch, the ZRT® can trigger the remote fan to start. This provides the distinct advantage of allowing the fan to only ventilate specific spaces when called upon, without the need for separate fans in each space. This is especially important in residential bath applications using popular in-line and multi-port fans, where low noise and a single exterior vent penetration are desired.
Warning
TO REDUCE THE RISK OF FIRE, ELECTRIC SHOCK, OR INJURY TO PERSONS, OBSERVE THE FOLLOWING:
- Use this unit only in the manner intended by the manufacturer. If you have any questions, contact the manufacturer.
- Before servicing or cleaning the unit, switch power off at service panel and lock service panel to prevent power from being switched on accidentally. When the service disconnecting means cannot be locked, securely fasten a prominent warning device, such as a tag, to the service panel.
- To reduce the risk of fire and electric shock, the integral damper end switch should only be used to switch ventilation equipment rated Maximum 10A, 1/2 HP.
- Sufficient air is needed for proper combustion and exhaustingof gases through the flue (chimney) of fuel-burning equipment to prevent backdrafting. Follow the heating equipment manufacturer’s guidelines and safety standards, such as those published by the National Fire Protection Association (NFPA), and the American Society of Heating, Refrigerating and Air-Conditioning Engineers (ASHRAE), and the local code authorities.
- In addition to the following manufacturer’s instructions, it is necessary to comply with federal, state, and local government codes. Your purchase of this ALDES ventilation system represents an investment in the health and comfort of the occupants, as well as an investment in the protection of the building from the damaging effects of excessive indoor humidity.
- Installation work and electrical wiring must be done by qualified person(s) in accordance with all applicable codes and standards, including fire-rated construction.
- When cutting or drilling into wall or ceiling, do not damage electrical wiring and hidden utilities.
Caution
- For general ventilating use only. Do not use to exhaust hazardous or explosive materials and vapors.
- Automatically operated device. To reduce the risk of injury, disconnect from power supply before servicing.
- ZRT® is acceptable for use over a tub or shower when installed in a GFCI-protected circuit. If wired directly to the fan or ZRT®, a single Ground Fault Protector on the 120 VAC common power supply must be used to protect all devices on the same circuit.
| MAINTENANCE SERVICE PARTS | Models Jan. 2014 or Later | Models Dec. 2013 or Earlier |
| Damper Motor 24 VAC | 85 695 | 85 690 |
| Damper Motor 120 VAC | 85 696 | 85 691 |
| Damper Assembly 24 VAC for Models w/ 4″ Duct Collar | 36 134 | 36 114 |
| Damper Assembly 24 VAC for Models w/ 6″ Duct Collar | 36 136 | 36 116 |
| Damper Assembly 120 VAC for Models w/ 4″ Duct Collar | 36 135 | 36 115 |
| Damper Assembly 120 VAC for Models w/ 6″ Duct Collar | 36 137 | 36 117 |
Clean the grille monthly (if so equipped).
System Design
Satisfactory performance of a central ventilation system requires:
- Proper integration of all the components, compatible grilles, and wall/roof caps;
- Proper duct design for friction losses;
- Consideration of acoustic and vibration properties of the fan and its mounting;
- Acoustic properties of the grilles;
- Consideration of the mode of operation, whether continuous or automatically controlled by dehumidistat, timer, or occupancy sensor;
- Installation in a heated or unheated space, with consideration for the potential of condensation in the ducting or fan housing.
Inspect the carton upon receipt to ensure the terminal has not been damaged in transit. If damaged, it is the responsibility of the recipient to file a damage claim with the carrier. ALDES is not responsible for damage incurred during shipment.
Handle the unit with care to prevent damage to the housing and other components. Store the unit indoors if possible. If outdoor storage is required, protection against moisture and dirt is necessary.
FIGURE 1 – MOUNTING
Joist attachment spanner brackets (Included
IMPORTANT: Suspension brackets must be securely anchored to joists
Mounting
The ZRT® is available with mounting brackets to accommodate new or existing construction. Spanner brackets that allow mounting to joists up to 16″ on center are provided and should be secured using the screws provided (See Figure 1). Install additional blocking or use a single joist bracket if spacing is greater than 16″ on center.
Wiring
The ZRT® is available with 24 VAC or 120 VAC actuator motors. 120 VAC wiring options are shown in Figures 2-4, and 24 VAC wiring options using the Zone Terminal Fan Control Center (Model ZTC) are shown in Figures 5 and 6.
FIGURE 2
Intermittent fan operation using 120 VAC power supply to ZRT-1 terminals. SPST convenience switches, such as manually operated switches, mechanical timers, or dehumidistats, may be used to control each ZRT and fan in this configuration.
FIGURE 3
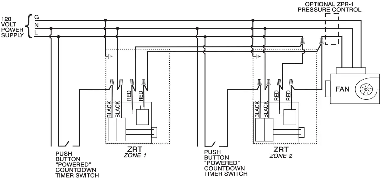
Intermittent fan operation using 120 VAC power supply to ZRT-1 terminals. SPST convenience switches, such as push-button timers or motion sensors, may be used to control each ZRT and fan in this configuration.
FIGURE 4
Continuous fan operation using 120 VAC power supply to ZRT-2 terminals. The fan and ZRT terminals may be wired independently.
FIGURE 5
Intermittent fan operation using 24 VAC ZTC Zone Terminal Control Center and ZRT-1 terminals. SPST convenience switches, such as manually operated, mechanical timers, or dehumidistats, may be used to control each ZRT and fan in this configuration. The fan is controlled by the ZTC.
FIGURE 6
Continuous fan operation using 24 VAC ZTC Zone Terminal Control Center and ZRT-2 terminals. SPST convenience switches, such as manually operated, mechanical timers, or dehumidistats, may be used to control each ZRT in this configuration. The fan may be wired independently or to the ZTC.
![]()
For more information, contact your Aldes sales advisor, visit aldes-na.com, call 1.800.255.7749, or find us on

©2020 American ALDES Ventilation Corporation and ©2020 ALDES Canada. ZRT / ZRT-S_(24 or 120 VAC)_IOM_0720. Aldes reserves the right to modify its products at any time to introduce new technologies.



















