MITSUBISHI ELECTRIC PAC-SF46EPA-G Transmission Booster

This manual describes the installation of the PAC-SF46EPA Transmission Booster and the air conditioner units. For the information about how to install the central controller or the air conditioner units, see the installation manual for them. For your safety, first be sure to read “1 Safety Precautions” described below thoroughly and then install the PAC-SF46EPA correctly. After reading this installation manual, keep it in a location that is easy to find. If the PAC-SF46EPA Transmission Booster is going to be operated by another person, make sure that this manual is given to them.
Safety Precautions
Before installing this unit, make sure you read all the “Safety Precautions”. The “Safety Precautions” provide very important points regarding safety. Make sure you follow them.
Symbols and Terms
| WARNING | Statements identify condition or practices that could result in personal injury or loss of life. |
| CAUTION | Statements identify condition or practices that could result in damage to the unit or other property. |
Specific Precautions
| Ask your dealer or technical representative to install. Any deficiency cased by your own installation may result in an electric shock and fire. |
| Install in a place which is strong enough to withstand the weight of the unit. Any lack of the strength may cause the unit to fall down, resulting in a personal injury. |
| Wire and connect using the desired cables securely so that any external force exerted on the cable is not imparted on to the terminal connections. Imperfect connection and fixing may result in heating or fire. |
| Never modify or repair the unit by yourself. Any deficiency caused by your modification or repair may result in an electric shock or fire. Consult with your distributor for repair. |
| Make sure that the unit is powered by a dedicated line. Other appliances connected to the same line could cause an overload. |
| Make sure that there is a main power switch. A ready accessible breaker for power source line helps reduce the risk of electric shocks. Installation of a breaker is mandatory in same area. |
| Ensure that installation work is done correctly following this installation manual. Any deficiency caused by installation may result in an electric shock or fire. |
| All electrical work must be performed by a licensed technician, according to local regulations and the instructions given in this manual. Any lack of electric circuit or any deficiency caused by installation may result in an electric shock or fire. |
| Do not move and re-install the unit yourself. Any deficiency caused by installation may result in an electric shock or fire. Ask your distributor or special vender for moving and installation. |
| This appliance must be earthed (grounded). Make sure to install a protect earth (PE)/grounding line. Do not connect the PE (grounding) line to gas or water pipes, lightning conductors or telephone grounding lines. Improper grounding may cause an electric shock. |
| Securely install the cover (panel) of the PAC-SF46EPA. If the cover (panel) is not installed properly, dust or water may enter the unit and fire or electric shock may result. |
CAUTION
| Do not install any place exposed to flammable gas leakage. Flammable gases that accumulates around the body of the unit may caused an explosion. |
| Do not use in any special environment. If use in any place exposed to oil (including machine oil), steam and sulfuric gas may degrade performances significantly or damage the component parts. |
| Wire so that it wires do not received any tension. Tension may caused wire breakage, heating or fire. |
| Do not wash with water. Doing so may cause an electric shock or malfunction. |
| Do not install in any place at a temperature of more than 40°C (104°F) or less than 0°C (32°F) or exposed to direct sunlight. |
| Use only an earth leakage breaker and fuse of the specified capacity. If no earth leakage breaker is installed, it may cause an electric shock. Using fuse and wire or copper wire with too large a capacity may cause a malfunction to the unit or fire. |
| Do not install in any steamy place such as bath room or kitchen. Avoid any place where moisture is condensed into dew. Doing so may cause an electric shock or a malfunction. |
| Do not install in any place where acidic or alkaline solution or special spray or other similar substances are used. Doing so may cause an electric shock or malfunction. |
| Use standard wires in compliance with the current capacity. A failure to do this may result in an electric leakage, heating or fire. |
| Do not touch any PCB (Printed Circuit Board) with your hand or tools. Do not allow dust to collect on the PCB. Doing so may cause fire or an electric shock. |
| This appliance is not intended for use by persons (including children) with reduced physical, sensory or mental capabilities, or lack of experience and knowledge, unless they have been given supervision or instruction concerning use of the appliance by a person responsible for their safety. Children should be supervised to ensure that they do not play with the appliance. |
Product Feature
Specification
| Source power requirement | Rated input voltage and current | EU: ~220 V – 240 V ; 0.7 A / 50 Hz Single-phase US: ~208 V – 230 V ; 0.7 A / 60 Hz Single-phase |
| Fuse: 2.0 A Time-delay type (IEC127-2 S.S.5) | ||
| Voltage/current of output on the Transmission Booster side | DC28 V – 30 V 1.7 A (Maximum loading) | |
| Environmental condition | Temperature | Operating range 0 – 40 °C / 32 – 104 °F Storage range -20 – 60 °C / -4 – 140 °F |
| Humidity | 30 – 90 %RH (No condensation) | |
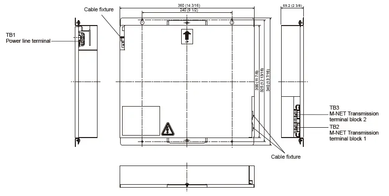
| Dimensions | 340 (H) × 360 (W) × 59.2 (D) mm / 13 7/16 (H) × 14 3/16 (W) × 2 3/8 (D) in | |
| Weight | 3.4 kg / 7 1/2 lb | |
| Installation Environment | In the metal control panel box (indoor) * This unit is installed and used in a business office or equivalent environment. | |
| Sound Pressure Level | The A-weighted sound pressure level is below 70 dB. | |
| Source power requirement | Rated input voltage and current | EU: ~220 V – 240 V ; 0.7 A / 50 Hz Single-phase US: ~208 V – 230 V ; 0.7 A / 60 Hz Single-phase |
| Fuse: 2.0 A Time-delay type (IEC127-2 S.S.5) | ||
| Voltage/current of output on the Transmission Booster side | DC28 V – 30 V 1.7 A (Maximum loading) | |
| Environmental condition | Temperature | Operating range 0 – 40 °C / 32 – 104 °F Storage range -20 – 60 °C / -4 – 140 °F |
| Humidity | 30 – 90 %RH (No condensation) | |
| Dimensions | 340 (H) × 360 (W) × 59.2 (D) mm / 13 7/16 (H) × 14 3/16 (W) × 2 3/8 (D) in | |
| Weight | 3.4 kg / 7 1/2 lb | |
| Installation Environment | In the metal control panel box (indoor) * This unit is installed and used in a business office or equivalent environment. | |
| Sound Pressure Level | The A-weighted sound pressure level is below 70 dB. | |
Power supply coefficient, power consumption coefficient, and L coefficient
| Power supply coefficient | Power consumption coefficient | L coefficient | |
| TB2 | 0 | 0 | 0 |
| TB3 | 25 | 0 | 0 |
Appearance

Installation
Parts prepared at site
Please prepare the following parts before installation of the unit.
| Preparation parts | Specification |
| Unit fixing screw | M4 screw × 4 pcs |
| Power cable/ Protective earth cable (Ground cable) | Use sheathed vinyl cord or wire. Wire type: Wire should not be lighter than ordinary PVC sheathed flexible cord IEC 60227 (designation 60227 IEC 53) Wire size: 0.75 mm² to 2 mm² (AWG18 to 14) |
| Main power switch (Circuit breaker) | Qty.: 1 pc Type: 250 VAC, Single-phase 3 A |
| Transmission cable | Type of the cable; Sheathed vinyl cords or cable which comply with the following specifications or equivalent. • CPEVS ø1.2 mm to ø1.6 mm • CVVS 1.25 mm² to 2 mm² (AWG16 to 14) * CPEV; PE insulated PVC jacketed shielded communication cable * CVVS; PVC insulated PVC jacketed shielded control cable PE: Polyethylene PVC: Polyvinyl chloride Cable length: Please refer to section “5 Transmission cable length limitation”. |
Installation space and the direction
PAC-SF46EPA Transmission Booster is not waterproof type. Therefore this unit shall be installed in a metal control panel box (steel: thickness 1 mm (3/64 in) or more). Please prepare the metal control panel box in consider with installation space as shown in the The unit shall be also installed in vertical direction only indicated by the arrow making on the cover as shown
Unit installation
Fix the unit to the metal control panel box using M4 screw as shown

CAUTION:
- The unit should be fixed with 4 positions to prevent from unit falling down.
- Install the booster in a location which can withstand a load of 3.4 kg (7 1/2 lb).
- Position the unit, making sure not to drop it.
Wiring
WARNING:
- All electric work must be performed according to local regulations. Improper electrical work may result in electric shock or fire.
- Be sure to shut off the power source of the unit and the all other unit to be connected to the Transmission Booster before wiring.
- Firmly secure the wiring so that it does not become disconnected.
CAUTION:
Do not connect the AC power line to the M-NET and POWER (30 VDC) terminal blocks of this device to prevent unit failure.

- Connect the power supply and transmission wiring. (Refer to 4-2 and 4-3.)
- After connection for the each cable, fasten the each cable with the cable fixture.
- After finishing the wiring, be sure to secure the cover with the screws before turning on the power source.
Power Line
Wire the power cable and protective earth cable (grounding cable) to L/L1, N/L2 and the earth line (grounding line) terminals on the TB1 as shown

M-NET transmission line
Wire the M-NET transmission cable to A, B (non-polarity data) and S (shield) terminals on the TB2 and TB3 as shown

NOTES:
- The shield wire of M-NET transmission line shall be grounded by one point similar to earthing (grounding) method.
- The shield wire shall be connected to the S terminal of the only one unit on the common transmission line.
CAUTION:
- Do not mistake transmission line terminal block 1 (TB2) and transmission line terminal block 2 (TB3) when performing the wiring. The Transmission Booster will not operate correctly if the terminal blocks are connected in reverse.
- Since the M-NET transmission line is 30 VDC, do not mistake it with the power line when performing the wiring. (The machine will be broken if the power line is connected to TB2 or TB3.)
- In order to prevent erroneous operations, do not store the power line and M-NET transmission line banded together or in the same conduit.
- Connect the ground wire certainty. (If the ground wire is not correctly connected, there is a danger of electric shocks or incorrect operations due to the influence of the noise.)
- Never use a megohm tester on the transmission line terminal blocks (TB2 and TB3).
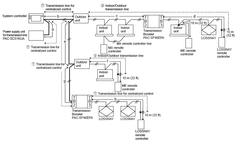
Wiring example

Notes
- The transmission cable is non-polarity two wires.
- Symbol means a screw terminal.
- Ground of transmission cable shall be grounded on the ground terminal of only variable capacity unit. Connect the shield of the shielded cable to the S (shield) terminals on the indoor units or daisy-chain the S (shield) terminals by connecting the shields between the indoor units.
- It is necessary to connect the Transmission Booster according to “6 Supply capacity to transmission line”. Be sure to connect the shied cable at the terminal (S) in the Transmission Booster
Example. Centralized controller and LOSSNAY units

Transmission cable length limitation
Wiring example
The wiring depends on the system configuration. For details, refer to DATA BOOK.

Total wiring length: 500 m (1,640 ft) max. The maximum allowable wiring length of the M-NET transmission line for centralized control system and for Indoor/Outdoor system is shown in the formula below. Refer to the figure above for the alphabet in the formula. If the calculated wiring length exceeds the maximum value, M-NET signal cannot be sent to the end-device and communication/control cannot be made The maximum wiring length for local remote controller is 10 m (32 ft). The section that exceeds 10 m (32 ft) must be included in the total wiring length (500 m (1,640 ft) max.) Transmission line for centralized control: 200 m (656 ft) max. The maximum allowable wiring length from the power supply unit, which is on the transmission line for centralized control, to each outdoor unit and system controller is shown in the formula below. The value shows the maximum length that the power can be supplied to the transmission line for centralized control. If the calculated length exceeds the maximum value, the power cannot be supplied to the end-device and communication/control cannot be made. Indoor/Outdoor transmission line: 200 m (656 ft) max. The maximum allowable wiring length is shown in the formula below. The value shows the maximum length that the power can be supplied to Indoor/Outdoor transmission line. If the length exceeds the maximum value, the power cannot be supplied to the end-device and communication/control cannot be made.
Example for LOSSNAY

NOTES:
- If the total length of the remote controller’s wiring is less than 10 m (32 ft), use 0.75 mm² (AWG18) cable, and do not add their lengths to the length calculations made above.
- If the total length of the remote controller’s wiring is more than 10 m (32 ft), use 1.25 mm² (AWG16) cable or ø1.2 mm or more shielded cable for the length of wiring exceeding 10 m (32 ft), and be sure to add their lengths to the length calculations made above
Supply capacity to the transmission line
In order to ensure proper communication among the Outdoor unit, Indoor unit, LOSSNAY, and OA processing unit GUF-RD(H), and Controllers, the transmission power situation for the M-NET should be observed. In some cases, Transmission Booster should be used.
- Terminal block 1 for transmission line (TB2) Power is not supplied to terminal block 1 for the transmission line. (Supply capacity: 0)
- Terminal block 2 for transmission line (TB3) The power supply coefficient of terminal block 2 for the transmission line is 25. Refer to the latest DATA BOOK for details about the power consumption coefficient of the connected unit model
This product is designed and intended for use in the residential, commercial, and light-industrial environments. The product at hand is based on the following
EU regulations:
- Low Voltage Directive 2014/35/EU
- Electromagnetic Compatibility Directive 89/336/EEC, 2014/30/EU
- Restriction of Hazardous Substances 2011/65/EU




















