MITSUBISHI ELECTRIC PAC-SH48AS-E Space Panel
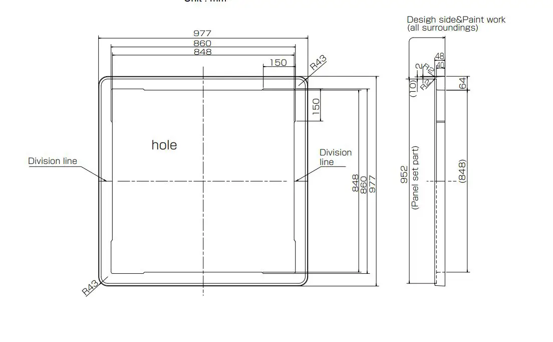
Dimensions
Installation dimension
Descriptions
Enables to install cassete-type indoor units even if the ceiling height is low. A part to the panel 40 milimeters lower than the ceiling surface.
Applicable Models
PLA-RP·BA/BA2/BA3
Specification
How to Use / How to Install
- Checking packed parts
Make sure that you have all the following parts, in addition to this manual in this box:
- Installing space panel
Install before installing decorative panel.
This space panel is to be installed on decorative panel before installing on unit body.
(If decorative panel has already been installed, remove it.)
Preparation for installation
- Checking size of opening in ceiling
OMake sure that opening in ceiling is within the range shown below:
860X 860~910X910 - Positioning of ceiling surface and unit body
Divide the provided gauge for installation (2) into four parts, and insert it into the unit or outlet of Multi-functional casement.
Place the unit in the center of opening in ceiling, referring to the figure below,
Using provided gauge for installation 2, position the ceiling surface and unit body.
If position of ceiling surface and unit body does not match, it may result in leak of draft, drip of dewdrops and incorrect
operation of horizontal vane of decorative panel, etc.
Setting the decorative panel and space panel)
Place the space panel (two locations), matching the flange section of decorative panel, and assemble space panel on the decorative panel and then set them. Be sure to assemble space panel on the decorative panel: If assembled incorrectly. space panel may break.
























