AL1024NK8QP Series Networkable Dual Output Power Supply Charger
Power Supply/Chargers
The AL1024NK8QP Series Networkable Dual Output Power Supply/Chargers are designed for use in access control applications that require a reliable power source. The power supply/chargers come in two models, the AL1024NK8QP and the AL1024NK8DQP. Both models can provide 12VDC or 24VDC (240W total power) that can be selected by output. They also feature eight (8) programmable outputs that are fuse or PTC protected, and two (2) network controlled Form C relays. In addition, both models have a built-in charger for sealed lead acid or gel type batteries. The AL1024NK8QP model has fuse-protected outputs while the AL1024NK8DQP model has PTC-protected outputs that are Class 2 power-limited. The different models have different fuse/PTC ratings and enclosure dimensions as well.
Specifications:
- 12VDC or 24VDC selectable by output
- 240W total power
- Eight (8) programmable outputs
- Two (2) network controlled Form C relays
- Built-in charger for sealed lead acid or gel type batteries
- Fuse or PTC protected outputs depending on model
- Different fuse/PTC ratings and enclosure dimensions depending on model
Installation Guide:
Before installing the AL1024NK8QP Series Networkable Dual Output Power Supply/Chargers, please make sure to read and understand the installation instructions provided in the user manual. The following steps outline a general overview of the installation process:
- Mount unit in desired location.
- Mark and predrill holes in the wall to line up with the top two keyholes in the enclosure.
- Install two upper fasteners and screws in the wall with the screw heads protruding.
- Place the enclosure’s upper keyholes over the two upper screws, level and secure.
- Mark the position of the lower two holes.
- Remove the enclosure.
- Drill the lower holes and install the two fasteners.
- Place the enclosure’s upper keyholes over all four screws, level and secure.
- Connect AC power to the unit.
- Connect the battery (if using).
- Connect all required devices to the power supply/charger.
- Turn on power to the unit and test all connected devices.
Note: Wiring methods should be in accordance with the National Electrical Code/NFPA 70/NFPA 72/ANSI, the Canadian Electrical Code, and with all local codes and authorities having jurisdiction. The product is intended for indoor use only.
Usage Instructions:
After installing the AL1024NK8QP Series Networkable Dual Output Power Supply/Chargers, please follow these usage instructions:
- Select the desired output voltage (12VDC or 24VDC) for each output using the appropriate jumper settings on the power supply/charger.
- Program the eight (8) outputs according to your specific application requirements. The outputs are either fuse or PTC protected depending on the model you have.
- Connect all required devices to the power supply/charger, including any batteries.
- Turn on power to the unit and test all connected devices to ensure proper functionality.
Note: For access control applications, please refer to the battery size calculation worksheet provided in the user manual to determine the appropriate battery capacity for your specific requirements.
Models Include
AL1024NK8QP
- 12VDC and/or 24VDC (240W total power) selectable by output
- Eight (8) programmable fuse protected outputs
- Two (2) network controlled Form “C” relays
- Built-in Charger for sealed lead acid or gel type batteries
AL1024NK8DQP
- 12VDC and/or 24VDC (240W total power) selectable by output
- Eight (8) programmable Class 2 power-limited PTC protected outputs
- Two (2) network controlled Form “C” relays
- Built-in Charger for sealed lead acid or gel type batteries
Overview
Altronix AL1024NK8QP and AL1024NK8DQP convert a 115VAC 60Hz input into eight (8) fuse protected 12VDC or 24VDC outputs with a total of 10A max. Dual input design allows power to be steered from two (2) factory installed independent low voltage 12 or 24VDC Altronix power supplies to eight (8) independently controlled fuse (AL1024NK8QP) or PTC (AL1024NK8DQP) protected outputs. Networkable power distribution module facilitates monitoring, reporting, and control of the supervised DC power supply/charger over the network. It reports diagnostics via Email and Windows Dashboard Alert notifications, greatly reducing system downtime and elimi-nating unnecessary service calls.
Stand-by Specifications (total current shown)
| Output | 15 min. of Stand-by and 5 min. of Alarm | 4 hr. of Stand-by and 5 min. of Alarm | 24 hr. of Stand-by and 5 min. of Alarm | 60 hr. of Stand-by and 5 min. of Alarm |
| 24VDC/12AH Battery | Stand-By = 8A Alarm = 10A | Stand-By = 1.5A Alarm = 10A | Stand-By = 200mA Alarm = 10A | Stand-By = 100mA Alarm = 10A |
| Output | 15 min. of Stand-by and 5 min. of Alarm | 4 hr. of Stand-by and 5 min. of Alarm | 24 hr. of Stand-by and 15 min. of Alarm | 60 hr. of Stand-by and 15 min. of Alarm |
| 24VDC/65AH Battery | – | Stand-By = 8.0A Alarm = 10A | Stand-By = 1.5A Alarm = 10A | Stand-By = 500mA Alarm = 10A |
For Access Control applications, battery capacity for 10A supply current – 1 hr. for 24VDC/12AH battery, 6.5 hrs. for 24VDC/65AH battery.
See battery size calculation worksheet (pg. 11) for other batteries.
Specifications
Agency Listings:
- CE European Conformity.
Inputs:
- AL1024ULXB2: 115VAC, 60Hz, 4.2A.
- LINQ8PD(CB): 24VDC from AL1024ULXB2. 12VDC from VR6 voltage regulator.
Outputs:
Power:
- 12VDC or 5VDC up to 6A, 24VDC up to 10A (240W total power).
- Overvoltage protection.
LINQ8PD:
- Fuse protected outputs rated @ 2.5A per output, non power-limited. Total output 6A max.
- Do not exceed the individual power supply ratings.
LINQ8PDCB:
- PTC protected outputs rated @ 2A per output, Class 2 power-limited. Total output 10A max. Do not exceed the individual power supply ratings.
- Eight (8) selectable independently controlled outputs.
- Individual outputs may be set to OFF position for servicing (output switch set to middle position).
- Power output(s) can be locally or remotely controlled.
- Any of the eight (8) fuse/PTC protected power outputs are selectable to follow power Input 1 or Input 2. Output voltage of each output is the same as the input voltage of the input selected.
- Surge suppression.
Fuse/PTC Ratings:
AL1024ULXB2
- Input fuse is rated 5A/250V.
- Battery fuse rated 15A/32V.
LINQ8PD
- Main input fuse is rated 15A/32V.
- Output fuses are rated 3A/32V.
LINQ8PDCB:
- Main input fuse is rated 15A/32V.
- Output PTCs are rated 2A.
Battery Backup:
- Built-in charger for sealed lead acid or gel type batteries.
- Automatic switch over to stand-by battery when AC fails.
- Maximum charge current 3.6A.
- Zero voltage drop when switched over to battery backup.
Fire Alarm Disconnect:
LINQ8PD(CB):
- Supervised FACP disconnect (Latching or Non-Latching).
- FACP reset (N.C. or N.O.).
Status Monitoring (LINQ8PD(CB)):
- Power Supply’s output voltage and load.
- Voltage and load of each output.
- FACP trigger and reset status.
- Unit temperature (Celsius).
- Power Supply AC and Battery status.
- Battery health.
Programming Features (LINQ8PD(CB)):
- Power Supply’s voltage and load limits (High/Low).
- FACP trigger type (wet or dry – N.O./N.C.).
- Input Function (FACP reset/tamper).
- Output Reset Trigger (N.O./N.C.).
- Battery Monitor Configuration:
- Battery condition (Low/Normal/Missing)
- Service Date
- Configurable Output Relay(s).
- Individual Output Configuration:
- Device ID
- Voltage and Current Limits (High/Low)
- FACP Trigger Setting (latching/non-latching/inactive)
- Battery Backup.
Network Security (LINQ8PD(CB)):
- Secure Socket Layer (SSL).
Supervision:
- AC fail supervision (form “C” contacts).
- Low battery supervision (form “C” contacts).
- Battery presence supervision (form “C” contacts).
Visual Indicators:
AL1024ULXB2:
- Green AC LED: Indicates 115VAC present.
- Red DC LED: Indicates DC output.
LINQ8PD(CB):
- Bat Local LED: Indicates charging current status.
- FACP LED: Indicates FACP disconnect is triggered.
- Input LED: Indicates input signal.
- Out1 – Out8 LEDs: Indicate output status.(see pg. 6 for LINQ8PD(CB) LED Diagnostics).
Environmental:
- Operating temperature: 0ºC to 49ºC ambient.
- Humidity: 20 to 85%, non-condensing.
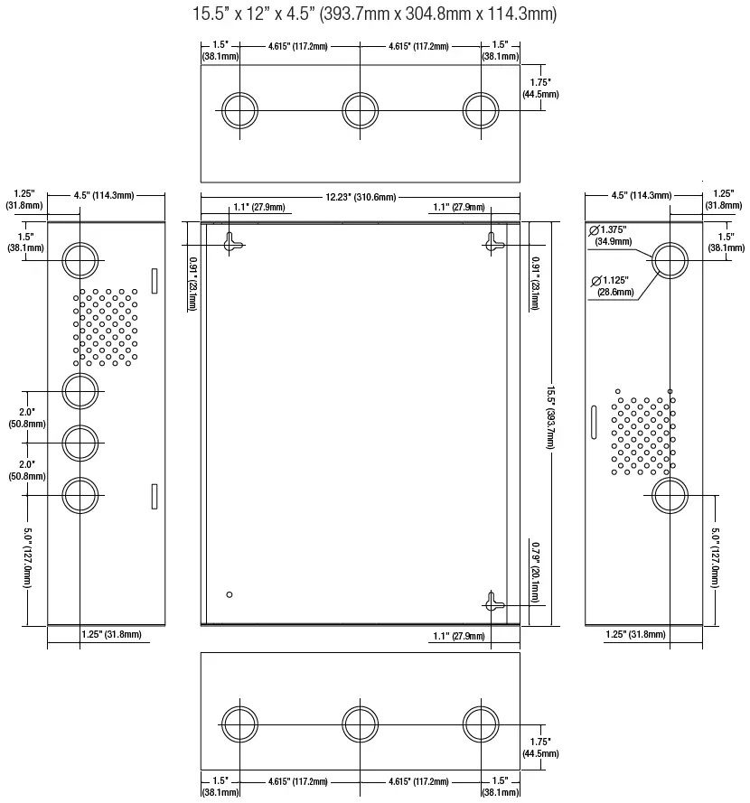
Enclosure Dimensions (approximate H x W x D):
- 15.5” x 12” x 4.5”
- (393.7mm x 304.8mm x 114.3mm).
Installation Instructions
Wiring methods shall be in accordance with the National Electrical Code/NFPA 70/NFPA 72/ANSI, the Canadian Electrical Code and with all local codes and authorities having jurisdiction. Product is intended for indoor use only.
- Mount unit in desired location. Mark and predrill holes in the wall to line up with the top two keyholes in the enclosure. Install two upper fasteners and screws in the wall with the screw heads protruding. Place the enclosure’s upper keyholes over the two upper screws, level and secure. Mark the position of the lower two holes. Remove the enclosure. Drill the lower holes and install the two fasteners. Place the enclosure’s upper keyholes over the two upper screws. Install the two lower screws and make sure to tighten all screws (Enclosure Dimensions, pg. 8). Secure enclosure to earth ground.
- Ensure all output switches [INP1] – [INP8] are placed in the OFF (center) position (Fig. 1, pg. 3).
- Connect unswitched AC power (115VAC 60Hz) to terminals marked [L, N] (Fig. 2a, pg. 5). Green “AC” LED on power supply board will turn on. This light can be seen through the LED lens on the door of the enclosure. Use 14 AWG or larger for all power connections. Secure green wire lead to earth ground. Keep power-limited wiring separate from non power-limited wiring (115VAC 60Hz Input, Battery Wires). Minimum 0.25” spacing must be provided. CAUTION: Do not touch exposed metal parts. Shut branch circuit power before installing or servicing equipment. There are no user serviceable parts inside. Refer installation and servicing to qualified service personnel.

- Set each output [OUT1] – [OUT8] to route power from Input 1 or 2 (Fig. 1, pg. 3).
Note: Measure output voltage before connecting devices. This helps avoiding potential damage. - Turn power off before connecting devices.
- Output Connections: Connect devices to be powered to the terminals marked [– OUT1 +] to [– OUT8 +] on LINQ8PD(CB) carefully observing polarity.
- Stand-by Battery Connections (Fig. 4, pg. 8): For U.S. Access Control applications batteries are optional. Batteries are required for Canadian installations (ULC-S319). When batteries are not used, a loss of AC will result in the loss of output voltage. When the use of stand-by batteries is desired, they must be lead acid or gel type. Power supply’s battery charging circuit is factory connected to the terminals marked [+ BAT IN –]. Connect the battery leads to the terminals marked [+ BAT OUT –] on LINQ8PD(CB) (Fig. 3, pg. 7). Use two (2) 12VDC batteries connected in series for 24VDC operation (battery leads included). Use batteries -Casil CL1270 (12V/7AH), CL12120 (12V/12AH), CL12400 (12V/40AH), CL12650 (12V/65AH) batteries or UL recognized BAZR2 and BAZR8 batteries of an appropriate rating.
- To delay reporting for up to 6 hrs., cut “AC Delay” jumper and reset power to unit (Fig. 2f, pg. 5).
- LINQ8PD(CB) Fire Alarm Interface options: (not evaluated by UL). The Fire Alarm Interface and Reset options are programmable via the web interface. FAI input trigger options: supervised normally closed [NC], normally open [NO], polarity reversal input from signaling circuit or wet input will trigger selected outputs.
- Normally Open [NO] input: Connect the supplied 2.2k resistor in parallel with the normally open trigger circuit to the terminals marked [GND], [FACP EOL].
- Normally Closed [NC] input: Connect the supplied 2.2k resistor in series with the normally closed trigger circuit to the terminals marked [GND], [FACP EOL].
- Signaling Circuit/Wet input trigger: Connect the positive (+) and negative (–) of the signaling circuit/wet input trigger to the terminals marked [FACP IN +] and [FACP IN –].
- Fire Alarm Reset: If a output is programmed to latch with manual reset, connect either a normally open (N.O.) or normally closed (N.C.) dry input to the terminals marked [RESET] and [GND].
- When daisy-chaining fire alarm signals, connect [FACR RLY1] and [FACP RLY2] on the first LINQ8PD(CB) to [GND] and [FACP EOL] of the next board and slide EOL switch to OFF. If dry contact is used, slide EOL switch to ON.
- Turn main power on after all devices are connected.
- Installation of tamper switch:
Mount UL Listed tamper switch (Altronix model TS112 or equivalent) at the top of the enclosure. Slide the tamper switch bracket onto the edge of the enclosure approximately 2” from the right side (Fig. 4a, pg. 8). Connect tamper switch wiring to the Access Control Panel input or the appropriate UL Listed reporting device. To activate alarm signal open the door of the enclosure.
Wiring
Use 18 AWG or larger for all low voltage power connections.
Note: Take care to keep power-limited circuits separate from non power-limited wiring (115VAC, Battery).
Maintenance
Unit should be tested at least once a year for the proper operation as follows:
- Output Voltage Test: Under normal load conditions, the DC output voltage should be checked for proper voltage level AL1024ULXB2: 24VDC nominal rated @ 10A max.
- Battery Test: Under normal load conditions check that the battery is fully charged, check specified voltage (24VDC @ 26.4) both at battery terminal and at the board terminals marked [– BAT +] to ensure that there is no break in the battery connection wires.
Note: Maximum charging current under discharges is 3.6A.
Note: Expected battery life is 5 years, however it is recommended changing batteries in 4 years or less if needed.
Fig. 2 – AL1024ULXB2 Board Configuration

LED Diagnostics
AL1024ULXB2 – Power Supply Board
| Red (DC) | Green (AC) | Power Supply Status |
| ON | ON | Normal operating condition. |
| ON | OFF | Loss of AC. Stand-by battery is supplying power. |
| OFF | ON | No DC output. |
| OFF | OFF | Loss of AC. Discharged or no stand-by battery. No DC output. |
LINQ8PD and LINQ8PDCB Networkable Power Distribution Module
| LED | Flash Codes | Description |
| BAT LOCAL | ON | Charge/Discharge current working properly. |
| Blinking | Charge/Discharge current on the battery exceed limits. | |
| FACP | ON | Fire Alarm Condition. |
| OFF | Normal. | |
| AC | ON | AC trouble. |
| OFF | Normal. | |
| BAT | ON | Battery trouble. |
| OFF | Normal. | |
| OUT1-OUT8 | ON | Output is ON. |
| OFF | Output is OFF. | |
| Blinking | Output is ON and voltage and/or current exceeds limits. |
Terminal Identification
AL1024ULXB2 – Power Supply Board
| Terminal Legend | Function/Description |
| L, N | Connect 115VAC to these terminals: L to hot, N to neutral (Fig. 2a, pg. 5). |
| + DC – | Factory connected to LINQ8PD(CB) (Fig. 2d, pg. 5). |
| AC Fail NC, C, NO | Used to notify loss of AC power, e.g.connect to audible device or alarm panel. Relay normally energized when AC power is present. Contact rating 1A @ 28VDC. AC or brownout fail is reported within 1 minute of event. To delay reporting for up to 6 hrs., cut “AC Delay” jumper and reset power to unit (Fig. 2f, pg. 5). |
| Bat Fail NC, C, NO | Used to indicate low battery condition, e.g. connect to alarm panel. Relay normally energized when DC power is present. Contact rating 1A @ 28VDC. A removed battery is reported within 1 minute. Battery reconnection is reported within 1 minute. Low battery threshold: approximately 21VDC (Fig. 2b, pg. 5). |
| – BAT + | Stand-by battery connections. Maximum charge current 3.6A (Fig. 2c, pg. 5). |
LINQ8PD(CB) Terminal/Connector Identification

| Terminal/Legend | Description | |
| A | GND, RESET | FACP reset. |
| B | GND, FACP EOL | Connects to EOL or next LINQ8PD(CB). |
| C | + RET – | FACP EOL or next LINQ8PD(CB). |
| D | FACP – IN + | Wet input from FACP +. |
| E | FACP RLY 1, 2 | Relay1 Programmable for FACP reporting/dry FACP interconnect to next LINQ8PD(CB) or Tamper. |
| F | BAT Local LED | Indicates battery(ies) thresholds. |
| G | FACP/AC/BAT LEDs | Indicates status of FACP, AC and Battery. |
| H | Heartbeat LED | Indicates the LINQ8PD(CB) is operational. |
| I | RJ45 | Ethernet: LAN or laptop connection enables LINQ8PD(CB) programming and status monitoring. |
| J | USB | Laptop connection enables LINQ8PD(CB) for Network setup and factory restore via Altronix dashboard. |
| K | Battery Fail NC, C | Relay3 – Programmable for Battery Fail reporting or Tamper. Contact rating 1A @ 30VDC. |
| L | AC Fail NC, C | Relay3 – Programmable for AC Fail or AC Fail & Battery Fail reporting. Contact rating 1A @ 30VDC (power-limited). |
| M | – OUT1 + to – OUT8 + | 24VAC/28VAC or 12VDC/24VDC continuous output. |
| N | AC / NC, C | Connection to [AC Fail] terminals on power supply. |
| O | BAT / NC, C | Connection to [BAT Fail] terminals on power supply. |
| P | + BAT OUT – | Connection to stand-by batteries. |
| Q | + BAT IN – | Connection to [+ BAT –] terminals on power supply. |
| R | + INP2 – | Factory connected to VR6. |
| S | + INP1 – | Factory connected to AL1024ULXB2. |
| T | EOL OFF | Internal FACP 2.2K ohm resistor ON/OFF switch. |

CAUTION: Use two (2) 12VDC stand-by batteries.
Keep power-limited wiring separate from non power-limited. Use minimum 0.25” spacing. 12AH Rechargeable batteries are the largest batteries that can fit in this enclosure. A UL listed external battery enclosure must be used if using 40AH or 65AH batteries.

Network Setup
Please be sure to visit altronix.com for latest firmware and installation instructions.
Altronix Dashboard USB Connection:
The USB connection on the LINQ8PD(CB) is used for Network. When connected to a PC via the USB cable the LINQ8PD(CB) will receive power from the USB port allowing programming of the LINQ8PD(CB) prior to being connected to the power supply.
- Install the software supplied with the LINQ8PD(CB) on the PC being used for programming. This software should be installed on all computers that will have access to the LINQ8PD(CB).
- Connect the supplied USB cable to the USB port on the LINQ8PD(CB) and the computer.
- Double click on the Dashboard icon on the desktop of the computer and open the Dashboard.
- Click on the button marked USB Network Setup in the upper hand side of the dashboard. This will open the USB Network Setup screen. In this screen the MAC Address of the LINQ8PD(CB) module will be found along with the Network Settings and Email Settings.
Network Settings
In the IP Address Method field select the method by which the IP Address for the LINQ8PD(CB) will be obtained: “STATIC” or “DHCP”, then follow the appropriate steps.
Static:
- IP Address: Enter the IP address assigned to the LINQ8PD(CB) by the network administrator.
- Subnet Mask: Enter the Subnet of the network.
- Gateway: Enter the TCP/IP gateway of the network access point (router) being used. Note: Gateway configuration is required to properly receive emails from the device.
- Inbound Port (HTTP): Enter the port number assigned to the LINQ8PD(CB) module by the network administrator to allow remote access and monitoring.
- Click the button labeled Submit Network Settings. A dialog box will display “New network settings will take effect after the server is rebooted”. Click OK.
DHCP
- After selecting DHCP in the IP Address Method field click the button labeled Submit Network Settings. A dialog box will display “New network settings will take effect after the server is rebooted”. Click OK. Next, click on the button labeled Reboot Server. After rebooting the LINQ8PD(CB) will be set in the DHCP mode. The IP address will be assigned by the router when the LINQ8PD(CB) is connected to the network. It is recommended to have the assigned IP Address reserved to ensure continued access (see the network administrator).
- Subnet Mask: When operating in DHCP, the router will assign the subnet mask values.
- Gateway: Enter the TCP/IP gateway of the network access point (router) being used.
- HTTP Port: Enter the HTTP port number assigned to the LINQ8PD(CB) module by the network administrator to allow remote access and monitoring. The default inbound port setting is 80. HTTP is not encrypted and unsecure. Even though HTTP can be used for remote access, it is recommended primarily for use with LAN connections.
Secure Network Setup (HTTPS)
In order to setup HTTPS for a Secure Network Connection, a Valid Certificate and Key must be used. Certificates and Key should be in a “.PEM” format. Self Certifications should only be used for testing purposes as no actual authentication is being performed. In a Self-Certified mode, the connection will still state that it is unsecure. How to upload Certificate and Key to setup HTTPS:
- Open Tab Labeled “Security”
- Select Tab Labeled “Email/SSL”
- Scroll to bottom under “SSL Settings”
- Click “Select Certificate”
- Browse and select valid Certificate to upload from server
- Click “Select Key”
- Browse and select valid Key to upload from server
- Click “Submit Files”
Once the Certificate and Key is uploaded successfully you can proceed with setting up HTTPS in Network Settings.
- A. HTTPS Port: Enter the HTTPS port number assigned to the LINQ8PD(CB) module by the network administrator to allow remote access and monitoring. The default inbound port setting is 443. Being encrypted and more secure, HTTPS is highly recommended for remote access.
- B. Click the button labeled Submit Network Settings. A dialog box will display “New network settings will take effect after the server is rebooted”. Click OK.
Browser Setup
When not using the Altronix Dashboard USB connection for the initial Network setup the LINQ8PD(CB) needs to be connected to any DC power supply(ies) or AL1024ULXB2 power supply(ies) being monitored prior to programing.
Factory Default settings
- IP Address: 192.168.168.168
- User Name: admin
- Password: admin
- Set the static IP address for the laptop to be used for programming to the same network IP address as the LINQ8PD(CB), i.e. 192.168.168.200 (default address of the LINQ8PD(CB) is 192.168.168.168).
- Connect one end of the network cable to the network jack on the LINQ8PD(CB) and the other to the network connection of the laptop.
- Open a browser on the computer and enter “192.168.168.168” into the address bar. A dialog box Authentication Required will appear requesting both user name and password. Enter the default values here. Click on the button labeled Log In.
- The status page of the LINQ8PD(CB) will appear. This page displays the real time status and health of each power supply connected to the LINQ8PD(CB).
Battery Size Calculation Worksheet
| A. AL1024NK8(D)QP internal current consumption B. Load current consumption C. Stand-by time required (hours) D. Battery capacity required for stand-by | (stand-by) (stand-by)
(A+B)*C |
| 0.05 A A H AH |
| E. AL1024NK8(D)QP internal power consumption | (Alarm) | 0.05 A | |
| F. Load current consumption | (Alarm) | A | |
| G. Alarm duration (Hours; 15 Min. = 0.25 Hour) | (Alarm) | H | |
| H. Battery capacity required for Alarm | (E+F)*G | AH | |
| I. Total calculated battery capacity | D+H | AH | |
| J. Battery capacity required | I*1.8 (safety factor) | AH |
Note: AL1024NK8(D)QP power supply is designed to work with batteries up to 65AH.
Please note: line [I] must not exceeds 36AH.
You have to reduce either stand-by current consumption or stand-by time in order to comply with requirement. To determine actual battery size please round line [J] to the nearest larger standard battery size (e.g. 3.5 AH = 4.0 AH).
Enclosure Dimensions (BC400)
15.5” x 12” x 4.5” (393.7mm x 304.8mm x 114.3mm)

Altronix is not responsible for any typographical errors.
140 58th Street, Brooklyn, New York 11220 USA | phone: 718-567-8181 | fax: 718-567-9056
website: www.altronix.com | e-mail: [email protected] | Lifetime Warranty IIAL1024NK8QP Series B23V






















