TOTO MS854114S UltraMax One Piece Toilet

FEATURES
- G-Max® flushing system, high efficiency (1.6GPF/6.0LPF)
- CEFIONTECT® ceramic glaze minimizes waste from sticking to porous ceramic surfaces
- One-piece decorative toilet with high-profile tank
- Chrome trip lever
- Elongated front bowl with SoftClose® seat (SS114) or round front bowl with SoftClose seat (SS113)
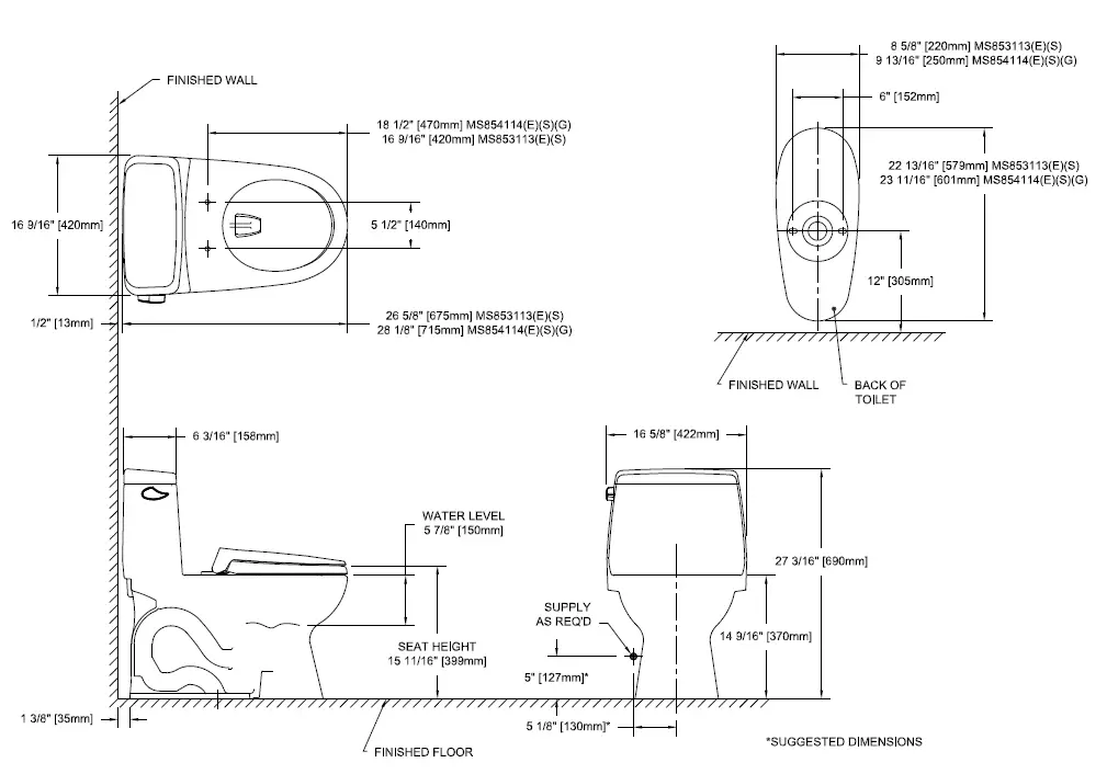
- 12″ Rough-in
MODELS
- MS854114SG Elongated bowl with CeFiONtect and SoftClose seat (SS114)
- MS854114S Elongated bowl with SoftClose seat (SS114)
- MS853113S Round bowl with SoftClose seat (SS113)
COLORS/FINISHES
- Standard
- #01 Cotton
- #03 Bone
- #11 Colonial White
- #12 Sedona Beige
PRODUCT SPECIFICATION
The one-piece high efficiency G-Max flushing system toilet shall be 1.6GPF/6.0LPF. Toilet shall be of elongated front bowl (MS854) or round front bowl (MS853) with a low-profile tank and SoftClose seat. Toilet shall have chrome trip lever. Toilet shall have optional CeFiONtect ceramic glaze. Toilet shall be TOTO Model MS85____________.
CODES/STANDARDS
- Meets and exceeds ASME A112.19.2/CSA B45.1
- Certifications: IAPMO(cUPC), State of Massachusetts, City of Los Angeles, and others
- Code compliance: UPC, IPC, NSPC, NPC Canada, and others
SPECIFICATIONS
- Water Use 1.6 GPF/6.0LPF
- Flush System G-Max®
- Min. Water Pressure 8 psi (static)
- Water Surface 10-1/4″ x 8-1/4″
- Trap Diameter 2-1/8″
- Rough-in 12″
- Trap Seal 2-3/8″
- Warranty One Year Limited Warranty
- Material Vitreous china
- Shipping Weight MS854114S(G) 93 lbs. MS853113S(G) 91 lbs.
- Shipping Dimensions 30-3/4″ L x 18-1/8″W x 27-1/8″ H
INSTALLATION NOTES
Back-to-Back Toilet Installations: TOTO recommends the use of a nationally listed, double sanitary tee-wye only, in vertical waste stacks, in accordance with the stipulations noted in the majority of nationally recognized plumbing codes.

To maintain adequate wall gap between the back of the tank and wall, mount the floor flange at a nominal 12” rough-in distance.
DIMENSIONS

- These dimensions and specifications are subject to change without notice
Ph: (888) 295-8134 | Fax: (800) 699-4889 | www.totousa.com | © TOTO USA

















