MS604124CEF UltraMax II One Piece Toilet
User Guide
MS604124CEF(R)(G)
UltraMax ® II One-Piece Toilet, 1.28GPF
MS604124CEF UltraMax II One Piece Toilet
TORNADO FLUSH
CEFIONTECT
FEATURES
- TORNADO FLUSH® system, high-efficiency (1.28GPF/4.8LPF)
- CEFIONTECT® ceramic glaze minimizes waste from sticking to porous ceramic surfaces
- Universal Height
- Decorative one-piece design with high-profile tank
- Elongated front bowl with SoftClose® seat SS124
- Chrome trip lever
- 12″ Rough-in, supply line sold separately
MODELS
- MS604124CEFG
With CEFIONTECT ceramic glaze & SoftClose seat SS124 (#01, #03, #11, #12) - MS604124CEFRG
Same as above with right-hand trip lever (#01 Only) - MS604124CEF
Without CEFIONTECT, but includes SoftClose seat SS124 (#51)
COLORS/FINISHES
• #01 Cotton
#03 Bone
#11 Colonial White
#12 Sedona Beige
#51 Ebony
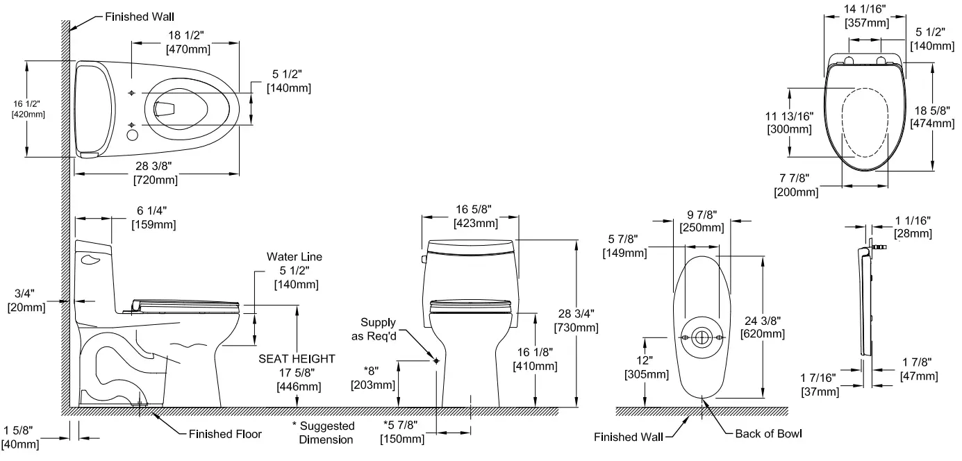
PRODUCT SPECIFICATION
The one-piece high-efficiency TORNADO FLUSH system toilet shall be 1.28GPF/4.8LPF. Toilet shall have CEFIONTECT ceramic glaze and be at Universal Height. Toilet shall have high-profile tank, elongated front bowl and Chrome trip lever. Toilet shall be TOTO Model MS604124CEF_____.
CODES/STANDARDS
- Meets and exceeds ASME A112.19.2/CSA B45.1
- Certifications: IAPMO(cUPC), EPA Watersense, State of Massachusetts , City of Los Angeles, and others
- Code compliance: UPC, IPC, NSPC, NPC Canada, and others
- Legislative Compliance: California AB715, CALGreen Title 24, City of Los Angeles Water Efficiency Ordinance, California Energy Commission Standards
- BAA Buy American Act Compliant
- ADA compliant (when installed with trip lever located on the approach side)
- Complies with CA Prop 65 warning requirements
SPECIFICATIONS
| • Water Use | 1.28 GPF/4.8LPF |
| • Flush System | TORNADO FLUSH |
| • Min. Water Pressure | 8 psi (static) |
| • Water Surface | 7-1/8″ x 9-1/8″ |
| • Trap Diameter | 2-1/8″ |
| • Rough-in | 12″ |
| • Trap Seal | 2-1/8″ |
| • Warranty | One Year Limited Warranty |
| • Material | Vitreous china |
| • Shipping Weight | 99 lbs. |
| • Shipping Dimensions | 32″L x 20″W x 17-3/4″HYES NO 1 x 28-3/4″H 2 |
INSTALLATION NOTES
Back-to-Back Toilet Installations:
TOTO recommends the use of a nationally listed, double sanitary tee-wye only, in vertical waste stacks, in accordance with the stipulations noted in the majority of nationally
recognized plumbing codes.
Install this product according to the installation guide.
To maintain adequate wall gap between the back of the tank and wall, mount the floor flange at a nominal 12” rough-in distance.
Ultra-low high efficiency toilets require a system with adequate supplemental flows from other water usage fixtures and a 4” ID drainline with minimum 2% slope and maximum linear runs of 60ft. Will comply with ADA when installed per Section 604
Water Closetsand Toilet Compartments of the ADA 2010 Accessible Design Standard with seat height between 17” to 19”, trip lever on approach side and flush actuation force of less than 5lbs.
Will comply with CSA B651 when installed per Clause 6.2.6 Toilets of the CSA 2012 Accessible Design Standard with seat height between 17” to 19”, trip lever on approach side and flush actuation force of less than 5lbs.
These dimensions and specifications are subject to change without notice
Ph: (888) 295-8134
Fax: (800) 699-4889
www.totousa.com
© TOTO USA![]()


















