TRANE FIACURB402, FIACURB802 Roof Curb Precedent Packaged Rooftop Units

SAFETY WARNING
Only qualified personnel should install and service the equipment. The installation, starting up, and servicing of heating, ventilating, and air-conditioning equipment can be hazardous and requires specific knowledge and training. Improperly installed, adjusted or altered equipment by an unqualified person could result in death or serious injury. When working on the equipment, observe all precautions in the literature and on the tags, stickers, and labels that are attached to the equipment.
Introduction
Read this manual thoroughly before operating or servicing this unit.
Warnings, Cautions, and Notices
Safety advisories appear throughout this manual as required. Your personal safety and the proper operation of this machine depend upon the strict observance of these precautions.
- WARNING: Indicates a potentially hazardous situation which, if not avoided, could result in death or serious injury.
- CAUTION: Indicates a potentially hazardous situation which, if not avoided, could result in minor or moderate injury. It could also be used to alert against unsafe practices.
- NOTICE: Indicates a situation that could result in equipment or property-damage only accidents.
Important Environmental Concerns
Scientific research has shown that certain man-made chemicals can affect the earth’s naturally occurring stratospheric ozone layer when released to the atmosphere. In particular, several of the identified chemicals that may affect the ozone layer are refrigerants that contain Chlorine, Fluorine and Carbon (CFCs) and those containing Hydrogen, Chlorine, Fluorine and Carbon (HCFCs). Not all refrigerants containing these compounds have the same potential impact to the environment. Trane advocates the responsible handling of all refrigerants-including industry replacements for CFCs and HCFCs such as saturated or unsaturated HFCs and HCFCs.
Important Responsible Refrigerant Practices
Trane believes that responsible refrigerant practices are important to the environment, our customers, and the air conditioning industry. All technicians who handle refrigerants must be certified according to local rules. For the USA, the Federal Clean Air Act (Section 608) sets forth the requirements for handling, reclaiming, recovering and recycling of certain refrigerants and the equipment that is used in these service procedures. In addition, some states or municipalities may have additional requirements that must also be adhered to for responsible management of refrigerants. Know the applicable laws and follow them.
WARNING
Proper Field Wiring and Grounding Required!
Failure to follow code could result in death or serious injury. All field wiring MUST be performed by qualified personnel. Improperly installed and grounded field wiring poses FIRE and ELECTROCUTION hazards. To avoid these hazards, you MUST follow requirements for field wiring installation and grounding as described in NEC and your local/state/national electrical codes
WARNING
Personal Protective Equipment (PPE) Required!
Failure to wear proper PPE for the job being undertaken could result in death or serious injury. Technicians, in order to protect themselves from potential electrical, mechanical, and chemical hazards, MUST follow precautions in this manual and on the tags, stickers, and labels, as well as the instructions below:
- Before installing/servicing this unit, technicians MUST put on all PPE required for the work being undertaken (Examples; cut resistant gloves/sleeves, butyl gloves, safety glasses, hard hat/bump cap, fall protection, electrical PPE and arc flash clothing). ALWAYS refer to appropriate Safety Data Sheets (SDS) and OSHA guidelines for proper PPE.
- When working with or around hazardous chemicals, ALWAYS refer to the appropriate SDS and OSHA/GHS (Global Harmonized System of Classification and Labeling of Chemicals) guidelines for information on allowable personal exposure levels, proper respiratory protection and handling instructions.
- If there is a risk of energized electrical contact, arc, or flash, technicians MUST put on all PPE in accordance with OSHA, NFPA 70E, or other country-specific requirements for arc flash protection, PRIOR to servicing the unit. NEVER PERFORM ANY SWITCHING, DISCONNECTING, OR VOLTAGE TESTING WITHOUT PROPER ELECTRICAL PPE AND ARC FLASH CLOTHING. ENSURE ELECTRICAL METERS AND EQUIPMENT ARE PROPERLY RATED FOR INTENDED VOLTAGE.
Follow EHS Policies!
Failure to follow instructions below could result in death or serious injury.
- All Trane personnel must follow the company’s Environmental, Health and Safety (EHS) policies when performing work such as hot work, electrical, fall protection, lockout/tagout, refrigerant handling, etc. Where local regulations are more stringent than these policies, those regulations supersede these policies.
- Non-Trane personnel should always follow local regulations.
Copyright
This document and the information in it are the property of Trane, and may not be used or reproduced in whole or in part without written permission. Trane reserves the right to revise this publication at any time, and to make changes to its content without obligation to notify any person of such revision or change.
Trademarks
All trademarks referenced in this document are the trademarks of their respective owners.
General Information
This manual describes the layout and installation procedures required to properly assemble and install the roof curb. Each curb package ships unassembled, along with the required hardware and gasketing material. Roof insulation, cant strips, flashing (if desired), nails, and sheet metal screws must be furnished by the installing contractor.
Important: DO NOT discard EPS foam panels
Inspection
- Unpack all components of the kit.
- Check carefully for shipping damage. If any damage is found, report it immediately, and file a claim against the transportation company.
- Visually inspect the components for shipping damage as soon as possible after delivery, before it is stored. Concealed damage must be reported within 15 days.
- If concealed damage is discovered, stop unpacking the shipment.
- Do not remove damaged material from the receiving location. Take photos of the damage, if possible. The owner must provide reasonable evidence that the damage did not occur after delivery.
- Notify the carrier’s terminal of damage immediately by phone and by mail. Request an immediate joint inspection of the damage by the carrier and the consignee.
Note: Do not attempt to repair any damaged parts until the parts are inspected by the carrier’s representative.
Clearances
The recommended clearances for single-unit installations (minimum requirements) are not only an important consideration when determining unit placement, but they are also essential to ensure adequate serviceability, maximum capacity, and peak operation efficiency. Any reduction of the unit clearances indicated in these illustrations may result in condenser coil starvation, or the recirculation of warm condenser air. Actual clearances which appear to be inadequate should be reviewed with a local sales engineer.
Installation
Read the entire manual carefully to become familiar with the roof curb installation procedures. If the roof curb will be mounted on a new building, it can be assembled at any convenient location and installed as soon as the roof support members are in place. As a general rule, the curb should be placed directly on the roof support members. Use tack welding or other suitable fastening method to secure the roof curb in place. The curb can also be mounted on a roof deck. In this case, additional nailing plates must be provided directly below the flanges of the curb to give further support and to minimize vibration. When the installation is on an existing building, hoist the shipping container directly onto the roof.
Supply and Return Air Ductwork
All ductwork must be run and attached to the curb before the unit is set into place. All ductwork must be fabricated and installed by the installing contractor. To ensure proper duct construction and installation, SMACNA recommendations should be closely followed.
Note: All field fabricated panels used must be insulated.
Roof Opening
For safety and sound considerations, do not cut out the entire roof deck within the curb area.
Heavy Objects
Failure to follow instructions below could result in unit dropping which could result in death or serious injury, and equipment or property-only damage. Ensure that all the lifting equipment used is properly rated for the weight of the unit being lifted. Each of the cables (chains or slings), hooks, and shackles used to lift the unit must be capable of supporting the entire weight of the unit. Lifting cables (chains or slings) may not be of the same length. Adjust as necessary for even unit lift.
Important: Refer to weight tables for specific weights within this piece. Units may be set either lateral or parallel to the roof support members. The combined weight of the unit, accessories, and curb should be evenly spaced between a minimum of two supports. Verify the curb position on the roof supports does not interfere with the clearance required for the supply/return ductwork. See figure Figure 2, p. 8.
Roof Curb Installation
Parts List
- Two (2) ends
- Two (2) sides
- Three (3) long duct supports
- Two (2) short duct supports
- Three (3) insulation supports
- Three (3) sheets of EPS foam insulation
- Gasket
There are more attachment locations (raised triangular shaped corner slots) than actual component attachments. To assemble the roof curb, use a tape measure to verify components are in the correct orientation. Use the dimensions from the diagram to locate the correct attachment slots for the internal supports.
- Set the two sides and two ends on a flat surface to form a square, with the wood nailers facing the outside. See the following figure.

Note: Assembling a long duct support will hold the sides in place while fastening ends. - Join the sides and ends together with the 1/4 x 5/8 screws provided.
- Assemble a long (46.18 inch) duct support between the two sides (return section).
- The first duct support 18.25 inch from either end by inserting the tabs on each end of the duct support into the appropriate triangular shaped slots. See the following figure.
- Insert the other two long duct supports as shown on the top view (supply section).See the following figure. Verify the 5.18 inch and 18.5 inch dimensions between long duct supports.

- At 10.25 inches from the side, locate the position for the short duct support that fits between the first long duct support and the end.
- Insert the support flanges into the appropriate corner catches. Verify the 10.25 inch dimension. See the following figure.
- Insert the second short duct support between the middle and right long duct supports. Verify the 10.25 inch dimension from the duct support to the side (in line with previously assembled short duct support). See the following figure.

- Insert the three insulation supports between the right end and the closest long duct support and insert the tabs into the slots in the top of the end piece. See the following figure.

- Install three pieces of foam insulation and gasket. See the following figure.

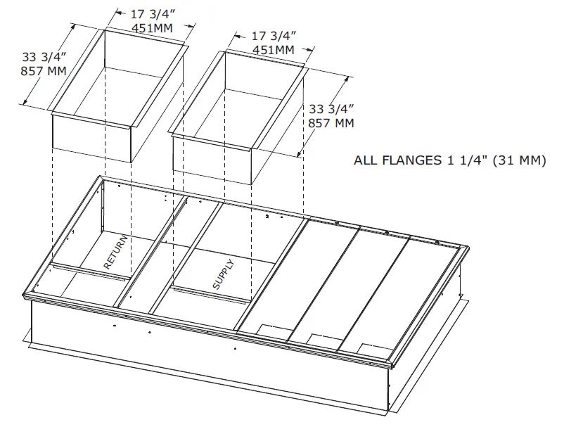
Figure 1. Curb dimensional data
Note: Curb plenum drops/duct inserts are designed and tested to hold 250 lbs. Verify duct drops are supported per local building codes.

Figure 2. Curb dimensional data

Weights and Center of Gravity
Table 1. Maximum unit and corner weights (lbs) and center of gravity dimensions (in.) – cooling models
| Tons | Unit Model No. | Maximum Model Weights(a) | Corner Weights(b) | Center of Gravity (in.) | |||||
| Shipping | Net | A | B | C | D | Length | Width | ||
| 6 | TSJ072 | 1007 | 909 | 331 | 308 | 177 | 190 | 43 | 19 |
| 7.5 | TSJ090 | 1011 | 913 | 332 | 310 | 178 | 191 | 43 | 19 |
| 8 | TSJ102 | 1027 | 929 | 337 | 315 | 181 | 194 | 43 | 19 |
| 10 | TSJ120 | 1037 | 939 | 341 | 318 | 183 | 196 | 43 | 19 |
- (a) Weights are approximate.
- (b) Corner weights are given for information only.
Table 2. Maximum unit and corner weights (lbs) and center of gravity dimensions (in.) – gas/electric models
| Tons | Unit Model No. | Maximum Model Weights(a) | Corner Weights(b) | Center of Gravity (in.) | |||||
| Shipping | Net | A | B | C | D | Length | Width | ||
| 6 | YSJ072 | 1107 | 1009 | 364 | 339 | 195 | 209 | 43 | 19 |
| 7.5 | YSJ090 | 1111 | 1013 | 365 | 340 | 196 | 210 | 43 | 19 |
| 8 | YSJ102 | 1127 | 1029 | 370 | 345 | 199 | 213 | 43 | 19 |
| 10 | YSJ120 | 1137 | 1039 | 374 | 348 | 200 | 215 | 43 | 19 |
Note: Unit is to be supported continuously by a curb or equivalent frame support.
- (a) Weights are approximate.
- (b) Corner weights are given for information only.
Figure 3. Center of gravity

Weights and Center of Gravity
Figure 4. Center of gravity

Table 3. Factory installed options (fiops)/accessory net weights (lbs) (a),(b)
|
Accessory | T/YS*072-120 |
| 6, 7.5, 8.5, 10 Tons | |
| Barometric Relief | 10 |
| Economizer | 36 |
| Electric Heaters | 44 |
| Hinged Doors | 12 |
| Low Leak Economizer | 91 |
| Manual Outside Air Damper | 26 |
| Motorized Outside Air Damper | 30 |
| Oversized Motor | 14 |
| Powered Convenience Outlet | 38 |
| Powered Exhaust | 80 |
| Reheat Coil | 16 |
| Roof Curb | 105 |
| Smoke Detector, Supply | 5 |
| Smoke Detector, Return | 7 |
| Stainless Steel Heat Exchanger | 6 |
| Through-the-Base Electrical | 13 |
| Through-the-Base Gas | 5 |
| Unit Mounted Circuit Breaker | 5 |
| Unit Mounted Disconnect | 5 |
Trane and American Standard create comfortable, energy efficient indoor environments for commercial and residential applications. For more information, please visit trane.com or americanstandardair.com.
Trane and American Standard have a policy of continuous product and product data improvement and reserve the right to change design and specifications without notice. We are committed to using environmentally conscious print practices.
























