ENGINEERING
TOMORROW
Service and
4525V Vickers® Vane Pumps
AX438766875848en-000101
Owner’s Manual
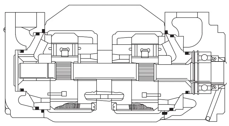
2525V Vickers Vane Double Pumps
| MODEL | ■ RING | Cover End ■ CART. KIT | Cover End ■ F3 CART. KIT |
| 2525V***12 | 584610 | 02-142798 | 02-151631 |
| 2525V***14 | 584612 | 02-102773 | 02-151632 |
| 2525V***17 | 584614 | 02-142799 | 02-151633 |
| 2525V***21 | 584616 | 02-142800 | 02-151634 |

Included in shaft end cartridge kit
Included in cover end cartridge kit
Included in seal kit 922865 F3 equivalent seal kit 919345
Included in foot bracket kit FB—C-10 Assemble seal with spring loaded sealing member towards bearing. Seals to be completely wetted with oil prior to assembly.
* Install 419675 sealing ring into body, then install cartridge kit.
| MODEL | •RING | Shaft End •CART KIT | Shaft End |
| •F3 CART KIT | |||
| 2525V42 | 581679 | 02-102797 | 02-151636 |
| 2525V50 | 581680 | 02-102797 | 02-151636 |
| 2525V60 | 588904 | 02-102797 | 02-151636 |

| MODEL | COVER | HOUSING | BODY S/A |
| 2525V**A | 231532 | 634941 | 942353 |
| 2525V**C | 242250 | 942378 | |
| 2525V**E | 242250 | 942353 | |
| 2525VM**A | 231532 | 02-136917 | |
| 2525VM**AM | 478511 | 913416 | 02-136918 |
| SHAFT | TYPE | KEY |
| 502468 | (86) keyed | 3418 |
| 989296 | (174) splined | — |
| 875987 | (192N) keyed | 472270 |
NOTE For satisfactory service life of these components in industrial applications, use full flow filtration to provide fluid which meets ISO cleanliness code 16/13 or cleaner. OFR OFR, and OFRS series filters are recommended.

Model Code

- Special seals
- Series designation
Displacements cm3/r (in3/r)Model Shaft end Cover end 2525V 40 -67
(2.45-4.12)40- 67
(2.45-4.12) - Pilot designation
M — Metric per ISO 3019/2 100A2HW
Omit — Standard pilot - Geometric displacement
Shaft end pump
(Rated capacity (USgpm) at 1200 rpm, 6.9 bar (100 psi)Frame size Code cm3/r in3/r 2525V 12
14
17
2140
45
55
672.45
2.76
3.37
4.12 - Port connections
Code Inlet Outlet #1 Outlet #2 A — 4 bolt flange 4 bolt flange 4 bolt flange C — 4 bolt flange SAE straight thread SAE straight thread E — 4 bolt flange 4 bolt flange SAE straight thread - Port connection modifier
M — Metric port connection (4 bolt flange)
Omit — Inch thread port connection (4 bolt flange) - Geometric displacement
Cover end pump
(Rated capacity (USgpm) at 1200 rpm, 6.9 bar (100 psi)Frame size Code cm3/r in3/r 2525V 12 40 2.45 14 45 2.76 17 55 3.37 21 67 4.12 - Mounting
F — Foot mounting
Omit — Flange mounting - Shaft
86 — Heavy duty straight keyed
174 — Splined
192N — Straight keyed (M pilot only) - Port orientation
(Viewed from cover end of pump)
With no. 1 outlet opposite inlet
AA — No. 2 outlet 135° CCW from inlet
AB — No. 2 outlet 45° CCW from inlet
AC — No. 2 outlet 45° CW from inlet
AD — No. 2 outlet 135° CW from inlet
With no. 1 outlet 90° CCW from inlet
BA — No. 2 outlet 135° CCW from inlet
BB — No. 2 outlet 45° CCW from inlet
BC — No. 2 outlet 45° CW from inlet
BD — No. 2 outlet 135° CW from inlet
With no. 1 outlet inline with inlet
CA — No. 2 outlet 135° CCW from inlet
CB — No. 2 outlet 45° CCW from inlet
CC — No. 2 outlet 45° CW from inlet
CD — No. 2 outlet 135° CW from inlet
With no. 1 outlet 90° CW from inlet
DA — No. 2 outlet 135° CCW from inlet
DB — No. 2 outlet 45° CCW from inlet
DC — No. 2 outlet 45° CW from inlet
DD — No. 2 outlet 135° CW from inlet - Design
- Rotation
(Viewed from shaft end of pump)
L — Left hand for counterclockwise
R — Right hand for clockwise

NOTE Standard right hand shaft rotation cartridges shown. Reverse for left hand rotation.
NOTE To reverse cartridge kit rotation, remove the two screws and reverse the location of the inlet support plate and the outlet sup-port plate. Reinstall the two screws hand tight. Use pump cover to align all sections of the cartridge. Carefully remove the cov-er and tighten the screws.
NOTE When ordering spare cartridge parts, it is recommended they be obtained in car-tridge kits. Kits are assembled and tested for either right or left hand rotation. If left hand rotation is required, it should be spe-cified on parts order by adding suffix “11 to cartridge kit number.
Products we offer
| • Cartridge valves | • PLUS+1® controllers |
| • DCV directional control valves | • PLUS+1® displays |
| • Electric converters | • PLUS+1® joysticks and pedals |
| • Electric machines | • PLUS+1® operator interfaces |
| • Electric motors | • PLUS+1® sensors |
| • Gear motors | • PLUS+1® software |
| • Gear pumps | • PLUS+1® software services, support and training |
| • Hydraulic integrated circuits (HICs) | • Position controls and sensors |
| • Hydrostatic motors | • PVG proportional valves |
| • Hydrostatic pumps | • Steering components and systems |
| • Orbital motors | • Telematics |
Danfoss Power Solutions is a global manufacturer and supplier of high-quality hydraulic and electric components. We specialize in providing state-of-the-art technology and solutions that excel in the harsh operating conditions of the mobile off-highway market as well as the marine sector. Building on our extensive applications expertise, we work closely with you to ensure exceptional performance for a broad range of applications. We help you and other customers around the world speed up system development, reduce costs and bring vehicles and vessels to market faster.
Danfoss Power Solutions – your strongest partner in mobile hydraulics and mobile electrification.
Go to www.danfoss.com for further product information.
We offer you expert worldwide support for ensuring the best possible solutions for outstanding performance. And with an extensive network of Global Service Partners, we also provide you with comprehensive global service for all of our components.
Local address:………
Hydro-Gear
www.hydro-gear.com
Daikin-Sauer-Danfoss
www.daikin-sauer-danfoss.com
| Danfoss Power Solutions (US) Company 2800 East 13th Street Ames, IA 50010, USA Phone: +1 515 239 6000 | Danfoss Power Solutions GmbH & Co. OHG Krokamp 35 D-24539 Neumünster, Germany Phone: +49 4321 871 0 |
| Danfoss Power Solutions ApS Nordborgvej 81 DK-6430 Nordborg, Denmark Phone: +45 7488 2222 | Danfoss Power Solutions Trading (Shanghai) Co., Ltd. Building #22, No. 1000 Jin Hai Rd Jin Qiao, Pudong New District Shanghai, China 201206 Phone: +86 21 2080 6201 |
Danfoss can accept no responsibility for possible errors in catalogues, brochures and other printed material. Danfoss reserves the right to alter its products without notice. This also applies to products already on order provided that such alterations can be made without subsequent changes being necessary in specifications already agreed.
All trademarks in this material are property of the respective companies. Danfoss and the Danfoss logotype are trademarks of Danfoss A/S. All rights reserved.
Rev. 04-01-92



















