Altronix Maximal11FE Maximal Expandable Power Systems
MaximalFE Overview
Maximal Expandable Power Systems provide system designers and installers with optimum power choices and the highest levels of versatility. They provide 12VDC, 24VDC, or 12VDC and 24VDC simultaneously via two (2) single output power supply/chargers. Includes AC fail, low battery, and battery presence monitoring. Enclosure accommodates up to four (4) 12VDC/12AH batteries. All interconnecting equipment must be UL Listed
MaximalFE Features
Input:
- 120VAC, 60Hz.
Output:
- For output voltage and supply current, refer to MaximalFE series Configuration Chart, pg. 5.
- Auxiliary Class 2 power-limited output rated @ 1A (unswitched).
- Overvoltage protection.
Battery Backup:
- Built-in charger for sealed lead acid or gel type batteries.
- Maximum charge current 1.54A.
- Automatic switch over to stand-by battery when AC fails.
- Transfer to stand-by battery power is instantaneous with no interruption.
Fire Alarm Disconnect:
- Supervised Fire Alarm disconnect (latching or nonlatching) 10K EOL resistor. Operates on a normally open (NO) or normally closed (NC) trigger.
Supervision:
- AC fail supervision (form “C” contacts).
- Battery fail and presence supervision (form “C” contacts).
- Low power shutdown. Shuts down DC output terminals if battery voltage drops below 71-73% for 12V units and 70-75% for 24V units (depending on the power supply). Prevents deep battery discharge.
Fuse Ratings
- Refer to MaximalFE series Configuration Chart, pg. 5.
Visual Indicators
- Green AC Power LED indicates 120VAC present.
- AC input and DC output LED indicators.
Additional Features
- Short circuit and overload protection.
- Unit is complete with power supply, enclosure, battery leads and cam lock
Maximal11FE only: This unit is classified as Class 2 Power-Limited stand alone power supply with stand-by battery and it is suitable to power sensors, electro-mechanical devices (e.g. electric door strikes) . Maximal13FE has one Class 2 power-limited board (eFlow4NB) and one non power-limited (eFlow6NB). Maximal33FE, Maximal35FE, Maximal37FE, Maximal55FE, Maximal75FE, Maximal77FE: The DC output for these power supplies are not power-limited. If a power-limited output is required in the end-product application, the DC output from the power supply must be connected to a separately Listed control unit or accessory board that provides power-limited outputs. The product(s) providing the power-limited output(s) must be listed as appropriate for the particular end-product application (access control), and wired in accordance with the products installation instructions. Class 1 wiring methods, separation of circuits, and proper fire-rated enclosures all must be considered when connecting the DC output of the power supply to the end-product devices. The auxiliary outputs of these units are power-limited.
Agency Listings

- ANSI/UL 294 7th Ed. Access Control Performance Levels:
- Destructive Attack – I; Endurance – I; Line Security – I; Stand-by Power – II, III, IV.
- ULC-S319-05 Electronic Access Control Systems will be invalidated through the use of any add-on, expansion, memory or other module manufactured by the manufacturer or other manufacturers.
MaximalFE Series Configuration Chart:

MaximalFE Installation Instructions:
Wiring methods shall be in accordance with the National Electrical Code/NFPA 70/ANSI, the Canadian Electric Code, Part I, Part II, and with all local codes and authorities having jurisdiction. Product is intended for indoor use only
- Power Supply Board Terminal Identification
- Power Supply Board LED Diagnostics
- Power Supply Board Output Voltage Settings
- Power Supply Stand-by Battery Specifications
- Mount unit in desired location. Mark and predrill holes in the wall to line up with the top three keyholes in the enclosure. Install three upper fasteners and screws in the wall with the screw heads protruding. Place the enclosure’s upper keyholes over the three upper screws; level and secure. Mark the position of the lower three holes. Remove the enclosure. Drill the lower holes and install the three fasteners. Place the enclosure’s upper keyholes over the three upper screws. Install the three lower screws and make sure to tighten all screws (Enclosure Dimension,
- Connect unswitched AC power (120VAC 60Hz) to terminals marked [L, N] (Fig. 2, pg. 9). Green “AC” LED on power supply board will turn on. This light can be seen through the LED lens on the door of the enclosure. Use 14 AWG or larger for all power connections. Secure green wire lead to earth ground. For Fire Alarm applications the outputs are “Special Applications” only. Keep power-limited wiring separate from non power-limited wiring (120VAC 60Hz Input, Battery Wires). Minimum 0.25” spacing must be provided.
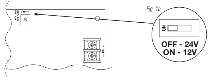
CAUTION: Do not touch exposed metal parts. Shut branch circuit power before installing or servicing equipment. There are no user serviceable parts inside. Refer installation and servicing to qualified service personnel. - Select desired DC output voltage by setting SW1 to the appropriate position, (Maximal11FE, Maximal13FE, Maximal33FE, Maximal35FE and Maximal37FE) Maximal55FE power supplies are factory set at 12VDC. Maximal77FE power supplies are factory set at 24VDC. Maximal75FE power supplies are factory set at 12VDC and 24VDC (Power Supply Board Stand-by Battery Specifications,
- Measure output voltage before connecting devices. This helps avoiding potential damage.
- Connect devices or Altronix sub-assembly modules to be powered to the terminals marked [– DC +] For auxiliary device connection, this output will not be affected by Low Power Disconnect or Fire Alarm Interface. Connect device to the terminals marked [+ AUX –] Refer to page 3 for non power-limited applications.
- For Access Control applications batteries are optional. When batteries are not used, a loss of AC will result in the loss of output voltage. When the use of stand-by batteries is desired, they must be lead acid or gel type. Connect battery to the terminals marked [– BAT +] . Use two (2) 12VDC batteries connected in series for 24VDC operation (battery leads included). Use batteries Casil CL1270 (12V/7AH), CL12120 (12V/12AH), CL12400 (12V/40AH), CL12650 (12V/65AH) batteries or UL recognized BAZR2 batteries of an appropriate rating.
- Connect appropriate signaling notification devices to AC FAIL & BAT FAIL supervisory relay outputs.
- To delay AC reporting for 2 hrs., set DIP switch [AC Delay] to OFF position To delay AC reporting for 1 min., set DIP switch [AC Delay] to ON position Note: Must be set to ON position for Burglar Alarm Applications.
- To enable Fire Alarm Disconnect set DIP switch [Shutdown] to ON position. To disable Fire Alarm Disconnect set DIP switch [Shutdown] to OFF position.
- Trigger terminals are end of a line resistor supervised (10k Ohms). Opening or shorting trigger terminals will cause [DC] output to shutdown
- Place a jumper for non-latching FACP. A momentary short on these terminals resets FACP latching [Trigger EOL Shutdown]
- For Access Control Applications: mount UL Listed tamper switch (Altronix Model TS112 or equivalent) at the top of the enclosure. Slide tamper switch bracket onto the edge or the enclosure approx. 2” from the right side Connect tamper switch wiring to the Access Control Panel input or the appropriate UL Listed reporting device.
- Please ensure that the cover is secured with the provided key lock.
Maintenance
Unit should be tested at least once a year for the proper operation as follows:
Output Voltage Test: Under normal load conditions the DC output voltage should be checked for proper voltage level (MaximalFE Configuration
Battery Test: Under normal load conditions check that the battery is fully charged, check specified voltage at the battery terminals and at the board terminals marked [– BAT +] to ensure that there is no break in the battery connection wires.
Note: Maximum charge current 1.54A. The expected battery life is 5 years; however, it is recommended to change batteries within 4 years or less if necessary.
Power Supply Board Terminal Identification
| Terminal Legend | Function/Description |
| L, G, N | Connect 120VAC 60Hz to these terminals: L to hot, N to neutral. Do not use the [G] terminal |
| + DC – | Refer to MaximalFE Series Configuration Chart, pg. 5. |
| Trigger EOL Supervised | Fire Alarm Interface trigger input from a short or FACP. Trigger inputs can be normally open, normally closed from an FACP output circuit (Class 2 power-limited input). |
| NO, GND RESET | FACP interface latching or non-latching (Class 2 power-limited). |
| + AUX – | Auxiliary Class 2 power-limited output rated @ 1A (unswitched) (power-limited output) . |
| AC Fail NC, C, NO | Indicates loss of AC power, e.g. connect to audible device or alarm panel. Relay normally energized when AC power is present. Contact rating 1A @ 30VDC (Class 2 power-limited). |
| Bat Fail NC, C, NO | Indicates low battery condition, e.g. connect to alarm panel. Relay normally energized when DC power is present. Contact rating 1A @ 30VDC. A removed battery is reported within 5 minutes. Battery reconnection is reported within 1 minute (Class 2 power-limited). |
| – BAT + | Stand-by battery connections. Maximum charge current 1.54A (non power-limited). |
Power Supply Board LED Diagnostics:
| Green (DC) | Green (AC/AC1) | Power Supply Status |
| ON | ON | Normal operating condition. |
| ON | OFF | Loss of AC. Stand-by battery is supplying power. |
| OFF | ON | No DC output. |
| OFF | OFF | Loss of AC. Discharged or no stand-by battery. No DC output. |
Power Supply Board Output Voltage Settings:
Power Supply Board Stand-by Battery Specifications
- eFlow4NB:
Battery Access Control Applications Stand-by 7AH 30 Mins./4A* 12AH 35 Mins./4A* 40AH Over 4 Hours/4A* 65AH Over 4 Hours/4A* - eFlow6NB:
Battery Access Control Applications Stand-by 7AH 10 Mins./6A 12AH 30 Mins./6A* 40AH Over 4 Hours/6A* 65AH Over 4 Hours/6A* - eFlow102NB:
Battery Access Control Applications Stand-by 7AH 5 Mins./10A 12AH 30 Mins./10A* 40AH Over 2 Hours/10A* 65AH Over 4 Hours/10A* - eFlow104NB:
Battery Access Control Applications Stand-by 7AH 5 Mins./10A 12AH 30 Mins./10A* 40AH Over 2 Hours/10A* 65AH Over 4 Hours/10A*

CAUTION
- When power supply board is set for 12VDC use only one (1) 12VDC stand-by battery.
- Connect red battery lead to the terminal marked [+ BAT] and to the [positive (+)] terminal of the battery.
- Connect black battery lead to terminal marked [BAT –] and to the [negative (–)] terminal of the battery.
Optional Rechargeable
- Stand-by Battery for
- UL294 Applications.
Note: 12V batteries required for Canadian installations.
Optional Rechargeable
- Stand-by Battery for
- UL294 Applications.
Note: 12V batteries are required for Canadian installations
Optional Rechargeable
- Stand-by Battery for
- UL294 Applications.
Note: 12V batteries are required for Canadian installations
NEC Power-Limited Wiring Requirements:
Power-limited and non power-limited circuit wiring must remain separated in the cabinet. All power-limited circuit wiring must remain at least 0.25” away from any non power-limited circuit wiring. Furthermore, all power-limited circuit wiring and non power-limited circuit wiring must enter and exit the cabinet through different conduits. One such example of this is shown below. Your specific application may require different conduit knockouts to be used. Any conduit knockouts may be used. For power-limited applications use of conduit is optional. All field wiring connections must be made employing suitable gauge CM or FPL jacketed wire (or equivalent substitute). Optional UL Listed battery enclosure must be mounted adjacent to the power supply via Class 1 wiring methods. For Canadian installations use shielded wiring for all connections. Note: Refer to wire handling drawing below for the proper way to install the CM or FPL jacketed wire 
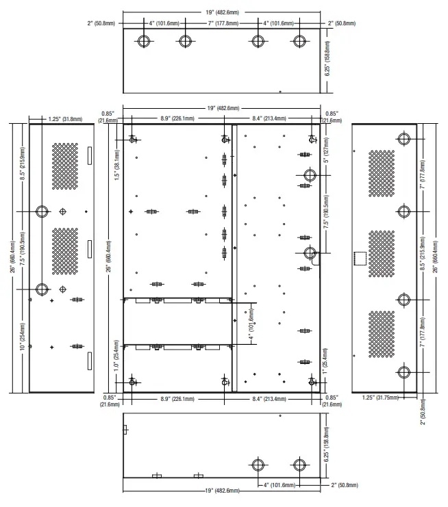
Enclosure Dimensions (H x W x D approximate)
LINQ2 – Network Communication Module
LINQ2 provides remote IP access to real-time data from eFlow power supply/chargers to help keep systems up and running at optimal levels. It facilitates fast and easy installation and set-up, minimizes system downtime, and eliminates unnecessary service calls, which helps reduce Total Cost of Ownership (TCO) – as well as creating a new source of Recurring Monthly Revenue (RMR).
Features
- UL Listed in the U.S. and Canada.
- Local or remote control of up to (2) two Altronix eFlow power output(s) via LAN and/or WAN.
- Monitor real time diagnostics: DC output voltage, output current, AC & battery status/service, input trigger state change, output state change and unit temperature.
- Access control and user managment: Restrict read/write, Restrict users to specific resources
- Two (2) integral network controlled Form “C” Relays.
- Three (3) programmable input triggers: Control relays and power supplies via external hardware sources.
- Email and Windows Dashboard notifications
- Event log tracks history.
- Secure Socket Layer (SSL).
- Programmable via USB or web browser – includes operating software and 6 ft. USB cable
LINQ2 Mounts Inside any MaximalF Enclosure






















