Altronix AL Series NEC Power Extenders

Rev. 042010

General Information
(Use this in conjunction with respective Installation Guide): Altronix AL642ADA220, AL842ADA220 and AL1042ADA220 are very versatile devices. They can be used with or without specific synchronization modules provided by some manufacturers. Multiple units can be synchronized by using either the built-in sync mode or a external synchronization module. Please note, that only notification appliances with synchronization capabilities can be synchronized. Units can operate with either one (1) or two (2) outputs from the FACP.
Class A and Class B Hookups

Each output 1 through 4 can be used in Class B or Class A configuration.
For Class A hookups loop starts on [– OUT +] (1 through 4), terminates on corresponding [– RET +]. For Class B, hookups loop starts on [– OUT +], terminates on 2.2K EOL (Altronix Model# AL-EOL22).
Dry Contact Input Wiring

Non-synchronizable NAC Appliances
When using NAC appliances not designed to support synchronization feature, it is recommended to use separate output circuits for audible notification appliances (horns) and visual notification appliances (strobes). Set DIP switches for the visual notification appliances to follow Input 1 [IN1] and for audible notification appliances to follow Input 2 [IN2]. This will allow, when using two (2) outputs from the FACP, to support silencing of audible notification appli-ances. When using only one (1) FACP output, set all dip switches to follow Input 1 [IN1]. The units outputs can each be set for the desired NAC drive signal, such as Code 3 or march time sequence (Output Programming Selection Table, pg. 6). Non-synchronizable Audible Appliances will follow the sequence, when feature is selected.
Triggering One (1) or More NAC Power Extenders from an FACP
One (1) or more units can be triggered. Connect the output of the FACP module to Input 1 and Input 2. Terminate the input circuits with the EOL, connecting it to terminals marked [RET + and RET –], or continue the input circuits to the next NAC Power Extender. In case FACP does not have any synchronization capabilities and the sync mode is not used,
the notification appliance synchronization will not be provided.

CAUTION: Do not connect any notification appliances on the control circuit interconnecting FACP outputs (sync module outputs) and inputs of NAC Power Extenders.
Applications that do not employ synchronization module or FACP with synchronization protocol will not provide NAC synchronization between NAC Power Extenders.
Synchronizing NAC Power Extender Using Built-in Sync Protocol
AL642/AL842/1042ADA220 have built-in protocols to support Potter/Amseco, Gentex®, System Sensor®, CooperWheelock® two-wire synchronizable devices, therefore an external sync module is not required (Output Programming Selection Table, pg. 6). In these modes, Input 1 is always used to activate visual notification appliances (strobes), and Input 2 is used to activate and silence audible notification appliances (strobes).
Note: Input 1 has to be activated in all the configurations.
For continuous loop circuit use 2.2K EOL (Altronix Model# AL-EOL22).
NAC Power Extender:
DIP Switches set for desired Sync Protocol (ex. Gentex®, System Sensor®, Amseco, CooperWheelock®).

Using Single FACP Output.
When only one FACP output is available, you may connect both Input 1 and Input 2 to it. Wire [RET1 +] and [RET1 –] to [INP2 +] and [INP2 –].
Both Visual and Audible appliances will be activated simultaneously (Fig 6a).

Output Programming Selection Table
Outputs must be programmed independently (OUT1 – OUT4)
| Function | Switch Positions | Descriptions | |
| ON | OFF | ||
| Input to Output Follower Mode | 1 | 2, 3 | Output follows signal it receives from the corresponding input (i.e. FACP Sync module – maintains synchronization of notification appliance circuit). |
| Temporal Code 3 Mode | 3 | 1, 2 | Enables Temporal Code 3 signal generation output. This mode will accept a steady or a pulsing input. |
| Steady Mode | 1, 2, 3 | A steady output signal will be generated. This mode will accept steady or pulsing input. | |
For the above modes DIP Switch 4 determines which Input controls the corresponding output:
Switch 4 in the ON position causes output(s) to be controlled by Input 1.Switch 4 in the OFF position causes output(s) to be controlled by Input 2. Note: It is required to control visual notification appliances (strobes) via Input 1 (IN1) and audible notification appliances (horns) via Input 2 (IN2). This allows audible notification appliances (horns) and visual notification appliances (strobes) to be silenced/ deactivated at same time. The FACP must be capable of a visual annunciation to the silencing status of the output or zone(s) to which the NAC Power Extender is connected.

Sync Mode Selection Table
| Function | Switch Positions | Descriptions | |
| ON | OFF | ||
| Amseco Sync Mode* | 1, 3, 4 |
2 | This mode is designed to work with the Amseco series of horns, strobes, and horn/strobes to provide a means of synchronizing the Temporal- coded horns, synchronizing the flash timing of the strobe, allowing audible notification appliances (horns) and visual notification appliances (strobes) to be silenced/deactivated at the same time. |
| Gentex® Sync Mode* Gentex is a registered trademark of Gentex Corporation. | 1, 2, 3, 4 | This mode is designed to work with the Gentex® series of horns, strobes, and horn/strobes to provide a means of synchronizing the Temporal- coded horns, synchronizing the flash timing of the strobe, allowing audible notification appliances (horns) and visual notification appliances (strobes) to be silenced/deactivated at the same time. | |
| System Sensor® Sync Mode* System Sensor is a registered trademark of Honeywell. |
1, 2, 4 |
3 | This mode is designed to work with the System Sensor® series of horns, strobes, and horn/strobes to provide a means of synchronizing the Temporal-coded horns, synchronizing the one-second flash timing of the strobe, allowing audible notification appliances (horns) and visual notifica- tion appliances (strobes) to be silenced/deactivated at the same time. |
| CooperWheelock® Sync Mode* CooperWheelock is a registered trademark of Cooper Wheelock. |
2, 3, 4 |
1 | This mode is designed to work with the CooperWheelock® series of horns, strobes, and horn/strobes to provide a means of synchronizing the Temporal-coded horns, synchronizing the one-second flash timing of the strobe, allowing audible notification appliances (horns) and visual notifica- tion appliances (strobes) to be silenced/deactivated at the same time. |
*Note: AL642ADA220, AL842ADA220, and AL1042ADA220 will only synchronize horns, horn/strobes, and strobes that contain synchronization capability. Contact signal manufacturer for more detailed info.
The same synchronization mode must be selected for all outputs.
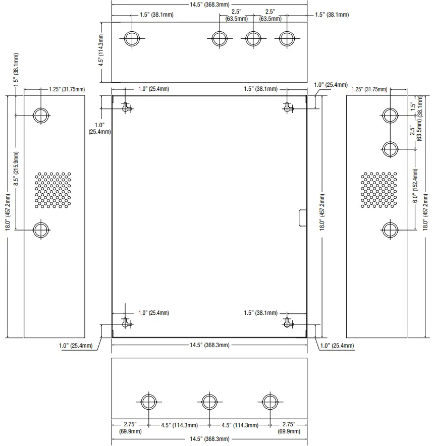
Enclosure Dimensions
18” x 14.5” x 4.5” (457.2mm x 368.3mm x 114.3mm)

Altronix is not responsible for any typographical errors.
140 58th Street, Brooklyn, New York 11220 USA | phone: 718-567-8181 | fax: 718-567-9056 website: www.altronix.com | e-mail: [email protected] | Lifetime Warranty
42ADA220 Application Guide H10U




















