NAC Power Extenders
Models Include:
AL642ULADA
AL842ULADA
AL1042ULADA
Wall Mountable NAC Power Extenders
R1042ULADA
Rack Mountable NAC Power Extender
Application Guide
(see Installation Guide for additional information)
General Information
(Use this in conjunction with the respective Installation Guide):
Altronix AL642ULADA, AL842ULADA, and AL1042ULADA, R1042ULADA are very versatile devices. They can be used with or without specific synchronization modules provided by some manufacturers. Multiple units can be synchronized by using either the built-in sync mode or a external synchronization module. Please note, that only notification appliances with synchronization capabilities can be synchronized.
Units can operate with either one (1) or two (2) outputs from the FACP.
Class A and Class B Hookups:

Each output 1 through 4 can be used in Class B or Class A configuration.
For Class A hookups loop starts on [– OUT +] (1 through 4), and terminates on corresponding [– RET +].
For Class B, the hookups loop starts on [– OUT +], and terminates on 2.2K EOL (Altronix Model# AL-EOL22).
Dry Contact Input Wiring

Non-synchronizable NAC Appliances:
When using NAC appliances not designed to support synchronization features, it is recommended to use separate output circuits for audible notification appliances (horns) and visual notification appliances (strobes). Set DIP switches for the visual notification appliances to follow Input 1 [IN1] and for audible notification appliances to follow Input 2 [IN2]. This will allow, when using two (2) outputs from the FACP, to support the silencing of audible notification appliances. When using only one (1) FACP output, set all dip switches to follow Input 1 [IN1]. The unit outputs can each be set for the desired NAC drive signal, such as Code 3 or march time sequence (Output Programming Selection Table, pg. 6). Non-synchronizable Audible Appliances will follow the sequence when the feature is selected.
Triggering One (1) or More NAC Power Extenders from an FACP:
One (1) or more units can be triggered. Connect the output of the FACP module to Input 1 and Input 2.
Terminate the input circuits with the EOL, connecting them to terminals marked [RET + and RET –], or continue the input circuits to the next NAC Power Extender.
In case FACP does not have any synchronization capabilities and the sync mode is not used, the notification appliance synchronization will not be provided.

CAUTION: Do not connect any notification appliances on the control circuit interconnecting FACP outputs (sync module outputs) and inputs of NAC Power Extenders.
Applications that do not employ a synchronization module or FACP with synchronization protocol will not provide NAC synchronization between NAC Power Extenders.
Synchronizing NAC Power Extender Using Built-in Sync Protocol:
AL642/AL842/1042ULADA, R1042ULADA have built-in protocols to support Potter/Amseco, Gentex®, System® Sensor, CooperWheelock® two-wire synchronizable devices, therefore an external sync module is not required (Output Programming Selection Table, pg. 6). In these modes, Input 1 is always used to activate visual notification appliances (strobes), and Input 2 is used to activate and silence audible notification appliances (strobes).
Note: Input 1 has to be activated in all the configurations.
Fig. 5a
For continuous loop circuits use 2.2K EOL (Altronix Model# AL-EOL22).

Using Single FACP Output.
When only one FACP output is available, you may connect both Input 1 and Input 2 to it.
Wire [RET1 +] and [RET1 –] to [INP2 +] and [INP2 –].
Both Visual and Audible appliances will be activated simultaneously (Fig 6a).

Output Programming Selection Table:
Outputs must be programmed independently (OUT1 – OUT4)
| Function | Switch Positions | Descriptions | |
| ON | OFF | ||
| Input to Output Follower Mode | 1 | 2, 3 | Output follows the signal it receives from the corresponding input (i.e. FACP Sync module – maintains synchronization of notification appliance circuit). |
| Temporal Code 3 Mode | 3 | 1, 2 | Enables Temporal Code 3 signal generation output. This mode will accept a steady or a pulsing input. |
| Steady Mode | 1,2,3 | A steady output signal will be generated. This mode will accept steady or pulsing input. | |
For the above modes DIP Switch 4 determines which Input controls the corresponding output:
Switch 4 in the ON position causes output(s) to be controlled by Input 1.
Switch 4 in the OFF position causes output(s) to be controlled by Input 2.
Note: It is required to control visual notification appliances (strobes) via Input 1 (IN1) and audible notification appliances (horns) via Input 2 (IN2).
This allows audible notification appliances (horns) and visual notification appliances (strobes) to be silenced/ deactivated at the same time.
The FACP must be capable of a visual annunciation of the silencing status of the output or zone(s) to which the AL1042/R1042ULADA (NAC Power Extender) is connected.
AL842LGK Board
Output DIP Switches
INPUT SELECT TEMPORAL STROBE SYNC IN>OUT SYNC
Sync Mode Selection Table:
| Function | Switch Positions | Descriptions | |
| ON | OFF | ||
| Amseco Sync Mode* | 1, 3, 4 | 2 | This model is designed to work with the Amseco series of horns, strobes, and horn/strobes to provide a means of synchronizing the Temporal-coded horns, synchronizing the flash timing of the strobe, allowing audible notification appliances (horns) and visual notification appliances (strobes) to be silenced/deactivated at the same time. |
| Gentex® Sync Mode* Gentex is a registered trademark of Gentex Corporation. | 1, 2, 3, 4 | This model is designed to work with the Gentex® series of horns, strobes, and horn/strobes to provide a means of synchronizing the Temporal- coded horns, synchronizing the flash timing of the strobe, allowing audible notification appliances (horns) and visual notification appliances (strobes) to be silenced/deactivated at the same time. | |
| System Sensors Sync Mode* System Sensor is a registered trademark of Honeywell. | 1, 2, 4 | 3 | This model is designed to work with the System Sensors series of horns, strobes, and horn/strobes to provide a means of synchronizing the Temporal-coded horns, synchronizing the one-second flash timing of the strobe, allowing audible notification appliances (horns) and visual notification appliances (strobes) to be silenced/deactivated at the same time. |
| CooperWheelock® Sync Mode* CooperWheelock is a registered trademark of Cooper Wheelock. | 2, 3, 4 | 1 | This model is designed to work with the CooperWheelock® series of horns, strobes, and horn/strobes to provide a means of synchronizing the Temporal-coded horns, synchronizing the one-second flash timing of the strobe, allowing audible notification appliances (horns) and visual notification appliances (strobes) to be silenced/deactivated at the same time. |
*Note: AL1042ULADA and R1042ULADA will only synchronize horns, horns/strobes, and strobes that contain synchronization capability. The same synchronization mode must be selected for all outputs.
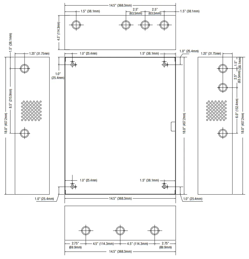
AL642/842/1042ULADA Enclosure Dimensions: 18” x 14.5” x 4.5” (457.2mm x 368.3mm x 114.3mm)

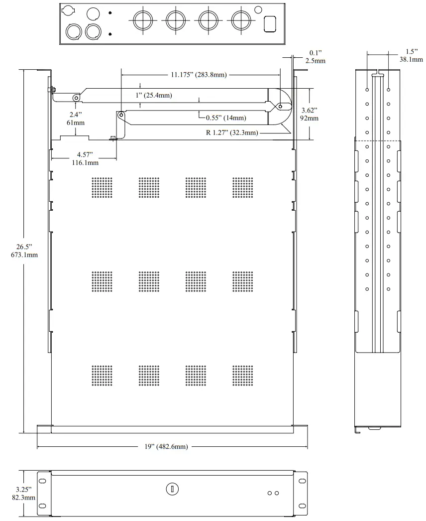
R1042ULADA Enclosure Dimensions (H x W x D): 3.25” x 19.0” x 26.5” (82.6mm x 482.6mm x 673.1mm). Shown with Z Bracket attached.

Rev. 062420
More than just power.™
Altronix is not responsible for any typographical errors.
140 58th Street, Brooklyn, New York 11220 USA
phone: 718-567-8181
fax: 718-567-9056
website: www.altronix.com
e-mail: [email protected]
Lifetime Warranty
42ULADA Application Guide
H09U



















