
More than just power.™
FireSwitch108
10A NAC Power Extender
Installation Guide

Installing Company: _______________ Service Rep. Name: _______________
Address: _____________________________ Phone #: __________________
Overview:
Altronix FireSwitch108 is a cost-effective managed NAC Power Extender. It interfaces with 12 or 24VDC Fire Alarm Control Panels (FACP) to provide Notification Appliance Circuit expansion support, for additional horns/ strobes to allow ADA compliance. It also provides auxiliary power to support system accessories. It delivers electronically regulated and filtered 24VDC power to Class B or Class A NAC loop circuits. The alarm current can be divided between the eight (8) outputs for powering NAC devices. Outputs are rated at 2.5A max. and can be independently programmed for Steady, Temporal Code 3 or Strobe Synchronization. All outputs may be programmed for Input to Output Follower Mode (output will follow the input. i.e. March Time Input, March Time Output). In non-alarm conditions, independent loop supervision for Class A and/or Class B FACP NAC circuits is provided. In the event of loop trouble, the FACP will be notified via the steered input (Input 1 or Input 2). In addition, there are common trouble output terminals [NC, C, NO] that are used to indicate general loop/ system trouble. Two (2) FACP signaling outputs can be employed and directed to control supervision and power delivery to any combination of the eight (8) outputs. It provides a programmable LCD display interface, plus an ethernet port interface for remote programmability and monitoring.
Specifications:
Agency Listings:
- UL 864 Control Units and Accessories for Fire Systems.
CAN/ULC-S527-99 Control units for Fire Alarm Systems. - Factory Mutual Approved.
- CSFM Approved.
- NFPA 72 and NFPA 720 Compliant.
Input:
- Power input: 120VAC, 60Hz, 4.8A.
- Two (2) Class A or two (2) Class B FACP inputs.
- Input Ratings:
INP1 and INP2: 8-30VDC 6.5mA max from FACP. 12V 6.5mA, 24V 6.5mA from FACP. - Two (2) configurable inputs trigger via Class A or Class B FACP signal circuits (polarity reversal) or dry contacts.
Output:
- 24VDC voltage regulated power-limited NAC outputs.
- Output power:
– 10A max. total alarm current.
– 7A max. stand-by without battery backup.
– 1A with battery backup including dedicated Aux. output.
For Canadian applications Standby with battery backup is limited to 0.45A. - 2.5A max current per output.
- One (1) auxiliary output rated at 1A (regulated, battery backed up). 0.45A for Canadian applications.
- Any NAC can be configured as an Aux. output with or without battery back-up (special application only).
When set as Aux. output, the output is not supervised. Use UL Listed end of line device for the applications if supervision is required. - Programmable supervised indicating circuit outputs: Eight (8) Class B or Four (4) Class A, or any combination of Class A and Class B circuits.
- Thermal and short circuit protection with auto reset.
Supervision:
- AC fail supervision (form “C” contact, 1A/28VDC).
- Battery presence and low battery supervision (form “C” contact, 1A/28VDC).
- AC local dry contact output (form “C” contact, 1A/28VDC).
Battery Backup:
- Built-in charger for sealed lead acid or gel type batteries.
- Automatic switchover to stand-by battery when AC fails.
- Zero voltage drop when switching over to battery backup.
Visual Indicators:
- LCD display – Indicates troubles and conditions of operation. Trouble Condition Memory facilitates quick identification of an intermittent/fault (short circuit, open or ground) that has previously occurred on one or more signaling circuit outputs. LCD displays which output the fault have occurred on.
Special Features:
- Programmable LCD display interface.
- EOL resistor value is programmable by output.
- Ethernet port interfaces for remote programmability and monitoring. All programming needs to be confirmed and tested on-site, to assure that the FireSwitch is operating as intended after completion of programming (refer to FireSwitch User Interface and Programming via Ethernet Port, pgs. 9-11).
- 2-wire horn/strobe Sync mode allows audible notification appliances (horns) and visual notification appliances (strobes) to be silenced/deactivated at the same time.
- Sync protocols include CooperWheelock®, Gentex®, Potter, and System Sensor®.
- Temporal Code 3, Steady Mode, Input to Output Follower Mode (maintains synchronization of notification appliances circuit).
- Compatible with 12VDC or 24VDC fire panels.
- Output loop supervision is directed to Input 1 or Input 2.
- Common trouble Dry NC output for reporting trouble to remote FACP.
- Ground fault detection – Ground fault maximum test impedance 1,000 Ohm.
- Ground fault Dry NO output to report the ground fault to remote FACP.
- CO Temporal Code 4 (NFPA720) includes Gentex®, Potter and System Sensor® devices.
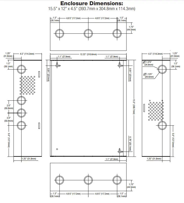
Enclosure Dimensions (H x W x D):
15.5” x 12” x 4.5” (393.7mm x 304.8mm x 114.3mm)
Power Supply Specifications:
| AC Input | 120VAC, 60Hz, 4.8A. |
| Output | Eight (8) regulated supervised NAC output circuits, 24VDC, 2.5A maximum current. 10A max. total alarm current (configurable as Special Application Aux. ouputs). 7A max. stand-by without battery backup. 1A max with battery backup including Aux. output. One (1) regulated aux. output rated at 24VDC @ 1A with battery backup (see stand-by specifications below). 0.45A for Canadian applications. Total output current in alarm condition must not exceed 10A. |
| Battery | Use two (2) 12VDC/12AH or two (2) 12VDC/7AH or two (2) 12VDC/40AH batteries connected in series. |
| Stand-by/Alarm Current Consumption | 180mA/200mA |
| EOL Resistor (end of line) | Default 10K (10,000 Ohm), Altronix Model # AL-EOL10. (EOL10K-C for Canadian applications) |
| Ground fault maximum test impedance | 1,000 Ohm. |
| Maximum Loop impedance | 1 Ohm. |
Stand-by Specifications:
| Stand-by Batteries | Stand-by/Alarm | Aux. Current/Battery Back-up |
| 24VDC/7AH | 24 Hrs./5 mins. | No auxiliary current (battery backed up) |
| 24VDC/12AH | 24 Hrs./5 mins. | 50mA auxiliary max. current (battery backed up) |
| 24VDC/40AH | 24 Hrs./5 mins. | 1A auxiliary max. current (battery backed up) |
| 24VDC/40AH | 24 Hrs./30 mins. | 0.45A auxiliary max. current (battery backed up) for Canadian Applications |
Note: Unit is equipped with one (1) 1A max. auxiliary output (0.45A for Canadian applications): “AUX” NAC outputs programmed for “AUX” with battery backup will remain battery backed up during a power outage. For loads connected to “AUX” please, refer to battery “Stand-by Specifications” above for ratings. When loads are connected to the “AUX” output during alarm conditions, and total current from AUX and remaining outputs may not exceed the total alarm current for the particular FireSwitch model. AUX outputs are not supervised.
To provide supervision use a UL Listed end of line relay or similar method.
Installation Instructions:
Wiring methods shall be in accordance with the National Electrical Code NFPA 70/NFPA 72/ANSI/Canadian Electrical Code/CAN/ULC-S524/ULC-S527/ULC-S537, Signaling Code, and with all local codes and authorities having jurisdiction.
THE PRODUCT IS INTENDED FOR INDOOR DRY USE ONLY.
Carefully review:
| Power Supply Specifications | (pg. 4) |
| Stand-by Specifications | (pg. 4) |
| Terminal Identification | (pgs. 7-8) |
| LED Diagnostics | (pg. 8) |
| Programming | (pgs. 10-12) |
| Testing and Maintenance | (pg. 12) |

- Mount the unit in the desired location. Mark and predrill holes in the wall to line up with the top two keyholes in the enclosure. Install two upper fasteners and screws in the wall with the screw heads protruding. Place the enclosure’s upper keyholes over the two upper screws; level and secure. Mark the position of the lower two holes. Remove the enclosure. Drill the lower holes and install the two fasteners. Place the enclosure’s upper keyholes over the two upper screws. Install the two lower screws and make sure to tighten all screws (Enclosure Dimensions, pg. 24). Secure enclosure to earth ground (Fig. 1, pg. 5). Small terminal block wire gauges range from 16 AWG to 22 AWG, all others range from 12 to 22 AWG.
- Connect the line [L] and neutral [N] terminals to a separate unswitched 20A protected branch circuit (120VAC, 60Hz) dedicated to the Fire Alarm System. Connect ground to the ground lug (Fig. 1, pg. 5). Use 12 AWG wire.
- Connect two (2) 12VDC batteries wired in series to terminals marked [– BAT +] (Fig. 2, pg. 6).
Note: If batteries being used in your installation do not fit into the FireSwitch unit, it is required to install a separate enclosure UL Listed for the appropriate application. A separate battery enclosure is required to have 50 cubic inches of additional open space. All wiring methods shall be in accordance with the National Electrical Code NFPA 70/NFPA 72/ANSI/Canadian Electrical Code/CAN/ULC-S524/ULC-S527/ULC-S537 and with all local codes and authorities having jurisdiction. Battery circuits are not Power- Limited. Provide 0.25” spacing from Power-Limited circuits and use separate knockout. If an additional battery enclosure is required, it must be UL Listed for the application and mounted within 5’ of the FireSwitch enclosure in the same room, a minimum of 12 AWG wires in appropriate conduit is required for connection. When using conduit, make sure it is installed in a matter where it can not turn. - To trigger NAC outputs via the FACP signaling circuit(s) (polarity reversed) set INP1 and INP2 DIP switches to the OFF position. To trigger NAC outputs via the FACP dry relay contact (normally closed NC) set INP1and INP2 DIP switches to the ON position (Fig. 2a, pg. 6).
- Determine the functionality of outputs [OUT1] through [OUT8]. Outputs can be programmed as Class “A” NACs, Class “B” NACs, and Aux. power output(s) with battery backup or Aux. power output(s) without battery backup. Note: Not all devices can use the sync feature. Be sure to check Appendix A to ensure the device you have chosen will work with this feature. Note: When programming outputs for Aux. power it will not be affected by the FACP trigger input. (Refer to Fig. 4, pg. 9 for Wiring, for Programming refers to pg. 10).
- Determine which NAC input will trigger the desired NAC output(s).
- Select output options (for Programming refer to pgs. 9-11). Note: The 2-wire horn/strobe sync mode will only synchronize horns, horns/strobes, and strobes with synchronization capability. For Class, B outputs connect EOL (AL-EOL10) to the last device in each NAC Loop. For applications in Canada use EOL10K-C end-of-line resistors (to be ordered separately). Form the leads to fit the terminals. Bend radius can not exceed 0.125”. Do not bend closer than 0.25” to the body of the resistor.
- Connect desired 24VDC devices to regulated Aux. power output terminals marked [+ AUX – ] (Fig. 2, pg. 6). Output is Power-Limited. 0.25” spacing from Non-Power-Limited wiring must be provided. Use separate knockout.
- Connect Digital Communicator or Local Annunciator to Common Trouble Output terminals marked [NC, NO, C]. Connection to triggering devices must be made within 20 ft. of distance and using conduit for wiring (Fig. 2, pg. 6).
- Connect appropriate signaling notification devices to terminals marked [AC FAIL & BAT FAIL] supervisory relay outputs (Fig. 2, pg. 6).
- Program FireSwitch utilizing an on-board programming switch or via ethernet port (for Programming refer to pgs. 9-11). When using an ethernet port, the cable has to terminate within the same building.
- WARNING: emergency control or nonfire equipment cannot be connected to same circuitry as fire alarm equipment.

Amount of Notification Appliances that can be Synchronized:
| Altronix Model | Max. Per Circuit | Max. Per FireSwitch108 |
| FireSwitch108 | 32 | 128 |
Terminal Identification Table:
Logic Board
| Terminal Legend | Function/Description |
| + 24V IN – | 24VDC input from power supply. |
| + AUX – | This separate 1A max. the auxiliary regulated output circuit is typically used to power approved devices. See attached list of devices (Appendix B, pg. 23). |
| OUT1 – OUT8 (Supervised) | Notification appliances are connected to these regulated outputs. Each power-limited output will supply up to 2.5A. Outputs are controlled by designated Input 1 [IN1] or Input 2 [IN2] (Output Configuration Chart, pg. 9). Maximum line impedance 1 Ohm. NAC outputs that are programmed as AUX are Special Applications. |
| IN1 +, IN1 – IN2 +, IN2 – (Supervised) | These terminals connect to the 24VDC FACP notification appliance circuit outputs. Class A or Class B Input trigger voltage is 8-33VDC @ 6.5mA min (12VDC or 24VDC @ 6.5mA). Terminal polarity is shown in alarm conditions. During an alarm condition, these inputs will cause the selected outputs chosen to drive notification appliances. The designated outputs are programmable [OUT1 through OUT8] (Output Configuration Chart, pg. 9). A trouble condition on an output loop will cause the corresponding input to trip the FACP by opening the FACP loop. An alarm condition will always override trouble to drive notification appliances. |
| RET1 +, RET1 – RET2 +, RET2 – (Supervised) | For Class A connections these terminal pairs return to FACP. For Class, B connections use FACP EOL resistors to terminate at these terminals. Optionally, additional signaling circuit power supplies may be connected to these terminals. If this option is chosen, the EOL resistor must be terminated at the last device. Up to twelve (12) units can be interconnected. |
| EARTH | Connects to the grounding lug of the enclosure (factory installed). |
| C, NO, NC (Common trouble output) | These are dry contact trouble outputs that report any general loop/system trouble conditions. In addition, the Factory is set to report AC and Battery trouble. The feature can be optionally turned off. See Programming section, pg. 9-11. Typically used to trigger a digital communicator or other reporting devices (form “C” contact 1A / 28VDC, 0.35 Power Factor). Connection to triggering devices must be made within 20 ft. of distance and using conduit for wiring (Fig. 2, pg. 6). |
| + SYNC – | Designed to be connected to [+ INP1 –] or [+ INP2 –] of Altronix FireSwitch models only. A maximum of four (4) units can be interconnected, the distance between the units should not exceed 20 ft., wiring to be in conduit, 20 AWG wire minimum. FireSwitch108 NAC power extenders must be located in the same room. |
| GF1 GF2 | Dry normally open contact. It will close if a ground fault is detected. Use to report ground fault conditions to a host FACP. Can be wired between [+] or [–] coming from FACP and earth ground. |
Power Supply Board
| Terminal Legend | Function/Description |
| L, G, N | Connect 120VAC to these terminals: L to Hot, N to Neutral. Earth Ground should be connected via a grounding lug. |
| + DC – | 24VDC nonpower- limited output. |
| AC FAIL (delayed) NO, C, NC | Form “C” dry contacts indicate the loss of AC, with AC present terminals marked [NO] and [C] are open, and [NC] and [C] are closed. When loss of AC occurs terminals marked [NO] and [C] are closed, and [NC] and [C] are open. |
| AC LOCAL (instant) NO, C, NC | Form “C” dry contacts are used to instantaneously signal the loss of AC to local annunciation devices, with AC present terminals marked [NO and C] are open, and [NC and C] are closed. When loss of AC occurs terminals marked [NO and C] are closed, and [NC and C] are open. |
| BAT FAIL NO, C, NC | Form “C” dry contacts indicate low battery voltage or loss of battery voltage. Under normal conditions terminals marked [NO and C] are open, and [NC and C] are closed. During a trouble condition terminals marked [NO and C] are closed, and [NC and C] are open (Fig. 2, pg. 5). |
| – BAT + | Stand-by battery input (leads provided). The maximum charging voltage is 26.4VDC, maximum charging current is 1.5A (Fig. 2, pg. 5). |
*Power Supply Board Parameter Specifications:
| NOTICE TO USERS, INSTALLERS, AUTHORITIES HAVING JURISDICTION, AND OTHER INVOLVED PARTIES | |||
| This product is field-configurable. In order for the product to comply with the requirements in the Standard for Control Units and Accessories for Fire Alarm System (UL 864), set programming features as indicated below. | |||
| Program feature or option | Permitted in UL 864? (Y/N) | Possible Settings | Settings Permitted in UL 864 |
| AC Reporting Delay | Yes | 2 hours or 1 minute | 1 hour to 3 hours |
| AC Trouble Reporting to host a panel | Yes | enable/disable | enable |
| BAT Trouble Reporting to host a panel | Yes | enable/disable | enable |
- To set AC Delay for 2 hours or 1 minute – power the unit down (AC supply and Battery) prior to changing the switch position. Turn switch “AC Delay” ON or OFF, respectively (Fig. 3, pg. 8).
- The factory setting is 2 hours – for testing purposes change to 1 minute by turning AC Delay switch ON temporarily.
- Low battery condition will report at approximately 20VDC.
- Battery presence detection will report within 100 seconds after the battery remains undetected (missing or removed). A restored battery will report within 30 seconds.

LED Diagnostics:
Power Supply Board
| Red (DC) | Green (AC) | Power Supply Status |
| ON | ON | Normal operating condition. |
| ON | OFF | Loss of AC. Stand-by batteries are supplying power. |
| OFF | ON | No DC output. |
| OFF | OFF | Loss of AC. Discharged or no stand-by battery. No DC output. |
Wiring Diagram:

Connection Diagram:

Programming:
To begin programming depress and hold down the joystick (approximately 2 secs.).
Note: If FireSwitch remains dormant for more than 90 seconds, it will return to the standby status screen.
Step 1. Setup Outputs 1-8:
a. Select from Class A, Class B, or Aux. Outputs with or without battery backup (see chart below).
Output Configuration:
| LCD Legend | Function/Description |
| A | Class A output (Combines two (2) outputs, ex. 1-2, 3-4, 5-6, 7-8). |
| B | Class B output. |
| Ax | Aux. output with battery backup. |
| Bx | Aux. output without battery backup. |
b. Depress the joystick one time from the Stand-by screen.
c. Use [Up/Down] to select Function, Use [Left/Right] to select channel.
Step 2. Program Protocol for Channels 1-8:
a. Select from Steady, Code 3, Follower Mode, Potter, Carbon Monoxide (CO) Strobes, Carbon Monoxide (CO) Horns, Gentex®, System Sensor®or CooperWheelock®.
Protocol Selection:
| LCD Legend | Function | Triggered From | Description |
| 1a | Steady | Input 1 | A steady output signal will be generated. This mode will accept steady or pulsing input. |
| 2a | Input 2 | ||
| 3a | Redundant – Input 1 and Input 2. | ||
| 1b | Code 3 | Input 1 | Enables Temporal Code 3 signal generation output. This mode will accept a steady or a pulsing input. |
| 2b | Input 2 | ||
| 3b | Redundant – Input 1 and Input 2. | ||
| 1c | Follower Mode | Input 1 | Output follows signal it receives from the corresponding input (i.e. FACP Sync module – maximum synchronization of notification appliance circuit). |
| 2c | Input 2 | ||
| 3c | First Input to go in alarm mode. | ||
| 1d | Amseco/Potter | Input 1 (both horns and strobes). | This mode is designed to work with the Amseco/Potter series of horns, strobes, and horn/strobes to provide a means of synchronizing the Temporal-coded horns, synchronizing the one-second flash timing of the strobe, and simultaneously deactivating both audible and visible notification appliances. |
| 2d | Input 2 (both horns and strobes). | ||
| 3d | Input 1 – strobes only. Input 2 – horns and strobes. | ||
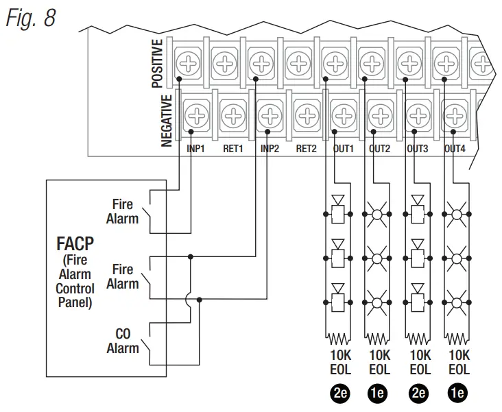
| 1e | Carbon Monoxide (CO) | Input 1 and Input 2 – strobes only. | This model is designed to generate a strobe sync signal during both fire alarm and CO alarm. ONLY Combination CO and Fire Alarm “NAC Output” Connections are allowed to be made to meet UL864 10th Ed Requirements. See Combination CO and Fire Alarm Connections on Pg. 15. |
| 2e | Input 1 and Input 2 – horns only. | This model is designed to generate Code 3 horn temporal code during a fire alarm and Temporal 4 for system CO alarms during CO alarm. ONLY Combination CO and Fire Alarm “NAC Output” Connections are allowed to be made to meet UL864 10th Ed Requirements. See Combination CO and Fire Alarm Connections on Pg. 15. | |
| 3e | Reserved | Reserved | |
| 1f | Gentex® Gentex is a registered trademark of Gentex Corporation. | Input 1 (both horns and strobes). | This mode is designed to work with the Gentex® series of horns, strobes, and horn/strobes to provide a means of synchronizing the Temporal-coded horns, synchronizing the flash timing of the strobe, and simultaneously deactivating both audible and visible notification appliances. |
| 2f | Input 2 (both horns and strobes). | ||
| 3f | Input 1 – strobes only. Input 2 – horns and strobes. | ||
| 1g | System Sensor® System Sensor is a registered trademark of Honeywell. | Input 1 (both horns and strobes). | This model is designed to work with the System Sensor® series of horns, strobes, and horn/strobes to provide a means of synchronizing the Temporal-coded horns, syn- synchronizing the flash timing of the strobe, and simultaneously deactivating both audible and visible notification appliances. |
| 2g | Input 2 (both horns and strobes). | ||
| 3g | Input 1 – strobes only. Input 2 – horns and strobes. | ||
| 1h | CooperWheelock® CooperWheelock is a registered trademark of CooperWheelock. | Input 1 (both horns and strobes). | This model is designed to work with the CooperWheelock series of horns, strobes, and horn/strobes to provide a means of synchronizing the Temporal-coded horns, synchronizing the one-second flash timing of the strobe, and simultaneously deactivating both audible and visible notification appliances. |
| 2h | Input 2 (both horns and strobes). | ||
| 3h | Input 1 – strobes only, Input 2 – horns and strobes. |
b. Depress the joystick one (1) time from the Function screen or two (2) times from the Stand-by screen.
c. Use [Up/Down] to select Protocol, Use [Left/Right] to select outputs.
d. Use [Right] to copy the setting to the next output.
Note: Class A outputs are paired. If the output is set for Ax or Bx – Protocol settings are not available.
Note: The Common Trouble Output Relay is to be connected to the FACP trouble input and the FACP shall be Programmed to indicate both “CO and Fire Trouble” at the FACP Display.
For CO Alarms, the system must be monitored by a supervising station with emergency response.
Step 3. EOL Resistor Value Programming
a. Depress the joystick three (3) times from the Stand-by screen, two (2) times from Function Screen, or one (1) time from the Protocol screen.
b. Use [Up/Down] to select the appropriate value (see chart below).
c. Use [Left/Right] to select the output.
| Programmed Digit | 0 | 1 | 2 | 3 | 4 | 5 | 6 | 7 |
| Resistor Value | 2.2K | 2.8K | 3.9K | 4.7K | 5.1K | 10K | 22K | 43K |
Step 4. Read/Clear Trouble Memory
a. Depress the joystick three (3) times from the Stand-by screen, or two (2) times from Function Screen, or one (1) time from the Protocol screen.
Trouble Memory LCD Indication:
| LCD Legend | Trouble Condition |
| A | AC trouble. |
| B | Battery trouble. |
| C | Common trouble. |
| N | Normal operating condition. |
| O | Loop open or open circuit. |
| S | Loop Shorted. |
| G | Loop Ground fault. |
| ? | The Loop wiring is incorrect. |
b. Use [Down] to reset all stored troubles.
Step 5. AC and Battery Trouble Reporting and Sounder Alert Options
a. Depress the joystick four (4) times from the Stand-by screen, three (3) times from Function Screen, two (2) times from the Protocol screen, or one (1) time from the Trouble Memory screen.
b. Use [Up/Down] to select/de-select reporting option.
c. Use [Left/Right] to select AC/BAT/ALERT or to enable/disable AC and BAT trouble and ALERT sounder.
d. Use [Up/Down] to select the appropriate End of Line Resistor value (2.2K, 2.8K, 3.9K, 4.7K, 5.1K, 10K, 22K, 43K).
e. Depress the joystick to exit. Note: AC and BAT trouble and ALERT sounder are factory enabled.
Testing and Maintenance:
The unit should be tested at least once a year for the proper operation as follows:
Output Voltage Test:
Under normal load conditions, the DC output voltage should be checked for proper voltage level.
Battery Test:
Under normal load, conditions check that the battery is fully charged, and check the specified voltage both at the battery terminal and at the board terminals marked [– BAT +] to ensure that there is no break in the battery connection wires.
Note:
The expected battery life is 5 years; however, it is recommended to change batteries in 4 years or less if needed.
Test operation of the unit as follows:
Ground fault test:
Directly short one leg of the circuit to chassis ground. The ground fault and trouble fault should be indicated.
NAC open circuit test:
Remove the EOL resistor from the last device on the circuit. Open trouble should be indicated.
NAC short circuit test: Place a short across each NAC output individually. NAC short should be indicated.
Disconnect Battery: BAT trouble should be indicated.
Reset Trouble Memory.
FireSwitch User Interface and Programming via Ethernet Port:
Note: The service person must be present on-site to confirm changes by holding the “down” position of the joystick.
Step 1.
Set Local Area Connection of your laptop to DHCP mode.
For Windows XP:
a. Open Network Connections by clicking the Start button, then clicking Settings, then clicking Network Connections.
b. Right-click the Local Area Connection. Click Properties. Administrator permission required If you are prompted for an administrator password or confirmation, type the password or provide confirmation.
c. Double-click click the Internet Protocol (TCP/IP) menu item.
d. Choose the Obtain an IP address automatically option.
e. Click OK. Close all windows.
For Windows Vista:
a. Open Network Connections by clicking the Start button Picture of the Start button, clicking Control Panel, clicking Network and Internet, clicking Network and Sharing Center, and then clicking Manage Network Connections.
b. Right-click the Local Area Connection. Click Properties. Administrator permission required If you are prompted for an administrator password or confirmation, type the password or provide confirmation.
c. Click the Networking tab. Under this connection uses the following items, click either Internet Protocol Version 4 (TCP/IPv4) or Internet Protocol Version 6 (TCP/IPv6), and then click Properties.
d. To specify IPv4 IP address settings, click Obtain an IP address automatically, and then click OK.
e. To specify IPv6 IP address settings, click Obtain an IPv6 address automatically, and then click OK.
For Windows 7:
a. Open Network Connections by clicking the Start button Picture of the Start button, clicking Control Panel, clicking Network and Internet, clicking Network and Sharing Center, and then clicking Change Adapter Settings.
b. Right-click the Local Area Connection. Click Properties. Administrator permission is required. If you are prompted for an administrator password or confirmation, type the password or provide confirmation.
c. Click the Networking tab. Under this connection uses the following items, click either Internet Protocol Version 4 (TCP/IPv4) or Internet Protocol Version 6 (TCP/IPv6), and then click Properties.
d. To specify IPv4 IP address settings, click Obtain an IP address automatically, and then click OK.
e. To specify IPv6 IP address settings, click Obtain an IPv6 address automatically, and then click OK.
Step 2.
Connect a laptop or PC to the Ethernet port of your FireSwitch unit.
The FireSwitch unit should be powered up at this moment.
Step 3.
Open a browser window (it is necessary to update your browser software to the latest version so that the pages display and function correctly).
Step 4.
Enter the IP address (the default IP address is 192.168.168.168) into the address bar. The status page will be displayed.
Step 5.
Click the Setup link. You will be prompted for an administrative password, type and submit the password (the default password is “11111111”). The setup page will be displayed. You may now program your FireSwitch.
Battery Calculation Worksheet
| Device | Number of Devices | Current per Device | Stand-by Current | Alarm Current | ||
| For each device use this formula: | This column x This column = Equals | Current per number of devices. | ||||
| FireSwitch108 (Current draw from battery) | 1 | Stand-by: | 180mA | 180mA | ||
| Alarm: | 200mA | 200mA | ||||
| A | FireSwitch Current | 180mA | 200mA | |||
| Auxiliary Devices | Refer to device manual for current ratings. | |||||
| Alarm/Stand-by | mA | mA | mA | |||
| Alarm/Stand-by | mA | mA | mA | |||
| Alarm/Stand-by | mA | mA | mA | |||
| B | Auxiliary devises Current (must not exceed 1A; 0.45A for Canadian applications) | |||||
| Refer to device manual for current ratings. | ||||||
| Alarm: | mA | 0mA | mA | |||
| Alarm: | mA | 0mA | mA | |||
| Alarm: | mA | 0mA | mA | |||
| Alarm: | mA | 0mA | mA | |||
| C | Notification Appliances Current must not exceed 10A (10,000mA) 0mA | mA | ||||
| D | Total alarm current (A + B + C) | mA | mA | |||
| E | Total current ratings converted to amperes (line D x .001) | A | A | |||
| F | A number of standby hours (24 for NFPA 72, Chapter 1, 1-5.2.5). | H | ||||
| G | Multiply lines E and F. Total stand-by AH | AH | ||||
| H | Alarm sounding period in hours. (For example, 5 minutes = 0.0833 hours.) | H | ||||
| I | Multiply lines E and H. Total alarm AH | AH | ||||
| J | Add lines G and I. Total stand-by and alarm AH | AH | ||||
| K | Multiply line J by 1.30. (30% extra insurance to meet desired performance) Total ampere – hours required | AH | ||||
If the total ampere – hour required exceeds 40AH, decrease AUX current to provide enough stand-by time for the application. Select a battery with an AH rating equal to or greater than the value calculated.
FireSwitch Applications:
1. General Information:
Altronix FireSwitch units are very versatile devices. They can be used with or without specific synchronization modules provided by some manufacturers. Multiple units can be synchronized by using either the built-in sync mode or an external synchronization module. Please note that only notification appliances with synchronization capabilities can be synchronized. Units can operate with either one (1) or two (2) outputs from the FACP.
2. Class A and Class B Connections:
Units can be used with the outputs configured for:
- Four (4) Class A (Fig. 6).
- Up to eight (8) Class B.
- Combination of Class A and Class B outputs (Fig. 7).

| NAC Loop | Starts On | Terminates On |
| 1 | OUT 1 | OUT 2 |
| 2 | OUT 3 | OUT 4 |
| 3 | OUT 5 | OUT 6 |
| 4 | OUT 7 | OUT 8 |
Please make sure corresponding outputs are programmed appropriately.
CO and Fire Alarm Applications Requirements:
The FireSwitch108 shall be configured for all NAC Outputs to indicate one of the following types of Alarms and Events:
- All NAC Outputs configured to indicate only Fire Alarms
- All NAC Outputs configured to indicate only CO Alarms
- All NAC Outputs are configured to indicate both CO Alarms and Fire Alarms.
If Item 1 is employed – Only Fire Alarms to be indicated, then the Trouble Relay connection to the FACP shall be Programmed to indicate “FIRE Trouble”at the FACP Display.
If Item 2 is employed – Only CO Alarms to be indicated, then the Trouble Relay connection to the FACP shall be Programmed to indicate “CO Trouble” at the FACP Display.
If Item 3 is employed – Both CO Alarms and Fire Alarms to be indicated, then the Trouble Relay connection to the FACP shall be Programmed to indicate “CO and Fire Trouble” at the FACP Display.
3. Combination CO and Fire Alarm Connections:
To comply with requirements of applicable UL and NFPA standards Fire Systems (UL 864), CAN/ ULC-S527-99 Control units for Fire Alarm Systems, NFPA 72, and NFPA 720 audible and visual notification appliances have to be used on different circuits. Systems have to be monitored by a supervising station and emergency response provided in accordance with NFPA 720.
For CO Alarms, the system must be monitored by a supervising station with emergency response.
CO combination mode settings are not accessible through the IP interface. In CO alarm mode the unit will indicate CO alarm which will be superseded by fire alarm if the fire alarm is initiated. In order for CO alarm mode to operate, horns and strobes have to be wired separately. The outputs for strobes should be programmed for 1e mode. The outputs for horns should be programmed for 2e mode. FACP has to initiate output 2 only during CO alarm and Output 1 and Output 2 during fire alarm conditions. To silence the horns during a fire alarm condition Output 2 has to be turned off, but Output 1 has to stay on. During CO alarm (Input 2 initiated only) horns will generate CO alert sequence (Temporal 4 pattern) and strobes will flash every second. During fire alarm conditions (Input 1 only or Inputs 1 and 2) strobes will flash and horns will generate a Temporal3 pattern unless silenced.
The FACP to INP1, and INP2 wiring connections are to be in a conduit within 20 ft.
Programming and LCD Legend:
| LCD Legend | Description |
| 1e | Generates strobe sync signal |
| 2e | Generates T3 horn temporal pattern or T4 temporal pattern (see above). |
Horn settings for CO alarm:
Gentex, Potter – Horns must be set to Steady mode.
System Sensor – Horns must be set for a coded output.
4. Non-Synchronizable NAC Appliances:
When using NAC appliances not designed to support synchronization features, it is recommended to use separate output circuits for audible notification appliances (horns) and visual notification appliances (strobes).
Program the FireSwitch to follow Input 1 [IN1] and for audible notification appliances to follow Input 2 [IN2]. This will allow, when using two (2) outputs from the FACP, to support the silencing of audible notification appliances. When using only one (1) FACP output, program to follow Input 1 [IN1]. The unit outputs can each be set for the desired NAC drive signal, such as Code 3 (Output Programming Selection Table, pg. 9). Non-synchronizable Audible Appliances will follow the sequence when the feature is selected.

5. Using Multiple NAC Power Extenders from an FACP:
FireSwitch is designed to follow (replicate) the coded sequence, generated by a manufacturer’s sync module. Up to eleven (11), FireSwitch108 units can be synchronized when interconnected with a host FACP. Connect the output of the FACP module to Input 1 and Input 2 Terminate the input circuit with the EOL (FACP), connecting it to terminals marked [RET +] and [RET –], or continue the input circuit, connecting to terminals marked [RET +] and [RET –] to [INP +] and [INP –] of the next unit when multiple units need to be triggered.
In case FACP does not have any synchronization capabilities and the sync mode is not used, the notification appliance synchronization will not be provided.

CAUTION: Do not connect any notification appliances on the control circuit interconnecting FACP outputs (sync module outputs) and inputs of NAC Power Extenders. Applications that do not employ a synchronization module or FACP with synchronization protocol will not provide NAC synchronization between NAC Power Extenders.
| Altronix Model | Max. Per Circuit | Max. Per FireSwitch108 |
| FireSwitch108 | 32 | 128 |
6. Synchronizing NAC Power Extender Using Built-In Sync Protocol:
FireSwitch units include built-in protocols to support Amseco/Potter, Gentex®, System Sensor® or CooperWheelock® two-wire synchronizable devices, therefore an external sync module is not required (OutputProgramming Selection Table, pg. 9). In these modes, Input 1 is always used to activate visual notification appliances (strobes), and Input 2 is used to activate and silence audible notification appliances (strobes) (Table, pg.9).
Note: Input 1 has to be activated in all the configurations.
7. Synchronizing multiple NAC Power Extender units (up to twelve):
Method 1 allows up to twelve (12) units to be synchronized (Fig. 10, pg. 17).
Method 2 allows up to four (4) units to be synchronized (Fig. 11, pg. 18).

When connecting, keep wires on different sides of the screw terminals in order to maintain loop integrity supervision.
DO NOT LOOP CONTINUOUS WIRE AROUND THE SCREW.
| Altronix Model | Max. Per Circuit | Max. Per FireSwitch108 |
| FireSwitch108 | 32 | 128 |

For this application set Dip Switches for INP2 to the “ON” position on all units, except the one triggered by FACP
8. Using a Single FACP Output:
When only one FACP output is available, you may connect both Input1 and Input2 to it.
Wire [RET1+] and [RET1–] to [INP2+] and [INP2–].
Both visual and audible notification appliances will be activated simultaneously (Fig. 13, pg. 20).

DIP Switches 1-4 Settings:
Dry contact INP1 configuration set SW1 and SW3 to the ON position.
Dry contact INP2 configuration set SW2 and SW4 to the ON position.
When connecting INP1 to the sync output of the FireSwitch unit for synchronization purposes set SW1 to the ON position and SW3 to the OFF position. For INP2 to the sync output of the FireSwitch unit for synchronization purposes set SW2 to the ON position and SW4 to the OFF position.
| SW1 | SW2 | SW3 | SW4 | |
| INP1 – Dry NC | ON | – | ON | – |
| INP2 – Dry NC | – | ON | – | ON |
| INP1 – Sync | ON | – | OFF | – |
| INP2 – Sync | – | ON | – | OFF |
Appendix A – UL/cUL Listed Devices Compatible for Synchronization
A-1 Strobes, Horns, and Horn/Strobes
Table A-1 below lists Strobes, Horns, and Horn/Strobes compatible with FireSwitch NAC outputs.
Gentex:
| GCS24CR – UL | GCCB24PCR / W – UL | GEC24-15/75WR – UL |
| GCS24CW – UL | GCCG24PCR / W – UL | GEC24-15/75WW – UL |
| GCS24PCR – UL | GCCR24PCR / W – UL | SSPK24CLPR – UL |
| GCS24PCW – UL | WGESA24-75PWR / W – UL | SSPK24CLPW – UL |
| GCC24CR – UL | WGESB24-75PWR / W – UL | SSPK24WLPR – UL |
| GCC24PCR – UL | WGESG24-75PWR / W – UL | SSPK24WLPW – UL |
| GCC24CW – UL | WGESR24-75PWR / G – UL | SSPK24AWR – UL |
| GCC24PCW – UL | WGECA24-75PWR / W – UL | SSPK24AWW – UL |
| GES3-24WR – UL | WGECB24-75PWR / W – UL | SSPK24-15/75WLPR – UL |
| GEC3-24WR – UL | WGECG24-75PWR / W – UL | SSPK24-15/75WLPW – UL |
| GEH24-R – UL | WGECR24-75PWR / G – UL | SSPK24-15/75AWR – UL |
| GEH24-W – UL | WGESA24-75PWLPR / W – UL | SSPK24-15/75AWW – UL |
| WGES24-75WR / WW – UL | WGESB24-75PWLPR / W – UL | SSPKA24-15/75PWR – UL |
| WGES24-75PWR / PWW – UL | WGESG24-75PWLPR / W – UL | SSPKA24-15/75PWW – UL |
| WGES24-75WRLP / WWLP – UL | WGESR24-75PWLPR / W – UL | SSPKA24-15/75AWR – UL |
| WGEC24-75WR / WW – UL | WGECA24-75PWLPR / W – UL | SSPKA24-15/75AWW – UL |
| WGEC24-75PWR / PWW – UL | WGECB24-75PWLPR / W – UL | SSPKB24-15/75PWR – UL |
| WGEC24-75WRLP / WWLP – UL | WGECG24-75PWLPR / W – UL | SSPKB24-15/75PWW – UL |
| WGEC24-75PWRLP / WWLP – UL | WGECR24-75PWLPR / W – UL | SSPKG24-15/75PWR – UL |
| GESA24PWR / W – UL | GX91-R / W – UL/cUL | SSPKG24-15/75PWW – UL |
| GESB24PWR / W – UL | GX91-PR / W – UL/cUL | SSPKR24-15/75PWR – UL |
| GESG24PWR / W – UL | GX93-R / W – UL/cUL | SSPKR24-15/75PWW – UL |
| GESR24PWR / W – UL | GX93-PR / W – UL/cUL | WSSPKA24-15/75AWR – UL |
| GECA24PWR / W – UL | WSSPK24-15/75WR / WW – UL | WSSPKA24-15/75AWW – UL |
| GECB24PWR / W – UL | WSSPK24-15/75PWR / PWW – UL | WSSPKA24-15/75PWR – UL |
| GECG24PWR / W – UL | WSSPK24-15/75AWR / AWW – UL | WSSPKA24-15/75PWW – UL |
| GECR24PWR / W – UL | GES24-177WR – UL | WSSPKB24-15/75PWR – UL |
| GCSA24PCR / W – UL | GES24-177WW – UL | WSSPKB24-15/75PWW – UL |
| GCSB24PCR / W – UL | GES24-15/75WR – UL | WSSPKG24-15/75PWR – UL |
| GCSG24PCR / W – UL | GES24-15/75WW – UL | WSSPKG24-15/75PWW – UL |
| GCSR24PCR / W – UL | GEC24-177WR – UL | WSSPKR24-15/75PWR – UL |
| GCCA24PCR / W – UL | GEC24-177WW – UL | WSSPKR24-15/75PWW – UL |
Potter/Amseco:
| CM24CR – UL | CSL-1224W-BW – UL/cUL | MH-12/24W – UL/cUL | SSC8-177R – UL |
| CM24CW – UL | CSL-1224W-GR – UL/cUL | SCM24C-177R – UL | SSC8-177W – UL |
| CSH-1224W-AR – UL/cUL | CSL-1224W-GW – UL/cUL | SCM24C-177W – UL | SSC8-3075110R – UL |
| CSH-1224W-AW – UL/cUL | CSL-1224W-RR – UL/cUL | SCM24C-3075110R – UL | SSC8-3075110W – UL |
| CSH-1224W-BR – UL/cUL | CSL-1224W-RW – UL/cUL | SCM24C-3075110W – UL | SSR2-177R – UL |
| CSH-1224W-BW – UL/cUL | CSL24CAW – UL/cUL | SH-1224R – UL/cUL | SSR2-177W – UL |
| CSH-1224W-GR – UL/cUL | CSL24C-BW – UL/cUL | SH-1224W – UL/cUL | SSR2-3075110R – UL |
| CSH-1224W-GW – UL/cUL | CSL24C-GW – UL/cUL | SH-1224WP-R – UL/cUL | SSR2-3075110W – UL |
| CSH-1224W-RR – UL/cUL | CSL24C-RW – UL/cUL | SH-1224WP-W – UL/cUL | SSR8-177R – UL |
| CSH-1224W-RW – UL/cUL | CSL24C-AR – UL/cUL | SH24C-177R – UL/cUL | SSR8-177W – UL |
| CSH24C-AW – UL/cUL | CSL24C-BR – UL/cUL | SH24C-177W – UL/cUL | SSR8-3075110R – UL |
| CSH24C-BW – UL/cUL | CSL24C-GR – UL/cUL | SL-1224R – UL/cUL | SSR8-3075110W – UL |
| CSH24C-GW – UL/cUL | CSL24C-RR – UL/cUL | SL-1224W – UL/cUL | SSS2-1530R – UL |
| CSH24C-RW – UL/cUL | H-1224R – UL/cUL | SL-1224WP-R – UL/cUL | SSS2-1530W – UL |
| CSH24C-AR – UL/cUL | H-1224W – UL/cUL | SL-1224WP-W – UL/cUL | SSS2-75110R – UL |
| CSH24C-BR – UL/cUL | HP-25TR – UL/cUL | SL-24W – UL/cUL | SSS2-75110W – UL |
| CSH24C-GR – UL/cUL | HP-25TW – UL/cUL | SSC2-177R – UL | SSS8-1530R – UL |
| CSH24C-RR – UL/cUL | MH-12/24R – UL/cUL | SSC2-177W – UL | SSS8-1530W – UL |
| CSL-1224W-AR – UL/cUL | MH-12/24TR – UL/cUL | SSC2-3075110R – UL | SSS8-75110R – UL |
| CSL-1224W-AW – UL/cUL | MH-12/24TW – UL/cUL | SSC2-3075110W – UL | SSS8-75110W – UL |
| CSL-1224W-BR – UL/cUL |
Cooper/Wheelock:
| 50-241575W-FR – UL/cUL | E70-24MCW-FN – UL/cUL | ET90-24MCCH-FN – UL/cUL | LSTW-A* – UL/cUL |
| AH-24WP-R – UL | E70-24MCW-FR – UL/cUL | ET90-24MCCH-FW – UL/cUL | LSTW-ALA* – UL/cUL |
| AMT-12/24-R – UL/cUL | E70-24MCW-FW – UL/cUL | HNR – UL/cUL | LSTW-NA* – UL/cUL |
| AMT-12/24-W – UL/cUL | E70-24MCWH-FN – UL/cUL | HNRC – UL/cUL | LSTW-NA* – UL/cUL |
| AMT-241575W-FR – UL/cUL | E70-24MCWH-FR – UL/cUL | HNW – UL/cUL | MIZ-24S-R – UL/cUL |
| AMT-241575W-FR-NYC – UL | E70-24MCWH-FR – UL/cUL | HNWC – UL/cUL | MIZ-24S-W – UL/cUL |
| AMT-241575W-FW – UL/cUL | E70-24MCWH-FW – UL/cUL | HS-24-R – UL/cUL | MT-12/24-R – UL |
| AMT-24MCW-FR – UL/cUL | E70H-241575W-FR – UL/cUL | HS-24-W – UL/cUL | MT-241575W-FR – UL/cUL |
| AMT-24MCW-FW – UL/cUL | E70H-241575W-FW – UL/cUL | HS4-241575W-FR – UL/cUL | MT-241575W-FW – UL/cUL |
| AS-12100C – UL/cUL | E70H-24MCW-FR – UL/cUL | HS4-24MCC-FR – UL | MT-24MCW-FR – UL/cUL |
| AS-24100C – UL/cUL | E70H-24MCW-FW – UL/cUL | HS4-24MCC-FW – UL/cUL | MT-24MCW-FW – UL/cUL |
| ASWP-2475C-FR – UL | E70H-24MCWH-FN – UL/cUL | HS4-24MCW-FR – UL/cUL | MTWP-2475C-FR – UL |
| ASWP-2475C-FW – UL | E70H-24MCWH-FW – UL/cUL | HS4-24MCW-FW – UL/cUL | MTWP-2475C-FW – UL |
| ASWP-2475W-FR – UL | E90-24MCC-FN – UL/cUL | HSR – UL/cUL | MTWP-2475W-FR – UL |
| ASWP-2475W-FW – UL | ET90-24MCC-FW – UL/cUL | HSRC – UL/cUL | MTWP-2475W-FW – UL |
| ASWP-24MCCH-FR – UL | ET90-24MCC-FN – UL/cUL | HSW – UL/cUL | MTWP-24MCCH-FR – UL |
| ASWP-24MCCH-FW – UL | E90-24MCC-FR – UL/cUL | HSWC – UL/cUL | MTWP-24MCCH-FW – UL |
| ASWP-24MCWH-FR – UL | E90-24MCC-FW – UL/cUL | LHNR* – UL/cUL | MTWP-24MCWH-FR – UL |
| ASWP-24MCWH-FW – UL | E90-24MCCH-FN – UL/cUL | LHNW* – UL/cUL | MTWP-24MCWH-FW – UL |
| CH70-24MCW-FR – UL/cUL | E90-24MCCH-FR – UL/cUL | LHSR* – UL/cUL | RSS-241575W-FR – UL/cUL |
| CH70-24MCW-FW – UL/cUL | E90-24MCCH-FW – UL/cUL | LHSR-A* – UL/cUL | RSS-241575W-FW – UL/cUL |
| CH70-24MCWH-FR – UL/cUL | E90H-24MCC-FR – UL/cUL | LHSR-AL* – UL/cUL | RSS-24MCW-FR – UL/cUL |
| CH70-24MCWH-FW – UL/cUL | E90H-24MCC-FW – UL/cUL | LHSR-N* – UL/cUL | RSS-24MCW-FW – UL/cUL |
| CH90-24MCC-FR – UL/cUL | E90H-24MCCH-FR – UL/cUL | LHSW* – UL/cUL | RSS-24MCWH-FR – UL/cUL |
| CH90-24MCC-FW – UL/cUL | E90H-24MCCH-FW – UL/cUL | LHSW-A* – UL/cUL | RSS-24MCWH-FW – UL/cUL |
| CH90-24MCCH-FR – UL/cUL | EET90-24MCCH-FR – UL/cUL | LHSW-AL* – UL/cUL | RSSA-24MCC-NW – UL |
| CH90-24MCCH-FW – UL/cUL | ET-1010-R – UL | LHSW-N* – UL/cUL | RSSA-24MCCH-NW – UL |
| E50-241575W-FW – UL/cUL | ET-1010-W – UL | LSPSTR* – UL/cUL | RSSB-24MCC-NW – UL |
| E50-24MCWH-FR – UL/cUL | ET70-241575W-FR – UL/cUL | LSPSTR-AL* – UL/cUL | RSSB-24MCCH-NW – UL |
| E50-24MCWH-FW – UL/cUL | ET70-241575W-FW – UL/cUL | LSPSTR-ALA* – UL/cUL | RSSG-24MCC-NW – UL |
| E50H-241575W-FR – UL/cUL | ET70-24MCW-FN – UL/cUL | LSPSTR-N* – UL/cUL | RSSG-24MCCH-NW – UL |
| E50H-241575W-FW – UL/cUL | ET70-24MCW-FR – UL/cUL | LSPSTR-NA* – UL/cUL | RSSR-24MCC-NW – UL |
| E50H-24MCW-FR – UL/cUL | ET70-24MCW-FW – UL/cUL | LSPSTW* – UL/cUL | RSSR-24MCCH-NW – UL |
| E50H-24MCW-FW – UL/cUL | ET70-24MCWH-FN – UL/cUL | LSPSTW-AL* – UL/cUL | RSSWP-2475C-FR – UL |
| E50H-24MCWH-FR – UL/cUL | ET70-24MCWH-FR – UL/cUL | LSPSTW-ALA* – UL/cUL | RSSWP-2475C-FW – UL |
| E50H-24MCWH-FW -UL/cUL | ET70-24MCWH-FW – UL/cUL | LSPSTW-N* – UL/cUL | RSSWP-2475W-AR – UL |
| E60-24MCC-FR – UL/cUL | ET70WP-24185W-FR – UL | LSPSTW-NA* – UL/cUL | RSSWP-2475W-FR – UL |
| E60-24MCC-FW – UL/cUL | ET70WP-24185W-FW – UL | LSTR* – UL/cUL | RSSWP-2475W-FW – UL |
| E60-24MCCH-FR – UL/cUL | ET70WP-2475C-FR – UL | LSTR-A* – UL/cUL | RSSWP-2475W-NW – UL |
| E60-24MCCH-FW – UL/cUL | ET70WP-2475C-FW – UL | LSTR-AL* – UL/cUL | RSSWP-24MCCH-FR – UL |
| E60H-24MCC-FR – UL/cUL | ET80-24MCW-FR – UL/cUL | LSTR-ALA* – UL/cUL | RSSWP-24MCCH-FW – UL |
| E60H-24MCC-FW – UL/cUL | ET80-24MCW-FW – UL/cUL | LSTR-NA* – UL/cUL | RSSWP-24MCWH-FR – UL |
| E60H-24MCCH-FR – UL/cUL | ET80-24MCWH-FR – UL/cUL | LSTRW-ALA* – UL/cUL | RSSWP-24MCWH-FW – UL |
| E60H-24MCCH-FW – UL/cUL | ET80-24MCWH-FW – UL/cUL | LSTW* – UL/cUL | S8-24MCC-FW – UL/cUL |
| S8-24MCCH-FW – UL/cUL | STH-3R24MCCH-NR – UL | STR-ALB – UL | STW-ALB – UL |
| SA-S70-24MCW-FR – UL | STH-4M30WC – UL | STR-NA – UL | STW-NA – UL |
| SA-S70-24MCW-FW – UL | STH-4MS-R – UL | STR-NB – UL | STW-NB – UL |
| SA-S90-24MCC-FR – UL | STH-4R – UL | STR-NG – UL | STW-NG – UL |
| SA-S90-24MCC-FW – UL | STH-4R24MCCH-NW – UL | STR-NR – UL | STW-NR – UL |
| STH-2G – UL | STH-4R24MCCH110B-NR – UL | STRC-NA – UL | STWC-AB – UL |
| STH-2MS-R – UL | STH-4R24MCCH110R-NA – UL | STRC-NB – UL | STWC-ALA – UL |
| STH-2R – UL | STH-4R24MCCH110R-NR – UL | STRC-NG – UL | STWC-ALB – UL |
| STH-2R24MCCH-NR – UL | STH-90-4R24MCCH-NW – UL | STRC-NR – UL | STWC-NA – UL |
| STH-3MS-R – UL | STR-AB – UL | STW-AB – UL | STWC-NB – UL |
| STH-3R – UL | STR-ALA – UL | STW-ALA – UL | STWC-NG – UL |
| STWC-NR – UL | |||
*When using these model strobes the maximum current per NAC is limited to 2A.
System Sensor:
| CHSR – UL | P4R-SP – UL | PC4RH-P – UL | SPSCW – UL | SPSWK-CLR-ALERT -UL |
| CHSW – UL | P4RH – UL | PC4RH-SP – UL | SPSCW-CLR-ALERT – UL | SPSWK-P – UL |
| HR/HRK/HW – UL | P4RH-P – UL | PC4W – UL | SPSCW-P – UL | SPSWK-R – UL |
| MHR – UL | P4RH-SP – UL | PC4W-P – UL | SPSCWH – UL | SPSWV – UL |
| MHW – UL | P4RK – UL | PC4W-SP – UL | SPSCWH-P – UL | SPSWV-P – UL |
| P1224MC – UL | P4RK-R – UL | PC4WH – UL | SPSCWHK – UL | SR – UL |
| P2R – UL | P4W – UL | PC4WH-P – UL | SPSCWHK-P – UL | SR-P – UL |
| P2R-P – UL | P4W-P – UL | PC4WH-SP – UL | SPSCWK – UL | SR-SP – UL |
| P2R-SP – UL | P4W-SP – UL | PC4WHK – UL | SPSCWK-CLR-ALERT – UL | SRH – UL |
| P2RH – UL | P4WH – UL | PC4WK – UL | SPSCWK-R – UL | SRH-P – UL |
| P2RH-LF – UL | P4WH-P – UL | SCR – UL | SPSCWV – UL | SRH-SP – UL |
| P2RH-P – UL | P4WH-SP – UL | SCR-P – UL | SPSCWV-P – UL | SRHK – UL |
| P2RH-SP – UL | P4WK – UL | SCR-SP – UL | SPSCWVH – UL | SRHK-P – UL |
| P2RHK – UL | PC2R – UL | SCRH – UL | SPSCWVH-P – UL | SRHK-R – UL |
| P2RHK-P – UL | PC2R-P – UL | SCRH-P – UL | SPSR – UL | SRK – UL |
| P2RHK-R – UL | PC2RH – UL | SCRH-SP – UL | SPSR-P – UL | SRK-P – UL |
| P2RK – UL | PC2RH-P – UL | SCRHK – UL | SPSRH – UL | SRK-R – UL |
| P2RK-P – UL | PC2RH-SP – UL | SCRK – UL | SPSRH-P – UL | SW – UL |
| P2RK-R – UL | PC2RHK – UL | SCW – UL | SPSRHK – UL | SW-ALERT – UL |
| P2W – UL | PC2RK – UL | SCW-CLR-ALERT – UL | SPSRK – UL | SW-CLR-ALERT – UL |
| P2W-P – UL | PC2W – UL | SCW-P – UL | SPSRK-P – UL | SW-P – UL |
| P2W-SP – UL | PC2W-P – UL | SCW-SP – UL | SPSRK-R – UL | SW-SP – UL |
| P2WH – UL | PC2W-SP – UL | SCWH – UL | SPSRV – UL | SWH – UL |
| P2WH-LF – UL | PC2WH – UL | SCWH-P – UL | SPSRV-P – UL | SWH-ALERT – UL |
| P2WH-P – UL | PC2WH-P – UL | SCWH-SP – UL | SPSW – UL | SWH-P – UL |
| P2WH-SP – UL | PC2WH-SP – UL | SCWHK – UL | SPSW-ALERT – UL | SWH-SP – UL |
| P2WHK – UL | PC2WHK – UL | SCWK – UL | SPSW-CLR-ALERT – UL | SWHK – UL |
| P2WHK-P – UL | PC2WK – UL | SPSCR – UL | SPSW-P – UL | SWHK-P – UL |
| P2WK – UL | PC4R – UL | SPSCRH – UL | SPSWH – UL | SWK – UL |
| P2WK-P – UL | PC4R-P – UL | SPSCRV – UL | SPSWH-P – UL | SWK-P – UL |
| P4R – UL | PC4R-SP – UL | SPSCRVH – UL | SPSWK – UL | P2GRL |
| P4R-P – UL | PC4RH – UL | P2RL | P2WL | P2GWL |
| P2RL-P | P2WL-P | P2RL-SP | P2WL-SP | P4RL |
| P4WL | SRL | SWL | SGRL | SGWL |
| SRL-P | SWL-P | SRL-SP | SWL-CLR-ALERT | SPSCWL |
| SPSCRL | SPSCWL-P | SPSCWL-SP | SPSCWL-CLR-ALERT | SPSWL |
| SPSRL | SPSWL-P | SPSRL-P | SPSWL-Alert | SPSWL-CLR-Alert |
| SPSRL-SP |
Appendix B – UL Listed Compatible Devices
B.1 Relays
Table B-2 below lists relays compatible with FireSwitch AUX output and Outputs 1-8 when programmed as AUX.
| Manufacturer | Model | Current (mA) |
| System Sensor | PR-1 | 15 |
| PR-2 | 30 | |
| PR-3 | 30 | |
| EOLR-1 | 30 | |
| R-10T | 23 | |
| R-14T | 23 |
| Manufacturer | Model | Current (mA) |
| System Sensor | R-20T | 40 |
| R-24T | 40 | |
| R-10E | 23 | |
| R-14E | 23 | |
| R-20E | 40 | |
| R-24E | 40 |


Altronix is not responsible for any typographical errors.
140 58th Street, Brooklyn, New York 11220 USA | phone: 718-567-8181 | fax: 718-567-9056
website: www.altronix.com | e-mail: [email protected] | Lifetime Warranty
IIFireSwitch108 K11U



















