Mircom BPS-1002 NAC Power Extender

Overview
Mircom BPS-1002 is an extremely cost effective 10 amp remote power supply/battery charger. It may be connected to any 12 or 24 volt Fire Alarm Control Panel (FACP). Primary applications include Notification Appliance Circuit (NAC such as strobes and horns) expansion support to meet ADA requirements. It also provides auxiliary power to support system accessories. The unit delivers electronically regulated and filtered 24 volt power to Class B, Style W, Y or Class A, Style Z NAC loop circuits. Additionally, a separate 1.0A auxiliary output for four (4)-wire smoke detectors is available. The 10 amp max. alarm current can be divided between the four (4) outputs for powering NAC devices. Each output is rated at 2.5 amp max., and can be independently programmed for Steady, Temporal Code 3 or Strobe Synchronization. All outputs may be programmed for Input to Output Follower Mode (output will follow input). In non-alarm condition independent loop supervision for Class A, Style Z and/or Class B, Style W, Y FACP NAC circuits is provided. In the event of a loop trouble, the FACP will be notified via the steered input (input 1 or input 2). In addition, there are common trouble output terminals (NC, C, NO) which are used to indicate general loop/system trouble. A common trouble input is provided for optional NC (normally closed) devices to report trouble to the FACP. Two (2) FACP signaling outputs can be employed and directed to control supervision and power delivery to any combination of the four (4) outputs.
Specifications
Agency Listings:
- UL Listed Control Units for Fire Protective Signaling Systems (UL 864).
- MEA – NYC Department of Buildings Approved.
- CSFM – California State Fire Marshal Approved.
- FM – Factory Mutual Approved.
- NFPA 72 Compliant.
Input:
- Power input 120VAC 60 Hz, 5.0 amp.
- Two (2) Class A, Style Z or two (2) Class B, Style W, Y FACP inputs.
- Two (2) NC dry contact trigger inputs.
Output:
- Class 2 Rated power-limited outputs.
- 24VDC @10 amp max total alarm current.
- 2.5 amp max current per output.
- Separate 1.0 amp auxiliary output.
- Programmable supervised indicating circuit outputs: Four (4) Class B, Style W, Y or Two (2) Class A, Style Z or One (1) Class A, Style Z and Two (2) Class B, Style W, Y (see Application Guide).
- Thermal and short circuit protection with auto reset.
Battery Backup:
- Built-in charger for sealed lead acid or gel type batteries.
- Automatic switchover to stand-by battery when AC Fails.
- Zero voltage drop when switching over to battery backup.
Supervision:
- AC fail supervision (form “C” contact, 1 amp / 28VDC). Factory set for 1.5 hours with optional 30 seconds delay setting (field selectable).
- Instant local AC trouble reporting relay (form “C” contact, 1 amp / 28VDC).
- Battery presence and low battery supervision (form “C” contact, 1 amp / 28VDC).
Visual Indicators:
- Input and output status LED indicators.
Special Features:
- 2-wire horn/strobe Sync mode allows audible notification appliances (horns) to be silenced while visual notification appliances (strobes) continue to operate.
- Sync protocols include Potter/Amseco, Faraday, Gentex®, System Sensor®, and CooperWheelock®.
- Temporal Code 3, Steady Mode, Input to Output Follower Mode (maintains synchronization of notification appliances circuit).
- Compatible with 12VDC or 24VDC fire panels.
- Output loop supervision steered to input 1 or input 2.
- Signal circuit trouble memory (helps identify intermittent loop problems).
- Common trouble input and output.
- Ground fault detection.
- Unit includes power supply, red enclosure, cam lock, and battery leads.
Enclosure Dimensions (approx. H x W x D): 15.5” x 12” x 4.5” (393.7mm x 304.8mm x 114.3mm).
Power Supply Specifications
| AC Input: | 120VAC 60Hz, 5 amp. |
| Output: | Four (4) regulated supervised NAC output circuits, 24VDC, 2.5 amp maximum current. One (1) aux. special application 24VDC power output circuit 1 amp, non-supervised total output current must not exceed current 10 amp in Alarm Condition. |
| Battery: | Use two (2) 12VDC / 12AH or two (2) 12VDC / 7AH batteries connected in series. |
| Stand-by/Alarm Current Consumption: | 130mA/300mA |
| EOL Resistor (end of line): | 2.2K (2200 ohm). |
| Ground fault maximum test impedance: | 1000 ohm. |
Stand-by Specifications
| Stand-by Batteries | Stand-by Time Total Amp/Minutes | Alarm Output Current |
| 24VDC/7AH | 24 Hours | 10 amp/5 minutes |
| 24VDC/12AH (use two (2) 12VDC batteries in series) | 24 Hours | 10 amp/5 minutes |
| 24VDC/36AH | 24 Hours | 10 amp/5 minutes |
Note: Unit is equipped with 1 amp max. auxiliary output: “AUX” will remain battery backed up during power outage. For loads connected to “AUX” please refer to battery “Stand-by Specifications” above for ratings. When loads are connected to “AUX” output during alarm condition, the remaining outputs may not exceed 10 amp total alarm current (example: AUX = 1 amp, outputs up to 9 amp).
Installation Instructions

Wiring methods shall be in accordance with the National Electrical Code/NFPA 70/NFPA 72/ANSI, and with all local codes and authorities having jurisdiction. Product is intended for indoor use only.
Carefully review:
Application Guide for BPS-602, BPS-802, BPS-1002
Power Supply Specifications (pg. 3)
Stand-by Specifications (pg. 3)
Output Programming Selection Table (pg. 4)
Sync Mode Selection Table (pg. 4)
Terminal Identification Table (pgs. 5-6)
LED Status Indication Table (pg. 6)
- Mount unit in the desired location. Mark and predrill holes in the wall to line up with the top two keyholes in the enclosure. Install two upper fasteners and screws in the wall with the screw heads protruding. Place the enclosure’s upper keyholes over the two upper screws, level and secure. Mark the position of the lower two holes. Remove the enclosure. Drill the lower holes and install the two fasteners. Place the enclosure’s upper keyholes over the two upper screws. Install the two lower screws and make sure to tighten all screws (Enclosure Dimensions, pg. 16).
- Connect green lead to earth ground (Fig 1). Connect the line [L] and neutral [N] terminals to a separate unswitched AC circuit (120VAC, 60Hz) dedicated to the Fire Alarm System.
- Measure output voltage before connecting devices. This helps avoiding potential damage.
- Connect battery to the terminals marked [+ BAT — ] on the Power Supply Board (battery leads included).
Note: If batteries being used in your installation do not fit into the BPS-1002 unit, it is required to install a separate enclosure, UL Listed for appropriate application. Separate battery enclosure is required to have 50 cubic inches of additional open space. All wiring methods shall be in accordance with the National Electrical Code NFPA 70/ NFPA 72/ANSI and with all local codes and authorities having jurisdiction. Battery circuits are not power-limited; provide 0.25” spacing from power-limited circuits and use separate knockout. If additional battery enclosure is required, it must be UL Listed for the application and mounted within 5’ of the BPS-1002 enclosure in the same room; minimum 12 AWG wire in appropriate conduit is required for connection. When using conduit, make sure it is installed in a matter where it can not turn. - Set output selection switches marked [OUT1 through OUT4] to follow corresponding input [IN1] & I[N2] and desired output signal type (Output Programming Selection Table, pg. 4)
- Connect FACP output to desired AL800LGK logic board inputs, and notification appliances to desired AL800LGK logic board outputs (see Application Guide).
Note: The 2-wire horn/strobe sync mode will only synchronize horns, horn/strobes, strobes with synchronization capability. - For connection of smoke detectors, digital dialer see Optional Hookup Diagram, pg. 8.
Class A, Style Z Class B, Style W, Y, SW1 & SW2 Settings:
- For all Class B, Style W, Y, hookups SW1 & SW2 on the AL800LGK logic board must be open. For all Class A, Style Z hookups SW1 & SW2 on the AL800LGK logic board must be closed.
Output Programming Selection Table
Outputs must be programmed independently (OUT1 – OUT4)
| Function | Switch Positions | Descriptions | |
| ON | OFF | ||
| Input to Output Follower Mode | 1 | 2, 3 | Output follows signal it receives from the corresponding input (i.e. FACP Sync module – maintains synchronization of notification appliance circuit). |
| Temporal Code 3 Mode | 3 | 1, 2 | Enables Temporal Code 3 signal generation output. This mode will accept a steady or a pulsing input. |
| Steady Mode | 1, 2, 3 | A steady output signal will be generated. This mode will accept steady or pulsing input. | |
For the above modes Dip Switch 4 determines which Input controls the corresponding output:
Switch 4 in the ON position causes output(s) to be controlled by input 1.
Switch 4 in the OFF position causes output(s) to be controlled by input 2
(AL800LGK Board) Output Dip Switches
INPUT SELECT TEMPORAL STROBE SYNC IN>OUT SYNC

Sync Mode Selection Table
| Function | Switch Positions | Descriptions | |
| ON | OFF | ||
| Amseco Sync Mode* | 1, 3, 4 | 2 | This mode is designed to work with the Amseco series of horns, strobes, and horn/strobes to provide a means of synchronizing the Temporal-coded horns, synchronizing the flash timing of the strobe, and silencing the horns of the horn/ strobe combination over a two-wire circuit while leaving strobes active. |
| Faraday Sync Mode* | 2, 4 | 1, 3 | This mode is designed to work with the Faraday series of horns, strobes, and horn/ strobes to provide a means of synchronizing the Temporal-coded horns, synchronic- ing the flash timing of the strobe, and silencing the horns of the horn/strobe combi- nation over a two-wire circuit while leaving strobes active. |
| Gentex® Sync Mode* Gentex is a registered trademark of Gentex Corporation. | 1, 2, 3, 4 | This mode is designed to work with the Gentex® series of horns, strobes, and horn/ strobes to provide a means of synchronizing the Temporal-coded horns, synchronize- ing the flash timing of the strobe, and silencing the horns of the horn/strobe combi- nation over a two-wire circuit while leaving strobes active. | |
| System Sensor® Sync Mode* System Sensor is a registered trademark of Honeywell. | 1, 2, 4 | 3 | This mode is designed to work with the System Sensor® series of horns, strobes, and horn/strobes to provide a means of synchronizing the Temporal-coded horns, synchronizing the one-second flash timing of the strobe, and silencing the horns of the horn/strobe combination over a two-wire circuit while leaving strobes active. |
| Cooper Wheelock® Sync Mode* Cooper Wheelock is a registered trademark of Cooper Wheelock. | 2, 3, 4 | 1 | This mode is designed to work with the Cooper Wheelock series of horns, strobes, and horn/strobes to provide a means of synchronizing the Temporal-coded horns, synchronizing the one-second flash timing of the strobe, and silencing the horns of the horn/strobe combination over a two-wire circuit while leaving strobes active. |
Note: The BPS-1002 will only synchronize horns, horn/strobes and strobes that contain synchronization capability. Contact signal manufacturer for more detailed info. The same synchronization mode must be selected for all outputs.
Note: It is required to control visual notification appliances (strobes) via input 1 (IN1) and audible notification appliances (horns) via input 2 (IN2). This allows audible notification appliances (horns) to be silenced while visual notification appliances (strobes) continue to operate.
Amount of Notification Appliances per NAC:
| Amseco | 27 per NAC* |
| Faraday | 39 per NAC* |
| Gentex® | 32 per NAC* |
*Not to exceed a maximum of 2.5 amp per NAC.
| System Sensor® | 32 per NAC* |
| CooperWheelock® | 32 per NAC* |
Terminal Identification Table
AL800LGK Logic Board
| Terminal Legend | Function/Description |
| IN1+, IN1- IN2+, IN2- (Supervised) | These terminals connect to the 12VDC or 24VDC FACP notification appliance circuit outputs. (Class A, Style Z or Class B, Style W, X, Y) Input trigger voltage is 8-33VDC @ 5mA min. Terminal polarity is shown in alarm condition. During an alarm condition these inputs will cause the selected outputs chosen to drive notification appliances. The designated outputs are set by output switches [OUT1 through OUT4] (Output Programming Selection Table, pg. 4). A trouble condition on an output loop will cause the corresponding input to trip the FACP by opening the FACP loop. An alarm condition will always override trouble to drive notification appliances. |
| RET1+, RET1- RET2+, RET2- (Supervised) | For Class A, Style Z hookups these terminal pairs return to FACP NAC1 and/or NAC2. For Class B, Style W, X, Y hookups the FACP EOL resistor from the NAC1 and/or NAC2 outputs are terminated at these terminals. |
| C “DRY1” NC C “DRY2” NC (Dry input trigger) | An open across these inputs, will cause the selected outputs chosen to drive notification appliances. The designated outputs are set by output switches [OUT1 through OUT4] (Output Programming Selection Table, pg. 4). Note these inputs are unidirectional and will not report a trouble condition to the FACP. |
| + OUT1 — + OUT2 — + OUT3 — + OUT4 — (Supervised) | Notification appliances are connected to these regulated outputs (see Application Guide pg. 2-4). Each power-limited output will supply 2.5 amp. Two (2) outputs may be connected in parallel for a maximum NAC output capability of 4 amp. Total supply current is 10 amp (see note below). Outputs are controlled by designated input 1 [IN1] or input 2 [IN2] (Output Programming Selection Table, pg. 4). Maximum line loss or voltage drop (tested with 2.5V). |
| C “FAULT” NC (Common trouble input) | An open circuit across this pair of terminals will cause [IN1 and IN2] to simultaneously signal a trouble condition back to the FACP (Typically used to report AC or BAT Fail). (form “C” contact 1 amp / 28VDC) (Fig. 3, pg. 8). |
| NC, C, NO (Common trouble input) | These are dry contact trouble outputs that follow any general loop/system trouble conditions. (Typically used to trigger a digital communicator or other reporting device). (form “C” contact 1 amp / 28VDC 0.35 Power Factor) (Fig. 3, pg. 8). |
| — AUX+ | This separate 1 amp max. auxiliary Special Application Power output circuit is typically used to power 4-wire smoke detectors. See attached list of devices (Appendix A, pgs. 10-11). |
| + DC — | 24VDC from power supply. |
Note: Unit is equipped with 1 amp max. auxiliary output: “AUX” will remain battery backed up during power outage. For loads connected to “AUX” please refer to battery “Stand-by Specifications” above for ratings. When loads are connected to “AUX” output during alarm condition, the remaining outputs may not exceed 10 amp total alarm current (example: AUX = 1 amp, outputs up to 9 amp).
Power Supply Board*
| Terminal Legend | Function/Description |
| L, N | Connect 120VAC to these terminals: L to hot, N to neutral (Fig. 2, pg. 7). |
| – DC + | 24VDC @ 10 amp in alarm non power-limited output (Fig. 2, pg. 7). |
| AC FAIL NO, C, NC | Form “C” dry contacts used to instantaneously signal the loss AC to local annunciation devices, with AC present terminals marked NO and C are open, NC and C are closed. When loss of AC occurs terminals marked NO and C are closed, NC and C are open. |
| AC LOCAL NC, NO, C | Form “C” dry contacts used to instantaneously signal the loss AC to local annunciation devices, with AC present terminals marked NO and C are open, NC and C are closed. When loss of AC occurs terminals marked NO and C are closed, NC and C are open. |
| BAT FAIL NO, C, NC | Form “C” dry contacts used to signal low battery voltage or loss of battery voltage. Under normal conditions terminals marked NO and C are open, NC and C are closed. During a trouble condition terminals marked NO and C are closed, and NC and C are open (Fig. 3, pg. 8). |
| + BAT – | Stand-by battery input (leads provided) (Fig. 3, pg. 8). |
*Power Board Parameter Specifications:
- AC Fail condition will report approximately 1.5 hours after loss of AC. To set AC Delay to 30 seconds, power the unit down (AC supply and Battery) prior to changing switch position. Open Switch “AC Delay” or close “AC Delay” switch, respectively.
- Low battery condition will report at approximately 20VDC.
- Battery presence detection will report with in 180 seconds after battery remains undetected (missing or removed). A restored battery will report within 30 seconds.
LED Diagnostics
Power Supply Board
| Red (DC) | Green (AC) | Power Supply Status |
| ON | ON | Normal operating condition. |
| ON | OFF | Loss of AC. Stand-by battery is supplying power. |
| OFF | ON | No DC output. |
| OFF | OFF | Loss of AC. Discharged or no stand-by battery. No DC output. |
AL800LGK – Logic Board
| LED | OFF | ON | BLINK (LONG)* | BLINK (SHORT)** |
| ON | Normal | Alarm Condition | Trouble Condition | Trouble Condition Memory |
| ON | Normal | Alarm Condition | Trouble Condition | Trouble Condition Memory |
| OFF | Normal | Alarm Condition | Trouble Condition | Trouble Condition Memory |
| OFF | Normal | Alarm Condition | Trouble Condition | Trouble Condition Memory |
| Input 1 | Normal | Alarm Condition | Trouble Condition | — |
| Input 2 | Normal | Alarm Condition | Trouble Condition | — |
| Fault | Normal | Alarm Condition | — | — |
* Indicates current trouble condition. When trouble (open, short or ground) occurs on a specific output, the corresponding red output LED, [OUT1-OUT4] will blink. The corresponding green input LED will blink as well. Loop trouble will report within 30 seconds.
** Indicates trouble condition memory. When a trouble condition restores, the unit’s red output LED [OUT1-OUT4] will blink with a shorter and distinctly a different duration. The green input LEDs will be off (normal condition). To reset the memory depress the reset button (Fig. 3c, pg. 8). The LED(s) will extinguish.
Note: If indicating circuits have been restored, memory reset is not required for normal operation of the unit.
NEC Power-Limited Wiring Requirements for BPS-1002 Models
Power-limited and non power-limited circuit wiring must remain separated in the cabinet. All power-limited circuit wiring must remain at least 0.25” away from any non power-limited circuit wiring. Furthermore, all power-limited circuit wiring and non power-limited circuit wiring must enter and exit the cabinet through different conduits. One such example of this is shown below. Your specific application may require different conduit knockouts to be used. Any conduit knockouts may be used. For power-limited applications use of conduit is optional. All field wiring connections must be made employing suitable gauge CM or FPL jacketed wire (or equivalent substitute).
Optional battery enclosure must be mounted adjacent to the power supply via Class 1 wiring methods.
Note: Refer to wire handling drawing below for the proper way to install the CM or FPL jacketed wire (Fig, 2a)

Optional Hookups
- Battery and AC monitoring: AC or Battery Fail condition will cause the common trouble input [C “FAULT” NC] to report back to the FACP via input 1 and input 2. The common trouble input may also be used for other optional supervisory monitoring.
To report AC and Battery Trouble connect the battery and AC Fail relay output shown in (Fig. 3a, Pg. 8) to the common trouble input. - Dry contact input (C “DRY1” NC) (C “DRY2” NC) can be used to alarm output from an addressable module (these inputs are unidirection and cannot report back to trigger module). Connection to triggering devices must be made within 20ft. of distance and using conduit for wiring.
- Auxiliary output (-AUX+) 24VDC at 1 amp max.
- AC Local [NC, NO, C] should connect to the host control panel for local annunciation of the trouble condition.
Note: If common trouble input, terminals marked [C “FAULT” NC] are not used, these terminals must be shorted (connect jumper) to remain inactive. For optional hookups (Fig. 3b, Pg. 8).
Optional Hookup Diagram

Maintenance
Unit should be tested at least once a year for the proper operation as follows:
Output Voltage Test: Under normal load conditions, the DC output voltage should be checked for proper voltage level (26.2-26.4VDC recommended range).
Battery Test: Under normal load conditions check that the battery is fully charged. Check specified voltage both at battery terminal and at the board terminals marked [+ BAT –] to ensure that there is no break in the battery connection wires.
Fuses: Check input and output fuses on the power supply board, replace if necessary. Input fuse rating is 6.3 amp@ 250V, Output fuse rating is 15 amp @ 32V.
Note: Maximum charging current is 1.5 amp.
Note: Expected battery life is 5 years; however, it is recommended changing batteries in 4 years or less if needed
Battery Calculation Worksheet
| Device | Number of Devices | Current per Device | Stand-by Current | Alarm Current | ||
| For each device use this formula: | This column x This column = Equals | Current per number of devices. | ||||
| BPS-1002 (Current draw from battery) | 1 | Stand-by: | 130mA | 130mA | ||
| Alarm: | 300mA | 300mA | ||||
| A | BPS-1002 Current | 130mA | 300mA | |||
| Auxiliary Devices | Refer to device manual for current ratings. | |||||
| Alarm/Stand-by | mA | mA | mA | |||
| Alarm/Stand-by | mA | mA | mA | |||
| Alarm/Stand-by | mA | mA | mA | |||
| B | Auxiliary Devices Current (must not exceed 1 amp) | |||||
| Refer to device manual for current ratings. | ||||||
| Alarm: | mA | 0mA | mA | |||
| Alarm: | mA | 0mA | mA | |||
| Alarm: | mA | 0mA | mA | |||
| Alarm: | mA | 0mA | mA | |||
| C | Notification Appliances Current must not exceed 10 amp (10,000mA) 0mA | mA | ||||
| D | Total alarm current | mA | mA | |||
| E | Total current ratings converted to amperes (line D x 0.001) | A | A | |||
| F | Number of stand-by hours (24 for NFPA 72, Chapter 1, 1-5.2.5). | H | ||||
| G | Multiply lines E and F. Total stand-by AH | AH | ||||
| H | Alarm sounding period in hours. (For example, 5 minutes = 0.0833 hours.) | H | ||||
| I | Multiply lines E and H. Total alarm AH | AH | ||||
| J | Add lines G and I. Total stand-by and alarm AH | AH | ||||
| K | Multiply line J by 1.30. (30% extra insurance to meet desired performance) Total ampere – hours required | AH | ||||
Units are capable of recharging 36AH battery max. If total ampere – hour required exceeds 36AH, decrease AUX current to provide enough stand-by time for the application.
Appendix A – UL/cUL Listed Compatible Devices for Synchronization
A-1 Strobes, Horns and Horn/Strobes
Table A-1 below lists Strobes, Horns and Horn/Strobes compatible with BPS-1002 NAC outputs.
Gentex:
| GCS24CR – UL | GCCB24PCR / W – UL | GEC24-15/75WR – UL |
| GCS24CW – UL | GCCG24PCR / W – UL | GEC24-15/75WW – UL |
| GCS24PCR – UL | GCCR24PCR / W – UL | SSPK24CLPR – UL |
| GCS24PCW – UL | WGESA24-75PWR / W – UL | SSPK24CLPW – UL |
| GCC24CR – UL | WGESB24-75PWR / W – UL | SSPK24WLPR – UL |
| GCC24PCR – UL | WGESG24-75PWR / W – UL | SSPK24WLPW – UL |
| GCC24CW – UL | WGESR24-75PWR / G – UL | SSPK24AWR – UL |
| GCC24PCW – UL | WGECA24-75PWR / W – UL | SSPK24AWW – UL |
| GES3-24WR – UL | WGECB24-75PWR / W – UL | SSPK24-15/75WLPR – UL |
| GEC3-24WR – UL | WGECG24-75PWR / W – UL | SSPK24-15/75WLPW – UL |
| GEH24-R – UL | WGECR24-75PWR / G – UL | SSPK24-15/75AWR – UL |
| GEH24-W – UL | WGESA24-75PWLPR / W – UL | SSPK24-15/75AWW – UL |
| WGES24-75WR / WW – UL | WGESB24-75PWLPR / W – UL | SSPKA24-15/75PWR – UL |
| WGES24-75PWR / PWW – UL | WGESG24-75PWLPR / W – UL | SSPKA24-15/75PWW – UL |
| WGES24-75WRLP / WWLP – UL | WGESR24-75PWLPR / W – UL | SSPKA24-15/75AWR – UL |
| WGEC24-75WR / WW – UL | WGECA24-75PWLPR / W – UL | SSPKA24-15/75AWW – UL |
| WGEC24-75PWR / PWW – UL | WGECB24-75PWLPR / W – UL | SSPKB24-15/75PWR – UL |
| WGEC24-75WRLP / WWLP – UL | WGECG24-75PWLPR / W – UL | SSPKB24-15/75PWW – UL |
| WGEC24-75PWRLP / WWLP – UL | WGECR24-75PWLPR / W – UL | SSPKG24-15/75PWR – UL |
| GESA24PWR / W – UL | GX91-R / W – UL/cUL | SSPKG24-15/75PWW – UL |
| GESB24PWR / W – UL | GX91-PR / W – UL/cUL | SSPKR24-15/75PWR – UL |
| GESG24PWR / W – UL | GX93-R / W – UL/cUL | SSPKR24-15/75PWW – UL |
| GESR24PWR / W – UL | GX93-PR / W – UL/cUL | WSSPKA24-15/75AWR – UL |
| GECA24PWR / W – UL | WSSPK24-15/75WR / WW – UL | WSSPKA24-15/75AWW – UL |
| GECB24PWR / W – UL | WSSPK24-15/75PWR / PWW – UL | WSSPKA24-15/75PWR – UL |
| GECG24PWR / W – UL | WSSPK24-15/75AWR / AWW – UL | WSSPKA24-15/75PWW – UL |
| GECR24PWR / W – UL | GES24-177WR – UL | WSSPKB24-15/75PWR – UL |
| GCSA24PCR / W – UL | GES24-177WW – UL | WSSPKB24-15/75PWW – UL |
| GCSB24PCR / W – UL | GES24-15/75WR – UL | WSSPKG24-15/75PWR – UL |
| GCSG24PCR / W – UL | GES24-15/75WW – UL | WSSPKG24-15/75PWW – UL |
| GCSR24PCR / W – UL | GEC24-177WR – UL | WSSPKR24-15/75PWR – UL |
| GCCA24PCR / W – UL | GEC24-177WW – UL | WSSPKR24-15/75PWW – UL |
System Sensor:
| CHSR – UL | P4R-SP – UL | PC4RH-P – UL | SPSCW – UL | SPSWK-CLR-ALERT – UL |
| CHSW – UL | P4RH – UL | PC4RH-SP – UL | SPSCW-CLR-ALERT – UL | SPSWK-P – UL |
| HR/HRK/HW – UL | P4RH-P – UL | PC4W – UL | SPSCW-P – UL | SPSWK-R – UL |
| MHR – UL | P4RH-SP – UL | PC4W-P – UL | SPSCWH – UL | SPSWV – UL |
| MHW – UL | P4RK – UL | PC4W-SP – UL | SPSCWH-P – UL | SPSWV-P – UL |
| P1224MC – UL | P4RK-R – UL | PC4WH – UL | SPSCWHK – UL | SR – UL |
| P2R – UL | P4W – UL | PC4WH-P – UL | SPSCWHK-P – UL | SR-P – UL |
| P2R-P – UL | P4W-P – UL | PC4WH-SP – UL | SPSCWK – UL | SR-SP – UL |
| P2R-SP – UL | P4W-SP – UL | PC4WHK – UL | SPSCWK-CLR-ALERT – UL | SRH – UL |
| P2RH – UL | P4WH – UL | PC4WK – UL | SPSCWK-R – UL | SRH-P – UL |
| P2RH-LF – UL | P4WH-P – UL | SCR – UL | SPSCWV – UL | SRH-SP – UL |
| P2RH-P – UL | P4WH-SP – UL | SCR-P – UL | SPSCWV-P – UL | SRHK – UL |
| P2RH-SP – UL | P4WK – UL | SCR-SP – UL | SPSCWVH – UL | SRHK-P – UL |
| P2RHK – UL | PC2R – UL | SCRH – UL | SPSCWVH-P – UL | SRHK-R – UL |
| P2RHK-P – UL | PC2R-P – UL | SCRH-P – UL | SPSR – UL | SRK – UL |
| P2RHK-R – UL | PC2RH – UL | SCRH-SP – UL | SPSR-P – UL | SRK-P – UL |
| P2RK – UL | PC2RH-P – UL | SCRHK – UL | SPSRH – UL | SRK-R – UL |
| P2RK-P – UL | PC2RH-SP – UL | SCRK – UL | SPSRH-P – UL | SW – UL |
| P2RK-R – UL | PC2RHK – UL | SCW – UL | SPSRHK – UL | SW-ALERT – UL |
| P2W – UL | PC2RK – UL | SCW-CLR-ALERT – UL | SPSRK – UL | SW-CLR-ALERT – UL |
| P2W-P – UL | PC2W – UL | SCW-P – UL | SPSRK-P – UL | SW-P – UL |
| P2W-SP – UL | PC2W-P – UL | SCW-SP – UL | SPSRK-R – UL | SW-SP – UL |
| P2WH – UL | PC2W-SP – UL | SCWH – UL | SPSRV – UL | SWH – UL |
| P2WH-LF – UL | PC2WH – UL | SCWH-P – UL | SPSRV-P – UL | SWH-ALERT – UL |
| P2WH-P – UL | PC2WH-P – UL | SCWH-SP – UL | SPSW – UL | SWH-P – UL |
| P2WH-SP – UL | PC2WH-SP – UL | SCWHK – UL | SPSW-ALERT – UL | SWH-SP – UL |
| P2WHK – UL | PC2WHK – UL | SCWK – UL | SPSW-CLR-ALERT – UL | SWHK – UL |
| P2WHK-P – UL | PC2WK – UL | SPSCR – UL | SPSW-P – UL | SWHK-P – UL |
| P2WK – UL | PC4R – UL | SPSCRH – UL | SPSWH – UL | SWK – UL |
| P2WK-P – UL | PC4R-P – UL | SPSCRV – UL | SPSWH-P – UL | SWK-P – UL |
| P4R – UL | PC4R-SP – UL | SPSCRVH – UL | SPSWK – UL | |
| P4R-P – UL | PC4RH – UL |
A-1 Strobes, Horns and Horn/Strobes
Table A-1 below lists Strobes, Horns and Horn/Strobes compatible with BPS-1002 NAC outputs.
Potter/Amseco:
| CM24CR – UL | CSL-1224W-BW – UL/cUL | MH-12/24W – UL/cUL | SSC8-177R – UL |
| CM24CW – UL | CSL-1224W-GR – UL/cUL | SCM24C-177R – UL | SSC8-177W – UL |
| CSH-1224W-AR – UL/cUL | CSL-1224W-GW – UL/cUL | SCM24C-177W – UL | SSC8-3075110R – UL |
| CSH-1224W-AW – UL/cUL | CSL-1224W-RR – UL/cUL | SCM24C-3075110R – UL | SSC8-3075110W – UL |
| CSH-1224W-BR – UL/cUL | CSL-1224W-RW – UL/cUL | SCM24C-3075110W – UL | SSR2-177R – UL |
| CSH-1224W-BW – UL/cUL | CSL24CAW – UL/cUL | SH-1224R – UL/cUL | SSR2-177W – UL |
| CSH-1224W-GR – UL/cUL | CSL24C-BW – UL/cUL | SH-1224W – UL/cUL | SSR2-3075110R – UL |
| CSH-1224W-GW – UL/cUL | CSL24C-GW – UL/cUL | SH-1224WP-R – UL/cUL | SSR2-3075110W – UL |
| CSH-1224W-RR – UL/cUL | CSL24C-RW – UL/cUL | SH-1224WP-W – UL/cUL | SSR8-177R – UL |
| CSH-1224W-RW – UL/cUL | CSL24C-AR – UL/cUL | SH24C-177R – UL/cUL | SSR8-177W – UL |
| CSH24C-AW – UL/cUL | CSL24C-BR – UL/cUL | SH24C-177W – UL/cUL | SSR8-3075110R – UL |
| CSH24C-BW – UL/cUL | CSL24C-GR – UL/cUL | SL-1224R – UL/cUL | SSR8-3075110W – UL |
| CSH24C-GW – UL/cUL | CSL24C-RR – UL/cUL | SL-1224W – UL/cUL | SSS2-1530R – UL |
| CSH24C-RW – UL/cUL | H-1224R – UL/cUL | SL-1224WP-R – UL/cUL | SSS2-1530W – UL |
| CSH24C-AR – UL/cUL | H-1224W – UL/cUL | SL-1224WP-W – UL/cUL | SSS2-75110R – UL |
| CSH24C-BR – UL/cUL | HP-25TR – UL/cUL | SL-24W – UL/cUL | SSS2-75110W – UL |
| CSH24C-GR – UL/cUL | HP-25TW – UL/cUL | SSC2-177R – UL | SSS8-1530R – UL |
| CSH24C-RR – UL/cUL | MH-12/24R – UL/cUL | SSC2-177W – UL | SSS8-1530W – UL |
| CSL-1224W-AR – UL/cUL | MH-12/24TR – UL/cUL | SSC2-3075110R – UL | SSS8-75110R – UL |
| CSL-1224W-AW – UL/cUL | MH-12/24TW – UL/cUL | SSC2-3075110W – UL | SSS8-75110W – UL |
| CSL-1224W-BR – UL/cUL |
Cooper/Wheelock:
| 50-241575W-FR – UL/cUL | E70-24MCW-FN – UL/cUL | ET90-24MCCH-FN – UL/cUL | LSTW-A* – UL/cUL |
| AH-24WP-R – UL | E70-24MCW-FR – UL/cUL | ET90-24MCCH-FW – UL/cUL | LSTW-ALA* – UL/cUL |
| AMT-12/24-R – UL/cUL | E70-24MCW-FW – UL/cUL | HNR – UL/cUL | LSTW-NA* – UL/cUL |
| AMT-12/24-W – UL/cUL | E70-24MCWH-FN – UL/cUL | HNRC – UL/cUL | LSTW-NA* – UL/cUL |
| AMT-241575W-FR – UL/cUL | E70-24MCWH-FR – UL/cUL | HNW – UL/cUL | MIZ-24S-R – UL/cUL |
| AMT-241575W-FR-NYC – UL | E70-24MCWH-FR – UL/cUL | HNWC – UL/cUL | MIZ-24S-W – UL/cUL |
| AMT-241575W-FW – UL/cUL | E70-24MCWH-FW – UL/cUL | HS-24-R – UL/cUL | MT-12/24-R – UL |
| AMT-24MCW-FR – UL/cUL | E70H-241575W-FR – UL/cUL | HS-24-W – UL/cUL | MT-241575W-FR – UL/cUL |
| AMT-24MCW-FW – UL/cUL | E70H-241575W-FW – UL/cUL | HS4-241575W-FR – UL/cUL | MT-241575W-FW – UL/cUL |
| AS-12100C – UL/cUL | E70H-24MCW-FR – UL/cUL | HS4-24MCC-FR – UL | MT-24MCW-FR – UL/cUL |
| AS-24100C – UL/cUL | E70H-24MCW-FW – UL/cUL | HS4-24MCC-FW – UL/cUL | MT-24MCW-FW – UL/cUL |
| ASWP-2475C-FR – UL | E70H-24MCWH-FN – UL/cUL | HS4-24MCW-FR – UL/cUL | MTWP-2475C-FR – UL |
| ASWP-2475C-FW – UL | E70H-24MCWH-FW – UL/cUL | HS4-24MCW-FW – UL/cUL | MTWP-2475C-FW – UL |
| ASWP-2475W-FR – UL | E90-24MCC-FN – UL/cUL | HSR – UL/cUL | MTWP-2475W-FR – UL |
| ASWP-2475W-FW – UL | ET90-24MCC-FW – UL/cUL | HSRC – UL/cUL | MTWP-2475W-FW – UL |
| ASWP-24MCCH-FR – UL | ET90-24MCC-FN – UL/cUL | HSW – UL/cUL | MTWP-24MCCH-FR – UL |
| ASWP-24MCCH-FW – UL | E90-24MCC-FR – UL/cUL | HSWC – UL/cUL | MTWP-24MCCH-FW – UL |
| ASWP-24MCWH-FR – UL | E90-24MCC-FW – UL/cUL | LHNR* – UL/cUL | MTWP-24MCWH-FR – UL |
| ASWP-24MCWH-FW – UL | E90-24MCCH-FN – UL/cUL | LHNW* – UL/cUL | MTWP-24MCWH-FW – UL |
| CH70-24MCW-FR – UL/cUL | E90-24MCCH-FR – UL/cUL | LHSR* – UL/cUL | RSS-241575W-FR – UL/cUL |
| CH70-24MCW-FW – UL/cUL | E90-24MCCH-FW – UL/cUL | LHSR-A* – UL/cUL | RSS-241575W-FW – UL/cUL |
| CH70-24MCWH-FR – UL/cUL | E90H-24MCC-FR – UL/cUL | LHSR-AL* – UL/cUL | RSS-24MCW-FR – UL/cUL |
| CH70-24MCWH-FW – UL/cUL | E90H-24MCC-FW – UL/cUL | LHSR-N* – UL/cUL | RSS-24MCW-FW – UL/cUL |
| CH90-24MCC-FR – UL/cUL | E90H-24MCCH-FR – UL/cUL | LHSW* – UL/cUL | RSS-24MCWH-FR – UL/cUL |
| CH90-24MCC-FW – UL/cUL | E90H-24MCCH-FW – UL/cUL | LHSW-A* – UL/cUL | RSS-24MCWH-FW – UL/cUL |
| CH90-24MCCH-FR – UL/cUL | EET90-24MCCH-FR – UL/cUL | LHSW-AL* – UL/cUL | RSSA-24MCC-NW – UL |
| CH90-24MCCH-FW – UL/cUL | ET-1010-R – UL | LHSW-N* – UL/cUL | RSSA-24MCCH-NW – UL |
| E50-241575W-FW – UL/cUL | ET-1010-W – UL | LSPSTR* – UL/cUL | RSSB-24MCC-NW – UL |
| E50-24MCWH-FR – UL/cUL | ET70-241575W-FR – UL/cUL | LSPSTR-AL* – UL/cUL | RSSB-24MCCH-NW – UL |
| E50-24MCWH-FW – UL/cUL | ET70-241575W-FW – UL/cUL | LSPSTR-ALA* – UL/cUL | RSSG-24MCC-NW – UL |
| E50H-241575W-FR – UL/cUL | ET70-24MCW-FN – UL/cUL | LSPSTR-N* – UL/cUL | RSSG-24MCCH-NW – UL |
| E50H-241575W-FW – UL/cUL | ET70-24MCW-FR – UL/cUL | LSPSTR-NA* – UL/cUL | RSSR-24MCC-NW – UL |
| E50H-24MCW-FR – UL/cUL | ET70-24MCW-FW – UL/cUL | LSPSTW* – UL/cUL | RSSR-24MCCH-NW – UL |
| E50H-24MCW-FW – UL/cUL | ET70-24MCWH-FN – UL/cUL | LSPSTW-AL* – UL/cUL | RSSWP-2475C-FR – UL |
| E50H-24MCWH-FR – UL/cUL | ET70-24MCWH-FR – UL/cUL | LSPSTW-ALA* – UL/cUL | RSSWP-2475C-FW – UL |
| E50H-24MCWH-FW – UL/cUL | ET70-24MCWH-FW – UL/cUL | LSPSTW-N* – UL/cUL | RSSWP-2475W-AR – UL |
| E60-24MCC-FR – UL/cUL | ET70WP-24185W-FR – UL | LSPSTW-NA* – UL/cUL | RSSWP-2475W-FR – UL |
| E60-24MCC-FW – UL/cUL | ET70WP-24185W-FW – UL | LSTR* – UL/cUL | RSSWP-2475W-FW – UL |
| E60-24MCCH-FR – UL/cUL | ET70WP-2475C-FR – UL | LSTR-A* – UL/cUL | RSSWP-2475W-NW – UL |
| E60-24MCCH-FW – UL/cUL | ET70WP-2475C-FW – UL | LSTR-AL* – UL/cUL | RSSWP-24MCCH-FR – UL |
| E60H-24MCC-FR – UL/cUL | ET80-24MCW-FR – UL/cUL | LSTR-ALA* – UL/cUL | RSSWP-24MCCH-FW – UL |
| E60H-24MCC-FW – UL/cUL | ET80-24MCW-FW – UL/cUL | LSTR-NA* – UL/cUL | RSSWP-24MCWH-FR – UL |
| E60H-24MCCH-FR – UL/cUL | ET80-24MCWH-FR – UL/cUL | LSTRW-ALA* – UL/cUL | RSSWP-24MCWH-FW – UL |
| E60H-24MCCH-FW – UL/cUL | ET80-24MCWH-FW – UL/cUL | LSTW* – UL/cUL | S8-24MCC-FW – UL/cUL |
A-1 Strobes, Horns and Horn/Strobes
Table A-1 below lists Strobes, Horns and Horn/Strobes compatible with BPS-1002 NAC outputs.
Cooper/Wheelock:
| S8-24MCCH-FW – UL/cUL | STH-3R24MCCH-NR – UL | STR-ALB – UL | STW-ALB – UL |
| SA-S70-24MCW-FR – UL | STH-4M30WC – UL | STR-NA – UL | STW-NA – UL |
| SA-S70-24MCW-FW – UL | STH-4MS-R – UL | STR-NB – UL | STW-NB – UL |
| SA-S90-24MCC-FR – UL | STH-4R – UL | STR-NG – UL | STW-NG – UL |
| SA-S90-24MCC-FW – UL | STH-4R24MCCH-NW – UL | STR-NR – UL | STW-NR – UL |
| STH-2G – UL | STH-4R24MCCH110B-NR – UL | STRC-NA – UL | STWC-AB – UL |
| STH-2MS-R – UL | STH-4R24MCCH110R-NA – UL | STRC-NB – UL | STWC-ALA – UL |
| STH-2R – UL | STH-4R24MCCH110R-NR – UL | STRC-NG – UL | STWC-ALB – UL |
| STH-2R24MCCH-NR – UL | STH-90-4R24MCCH-NW – UL | STRC-NR – UL | STWC-NA – UL |
| STH-3MS-R – UL | STR-AB – UL | STW-AB – UL | STWC-NB – UL |
| STH-3R – UL | STR-ALA – UL | STW-ALA – UL | STWC-NG – UL |
| STWC-NR – UL |
Appendix B – UL Listed Compatible Devices
B.1 Four (4) Wire Smoke Detectors
Table B-1 below lists four (4) wire smoke detectors compatible with BPS-1002 AUX output.
| Smoke Detector/Base | Detector Type | Max Stand-by Current (mA) | Alarm Current (mA) |
| FenWal CPD-7021 (w/70-201000-005 Base) | Ionization | 0.10 | * |
| FenWal PSD-7125 | Photoelectric | 0.10 | * |
| FenWal PSD-7125 (w/70-201000-005 Base) | Photoelectric | 0.10 | * |
| Fire-Lite BLP-12-4W | Base | * | * |
| Gentex 824 | Photoelectric | 0.50 | * |
| Gentex 824T | Photoelectric | 0.50 | * |
| Gentex 824CP | Photoelectric | 0.50 | * |
| Gentex 824CPT | Photoelectric | 0.50 | * |
| Hochiki HSC-4R | Base | * | * |
| Hochiki SPB-24 | Projected Beam | 0.25 | * |
| System Sensor B112LP | Base | 0.12 | 36 |
| System Sensor B114LP | Base | * | * |
| System Sensor B404B | Base | * | * |
| System Sensor DH100ACDC | Photoelectric | 0.15 | 0.70 |
| System Sensor DH100ACDCLP | Photoelectric | 0.15 | 0.70 |
| System Sensor DH100ACDCLPW | Photoelectric | 0.15 | 0.70 |
| System Sensor DH400ACDCI | Ionization Duct | 25 | 95 |
| System Sensor DH400ACDCP | Photoelectric Duct | 25 | 95 |
| System Sensor 1112/24/D | Ionization | 0.05 | 50 |
| System Sensor 1424 | Ionization | 0.10 | 41 |
| System Sensor 1451 (w/B402B Base) | Ionization | 0.10 | 39 |
| System Sensor 2112/24ATR | Photoelectric | 0.50 | 60/70 |
| System Sensor 2112/24AITR | Photoelectric | 0.50 | 60/70 |
| System Sensor 2112/24/D | Photoelectric | 0.05 | 50 |
| System Sensor 2112/24R | Photoelectric | 0.50 | 60/70 |
| System Sensor 2112/24TR | Photoelectric | 0.50 | 60/70 |
| System Sensor 2112/24T/D | Photoelectric w/135o Thermal | 0.05 | 50 |
| System Sensor 2112/24TSRB | Photoelectric w/135o Thermal Supervisory Relay | 15 | 45 |
| System Sensor 2312/24TB | Photoelectric | 0.12 | 50 |
| System Sensor 2412 (12 volt) | Photoelectric | 0.12 | 77 |
| System Sensor 2412AT (12 volt) | Photoelectric | 0.12 | 58 |
| System Sensor 2412TH (12 volt) | Photoelectric | 0.12 | 77 |
| System Sensor 2424 | Photoelectric | 0.10 | 41 |
| System Sensor 2424TH | Photoelectric | 0.10 | 41 |
| System Sensor 2451 | Photoelectric | 0.10 | 39 |
| System Sensor 2451TH (w/B402B Base) | Photoelectric | 0.10 | 39 |
B.1 Four (4) Wire Smoke Detectors
Table B-1 below lists four (4) wire smoke detectors compatible with BPS-1002 AUX output.
| Smoke Detector/Base | Detector Type | Max Stand-by Current (mA) | Alarm Current (mA) |
| System Sensor 2W-MOD | Loop Test/Maintenance Mod. | 30 | 50 |
| System Sensor 4W-B (12/24 volt) | Photoelectric I3 | 0.05 | 23 |
| System Sensor 4WT-B (12/24 volt) | Photoelectric I3 w/Therm | 0.05 | 23 |
| System Sensor 4WTA-B (12/24 volt) | I3 Photo w/Therm/Sounder | 0.05 | 35 |
| System Sensor 4WTR-B (12/24 volt) | I3 Photo w/Therm/Relay | 0.05 | 35 |
| System Sensor 4WTR-B (12/24 volt) | I3 Photo w/Therm/Sounder/Relay | 0.05 | 50 |
| System Sensor 4WITAR-B (12/24 volt) | I3 Photo w/Isolated Therm/Sounder/Relay | 0.05 | 50 |
| System Sensor 2W-MOD2 | I3 Loop Test/Maintenance Mod. | 0.05 | * |
| System Sensor RRS-MOD | I3 Reversing Relay/Sync Module | 0.05 | * |
| System Sensor 6424 | Projected Beam | 10 | 28.4 |
| System Sensor Beam 1224(S) | Projected Beam | 17 | 38.5 |
| * Contact manufacturer for current draws | |||
B.2 Door Holders
Table B-2 below lists door holders compatible with BPS-1002 AUX output.
| Manufacturer | Model | Type | Current (mA) |
| Edwards | DH150A | Floor Mount | 96 |
| Edwards | DH154A | Floor Mount | 96 |
| Edwards | DH158A | Surface Mount | 96 |
| Rixon Firemark | FM-980 | Floor Mount, single | 68 |
| Rixon Firemark | FM-996 | Surface Wiring | 68 |
| Rixon Firemark | FM-998 | Concealed Wiring | 68 |
B.3 Relays
Table B-3 below lists relays compatible with BPS-1002 AUX output.
| Manufacturer | Model | Current (mA) |
| Air Products & Controls, LTD | MR-101/C | 15 |
| MR-201/C | 35 | |
| PAM-1 | 15 | |
| PAM-2 | 15 | |
| PAM-SD | 15 | |
| A77-716B | 20 |
| Manufacturer | Model | Current (mA) |
| System Sensor | PR-1 | 15 |
| PR-2 | 30 | |
| PR-3 | 30 | |
| EOLR-1 | 30 | |
| R-10T | 23 | |
| R-14T | 23 |
| Manufacturer | Model | Current (mA) |
| System Sensor | R-20T | 40 |
| R-24T | 40 | |
| R-10E | 23 | |
| R-14E | 23 | |
| R-20E | 40 | |
| R-24E | 40 |
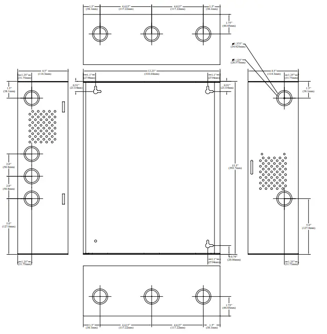
Enclosure Dimensions
s (H x W x D approx.): 15.5” x 12” x 4.5” (393.7mm x 304.8mm x 114.3mm)

CUSTOMER SUPPORT
Mircom is not responsible for any typographical errors
USA – 4575 Witmer Industrial Estates, Niagara Falls, NY 14305, Canada – 25 Interchange Way, Vaughan (Toronto), ON L4K5W3,
888-660-4655 • fax: 888-660-4113 web site: www.mircom.com
IIBPS-1002




















