
Generic weep hole pattern HSW60 | HSW66 by others (for some resistance against wind driven rain)
HSW60 Sliding Glass Walls
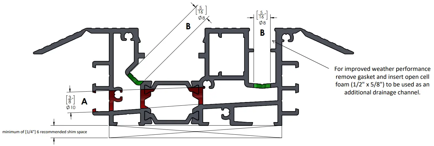
A
Drill holes all the way to the back as shown in red at a slight angle upwards.


Note:
All appropriate water proofing and flashing details to be designed and installed by others.
These should include proper sealing of all fastener holes at each end of the sill.

Note:
Drainage weep tubes and flashing shown on this drawing is one of many possible options to deal with water exiting the Nana Wall LPSS.
This drawing is only for general illustrative purposes and is not meant to show a comprehensive waterproofing and drainage solution.
Project and site condition specific detail waterproofing and drainage design and its installation is to be by others. Waterproofing and drainage installation is typically not part of the standard product installation services offered by NanaWall Certified Installers and have to be agreed on separately prior to product installation.
![]()

















