BLAUBERG BlauAIR CFH 800 Air Handling Unit

This user’s manual is a main operating document intended for technical, maintenance, and operating staff. The manual contains information about purpose, technical details, operating principle, design, and installation of the BlauAir CFH unit and all its modifications. Technical and maintenance staff must have theoretical and practical training in the field of ventilation systems and should be able to work in accordance with workplace safety rules as well as construction norms and standards applicable in the territory of the country. All operations described in this manual must be performed by qualified personnel only, properly trained and qualified to install, make electrical connections and maintain ventilation units. Do not attempt to install the product, connect it to the mains, or perform maintenance yourself.
This is unsafe and impossible without special knowledge. Disconnect the power supply prior to any operations with the unit. All user’s manual requirements as well as the provisions of all the applicable local and national construction, electrical, and technical norms and standards must be observed when installing and operating the unit. Disconnect the unit from the power supply prior to any connection, servicing, maintenance, and repair operations. Only qualified electricians with a work permit for electrical units up to 1000 V are allowed for installation. The present user’s manual should be carefully read before beginning works. Check the unit for any visible damage of the impeller, the casing, and the grille before starting installation. The casing internals must be free of any foreign objects that can damage the impeller blades. While mounting the unit, avoid compression of the casing! Deformation of the casing may result in motor jam and excessive noise. Misuse of the unit and any unauthorised modifications are not allowed.
Do not expose the unit to adverse atmospheric agents (rain, sun, etc.). Transported air must not contain any dust or other solid impurities, sticky substances, or fibrous materials. Do not use the unit in a hazardous or explosive environment containing spirits, gasoline, insecticides, etc. Do not close or block the intake or extract vents in order to ensure the efficient air flow. Do not sit on the unit and do not put objects on it. The information in this user’s manual was correct at the time of the document’s preparation. The Company reserves the right to modify the technical characteristics, design, or configuration of its products at any time in order to incorporate the latest technological developments. Never touch the unit with wet or damp hands. Never touch the unit when barefoot. BEFORE INSTALLING ADDITIONAL EXTERNAL DEVICES, READ THE RELEVANT USER MANUALS. THE PRODUCT MUST BE DISPOSED SEPARATELY AT THE END OF ITS SERVICE LIFE. DO NOT DISPOSE THE UNIT AS UNSORTED DOMESTIC WASTE.
PURPOSE
The air handling unit with heat recovery is designed for integration into central mechanical ventilation systems. The unit is rated for continuous operation. Transported air must not contain any flammable or explosive mixtures, evaporation of chemicals, sticky substances, fibrous materials, coarse dust, soot and oil particles or environments favourable for the formation of hazardous substances (toxic substances, dust, pathogenic germs). THE UNIT SHOULD NOT BE OPERATED BY CHILDREN OR PERSONS WITH REDUCED PHYSICAL, MENTAL, OR SENSORY CAPACITIES, OR THOSE WITHOUT THE APPROPRIATE TRAINING. THE UNIT MUST BE INSTALLED AND CONNECTED ONLY BY PROPERLY QUALIFIED PERSONNEL AFTER THE APPROPRIATE BRIEFING. THE CHOICE OF UNIT INSTALLATION LOCATION MUST PREVENT UNAUTHORISED ACCESS BY UNATTENDED CHILDREN.
DELIVERY SET
Name Number
- Unit 1 pc.
- User’s manual 1 pc.
- Technical data sheet 1 pc.
- Automation wiring 1 pc.
- Control panel 1 pc.
- User’s manual for automation 1 pc.
- Packing box 1 pc.
DESIGNATION KEY

TECHNICAL DATA
The unit is designed for indoor or sheltered use. The installation conditions must prevent ingress of atmospheric precipitations and direct solar radiation at the ambient temperatures from -35 °C up to +50 °C. Outdoor unsheltered mounting is allowed provided an extra cover and weather hoods are installed on the air ducts (not included in the delivery set). The frost protection for the water drainage and connected pipelines must be provided during sub-zero ambient temperatures (if the unit is equipped with an air cooler). The heat medium temperature in the water heat exchangers (if available) must be sufficient to prevent their freezing. Hazardous parts access and water ingress protection rating:
- IP54 for the unit motors
- IP42 for the assembled unit connected to the air ducts without extra cover or weather hoods
- IP44 for the assembled unit with connected air ducts, extra cover and weather hoods (specially ordered accessories)
- IP00 for the unit not connected to the air ducts
The unit design is constantly being improved, thus some models may be slightly different from those described in this manual.
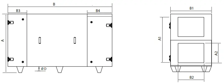
UNIT OVERALL DIMENSIONS [mm]

| Model | A | A1 | A2 | B | B1 | B2 | B3 | B4 | D |
| BL02 CFH 1500-R/L BL02 CFH 2500-R/L | 1060 | 838 | 350 | 1880 | 789 | 600 | 325 | 425 |
18 |
| BL03 CFH 3500-R/L | 1390 | 1003 | 400 | 2200 | 890 | 700 | 357 | 439 | |
| BL07 CFH 5000-R/L BL07 CFH 6000-R/L | 1520 | 1218 | 500 | 2500 | 1430 | 1000 | 479 | 690 |
The full technical data list is stated in the supplied technical data sheet.
UNIT DESIGN AND OPERATION LOGIC

- drain pipe
- supply fan
- extract filter
- heat exchanger
- exhaust fan
- supply filter
- bypass damper
- control unit
- cable glands
- service doors
- service panel
INSTALLATION AND SET-UP
ALL OPERATIONS DESCRIBED IN THIS USER’S MANUAL MUST BE PERFORMED BY QUALIFIED PERSONNEL ONLY, PROPERLY TRAINED AND QUALIFIED TO INSTALL AND MAINTAIN VENTILATION EQUIPMENT. DO NOT ATTEMPT TO INSTALL THE PRODUCT YOURSELF. IT IS UNSAFE AND IMPOSSIBLE WITHOUT SPECIAL KNOWLEDGE The units are available in left- and right-hand modifications with the right or left service side. All the assembly units are accessible on the service side
Left-hand modification (service side view)

Right-hand modification (service side view)

Connection of the air ducts is shown with the stickers of the respective colours: yellow for the extract air duct, green for the intake air duct, red for the supply air duct and brown for the exhaust air duct. During installation works sufficient maintenance and service access must be provided. The recommended minimum distances from the unit to the walls are shown below.

| Casing dimensions | A [mm] |
| BL02 CFH BL03 CFH | 600 |
| BL07 CFH | 800 |
The delivery set includes removable levelling feet to adjust horizontal levelling of the unit and provide required clearance from the floor to enable correct mounting of the condensed water drainage.

Condensate drainage
The unit is equipped with drain pipes to remove condensed water outside of the unit. U-traps must be connected to the drain pipes. Dimensions of the U-trap must be selected based on air pressure in the section and are stated in the table

| Complete fan pressure [Pa] | Size H [mm] | Size h [mm] |
| <600 | 100 | 50 |
| 600-1000 | 140 | 70 |
| 1000-1400 | 190 | 95 |
| 1400-1800 | 240 | 120 |
| 1800-2200 | 290 | 145 |
| 2200-2600 | 340 | 170 |
Connect the drain pipe, U-trap and sewage system using metal, plastic or rubber connecting pipes.
- drain pipe
- connecting pipe
- U-trap
- sewage system
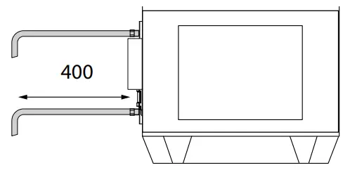
Prior to starting operation make sure that water has unobstructed flow in the sewage system. Fill the U-trap with water before operation. Connection of the water heater (only for the models with water heater) While connecting the water heater keep the straight air duct section length not less than 400 mm from the unit. Otherwise the maintenance panel cannot be opened!

CONNECTION TO POWER MAINS
Connection to power mains must be conducted in compliance with the automation user’s manual.
TECHNICAL MAINTENANCE
OPEN THE UNIT FOR INSPECTION AND SERVICE NOT LESS THAN 2 MINUTES AFTER COMPLETE DE-ENERGIZING OF THE UNIT. THE FANS ROTATION MAY BE STILL PRESENT. IN CASE OF ANY ABNORMAL NOISE, SMELL AND COMPONENT DEFORMATION IMMEDIATELY CUT OFF POWER SUPPLY TO THE UNIT AND CONTACT A SERVICE PROVIDER OR THE UNIT SELLER. The unit operation requires regular inspection, dry cleaning of inner components, check-up and replacement of air filters in case of filter contamination. 3-6 months after commissioning of the unit it must be inspected by a service expert for planned preventive maintenance of the unit. Next maintenance operations must be conducted at least every 6-12 months. Maintenance periodicity is determined by a service expert depending on operation conditions of the unit. Dust deposits on the inner parts of the unit, especially in the electric heater, may lead to unpleasant odours. It is not a malfunction. Clean the unit to troubleshoot unpleasant odours. Open the service doors to access the filters

Remove the two butterfly bolts that fix the retaining clamp

Unhook the two latches securing the retaining plate

To access the heat exchanger, remove the service panel. Loosen the screws (1) on the retaining clamps (2) using a hexagon wrench

Pull the heat exchanger out.

STORAGE AND TRANSPORTATION REGULATIONS
- Store the unit in the manufacturer’s original packaging box in a dry closed ventilated premise with temperature range +5…40 ˚С and relative humidity up to 70 %.
- Storage environment must not contain aggressive vapors and chemical mixtures provoking corrosion, insulation, and sealing deformation.
- Use suitable hoist machinery for handling and storage operations to prevent possible damage to the unit.
- Follow the handling requirements applicable for the particular type of cargo.
- The unit can be carried in the original packaging by any mode of transport provided proper protection against precipitation and mechanical damage. The unit must be transported only in the working position.
- Avoid sharp blows, scratches, or rough handling during loading and unloading.
- Prior to the initial power-up after transportation at low temperatures, allow the unit to warm up at operating temperature for at least 3-4 hours.
MANUFACTURER’S WARRANTY
The product is in compliance with EU norms and standards on low voltage guidelines and electromagnetic compatibility. We hereby declare that the product complies with the provisions of Electromagnetic Compatibility (EMC) Directive 2014/30/EU of the European Parliament and of the Council, Low Voltage Directive (LVD) 2014/35/EU of the European Parliament and of the Council and CE-marking Council Directive 93/68/EEC. This certificate is issued following test carried out on samples of the product referred to above. The manufacturer hereby warrants normal operation of the unit for 24 months after the retail sale date provided the user’s observance of the transportation, storage, installation, and operation regulations. Should any malfunctions occur in the course of the unit operation through the Manufacturer’s fault during the guaranteed period of operation, the user is entitled to get all the faults eliminated by the manufacturer by means of warranty repair at the factory free of charge. The warranty repair includes work specific to elimination of faults in the unit operation to ensure its intended use by the user within the guaranteed period of operation. The faults are eliminated by means of replacement or repair of the unit components or a specific part of such unit component.
The warranty repair does not include:
- routine technical maintenance
- unit installation/dismantling
- unit setup
To benefit from warranty repair, the user must provide the unit, the user’s manual with the purchase date stamp, and the payment paperwork certifying the purchase. The unit model must comply with the one stated in the user’s manual. Contact the Seller for warranty service.
The manufacturer’s warranty does not apply to the following cases:
- User’s failure to submit the unit with the entire delivery package as stated in the user’s manual including submission with missing component parts previously dismounted by the user.
- Mismatch of the unit model and the brand name with the information stated on the unit packaging and in the user’s manual.
- User’s failure to ensure timely technical maintenance of the unit.
- External damage to the unit casing (excluding external modifications as required for installation) and internal components caused by the user.
- Redesign or engineering changes to the unit.
- Replacement and use of any assemblies, parts and components not approved by the manufacturer.
- Unit misuse.
- Violation of the unit installation regulations by the user.
- Violation of the unit control regulations by the user.
- Unit connection to power mains with a voltage different from the one stated in the user’s manual.
- Unit breakdown due to voltage surges in power mains.
- Discretionary repair of the unit by the user.
- Unit repair by any persons without the manufacturer’s authorization.
- Expiration of the unit warranty period.
- Violation of the unit transportation regulations by the user.
- Violation of the unit storage regulations by the user.
- Wrongful actions against the unit committed by third parties.
- Unit breakdown due to circumstances of insuperable force (fire, flood, earthquake, war, hostilities of any kind, blockades).
- Missing seals if provided by the user’s manual.
- Failure to submit the user’s manual with the unit purchase date stamp.
- Missing payment paperwork certifying the unit purchase.
FOLLOWING THE REGULATIONS STIPULATED HEREIN WILL ENSURE A LONG AND TROUBLE-FREE OPERATION OF THE UNIT.
USER’S WARRANTY CLAIMS SHALL BE SUBJECT TO REVIEW ONLY UPON PRESENTATION OF THE UNIT, THE PAYMENT DOCUMENT AND THE USER’S MANUAL WITH THE PURCHASE DATE STAMP.
CERTIFICATE OF ACCEPTANCE
| Unit Type | Air handling unit |
| Model | |
| Serial Number | |
| Manufacture Date | |
| Quality Inspector’s Stamp |
SELLER INFORMATION
| Seller | |
| Address | |
| Phone Number | |
| Purchase Date | |
| This is to certify acceptance of the complete unit delivery with the user’s manual. The warranty terms are acknowledged and accepted. | |
| Customer’s Signature | |
INSTALLATION CERTIFICATE
| The unit is installed pursuant to the requirements stated in the present user’s manual. | ||
| Company name | ||
| Address | ||
| Phone Number | ||
| Installation Technician’s Full Name | ||
| Installation Date: | Signature: | |
| The unit has been installed in accordance with the provisions of all the applicable local and national construction, electrical and technical codes and standards. The unit operates normally as intended by the manufacturer. | ||
| Signature: | ||
WARRANTY CARD
| Unit Type | Air handling unit |
| Model | |
| Serial Number | |
| Manufacture Date | |
| Purchase Date | |
| Warranty Period | |
| Seller |
QR CODE

www.blaubergventilatoren.de B192-3EN-02

















