BLAUBERG BlauAIR CFH 6000 Air Handling Unit 
SAFETY REQUIREMENTS
- All operations described in this manual must be performed by qualified personnel only, properly trained and qualified to install, make electrical connections and maintain ventilation units.
- Do not attempt to install the product, connect it to the mains, or perform maintenance yourself. This is unsafe and impossible without special knowledge.
- Disconnect the power supply prior to any operations with the unit.
- All user’s manual requirements as well as the provisions of all the applicable local and national construction, electrical, and technical norms and standards must be observed when installing and operating the unit.
- Disconnect the unit from the power supply prior to any connection, servicing, maintenance, and repair operations.
- Only qualified electricians with a work permit for electrical units up to 1000 V are allowed for installation. The present user’s manual should be carefully read before beginning work.
- Check the unit for any visible damage of the impeller, the casing, and the grille before starting installation. The casing internals must be free of any foreign objects that can damage the impeller blades.
- While mounting the unit, avoid compression of the casing! Deformation of the casing may result in motor jams and excessive noise.
- Misuse of the unit and any unauthorized modifications are not allowed.
- Do not expose the unit to adverse atmospheric agents (rain, sun, etc.).
- Transported air must not contain any dust or other solid impurities, sticky substances, or fibrous materials.
- Do not use the unit in a hazardous or explosive environment containing spirits, gasoline, insecticides, etc.
- Do not close or block the intake or extract vents in order to ensure efficient air flow.
- Do not sit on the unit and do not put objects on it.
- The information in this user’s manual was correct at the time of the document’s preparation. The Company reserves the right to modify the technical characteristics, design, or configuration of its products at any time in order to incorporate the latest technological developments. Never touch the unit with wet or damp hands.
- Never touch the unit when barefoot.
- BEFORE INSTALLING ADDITIONAL EXTERNAL DEVICES, READ THE RELEVANT USER MANUALS.
PURPOSE
- The air handling unit with heat recovery is designed for integration into central mechanical ventilation systems.
- The unit is rated for continuous operation.
- Transported air must not contain any flammable or explosive mixtures, evaporation of chemicals, sticky substances, fibrous materials, coarse dust, soot and oil particles or environments favorable for the formation of hazardous substances (toxic substances, dust, pathogenic germs).
Warning:
- THE UNIT SHOULD NOT BE OPERATED BY CHILDREN OR PERSONS WITH REDUCED PHYSICAL, MENTAL, OR SENSORY CAPACITIES, OR THOSE WITHOUT THE APPROPRIATE TRAINING.
- THE UNIT MUST BE INSTALLED AND CONNECTED ONLY BY PROPERLY QUALIFIED PERSONNEL AFTER THE APPROPRIATE BRIEFING.
- THE CHOICE OF UNIT INSTALLATION LOCATION MUST PREVENT UNAUTHORISED ACCESS BY UNATTENDED CHILDREN.
DELIVERY SET
- Unit
- 1 pc.
- User’s manual
- 1 pc.
- Technical datasheet
- 1 pc.
- Automation wiring
- 1 pc.
- Control panel
- 1 pc.
- User’s manual for automation
- 1 pc.
- Packing box
- 1 pc.
DESIGNATION KEY 
TECHNICAL DATA
The unit is designed for indoor or sheltered use. The installation conditions must prevent ingress of atmospheric precipitations and direct solar radiation at the ambient temperatures from -35 °C up to +50 °C.
The heat medium temperature in the water heat exchangers (if available) must be sufficient to prevent its freezing.
The frost protection for the water drainage and connected pipelines must be provided during sub-zero ambient temperatures (if the unit is equipped with air cooler).
Hazardous parts access and water ingress protection rating:
- IP54 for the unit motors
- IP40 for the assembled unit connected to the air ducts
- IP00 for the unit not connected to the air ducts
The unit design is constantly being improved, thus some models may be slightly different from those described in this manual.
UNIT OVERALL DIMENSIONS

| Model | A | A1 | B | B1 | B2 | B3 | C | C1 |
| BL02 CFP 1500(2500) | 480 | 520 | 1646 | 1726 | 1500 | 1579 | 600 | 350 |
| BL03 CFP 3500 | 630 | 669 | 1880 | 1960 | 1500 | 1578 | 600 | 350 |

| Model | A | B | B1 | E | E1 | E2 | C | C1 |
| BL07 CFP 5000(6000) | 1000 | 3069 | 1900 | 857 | 1185 | 857 | 800 | 500 |
The full technical data list is stated in the supplied technical data sheet.
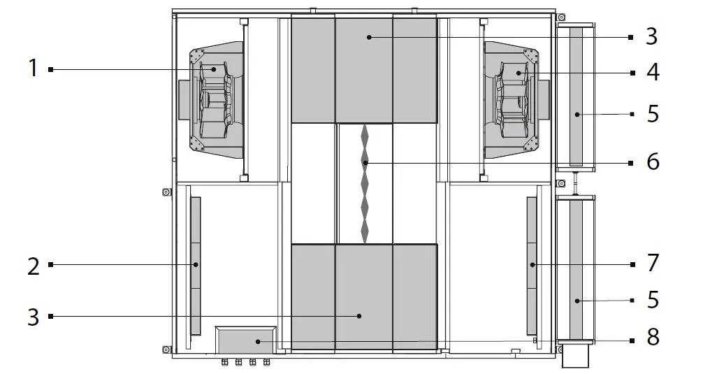
UNIT DESIGN 
- supply fan
- extract filter
- heat exchanger
- exhaust fan
- airflow control damper with an electric actuator (option)
- bypass damper
- supply filter
- control unit
Service panels (CFP 500/700)
The casing has removable service panels for accessing the unit components.
- filter access panels (located at the bottom of the unit)
- fan access panel (located at the bottom of the unit)
- panel to access the heat exchanger and bypass damper (located at the bottom of the unit) The panels are secured with screws.
Service panels (CFP 1200)
The casing has removable service panels for accessing the unit components.
- access panels for filters and fans (located at the bottom of the unit)
- access panels for heat exchanger and bypass damper (located at the bottom of the unit) The panels are secured with screws.
Service panels (CFP 1500/2500/3500)
The casing has removable service panels for accessing the unit components.
- filter access panel (located on the service side)
- panel to access the heat exchangers and bypass damper (located on the service side)
- panel to access the control unit and terminal board (located on the service side)
- panel to access the filter (located on the service side)
- filter access panel (located at the bottom of the unit)
- fan access panel (located at the bottom of the unit)
Panels 1-6 are fixed with screws. Panels 5 are secured with wing screws.
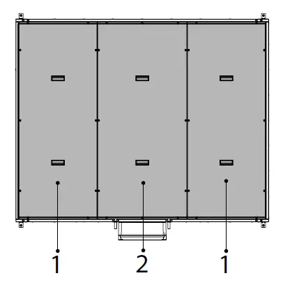
Service panels (CFP 5000/6000)
1, 2, 5 – filter access panel
3,4, 8, 10 – fan access panel
6, 9 – panel to access the heat exchanger and bypass damper
7 – access panel to the filter and control unit
INSTALLATION AND SET-UP
Warning:
ALL OPERATIONS DESCRIBED IN THIS USER’S MANUAL MUST BE PERFORMED BY QUALIFIED PERSONNEL ONLY, PROPERLY TRAINED AND QUALIFIED TO INSTALL AND MAINTAIN VENTILATION EQUIPMENT.
DO NOT ATTEMPT TO INSTALL THE PRODUCT YOURSELF.
IT IS UNSAFE AND IMPOSSIBLE WITHOUT SPECIAL KNOWLEDGE.
The units are available in left- and right-sided modifications with the right or left service side. 

СFP 5000/6000 units are delivered in sections.
Prior to mounting the unit, connect the sections and fix them with screw connections.
During installation works sufficient maintenance and service access must be provided. The recommended minimum distances from the unit to the walls are shown below.
The fasteners for the unit installation are not included in the delivery set and must be purchased separately.
Recommended installation diagram 
- threaded stud
- nut
- washer
- vibration absorbing rubber
- nut and counter nut
CONNECTION TO POWER MAINS
Connection to power mains must be conducted in compliance with the automation user’s manual.
TECHNICAL MAINTENANCE
Warning
- OPEN THE UNIT FOR INSPECTION AND SERVICE NOT LESS THAN 2 MINUTES AFTER COMPLETE DE-ENERGIZING OF THE UNIT.
- THE FANS ROTATION MAY BE STILL PRESENT.
- IN CASE OF ANY ABNORMAL NOISE, SMELL, AND COMPONENT DEFORMATION IMMEDIATELY CUT OFF POWER SUPPLY TO THE UNIT AND CONTACT
- A SERVICE PROVIDER OR THE UNIT SELLER.
The unit operation requires regular inspection, dry cleaning of inner components, check-up and replacement of air filters in case of filter contamination. 3-6 months after the commissioning of the unit it must be inspected by a service expert for planned preventive maintenance of the unit. Next maintenance operations must be conducted at least every 6-12 months. Maintenance periodicity is determined by a service expert depending on the operation conditions of the unit. Dust deposits on the inner parts of the unit, especially in the electric heater, may lead to unpleasant odors. It is not a malfunction. Clean the unit to troubleshoot unpleasant odors.
The filters are accessible through the side service panels.
Remove the service panels. 
- Remove the two butterfly bolts that fix the retaining clamp.
- Remove the filter elements.
Access to the filters via the lower service panels
Remove the service panels. Remove the filter elements.
Remove the service panel to access the heat exchanger. Pull the heat exchanger out. Disconnect the connector from the bypass damper actuator. Disconnect the bypass unit and pull the second heat exchanger out.
STORAGE AND TRANSPORTATION REGULATIONS
- Store the unit in the manufacturer’s original packaging box in a dry closed ventilated premise with a temperature range +5 ˚C…+40 ˚С and relative humidity up to 70 %.
- Storage environment must not contain aggressive vapors and chemical mixtures provoking corrosion, insulation, and sealing deformation.
- Use suitable hoist machinery for handling and storage operations to prevent possible damage to the unit.
- Follow the handling requirements applicable for the particular type of cargo.
- The unit can be carried in the original packaging by any mode of transport providing proper protection against precipitation and mechanical damage. The unit must be transported only in the working position.
- Avoid sharp blows, scratches, or rough handling during loading and unloading.
- Prior to the initial power-up after transportation at low temperatures, allow the unit to warm up at operating temperature for at least 3- 4 hours.
MANUFACTURER’S WARRANTY
The product is in compliance with EU norms and standards on low voltage guidelines and electromagnetic compatibility. We hereby declare that the product complies with the provisions of Electromagnetic Compatibility (EMC) Directive 2014/30/EU of the European Parliament and of the Council, Low Voltage Directive (LVD) 2014/35/EU of the European Parliament and of the Council and CE-marking Council Directive 93/68/EEC. This certificate is issued following test carried out on samples of the product referred to above.
The manufacturer hereby warrants normal operation of the unit for 24 months after the retail sale date provided the user’s observance of the transportation, storage, installation, and operation regulations. Should any malfunctions occur in the course of the unit operation through the Manufacturer’s fault during the guaranteed period of operation, the user is entitled to get all the faults eliminated by the manufacturer by means of warranty repair at the factory free of charge. The warranty repair includes work specific to the elimination of faults in the unit operation to ensure its intended use by the user within the guaranteed period of operation. The faults are eliminated by means of replacement or repair of the unit components or a specific part of such unit components.
The warranty repair does not include:
- routine technical maintenance
- unit installation/dismantling
- unit setup
To benefit from a warranty repair, the user must provide the unit, the user’s manual with the purchase date stamp, and the payment paperwork certifying the purchase. The unit model must comply with the one stated in the user’s manual. Contact the Seller for warranty service.
The manufacturer’s warranty does not apply to the following cases:
- User’s failure to submit the unit with the entire delivery package as stated in the user’s manual including submission with missing component parts previously dismounted by the user.
- Mismatch of the unit model and the brand name with the information stated on the unit packaging and in the user’s manual.
- User’s failure to ensure timely technical maintenance of the unit.
- External damage to the unit casing (excluding external modifications as required for installation) and internal components caused by the user.
- Redesign or engineering changes to the unit.
- Replacement and use of any assemblies, parts and components not approved by the manufacturer.
- Unit misuse.
- Violation of the unit installation regulations by the user.
- Violation of the unit control regulations by the user.
- Unit connection to power mains with a voltage different from the one stated in the user’s manual.
- Unit breakdown due to voltage surges in power mains.
- Discretionary repair of the unit by the user.
- Unit repair by any persons without the manufacturer’s authorization.
- Expiration of the unit warranty period.
- Violation of the unit transportation regulations by the user.
- Violation of the unit storage regulations by the user.
- Wrongful actions against the unit are committed by third parties.
- Unit breakdown due to circumstances of insuperable force (fire, flood, earthquake, war, hostilities of any kind, blockades).
- Missing seals if provided by the user’s manual.
- Failure to submit the user’s manual with the unit purchase date stamp.
- Missing payment paperwork certifying the unit purchase.
CERTIFICATE OF ACCEPTANCE
| Unit Type | Air handling unit |
| Model | |
| Serial Number | |
| Manufacture Date | |
| Quality Inspector’s Stamp |
SELLER INFORMATION
| Seller | |
| Address | |
| Phone Number | |
| Purchase Date | |
| This is to certify acceptance of the complete unit delivery with the user’s manual. The warranty terms are acknowledged and accepted. | |
| Customer’s Signature | |

INSTALLATION CERTIFICATE
| The unit is installed pursuant to the requirements stated in the present user’s manual. | ||
| Company name | ||
| Address | ||
| Phone Number | ||
| Installation Technician’s Full Name | ||
| Installation Date: | Signature: | |
| The unit has been installed in accordance with the provisions of all the applicable local and national construction, electrical and technical codes and standards. The unit operates normally as intended by the manufacturer. | ||
| Signature: | ||

WARRANTY CARD
| Unit Type | Air handling unit |
| Model | |
| Serial Number | |
| Manufacture Date | |
| Purchase Date | |
| Warranty Period | |
| Seller |

BLAUBERG BlauAIR CFH 6000 Air Handling Unit 




















