Mendip Stoves TSTV-CMF-BMDP-NL8P Loxton 8 Woodburning and Multifuel Stove Installation Guide
MENDIP STOVES WARRANTY
5 Year Extended Warranty
If you have purchased your stove ,from a Mendip Stoves registered retailer, then your stove will carry a 2 year warranty as standard. The 2 year warranty can be further extended to a total warranty period of 5 years by registering your Mendip Stove within one month of the latter of the purchase date or installation date. Accordingly, the start date for the warranty period is the date of purchase. During the registration process, the Registered Retailer details will be required for your Extended Warranty to be activated. Any product purchased outside of our registered Retailer Network will carry a standard 12 month, non-extendable warranty. It is a condition of the Extended Warranty that the installation complies with the relevant Building Regulations and is carried out by a suitably trained and qualified individual(HETAS in the UKor equivalentin other countries) with the certificate of installation and proof of purchase supplied. Full terms and conditions are detailed in the Warranty Statement on the Eurostove website www.eurostove.co.uk. In the event of any conflict of information the wording on the website shall prevail. Important Note: Should any problems be experienced with your product, claims must first be submitted to the Retailer where the appliance was purchased from who will offer immediate assistance or contact Eurostove on your behalf.
Register online today to activate warranty: online. http://www.mendipstoves.co.uk/SIT/StoveRegistration
INSTALLATION MANUAL AND OPERATING INSTRUCTIONS
LOXTON; DS 8
CHURCHILL; DS 8
LOXTON; DS 8 Logstore
CHURCHILL ;DS 8 M10730-02-04-99-00
This manual refers to the stoves listed above, which are tested in accordance with EN 13240
.Thank you for purchasing your new stove from Mendip Stoves. Please read this manual carefully to ensure that you get maximum enjoyment and performance from your new stove and to prevent any potential operational problems. Please note that “all local regulations, including those referring to national and European Standards, need to be complied with when installing this appliance”. For further information on installing and using fireplaces and wood burning stoves, please see the relevant building regulations.
These instructions cover the basic principals to ensure the satisfactory installation of your stove, although detail may need slight modification to suit particular local site conditions.
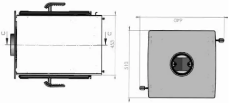
| MODEL NAME | Height mm | Width mm | Depth mm | Weight kg |
| Loxton 8 | 660 | 510 | 520 | 130 kg |
| Loxton 8 pedestal | 965 | 510 | 520 | 140 kg |
| Churchill 8 | 660 | 510 | 631 | 130 kg |
| Churchill 8 pedestal | 965 | 510 | 631 | 145 kg |
HEALTH AND SAFETY PRECAUTIONS
INFORMATION FOR THE USER, INSTALLER AND SERVICE ENGINEER
Special care must be taken when installing a stove such that the requirements of the Health & Safety at Work Act are met.
Handling
Adequate facilities must be available for loading, unloading and site handling.
Fire Cement
Some types of fire cement are caustic and should not be allowed to come into contact with the skin. In case of contact wash immediately with plenty of water.
PREPARATORY WORK AND SAFETY CHECKS
IMPORTANT WARNING
This stove must not be installed into a chimney that serves any other heating appliance. There must not be an extractor fan fitted in the same room as the stove because this can cause the stove to emit fumes into the room.
Asbestos
This stove contains no asbestos. If there is a possibility of disturbing any asbestos in the coarse of installation then please seek specialist guidance and use appropriate protective equipment.
MetalParts
When installing or servicing this stove care should be taken to avoid the possibility of personal injury.
CO Alarms:-
Building regulations require that when ever a new or replacement fixed solid fuel or wood/biomass appliance is installed in a dwelling a carbon monoxide alarm must be fitted in the same room as the appliance. Further guidance on the installation of the carbon monoxide alarm is available in BS EN 50292:2002 and from the alarm manufacturer’s instructions.
Provision of an alarm must not be considered a substitute for either installing the appliance correctly or ensuring regular servicing and maintenance of the appliance and chimney system
Stove paint Aerosols
Paint aerosols are flammable and therefore dangerous to use around a lit stove. Be sure to allow aerosols spray paints to dry and ventilate the room well before lighting the stove. The use of any aerosol around lit stove is dangerous and care must be take in handling aerosols.
IMPORTANT:
These instructions cover the basic principles to ensure the satisfactory installation of Mendip Stoves product :- Churchill , Loxton DS model, although detail may need slight modification to suit particular local site conditions. In all cases the installation must comply with current Building Regulations, Local Authority Byelaws and other specifications or regulations as they affect the installation of the stove. It should be noted that the Building Regulations requirements may be met by adopting the relevant recommendations given in British Standards BS 8303, BS EN 15287 as an alternative means to achieve an equivalent level of performance to that obtained following the guidance givenin Approved Document J
Fireguards
The use a fireguard to BS 8423:2002 in the presence of children, aged and/or infirm personsis essential for their safety, even when the stove is not in use. The glass on the stove is ceramic glass and able to withstand very high temperatures however it is not toughened and a hard impact could cause the glass to break.
FLUE AND CHIMNEY CONNECTION TO STOVE
The outlet from the chimney should be above the roof of the building in accordance with the provisions of Building Regulations Approved Document J. If installation is into an existing chimney then it must be sound and have no cracks or other faults which might allow fumes into the house. Older properties, especially, may have chimney faults or the cross section may be too large. Mendip Stoves recommend the use of a solid fuel flue lining system for all installation into existing chimneys. All chimney systems must be used in accordance with Building Regulations Approved Document
If an existing chimney is used the chimney must be clear of obstruction and be swept clean immediately before installation of the stove. The chimney should be tested to confirm the chimney will provide the correct chimney pressure for the stove. If the stove is fitted in place of an open fire the chimney should be swept one month after installation to clear any soot falls which may have occurred due to the difference in combustion between the stove and the open fire. If there is no existing chimney then either a prefabricated block chimney in accordance with Building Regulations Approved Document J or a twin walled insulated stainless steel flue to BS 1856-1 . These chimneys must be fitted in accordance with the manufacturer’s instructions and Building Regulations. A single wall metal flue pipe is suitable for connecting the stove to the chimney but is not suitable for using for the complete chimney. The chimney and connecting flue pipe must have a minimum diameter of 150 mm and its dimension should be not less than the size of the outlet socket of the stove. Any bend in the chimney or connecting flue pipe should not exceed 45°. 90° bends should not be used other than within 150 mm of stove rear flue outlet.
Chimney Connection
In order for the stove to perform satisfactorily the chimney height must be sufficient to ensure an adequate draught to clear the products of combustion and prevent smoke problems into the room. A chimney height of 4.5 metres (or more) – measured vertically from the outlet of the stove to the top of the chimney – should provide a satisfactory draught. The flue should also not be horizontal for over 150mm without using the calculation procedure given in BSEN13384-1:2005; this calculation can be usedas the basis for deciding whether a particular chimney design will provide sufficient draugh
| Tested Gas flow rates flue gas temperatures | Flue gas flow rate Wood | Test flue gas temperature wood | @ pascals of pressure |
| Loxton 8 DS/ Churchill 8 DS | 7.3sec | 306 deg C | 12 pa |
A chimney height of not less than 4.5 metres measured vertically from the outlet of the stove to the top of the chimney should be satisfactory. Alternately the calculation procedure given in BS 5854:1980 may be used as the basis for deciding whether a particular chimney design will provide sufficient draught.
If it is found that there is excessive draught in the chimney then a draught stabiliser should be fitted, a flue damper should not be installed in a flue or chimney system.
Adequate provision e.g. easily accessible soot door or doors must be provided for sweeping the chimney and connecting flue pipe.
Your appliance needsto be maintained routinely, the throat plate/baffle should be cleaned regularly (monthly).
The flue pipe can be cleaned using a flexible brush. Only Use a dry cloth on external surfaces. Over time the glass may become dirty, clean with a damp cloth and polish off with a dry cloth.
If the stove has not been used for some time the flue should be checked for blockages before use. Do not modify the appliance; only use spares authorised by the manufacturer
STOVE PERFORMANCE AND TESTING
Loxton & Churchill Double sided models are tested in accordance with EN 13240. Loxton, Churchill DS models has been recommended as suitable for use in smoke control areas when burning wood logs with no mechanical stop to prevent closure of the secondary/tertiary air control
| PERFORMANCE DATA | CHURCHILL 8 DS | LOXTON 8 DS |
| Nominal Heat output | 8.2 kW | 8.2 kW |
| CO2 @ 13% O2 | 0.03 | 0.03 |
| Mean Flue gas temp | 306c | 306c |
| Flue Gas Mass Flow Rate | 7.3 g/s | 7.3 g/s |
| OGC | 64MG / M3@13% 02 | 64MG / M3@13% 02 |
| Particulates (@13% o2) | 20 | 20 |
| Recommended for smoke control | Yes | Yes |
| Test report /Notified Body | 61510 / 0558 | 61510 / 0558 |
Stove model / Weight of Fuel @ Nominal heat output for Wood
| STOVE MODEL | LOG LENGTH | WOOD RELOAD | WEIGHT WOOD LOAD | MECHANICAL AIR STOP FOR SE MODEL | ||
| LENGTH | SE DIMS | NUMBER LOGS | ||||
| CM | L x W x D CM | |||||
| LOXTON DS CAT | 40CM | 25 X14 X14 | 2 | 0.75HR | 1.9kG | NO |
| CHURCHILL DS CAT | 40CM | 25 X14 X14 | 2 | 0.75HR | 1.9kG | NO |
Distance to Combustible materials
Combustible materials should not be located where the heat dissipating through the walls of fireplaces or flues could ignite it. Therefore when installing the stove in the presence of combustible materials due account must be taken of the guidance on the separation of combustible material given in Building Regulations Approved Document J and also in these stove instructions.
The minimum distances to flammable materials are specified on the EN 13240 plate on the back of the stove.
On the raised height /logstore variants no combustible materials should be stored above the joint line of the base section with the stove or 250 mm from base plate
| LOXTON / CHURCHILL | LOXTON LOGSTORE/CHURCHILL LOGSTORE | |
| Distance to combustibles rear | N/A | N/A |
| Distance to combustibles sides | 400MM | 400MM |
| Suitable for 12mm hearth | YES | YES |
| Storage of combustible items below stove/ logstove | NO STORAGE BELOW | ONLY IN BOTTOM 250MM BELOW JOINT LINE |

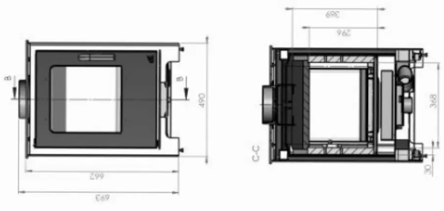
| A | B | C | D | E | FFront of door to centre of air intake | |||
| Loxton 8 | 660mm | 510mm | 520mm | 150mm | 260mm | 237mm | ||
| Loxton 8 Logstore | 965mm | |||||||
| Churchill 8 | 660mm | 510mm | 650mm | 325mm | 293mm | |||
| Churchill 8 Logstore | 965mm | |||||||
| Doors are fully open including the stove is:- | Loxton 8 DS | Churchill 8 DS | ||||||
| Length | 1320mm | 1320mm | ||||||
Logstore base closed combustion air

HEARTH
The hearth should be able to accommodate the weight of the stove and its chimney if the chimney is not independently supported. Churchill and Loxton stoves have been tested and are suitable to be installed on a 12 mm non combustible plate such as 12 mm glass plates. Installation of all hearths should comply in size and construction so that it is in accordance with the provisions of the current Building Regulations Approved Document J.
The clearance distances to combustible material beneath, surrounding or on the hearth and walls adjacent to the hearth should comply with the guidance on the separation of combustible material given in Building Regulations Approved Document J and also in these stove instructions. If the stove is to be installed on a wooden floor, it must be covered with a non combustible material at least 12 mm thick, in accordance with Building Regulations Approved Document J, to a distance of 30 cm in front of the stove and 15 cm to each side measuring from the door of the combustion chamber
COMBUSTION AIR
In order for the stove to perform efficiently and safely there should be an adequate air supply into the room in which the stove is installed to provide combustion air. This is particularly necessary if the room is doubleglazed or a flue draught stabiliser is operating in the same room as the appliance. The provision of air supply to the stove must be in accordance with current Building Regulations Approved Document J. An opening window is not appropriate for this purpose. Air inlets must be positioned in such a way that they cannot be blocked. An air inlet may be a vent (the vent must be open and the capacity for the vent sufficient when the stove is lit) Please note: Do not fit an extractor fan in the same room as this appliance.
There are no European rules regarding the minimum distance to non-flammable walls, Mendip Stoves recommend leaving a gap of at least 100mm to the sides of a stove. Loxton and Churchill models take all combustion air from a single 80mm port under the stove, with the door closed the air port supplies all combustion air for the appliance. This can be connected to the outside via a 80mm pipe so the appliance does not draw air from the room. However Mendip stoves still recommends the use of an air brick aslaid out in Building Regulations Approved Document J for when the stove is being reloaded.
COMBUSTION CHAMBER
Mendip Stoves are lined with vermiculite heat deflection panels and baffles, these panels are designed to ensure the maximum efficiency and are an integral part of the clean burn process of the stove. These baffles should not be removed other than for cleaning the stove. Any defective broken panels should be replaced, however small hairline cracks do not need replacement until the brick panel has broken. To avoid potential accidental damage to bricks place wood fuel into the chamber wearing a glove when refuelling, impact from logs can cause the heat deflection panels to crack prematurely.
Connection to chimney
Mendip Stoves are factory set up with a top flue outlet, the Loxton/Churchill 8 Double sided is only available with a top flue. This flue collar allows connection to either a correctly lined masonry chimney or a prefabricated factory made insulated metal chimney.
COMMISSIONING AND HANDOVER
Ensure loose parts (brick and grates) are fitted in accordance with the instructions given in the instruction booklet. On completion of the installation allow a suitable period of time for any fire cement and mortar to dry out, a small fire may be lit to check that smoke and fumes are taken from the stove up the chimney and emitted safely into the atmosphere. Do not run at full output for at least 24 hours. On completion of the installation and commissioning ensure that the operating instructions for the stove are left with the customer. Ensure to advise the customer on the correct use of the appliance with the fuels likely to be used in the stove and notify them to use only the recommended fuels for the stove. Advise the user what to do should smoke or fumes be emitted from the stove. The customer should be warned to use a fireguard to BS 8423:2002 in the presence of children, aged and/or infirm persons.
OPERATING YOUR STOVE -DOUBLE SIDED
Suitable fuels Your stove is tested to burn wood. Wood briquettes can also be burnt. For a full list of suitable fuels, check with the official solid fuels approvals body, HETAS or Solid Fuel Association. Do not overload the stove as this can cause excessive heat and damage the stove (see table on page 5).
ALWAYS KEEP FUEL LOAD BELOW TERTIARY PORTS AT SIDES OF STOVE.
Only use fuels approved for use on heating stoves
Do not burn liquid fuels, drift wood, finished wood, sawn wood, pallet wood, chipboard/plywood, varnished wood or plastic coated wood, wood treated with preservatives, or house hold waste.
DO NOT EXCEED SPECIFIED FUEL WEIGHTS.
DO NOT BURN HOUSE COAL. DO NOT BURN HOUSEHOLD WASTE, THIS APPLIANCE IS NOT AN INCINERATOR.
MENDIP STOVES RECOMMEND THE USE OF A FLUE THERMOSTAT TO CHECK YOUR STOVE IS NOT OVERHEATING. PLACE FLUE THERMOSTAT DIRECTLY ABOVE COLLAR OF STOVE AND REFER TO
TEMPERATURE GAUGE ON PAGE 4.
LIGHTING YOUR STOVE FOR THE FIRST TIME
Before lighting your stove for first time make sure you have read this manual fully and acquainted your self with the controls of this appliance. (see page 9)
The heat-resistant paint on your stove will cure and harden the first time you light your appliance.
The curing process produces a good deal of smoke and odour, it is therefore important that the first time you light your stove the room should be well ventilated.
During the process it is important to open and close the stove door periodically (every 30mins) during the first couple of firings therefore preventing the door seal cord around the door from sticking and coming away from the door. Once the heat-resistant paint has hardened the smell will disappear.
Your stove is NOT designed to be used with the door open, the stove door must be kept closed except when lighting the stove, adding firewood or removing ash in order to prevent flue gases from escaping
Use of Fire lighters
Quality Firelighters should be used when lighting your stove. (Never use methylated spirit, petrol or other flammable liquids). Lighting your stove with firelighters will be more reliable and easier than using paper. Lighting your fire with paper results in excess smoke, more ash and possible blackening of glass
OPERATING YOUR STOVE – LOXTON/CHURCHILL – DUAL AIR CONTROLLER
The Universal air controller provides air control for the whole stove from a single control lever. The Lever has two key operations
Moving the control lever in and out
Sliding the control lever in reduces and out increases the total amount of combustion air in the stove.
Moving the control lever from left to right
By moving the control lever to the left increases the primary air mix and moving to the right increases secondary air (airwash) mix .
Whatever position the control is set at, the lever can have either minimum combustion air or maximum combustion air.

HOW TO LIGHT YOUR WOOD BURNING STOVE. continued
Note: If the chimney is externally fitted or the stove has been installed on a larger diameter clay chimney liner then on cold days it maybe necessary to warm the flue using firelighters prior to lighting with wood.
- Place a few smaller pieces of dry wood (kindling) in the stove on top of the non toxic firelighters, place one or two small dry split logs (¼ split) on top. Kindling stacked as in diagram allows combustion air flow freely and will aid ignition
. - Fully slide open (pull out ) the Universal air control (UAC) air slider
below the stove door. Slide out fully to the middle position. The stove now has a mix of primary air secondary air for start up.
Light the firelighters and push door to closed position, latch in 1st position so the door is open 2 mm. (see picture) This provides additional combustion air for start up and reduces condensation on the door glass. It maybe necessary to open the ash pan a small amount( 1-2 mm) to allow more air if the chimney is slow. - Once the flames from the logs are fully established , this can take up to 10 min’s . The door and ashpan can now be closed. Leave the UAC control in the middle position (if the slider is in the middle the air controller is providing equal primary and secondary air).If the stove flames begin to falter and generate smoke in chamber unlatch the door again until the fire is established
- Once the fire bed is established slide UAC control to the secondary position and push in slider by 25%, for the stove to burn cleanly plenty of secondary air is needed, do not be tempted to shut the fire down too early as this may cause smoke. At nominal heat output, expect to refuel your stove approximately once an hour. Check load weights for your model on the table . use the glove when operating air controls and door.

The stove will get very hot during use and due care must therefore be exercised. Please use the glove when operating air controls, door and ashpan.
WOOD FUEL
Good quality wood is the most important factor in your stove working efficiently and cleanly. Always use dry split hardwood firewood (moisture content of 20% or less). The dryness of the firewood plays an important role since the use of wet wood results in poor fuel economy and may cause a tarry sooty film on the internals of the stove. As of May 2021 Wood sold in volumes of up to 2m³ will need to be Ready to Burn certified as having a moisture content of less than 20%. Newly cut wood contains 60–70% water, making it totally unsuitable for use as firewood. Newly cut wood should be stacked and air dried under cover for two years before being used as firewood. Do not burn liquid fuels, drift wood, finished, sawn wood, pallet wood, chipboard/plywood, varnished wood or plastic coated wood, wood treated with preservatives, or house hold waste.
RE-FUELLING WHEN BURNING WOOD
To re-fuel your stove in the cleanest way only refuel your stove when flames have died down and you have glowing embers. Before refuelling, open UAC fully and slide to the central position . Unlatch door to equalise pressure with the room. Open door gently, add two pieces of wood (8 models) (please check weight table and close the door. Once the flames from the logs are fully established slide UAC control to right position and push air control in by 25%. The stove is only suitable for intermittent use only: do not run overnight or for long periods unattended.
Experience will determine the settings that produce best results. Use a flue thermostat to check the stove is not overheating. Flue thermostats should be placed directly above collar of the stove on a non insulated section of pipe. (efficient operating temperature range is between 180c and 250c)
BURNING WOOD IN A SMOKE CONTROL AREA
You must purchase a smoke exempt version of a Mendip Stove; the tertiary air control should be pushed in fully at all times to comply with regulations. Any alteration to this setting will invalidate the stoves compliance for smoke control areas.
“The Clean Air Act 1993 and Smoke Control Areas”
Under the Clean Air Act local authorities may declare the whole or part of the district of the authority to be a smoke control area. It is an offence to emit smoke from a chimney of a building, from a furnace or from any fixed boiler if located in a designated smoke control area. It is also an offence to acquire an “unauthorised fuel” for use within a smoke control area unless it is used in an “exempt” appliance (“exempted” from the controls which generally apply in the smoke control area). In England appliances are exempted by publication on a list by the Secretary of State in accordance with changes made to sections 20 and 21 of the Clean Air Act 1993 by section 15 of the Deregulation Act 2015. Similarly in Scotland appliances are exempted by publication on a list by Scottish Ministers under section 50 of the Regulatory Reform (Scotland) Act 2014. In Wales and Northern Ireland these are authorised by regulations made by Welsh Ministers and by the Department of the Environment respectively. Further information on the requirements of the Clean Air Act can be found here: https://www.gov.uk/smoke-control-area-rules
The Churchill 8 DS CAT & Loxton 8 DS CAT have been recommended as suitable for use in smoke control areas when burning wood logs.
Your local authority is responsible for implementing the Clean Air Act 1993 including designation and supervision of smoke control areas and you can contact them for details of Clean Air Act requirements”
Only specific models are suitable for smoke control areas, alterations should not be attempted to approved models
Mendip smoke control stoves should not be burnt with the door left open. The refuelling procedure : – allow the newly charged fuel to burn with the secondary air control set at maximum for up 3 to 4 minutes. After this period, with flames from the logs fully established, close the secondary air supply to the low output setting. When operating at high output (secondary air set fully open) the new refuel charge does not require any boost air to establish combustion.
| Log Length | Wood reload load | Weight wood | |||
| Length cm | SE dimensions LxWxD cm | No Log | |||
| Loxton 8 | 40cm | 25x14x14 | 2 | 0.75hr | 1.9 kg |
| Churchill 8 | 40cm | 25x14x14 | 2 | 0.75hr | 1.9 kg |
BURNING WOOD IN A SMOKE CONTROL AREA -continued
Refuelling on to a low fire bed
If thereis insufficient burning materialin the firebed to light anew fuel charge, excessive smoke emissioncan occur. Refuelling must be carried out onto a sufficient quantity of glowing embers and ash that the new fuel charge will ignite in a reasonable period. If there are too few embers in the fire bed, add suitable kindling to prevent excessive smoke
Operation with door left open
Operation with the door open can cause excess smoke. The appliance must not be operated with the appliance door left open except as directed in the instructions.
Dampers left open
Operation with the air controls or appliance dampers open can cause excess smoke. The appliance must not be operated with air controls, appliance dampers or door left open except as directed in the instructions.
Fuel Overloading
The maximum amount of fuel specified in this manual should not be exceeded, overloading can cause excess smoke. Refuelling must be carried out onto a sufficient quantity of glowing embers and ash that the new fuel charge will ignite in a reasonable period. If there are too few embers in the fire bed, add suitable kindling to prevent excessive smoke.
Smoke exemption modification Models
Smoke exempt models are factory fitted with a air stop on the air control slider:
- Loxton 8 DSCAT
- Loxton 8 Logstore DS CAT
- Churchill 8 DS CAT
- Churchill 8 logstore DS CAT
INCOMPLETE COMBUSTION
Ifthe air controls on your stove are closed too much incomplete com busti on may lead to a build-upofhard, shiny soot on the inside of your stove and glass. To prevent sooting of the chamber and glass introduce:-
- more secondary air,
- check that your fuel is suitable and dry.
- that you have sufficient draw in your chimney.
It is important to check the draft conditions before lighting your stove. This may be done, for instance, by crumpling a piece of newspaper, placing it in the combustion chamber and lighting it. The draft conditions are good if the smoke is drawn away through the chimney
OVERNIGHT BURNING
Mendip stoves do not recommend burning in a slumbering position, Mendip stoves are designed to burn wood . Wood burns more efficiently and cleanly if it is burnt hotter. Mendip stoves do not recommend that their stoves are burnt overnight for this reason.
As a night time regime we recommend that the fire is loaded when hot and burnt for five minutes with the secondary air control fully open until the new wood has taken and is burning, then close the secondary air valve to its operational position. On returning to the stove in the morning the fire will have burnt out, reload with some firelighters and some kindling and open both air sliders fully to relight quickly.
Beware as the ash bed can still have hot embers
PERMANENT AIR VENT
The stove requires a permanent air vent to the room . This is to provide adequate air supplyin order for the stove to operate safely and efficiently. In accordance with current Building Regulations the installer may have fitted a permanent air supply vent into the room in which the stove is installed to provide combustion air
This air vent should not, under any circumstances, be shut off or sealed
WARNING NOTE
Properly installed, operated and maintained this stove will not emit fumes into the dwelling. Occasional fumes from de-ashing and re-fuelling may occur. However, persistent fume emission is potentially dangerous and must not be tolerated. If fume emission does persist, then the following immediate action should be taken:-
(a) Open doors and windowsto ventilate the room and then leave the premises.
(b) Let the fire go out.
(c) Check forflue or chimney blockage and clean if required
(d) Do not attempt to relight the fire until the cause of the fume emission has been identified and corrected.
If necessary seek expert advice. The most common cause of fume emission is flue way or chimney blockage. For your own safety these must be kept clean at all times.
CO Alarm
Your installer should have fitted a CO alarm in the same room as the appliance. If the alarm sounds unexpectedly, follow the instructions given under “Warning Note” above.
Aerosols
Aerosols are flammable and therefore dangerous to use around a lit stove. Do not use aerosols sprays near your lit stove. The use of any aerosol is dangerous and care must be take in handling aerosols.
TROUBLE SHOOTING
- Fire Will Not Burn – check
a) the air inlet is not obstructed in any way,
b) that chimney and flue ways are clear,
c) that a suitable fuel is being used,
d) that there is an adequate air supply into the room,
e) that an extractor fan is not fitted in the same room as the fire. - Fire Blazing Out Of Control – check
a) the doors are tightly closed,
b) the air controls are turned down to the minimum setting,
c) a suitable fuel is being used,
d) the door seals are in good condition.
e) the chimney draft may be too strong
f) check ash pan seal and
g) check for ash below ash pan, causing pan to seat Incorrectly, and clean out. - Soot forms on the window
a) The firewood may be too wet
b) the intake of secondary air may be insufficient
c) fire not hot enough - The stove fails to heat fully
a) The firewood may be too wet
b) the intake of secondary air may be insufficient - Smoke or odour
a) weak chimney draft
b) check for blockages in the flue pipe/chimney
c) check the height of the chimney relative to the surrounding - Soot in the chimney
a) The firewood may be too wet
b) intake of secondary air may be insufficient
SWEEPING YOUR CHIMNEY & CHIMNEY FIRES
Ensure that your appliance, flue ways and chimney are swept regularly. This can be incorporated in the service regime of your appliance. Regular sweeping is essential and means at least once a year for smokeless fuels and a minimum of twice a year for wood. If a throat plate is incorporated, it is essential that the throat plate is removed and cleaned above, all ash and debris should be removed. Ensure adequate access to cleaning doors where it is not possible to sweep the chimney through the appliance. Where a chimney hasserved an open fire installation previously itis possible thatthe higher flue gastemperature from a closed appliance may loosen deposits that were previously firmly adhered, with the consequent risk of flue blockage. It is therefore recommended that the chimney be swept a second time within a month of regular use after installation of the stove.
Chimney Fires
If the chimney is thoroughly and regularly swept, chimney fires should not occur. However, if a chimney fire does occur turn the air control setting to the minimum, and tightly close the doors of the stove. This should cause the chimney fire to go out in which case the control should be kept at the minimum setting until the fire in the stove has gone out. The chimney and flue ways should then be cleaned. If the chimney fire does not go out when the above action is taken then the fire brigade should be called immediately. After a chimney fire the chimney should be carefully examined for any damage.
Expert advice should be sought if necessary.
MAINTENANCE
Mendip stoves recommends that your model needs to have the ash removed from the stove at regular intervals (weekly if used daily). Allowing the ash pan to over flow can impede the function of the stove and can cause possible damage to the stove grate and ash pan. To remove ash pan use ash pan tool to hook under slot front of ash pan drawer. Lift and pull out of firebox chamber. Take care to support ash pan during movement, always wear a heat resistant glove. Make sure the stove is completely cold before cleaning out ash (embers can remain hot for over 24 hours).
Ash must be stored in a non-combustible container and must not be mixed with other combustible waste
Annual Service
The stove should be serviced by a registered dealer once a year. The stove, the flue pipe connection and the chimney should be checked regularly by a qualified engineer. The chimney should also be checked for blockages before relighting the stove if it has not been used for an extended period of time. Insulating fire bricks checked for wear and replaced if necessary, door and ashpan rope seals should be changed annually, glass clamps & glass should checked making sure glass is correctly positioned.
To clean the inside the stove, remove all ash, soot and tar residue from the combustion chamber. Remove insulated chamber panels and baffle, dirt and soot will collect behind it and this must be cleaned out. The paint/ lacquer can wear thin in exposed places due to overheating. This, and other lacquer damage, may be repaired using Senotherm paint/lacquer spray available from your Mendip dealer. To clean the outside of the stove use a dry cloth.
Your stove should be serviced annually by a registered dealer as a condition of the extended warranty of the stove, failure to maintain a service record will invalidate the extended warranty on your stove
Prolonged non use (summer)
If the stove is to be left unused for a prolonged period of time (e.g. over the summer) then it should be given a thorough clean to remove ash and unburned fuel residues. To enable a good flow of air through the appliance to reduce condensation and subsequent damage, leave the air controls fully open. It is important that the flue connection, any appliance baffles or throat plates and the chimney are swept prior to lighting up after a prolonged shutdown period.
Spare parts & unauthorised alterations
Only the manufacturer’s own components, or replacement parts recommended and approved by Mendip stoves, shall be used for appliance servicing and repair. Any unauthorised alterations will invalidate the stove warranty and compliance with EN13240.
LOOSE PARTS / PIÈCES DÉTACHÉES
Always use the operating tools provided
when handling parts likely to be hot when the
stove is in use. Your stove has the following
parts in the stove.
- Cast Iron grate & log retainer
- Ash tray removal tool (Loxton only)
- Ashpan
- Stove Glove

- Instruction manual & warranty card

- Vermiculite brick linings (these are integral to the stoves performance – Do not throw away)
- Moisture absorbency bag
Churchill 8DS (3.1 door) Introduction June 2016

Churchill door components MK3.1 June 2016 onwards
| Description EN | Churchill 8 | |
| Door complete inc glass no handle | M90820-06-00-00-04 | |
| 1 | Door Frame | M90820-06-01-00-04 |
| 2 | Door frame assembly | M90820-06-35-00-02 |
| 3 | Handle | M90076-06-04-99-02 |
| 4 | Glass | M10820-01-01-99-03 |
| 5 | Handle Pin sleeve collar x 2 | M90520-06-16-19-01 |
| 6 &18 | Glass retainer x 2 Kit | M90083-01-08-99-02 |
| Glass retainer bolts x8 | ||
| 7 &16 | Door rope seal | M10820-06-02-01-03 |
| 8 | Door hinge bar | M90800-06-20-99-01 |
| 9 | Door hinge starlock | M90500-06-22-00-00 |
| Door hinge brass spacer | M90500-06-21-99-00 | |
| 10 | Handle crinkle washer | M90520-06-15-31-00 |
| 11 | Handle bolt | M90520-06-14-99-00 |
| 12 | Handle dome nut | M90520-06-18-31-00 |
| 13 | Door frame assembly bolts | M90520-06-36-00-01 |
| 14 &17 | Door frame assembly rope seal | M90820-06-37-00-02 |
| 15 | Glass rope seal | M10820-01-02-01-03 |
| 19 | Handle complete with fixings | M90520-06-13-99-00 |
| Ashpan | M90820-03-00-00-00 |
Loxton / Churchill Double sided Stove parts 3.1
Loxton Churchill double face V3.1

Loxton / Churchill Double sided brick se
Loxton/Churchill Double face jeu de plaques

LOXTON 8 DS DOOR ASSEMBLY

| Description EN | Loxton 8 DS | |
| 1 | Door | M90058-06-01-00-00 |
| 2 | N/A | |
| 3 | N/A | |
| 4 | N/A | |
| 5 | Handle assembly | M90050-06-13-99-00 |
| 6 | Door hinge bar | M90800-06-20-99-01 |
| 7 | Door hinge brass spacer | M90500-06-21-99-00 |
| 8 | Door hinge starlock | M90500-06-22-00-00 |
| 9 | Glass rope seal | M10800-01-02-01-02 |
| 10 | Glass | M90800-01-01-99-00 |
| 11 | Glass retainer | M90080-01-08-99-01 |
| 12 | Glass retainer bolts | |
| 13 | Door rope seal | M10800-06-02-01-02 |
Churchill double sided Catalyst Ecodesign stove 2022


Loxton double sided Catalyst Ecodesign stove 2022


CUSTOMER SUPPORT
Mendip Stoves Ltd
Unit H1,
Mendip Industrial Estate,
Mendip Road, Rooksbridge, Somerset
BS26 2UG
Tel: 01934 750 500
Fax: 01173 156 207
www.Mendipstoves.co.uk
E-mail : [email protected]
.





















