HWAM 5530 A Beautiful Wood Burning Stove with Modules

TECHNICAL DATA
In general
Congratulations on your new HWAM wood-burning stove. We are pleased that you have chosen an HWAM woodburning stove and confident that it will give you much pleasure. To ensure optimum operation and safety, we recommend that the installation should be carried out by an authorized HWAM retailer or a fitter recommended by the retailer. For an overview of HWAM distributors, visit www.hwam.com under “Retailer locations”.
Safety
The installation of your HWAM woodburning stove must always comply with all European, national, and local building regulations. The installation must be carried out in accordance with the instructions in the installation and user manuals and subsequently registered with the local authorities. Upon installation, the chimney sweep must approve the installation before you can start using the insert. All HWAM stove packaging material must be handled in accordance with local waste management regulations.
Room requirements
Always ensure a supply of fresh combustion air to the room where the stove is to be installed. The insert uses approx. 9-18 m3 of air per hour. A window that can be opened or an adjustable air valve will be sufficient. It must not be possible to block the adjustable air valve/grate. In newly built/airtight dwellings, we recommend that a fresh air system should be installed for the direct supply of external air to the combustion. This fresh-air system may be bought separately. Please be aware that not all glass parts are heat-resistant. For this reason, a glass wall should sometimes be treated as a flammable wall, in which case we ask you to contact your local chimney sweep or glass producer to hear at what distance the insert should be kept from glass. Before installing the stove, you must ensure that the load-bearing capacity of the floor can withstand the weight of the stove and the chimney. The weight of the chimney should be calculated according to its dimensions and height. Remember to consider that the stove must be connected to power.
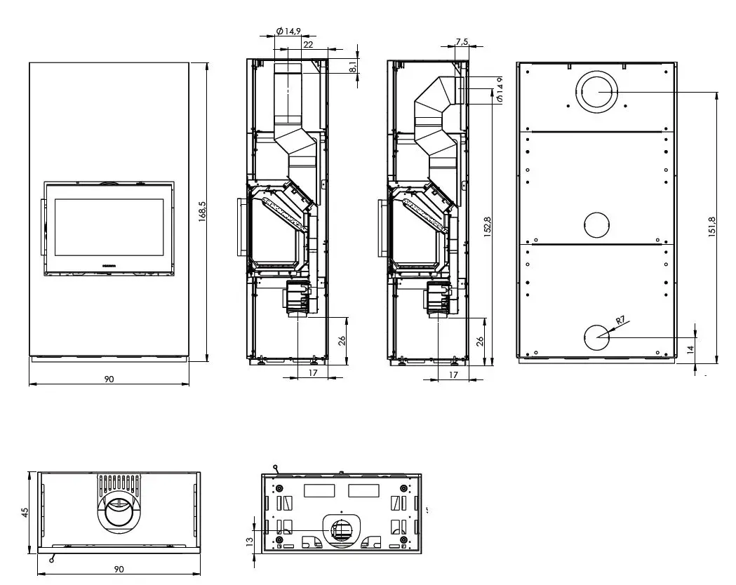
Technical measures and data – top- and back outlet
Technical measures and data – side outlet


| Model | Weight |
| HWAM 5530c | 189 kg |
| HWAM 5530m | 187 kg |
| Tall module | 56 kg |
| Narrow module without drawer | 25 kg |
| Narrow module with drawer | 37 kg |
| Wide module without drawer | 45 kg |
| Wide module with drawer | 55 kg |
| Heat storage stones | 137 kg |
| Reinforcing floor plate | 5 kg |
| Test results from nominal test EN13240 | |
| Nominal heating effect | 6.0 kW |
| Flue gas temperature EN 13240 measurement point | 251ºC |
| Flue gas temperature measured in the outlet socket | 300ºC |
| Exhaust gas flow | 4.6 g/s |
| Efficiency | 83% |
| Annual efficiency | 73% |
| PM | 16 mg/m3 |
| OGC | 37 mg/m3 |
| NOx | 90 mg/m3 |
| CO | 963 mg/m3 |
| CO at 13% O2 | 0.0771 % |
| Energy efficiency inde | 110 |
| Energy efficiency class | A+ |
| Test result based on NS 3058 | |
| Particle emissions | 1.87 g/kg |
The declaration of performance (DoP) can be downloaded from our website, www.hwam.com.
Type plate and serial number
The type plate and serial number of the wood-burning stove are glued to the inside of the combustion chamber casing and can be found by turning the combustion chamber outwards—see installation instructions.
- Locate the unique serial number of your stove and make a note of it below so that it is always easily accessible. The serial number must always be provided when contacting your HWAM retailer.
- Serial number (starts with “F5”):

Floor plate
European, national and local regulations must be observed in terms of the size and thickness of a non-combustible floor covering the floor in front of the combustion chamber opening. Ask your HWAM retailer for assistance. The combustion chamber opening is 62.7 cm wide.
Requirements for chimney and flue duct
The height of the chimney must ensure sufficient draught and prevent any smoke nuisance. As a general rule, satisfactory draught conditions are achieved if the chimney is 4 m above the stove and at least 80 cm above the ridge. If the chimney is placed at side walls, the top of the chimney should always be higher than the ridge or the tallest point of the roof. Always be aware of any national and/or local regulations applying to thatched roofs and the location of the chimneys. The insert requires a minimum draught of 12 Pa (measured at EN 13240 measurement point). If measured just above the smoke flue socket, the chimney draught must be 18-20 Pa. The chimney must have a minimum clearing of Ø 150 mm. The chimney must be provided with an easily accessible cleaning door. The chimney and flue duct must be of flue class T400 and be CE marked. Furthermore, it must have obtained the classification of G in soot fire testing. The required distance to combustible material must be complied with in accordance with the brand label. Ask your HWAM retailer for further information.
INSTALLATION AND CONNECTION
In general
If the stove is to be connected to a fresh air system (optional accessory), the fresh air system must be built into the floor or wall before the wood-burning stove is installed. Do not place the heat-storing stone (optional accessories) in the heating compartment until the wood-burning stove has been installed. A plate can be purchased for weight distribution/reinforcement of the floor (optional accessory), if required due to the weight of the wood-burning stove and any acquired heat-storing stone.
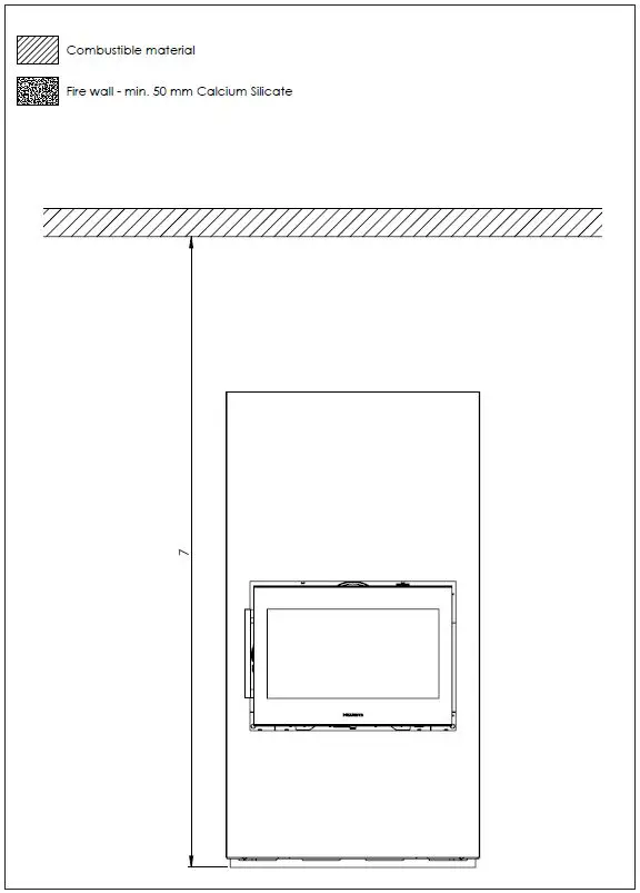
Installation in rooms with non-combustible material
When installing the wood-burning stove up against a non-combustible wall, there are no requirements on the distance to the back or the side of the stove. The general distance requirements appear from the illustrations below.
Installation in rooms with combustible material
When installing the wood-burning stove against a combustible wall, the current distance requirement from the combustible wall to the flue duct must be observed. We recommend looking into the safety distance demands for the chosen flue duct solution before deciding on the final placement of the wood-burning stove. The minimum distance requirements to combustible materials appear in the chart below and the illustrations on the following three pages.
| No. shown in illustration | Min. distances – insulated flue gas pipe: | HWAM 5530 |
| 1. | To non-combustible wall, back, cm | 0 |
| 2. | To non-combustible wall, side, cm | 0 |
| 1. | To combustible wall, back, cm | 0 |
| 2. | To combustible wall, side, next to the stove, cm | 0 |
| 2. | To combustible wall, corner installation (45º), cm | 0 |
| 3. | Distance to furnishings in front, cm | 120 |
| 4. | To combustible wall, side, in front of the stove, cm | 35 |
| 5. | To fireproof wall, side, in front of the stove, cm | 18.5 |
| 6. | Length of fireproof wall to the front of the stove, cm | 70 |
| 7. | From floor to combustible ceiling, cm | 220 |
| No. shown in illustration | Min. distances – uninsulated flue gas pipe: | HWAM 5530 |
| 1. | To non-combustible wall, back, cm | 0 |
| 2. | To non-combustible wall, side, cm | 0 |
| 1. | To combustible wall, back, cm | 5 |
| 2. | To combustible wall, side, next to the stove, cm | 0 |
| 2. | To combustible wall, corner installation (45º), cm | 0 |
| 3. | Distance to furnishings in front, cm | 120 |
| 4. | To combustible wall, side, in front of the stove, cm | 35 |
| 5. | To fireproof wall, side, in front of the stove, cm | 18.5 |
| 6. | Length of fireproof wall to the front of the stove, cm | 70 |
| 7. | From floor to combustible ceiling, cm | 220 |
Illustrations regarding distance requirement




Installation instructions
Install the wood-burning stove as shown in the following illustrations. Before starting the installation, any preparations for the installation of a fresh-air system as well as any reinforcement of the floor must be carried out.
- Procedure for top outlet connection:





- For flue duct installation without insulation:

- For flue duct installation with insulation:

- Procedure for back outlet connection:








- Procedure for side outlet connection:







Product information on solid fuel local space heaters according to Commission regulation (EU) 2015/1185
| Model | HWAM 5530 IHS |
| Direct heat output [kW] | 6,0 |
| Indirect heating functionality | No |
| Indirect heat output [kW] | – |
| Type of heat output/room temperature control | With electronic room temperature control |
| Space heating performance at nominal heat output | ||
| Fuel | Preferred fuel | Seasonal space heating energy efficiency [%] |
| Wood logs with moisture content 12-18 % | Yes | 73 |
| Emissions | mg/m3 (13% O ) 2 | |
| Particulate matter (PM) | 16 | |
| Organic gaseous compounds (OGC) | 37 | |
| Carbon monoxide (CO) | 963 | |
| Nitrogen oxides (NOₓ) | 90 | |
| Characteristics when operating with the prefered fuel only | |
| Nominal heat output [kW] | 6,0 |
| Electric power consumption nominal heat output [kW] | 0,015 |
| Electric power consumption minimum heat output [kW] | 0,012 |
| Electric power consumption standby mode [kW] | 0,0015 |
| Useful efficiency at nominal heat output [%] | 83 |
| Energy efficiency index | 110 |
| Energy efficiency class | A+ |
Specific Precautions during Assembling, Installing & Maintenance:
See installation instructions for more information
Product End-of-Life/Recycling:
To dispose of the stove after the product life has expired, please observe the following information
- Dispose of the items correctly i.e. separate the parts to be disposed of in material groups
- Always dispose of items in a way that is as sustainable as possible and that is in line with the current environmental protection, reprocessing/recycling, and disposal technology









































