HWAM 140 Nox Petra Stone Cladding Woodburning Stove Instruction Manual
Technical data
In general
Congratulations on your new HWAM insert. We are pleased that you have chosen a HWAM insert and confident that it will give you much pleasure. To ensure optimum operation and safety, we recommend that the installation should be carried out by an authorised HWAM retailer or a fitter recommended by the retailer. For an overview of HWAM distributors, visit www.hwam.com under “Retailer locations”.
Safety
The installation of your HWAM insert must always comply with all European, national and local building regulations. The installation must be carried out in accordance with the instructions in the installation and user manuals and subsequently registered with the local authorities. Upon installation, the chimney sweep must approve the installation before you can start using the insert. All HWAM insert packaging material must be handled in accordance with local waste management regulations.
Room requirements
Always ensure a supply of fresh combustion air to the room where the insert is to be installed. The insert uses approx. 9-18 m3 of air per hour.
A window that can be opened or an adjustable air valve will be sufficient. It must not be possible to block the adjustable air valve/grate. In newly built/airtight dwellings, we recommend that a fresh air system should be installed for the direct supply of external air to the combustion. This fresh-air system may be bought separately.
Before installing the insert, make sure that the floor can carry the insert, the chimney and any other parts required for the installation. Remember to consider that the stove must be connected to power.
Please be aware that not all glass parts are heat-resistant. For this reason, a glass wall should sometimes be treated as a flammable wall, in which case we ask you to contact your local chimney sweep or glass producer to hear at what distance the insert should be kept from glass.
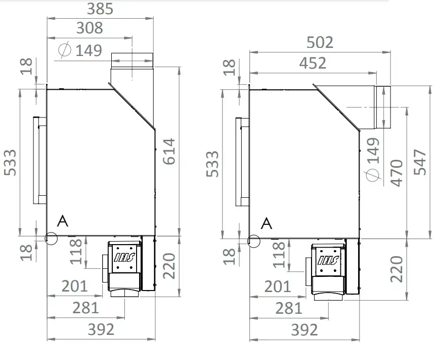
Technical measures and data
HWAM I 40/55 weighs 97 kg (total weight).
The following sketches show the different dimensions of the outer casing as well as the connecting dimensions for flue duct and fresh air system.


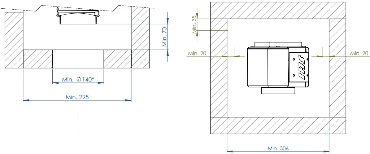
Installation dimensions for the entire insert incl. space for the HWAM® SmartControl™ air box under the insert (centred sideways):
Installation dimensions for the space for the HWAM® SmartControl™ air box under the insert. Note the required opening for the supply of air to the space where the air box is located. This opening ensures a supply of combustion air to the insert as well as cooling of the air box and its electronics. The air can be let in from the outside through a fresh air system or through an opening in the wall to the room where the insert is installed.
| Test results from nominal test EN 13229 | |
| Nominal heating effect | 6.0 kW |
| Flue gas temperature EN 13229 measurement point | 251ºC |
| Flue gas temperature measured in the outlet socket | 300ºC |
| Exhaust gas flow | 4.6 g/s |
| Efficiency | 83% |
| Annual efficiency (EcoDesign) | 73% |
| PM | 16 mg/m3 |
| OGC | 37 mg/m3 |
| NOx | 90 mg/m3 |
| CO at 13% O2 | 963 mg/m3 |
| CO at 13% O2 | 0.0771 % |
| Energy efficiency inde | 110 |
| Energy efficiency class | A+ |
| Test result based on NS 3058 | |
| Particle emissions | 1.87 g/kg |
The declaration of performance can be downloaded from our website, www.hwam.com.
Type plate and serial number
The insert comes with type plate and serial number on the inside of the outer casing:
Locate the unique serial number of your insert and make a note of it below so that it is always easily accessible. The serial number must always be provided when contacting your HWAM retailer.
Serial number (starts with “F4”): ![]()
Floor plate
European, national and local regulations must be observed in terms of the size and thickness of a non-combustible floor covering the floor in frontof the combustion chamber opening. Ask your HWAM retailer for assistance. The combustion chamber opening is 62.7 cm wide.
Requirements for chimney and flue duct
The height of the chimney must ensure sufficient draught and prevent any smoke nuisance. As a general rule, satisfactory draught conditions are achieved if the chimney is 4 m above the stove and at least 80 cm above the ridge. If the chimney is placed at side walls, the top of the chimney should always be higher than the ridge or the tallest point of the roof. Always be aware of any national and/or local regulations applying to thatched roofs and the location of the chimneys.
The insert requires a minimum draught of 12 Pa (measured at EN 13229 measurement point). If measured just above the smoke flue socket, the chimney draught must be 18-20 Pa.
The chimney must have a minimum clearing of Ø 150 mm. The chimney must be provided with an easily accessible cleaning door. The chimney and flue duct must be of flue class T400 and be CE marked. Furthermore, it must have obtained the classification of G in soot fire testing. The required distance to combustible material must be complied with in accordance with the brand label. Ask your HWAM retailer for further information.
Installation and connection
In general
HWAM I 40/55 consists of a separate outer casing as well as a separate insert that is pushed into place and connected when the outer casing has been properly installed. We recommend installing a fresh air system that provides external air directly to the combustion (may be purchased separately as an accessory). A fan kit that will improve heat utilisation and heat distribution in the room can also be purchased as an accessory. The outer casing comes with 2 pre-cuts for the connection of tubes for the distribution of convection heat to other rooms.
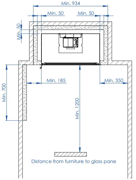
Installation in rooms with non-combustible material
If the insert is installed in rooms where there is no combustible material, we recommend a distance between masonry and the outer casing of 5 mm as a minimum. This should prevent the brickwork from cracking when the outer casing expands during use. The masonry above the casing must therefore be load bearing.
Installation in rooms with combustible material
If the insert is installed adjacent to combustible walls, a ventilated installation of non-combustible material such as calcium silicate or other material with a thermal conductivity (EN 12667 @ 10 °C) of less than 0.068 W/m x K must be built. Requirements for this installation appear from the illustrations in this installation guide.
Vent holes
The illustrations show minimum areas for vent holes. The area can be distributed on several vent holes. If the area is distributed on more than 2 vent holes for lower and upper holes respectively, the total area must be increased to compensate for a higher pressure loss. If grates are mounted in the vent holes, the total vent hole area must be increased to compensate for the additional pressure loss caused by the grates.
- Combustible material

- Fire wall – min. 50 mm Calcium Silicate

- Insulated chimney



Built-in example
- Combustible material

- Fire wall – min. 50 mm Calcium Silicate

- Insulated chimney


- Combustible material

- Fire wall – min. 50 mm Calcium Silicate

- Insulated chimney


Installation instructions
Install the outer casing and the insert as shown in the following illustrations.
Before mounting, any preliminary steps before the installation of fans and fresh air system must have been completed.
Polystyrene from packaging may be placed on the floor and serve as protection for the insert when it is lifted out of the casing. Note: It is VERY important to secure the outer casing to the support with screws. Otherwise it may fall out during servicing when the insert is turned out of the casing.






















Product information on solid fuel local space heaters according to Comission regulation (EU) 2015/1185
| Model | HWAM I 40/55 IHS |
| Direct heat output [kW] | 6,0 |
| Indirect heating functionality | No |
| Indirect heat output [kW] | – |
| Type of heat output/room temperature control | With electronic room temperature control |
| Space heating performance at nominal heat output | ||
| Fuel | Preferred fuel | Seasonal space heating energy efficiency [%] |
| Wood logs with moisture content 12-18 % | Yes | 73 |
| Emissions | mg/m3 (13% O ) 2 | |
| Particulate matter (PM) | 16 | |
| Organic gaseous compounds (OGC) | 37 | |
| Carbon monoxide (CO) | 963 | |
| Nitrogen oxides (NOₓ) | 90 | |
| Characteristics when operating with the prefered fuel only | |
| Nominal heat output [kW] | 6,0 |
| Electric power consumption nominal heat output [kW] | 0,015 |
| Electric power consumption minimum heat output [kW] | 0,012 |
| Electric power consumption standby mode [kW] | 0,0015 |
| Useful efficiency at nominal heat output [%] | 83 |
| Energy efficiency index | 110 |
| Energy efficiency class | A+ |
Specific Precautions during Assembling, Installing & Maintenance
See installation instructions for more information
Product End-of-Life/Recycling:
To dispose of the stove after the product life has expired, please observe the following information
- Dispose of the items correctly i.e. separate the parts to be disposed of in material groups
- Always dispose of items in a way that is as sustainable as possible and that is in line with the current environmental protection, reprocessing/ recycling and disposal technology























