Skye 5 Multi Fuel Stove with Low Stand

skye
5 & 7
QUICK GUIDE
A Throat plate
Improves efficiency of stove by
slowing down flue gases
B Door
Keep closed when stove is in use
C Door handle
Pull out to open
D Riddler knob
Use operating tool to riddle
C Fuel retainer
Ensure fuel does not protrude
beyond retainer
MAINTENANCE AND CLEANING
GLASS Wipe with damp, lint free cloth. Any stubborn deposits on the glass may be removed with a proprietary stove glass cleaner or ceramic hob cleaner.
THROAT PLATE & UPPER BAFFLE Take down once a month and clean. Sweep sooty deposits into fire
CHIMNEY Have chimney swept twice a year. Chimney can be swept through stove.
SERVICING Stove should be serviced by a professional at least once a year.
LIGHTING AND CONTROLLING THE FIRE

Add kindling and paper or firelighters. Keep air control fully out and door cracked
open.

Once kindling is alight, add smaller logs. Keep air control fully out and close door.

Add larger logs once fire is established. Air control can be reduced to minimum.
Suitable fuels for your Charnwood: Wood logs Smokeless Fuel
Unsuitable fuels: Petroleum coke Liquid fuel Household waste Coal singles Small nuts or coal dust Wet or unseasoned wood
OPERATING INSTRUCTIONS
Congratulations on becoming the owner of a Charnwood Skye
Stove. Your stove has been approved in smoke control areas to burn
wood logs if it is used in accordance with these instructions. It is very
important that you read and understand these instructions before
using the stove.
Before lighting the stove check with the installer that the work and
checks described in the Installation Instructions have been carried
out correctly and that the chimney has been swept, is sound and free
from any obstructions. The stove is not suitable for use in a shared
flue system.
Remember that the stove will be hot and that it is made from hard
materials – ensure that you have good balance before operating the
fire. Always use the provided operating tool and gloves.
Do not use an aerosol spray on or near the stove when it is alight.
There is a risk of explosion or flash ignition of the spray.
When using the stove in situations where children, aged and/or infirm
persons are present a fireguard must be used to prevent accidental
contact with the stove. The fireguard should be manufactured in
accordance with BS 8423:2002.
The stove is suitable for intermittent operation.
FUEL
Please pay careful attention to the special points made with each
type of fuel as they will help you to get the best from your stove. It
must be remembered that only authorized fuels and wood logs may
be burnt in smoke control areas on this stove. If you are not sure
whether you are in a smoke control area, please check with your
At first you may find it helpful to try several fuels to find the most
suitable. If you are unable to obtain the fuel you want, ask your
supplier, or an approved fuel distributor, to suggest an alternative.
Authorized mineral fuels may be burned in smoke control areas on
this appliance. Your local fuel supplier or stove shop will be able to
advise you which fuels are available locally. A list of authorised fuels
can be found at: https://smokecontrol.defra.gov.uk/fuels.php
Take care to only burn good quality fuels in order to obtain the
greatest efficiency and to maintain the life of the appliance.
WOOD LOGS
Only dry well seasoned wood should be burnt on this appliance as
burning wet unseasoned wood will give rise to heavy tar deposits in
the stove, on the glass and within the chimney. For the same reason
hard woods (such as Ash, Beech and Oak) are better than soft
woods (such as Pine and Spruce). Burning wet unseasoned wood
will also result in considerably reduced outputs. The wood should be
cut and split and then left to season in a well ventilated dry place for
at least one year but preferably two years before use. Approximate
suitable log sizes are:
Skye 5, 290mm(11in) long and 75mm (3in) diameter
Skye 7, 400mm (16in) long and 75mm (3in) diameter
Log moisture content of less than 20% is recommended.
PETROLEUM COKE IS NOT SUITABLE FOR USE ON THIS
APPLIANCE. ITS USE WILL INVALIDATE THE GUARANTEE.
This stove is not designed to burn household waste.
HETAS Ltd Appliance Approval only covers the use of Wood Logs
and Smokeless Fuels on this appliance.
MULTI GRATE
Your Charnwood Skye is fitted with a multi grate to enable wood
or smokeless fuel to be burned and ash to be cleared. The grate has
two positions:
1) In the solid fuel position the grate bars are vertical with gaps in
between allowing the primary combustion air to come up through
the grate and through the fuel bed.
2) In the wood position the grate bars are horizontal, allowing the
combustion air to come round the sides of the grate and over the top
of it. When in the closed position ash is able to build up on the grate
as is necessary for effective wood burning.
Movement of the grate from one position to the other is effected
using the operation tool supplied as shown in Fig.1.
The grate is put into the solid fuel position by turning the operation
tool anticlockwise and pulling out the fuel selection slider shown
in Fig.1. The grate is put into the wood position by turning the
operation tool clockwise. To riddle the appliance the tool should be
moved between the clockwise and anticlockwise positions several
times. When burning wood the ash should be allowed to build up
and riddling should only be carried out once or twice a week.
OPERATING INSTRUCTIONS
Fig. 1 Operating the multi grate

RIDDLING
When burning wood, ash should be allowed to build up and only
riddled when the ash begins to cover the rear fireplate. The fire
should be riddled with the door shut (see Fig.2). Place the operating
tool onto the riddling lever and rotate between the open and closed
positions several times. Too much riddling can result in emptying
unburnt fuel into the ashpan and should therefore be avoided. After
riddling, the grate should be put back into the closed position for
burning wood.
Fig. 2 Riddling tool

LIGHTING
On initial lighting, the stove may smoke and give off an odour as the
silicon paint with which the firebox is painted reacts to the heat. This
is normal and will cease after a short time, but meanwhile the room
should be kept well ventilated.
At first only light a small fire and burn it slowly for two hours to allow
any residual moisture in the chimney to evaporate.
Light the stove using dry kindling wood and paper or fire lighters.
Put the paper, or fire lighters, and kindling in the firebox and cover
with a few small dry logs. Open the air control fully (see Fig. 3).
Light the paper or fire lighters. The door may be left cracked open
for a few minutes to assist the combustion and heat up the firebox
more quickly. When the kindling wood is well alight add a few more
small logs, close the door but leave the air control fully open. When
the flames are established around these logs, load the stove with the
required fuel load. Maintain the air control at maximum at this stage.
Once the fire is up to temperature the airwash system will begin to
work, so allow the fire to become hot before adjusting the air control
to the required setting. During the lighting period, do not leave the
stove unattended. Do not leave the door open except as directed
above to avoid excessive smoke.
When relighting the stove, leave the ash on the base if burning
wood, unless it is becoming too deep, in which case some of it may
be removed.
CONTROLLING THE FIRE
The rate of burning and hence the output is controlled by the air
control (see Fig.3)
Fig. 3 Stove controls

Open the air control fully (boost position) when lighting or when
rapid burning is required. It should not be left fully open for long
periods as this can cause over-firing or excessive smoke production.
For high output move the air control to the ‘click position’ or for low
OPERATING INSTRUCTIONS
burning to the fully closed position.
When the fire is burning normally the air control gives enough
airwash to keep the glass clean. However, it will not always be
possible to keep the glass clean with the air control fully closed. For
correct firing we recommend the use of a stove pipe thermometer
which may be purchased from your supplier or from Charnwood.
The Charnwood Skye 5 is fitted with an air control stop for use in a
smoke control area. This stops the stove from burning too slowly.
REFUELLING
Keep the firebox well filled but do not allow fuel to spill over the top
of the fuel retainer.
Logs should be evenly distributed, filling the firebed to give the most
pleasing flame pattern. The air control must be fully opened after
refuelling until the flames are established above the fire. It is best to
refuel on to a hot bed of embers. If at this point the fire starts to die,
the door must be cracked open until the fire is revived. If the fire has
started to die down before refuelling, then more kindling wood must
be added, the air control opened fully and the door cracked open
to re-establish the firebed before adding larger logs (see suitable log
sizes in Fuel section). This will avoid excessive smoke emission.
Care should be taken, especially when burning wood, that fuel does
not project over the fuel retainer or damage to the glass may be
caused when the door is closed. It can also cause the glass to blacken
up. Maximum filling height is such that logs cannot fall from the fire
when the door is opened.
In smoke controlled areas do not fill the stove above the level of the
air holes in the back bricks, as overloading can cause excess smoke.
Do not operate with the door left open except as directed by the
instructions as this can cause excessive smoke.
ASH CLEARANCE
For optimum wood burning, it is important to leave a layer of ash
around 1cm thick on the base of the stove. Before removing ash
ensure that it has cooled down,
The ashpan is handled using the operation tool and gloves provided.
Ensure that the tool is fully engaged before lifting (See Fig.4). When
carrying the ashpan, it should be kept horizontal and supported by
the carrying handle to prevent it falling off the tool. Please avoid
emptying hot ash into plastic liners or bins.
The Ashpan should be emptied regularly before it becomes too full.
Never allow the ash to accumulate in the ashpan so that it comes in
contact with the underside of the grate as this will seriously damage
the grate bars.
To make ash removal easier there are ash carriers available. These
may be purchased from your supplier or, in case of difficulty, from
Charnwood.
Fig. 4 Ashpan

OPERATING TOOL HOLDER
When not in use the operating tool can be stored inside the store
stand or on the shelf underneath the stove. (See fig. 5.)
Fig. 5 Operating tool storage

REDUCED BURNING
For reduced burning the fire door must be closed.
When burning wood in areas that are not smoke controlled, load
some large logs on the fire and allow to burn for half an hour before
closing the air control (this will help to reduce tar deposits in the
chimney). Some experimentation may be necessary to find the
setting most suitable for the type of fuel being used and the draw on
the chimney.
OPERATING INSTRUCTIONS
MAINTENANCE
Cleaning
The stove is finished with a high temperature paint which will
withstand the temperatures encountered in normal use. This may
be cleaned with a damp lint-free cloth when the stove is cold. Should
re-painting become necessary, high temperature paints are available
from your supplier or from stove shops.
Cleaning the Glass
Most deposits on the glass may be burnt off simply by running the fire
at a fast rate for a few minutes. If it becomes necessary to clean the
glass then open the door and allow it to cool. Clean the glass using
a damp cloth and then wiping over with a dry cloth. Any stubborn
deposits on the glass may be removed with a proprietary stove glass
cleaner or ceramic hob cleaner. Do not use abrasive cleaners or pads
as these can scratch the surface which will weaken the glass and cause
premature failure
When Not in Use
If the fire is going to be out of use for a long period (for instance in
the summer) then to prevent condensation, and hence corrosion, the
air control should be left fully open and the fire door left ajar. It Is also
advisable to sweep the chimney and clean out the fire. Spraying the
inside of the door and firebox with a light oil, such as WD40, will also
help to keep all internal parts working well. After long periods where
the fire has been out of use, the chimney and appliance flueways
should be cleaned before lighting.
Door Seals
For the fire to operate correctly it is important that the door seals
are in good condition. Check that they do not become worn or
frayed and replace them when necessary.
Servicing
It is recommended that the fire is serviced once a year to keep it in
first class working order. After cleaning out the firebox thoroughly,
check that all internal parts are in good working order, replacing
any parts that are beginning to show signs of wear. Check that the
door seals are in good condition and that the door seals correctly. A
servicing guide is available on request. Repairs or modifications may
only be carried out by the Manufacturer or their approved agents.
Use only genuine Charnwood replacement parts.
THROAT PLATE AND FLUEWAY CLEANING
It is important that the throat plate and all the stove flueways are kept
clean in order to prevent potentially dangerous fume emission. They
should be cleaned at least monthly, and more frequently if necessary.
It is necessary to let the fire out to carry out these operations.
To remove the throat plate, first remove the fuel retainer (item ‘e’
page 4) and one side plate to allow enough room so that the throat
plate clears the sides of the fire box when removed.
The Skye 7 throat plate is made up of two bricks and a bracket that
slides over the front that holds the two bricks together. The Skye 5
throat plate is one brick.
To remove the throat plate, if made up of two pieces, first carefully
remove the joining bracket at the front of the throat plate and then
lift the two pieces down from the top of the stove. If the throat plate
is a single piece, slide the throat plate forwards so that it clears the
back brick, then slide it either right or left so that the opposite side
clears the top of the remaining side brick and can be gently lowered.
Any sooty deposits should then be swept from the throat plate and
into the fire.
On Skye 7 models only, lift out the upper throat plate and clean any
deposits, then re-fit it as shown in figure 6. If the rear flue connection
is used, then the upper throat plate is not required.
To re-fit the lower throat plate, if the throat plate is made up of
two pieces, fit each half so that it rests on the side and back brick,
then, making sure the two halves are fitted closely together, slide the
joining clip back onto the front edge, making sure that it is central
on the join. If it is a single piece, return the throat plate to its correct
position by offering up the throat plate at an angle. Insert the throat
plate so that it sits on top of either the right or left side brick. Raise
the opposite side and slide so that the throat plate is central and
supported by the side bricks. Slide back so that the throat plate rests
neatly on the top of the back bricks. Refit the remaining side plate.
Fig. 6. Throat Plate Location

CHIMNEY SWEEPING
Where the chimney previously served an open fire, it is possible
that the higher flue gas temperature from a stove may loosen soot
deposits with the consequent risk of flue blockage. It is therefore
recommended that the chimney be swept a second time within a
month of regular use after installation.
The chimney should be swept at least twice a year. Where the top
outlet or vertical rear flue connector is used it will generally be
possible to sweep the chimney through the appliance.
First remove the fuel retainer, throat plate and upper baffle (Skye 7
only). Then sweep the chimney ensuring that soot is removed from
all horizontal surfaces after sweeping.
In situations where it is not possible to sweep through the appliance
the installer will have provided alternative means, such as a soot
door. After sweeping the chimney the appliance flue outlet and the
flue pipe connecting the stove to the chimney must be cleaned with
a flue brush.
After clearing any soot from within the stove, replace upper baffle
(Skye 7), the throat plate (see Fig. 5) and the fuel retainer.
Different types of sweep’s brushes are available to suit different
flueways. For prefabricated insulated chimneys the manufacturers
instructions with regard to sweeping should be consulted.
TROUBLE SHOOTING
Fire Will Not Burn Check that:
a) the air inlet is not obstructed in any way,
b) chimneys and flueways are clear,
c) a suitable fuel is being used,
d) there is an adequate air supply into the room,
e) an extractor fan is not fitted in the same room as the stove.
f) there is sufficient draw in the chimney. Once the chimney is warm
a draught reading of at least 1.25 mm (0.05 in.) water gauge (12Pa)
should be obtained.
Blackening of Door Glass
Differences in chimney draughts mean that the best settings of the
air controls will vary for different installations. A certain amount of
experimentation may be required, however the following points
should be noted and with a little care should enable the glass to be
kept clean in most situations:
a) Wet or unseasoned wood, or logs overhanging the front fence will
cause the glass to blacken.
b) The airwash relies on a supply of heated air to keep the glass clean,
therefore, when lighting the stove allow the firebed to become well
established before closing the air control. This may also be necessary
when re-fuelling the stove.
c) When re-fuelling keep the fuel as far back from the front fence as
possible, do not try to fit too much fuel into the firebox.
d) Do not completely close the air control.
It is always more difficult to keep the glass clean when running the
stove very slowly for long periods.
If blackening of the glass still occurs check that all flue connections
and the blanking plate are well sealed. It is also important that the
chimney draw is sufficient and that it is not affected by down-draught.
When the chimney is warm a draught reading of at least 1.25 mm
(0.05 in.) water gauge (12Pa) should be obtained. Some blackening
of the glass may occur below the level of the fuel retainer. This will
not obscure the view of the fire or affect its performance.
Fume Emission
Warning Note:
Properly installed and operated this appliance will not emit fumes.
Occasional fumes from de-ashing and re-fuelling may occur. Persistent
fume emission is potentially dangerous and must not be tolerated.
If fume emission does persist, then the following immediate actions
should be taken:
a) Open doors and windows to ventilate the room and then leave
the premises.
b) Let the fire out and safely dispose of the fuel from the appliance.
c) Check for flue or chimney blockage, and clean if required.
d) Do not attempt to re-light the fire until cause of fuming has been
identified, if necessary seek professional advice.
The most common cause of fume emission is flueway or chimney
blockage. For your own safety these must be kept clean.
Fire blazing out of control
Check that:
a) The door is tightly closed.
b) The air control slider is fully closed.
c) A suitable fuel is being used.
d) Door seals and airwash slide are intact.
Chimney Fires
If the chimney is thoroughly and regularly swept, chimney fires
should not occur. However, if a chimney fire does occur close the air
control, and tightly close the door of the appliance. This should cause
the chimney fire to go out in which case the controls should be kept
closed until the stove has gone out. The chimney and flueways should
then be cleaned. If the chimney fire does not go out when the above
action is taken then the fire brigade should be called immediately.
After a chimney fire the chimney should be carefully examined for
any damage. Expert advice should be sought if necessary.
CO ALARM
Your installer should have fitted a CO alarm in the same room as the
appliance. If the alarm sounds unexpectedly, follow the instructions
given under “Warning Note” above.
IF YOU NEED FURTHER HELP
If you need further help with your Charnwood then your Installer
will be able to provide the answers to most questions. Your Local
Charnwood Premier Dealer has a great deal of experience and will
also be able to provide helpful advice. Further help is available from
the Charnwood Customer Services department who will be pleased
to give advice, if necessary.
INSTALLATION INSTRUCTIONS
UNPACKING THE STOVE
The stove arrives bolted and strapped to its pallet. There must be
adequate facilities for unloading and manoeuvring into position. The
wrapping is first removed, then the stove released from the pallet by
removing 4 pallet bolts using a 10mm spanner. The pallet brackets
can now be removed from the stove by tilting it and using a 13mm
spanner to remove the bolts. The pallet is intended to be cut up and
used for kindling fuel.
HEALTH AND SAFETY PRECAUTIONS
Please take care when installing the stove that the requirements of
the Health and Safety at Work Act 1974 are met.
Some types of fire cement are caustic and should not be allowed to
come into contact with the skin. In case of contact wash with plenty
of water.
If there is a possibility of disturbing any asbestos in the course of
installation then please use appropriate protective equipment.
If room air is used for combustion, then an extractor fan There
should not be an extractor fan fitted in the same room as the stove
as this can cause the appliance to emit fumes into the room.
There must be an adequate air supply into the room in which the
appliance is installed to provide combustion air. The combustion air
supply must be via a permanently open vent. The requirement for
minimum free area is partly dependent on the design air permeability
of the house. In older properties the air permeability will be above
5.0m³/(h.m²), but in some modern properties it may be less.
The vent must be positioned such that it is not liable to blockage.
Minimium areas are given in the following table:
AIR PERMEABILITY m3/(h.m2) | MINIMUM VENT AREA cm2(in2) | |
| Skye 5 | Skye 7 | |
| >5.0 | No requirement | 11 (1.76) |
| <5.0 | 27.5 (4.3) | 38.5 (6.0) |
A fixed ducted air supply may be used as an alternative to the
traditional method of using a permanent open vent into a room to
supply air for combustion.
External air supply kits are available please contact Charnwood for
more information.
This stove is capable of intermittent operation, and is not suitable for
use in a shared flue system.
In addition to these instructions the requirements of BS.8303 and
BSEN 15287-1:2007 must be fulfilled. Local Authority Bylaws
and Building Regulations, including those referring to national and
European Standards, regarding the installation of Solid Fuel burning
appliances, flues and chimneys must also be observed.
CO ALARMS
Building regulations require that whenever a new or replacement
fixed solid fuel or wood/biomass appliance is installed in a dwelling
a carbon monoxide alarm must be fitted in the same room as
the appliance. Further guidance on the installation of the carbon
monoxide alarm is available in BS EN 50292:2002 and from the
alarm manufacturer’s instructions. Provision of an alarm must not
be considered a substitute for either installing the appliance correctly
or ensuring regular servicing and maintenance of the appliance and
chimney system.
SPECIFICATION
SPECIFICATION | SKYE 5 | SKYE 5 | SKYE 7 | SKYE 7 |
Fuel Rated Heat Output kW (BTU/hr) Stove Weight kg (Packed) Flue Temperature °C Minimum Flue Draught Flue gas Mass Flow g/s Hearth Temperature | Wood logs 5.0 136 (Low) 155 239 12Pa 3.4 <100 | Smokeless Fuel 5.0 136 (Low) 155 247 12Pa 4.0 <100 | Wood logs 7.0 157 (Low) 177 284 12Pa 5.9 <100 | Smokeless Fuel 7.0 157 (Low) 177 291 12Pa 5.0 <100 |
Minimum distance from combustibles mm | SKYE 5 | SKYE 7 | ||
SIDE | REAR | SIDE | REAR | |
With Uninsulated Flue 300 270 350 350 With Insulated Flue and rear Heat shield 200 90 350 100 The outputs in the table are based on a 45 minute re-fuelling cycle burning seasoned hardwood logs. All tests are carried out in accordance with BSEN 13240. | ||||
CHIMNEY
In order for the appliance to perform satisfactorily the chimney
height must not be less than 4 metres measured vertically from the
outlet of the stove to the top of the chimney. The internal dimensions
of the chimney should preferably be 150-200 mm (6”- 8”) either
square or round and MUST NOT BE LESS THAN 125 mm (5”) –
Skye 5 or 150 mm (6”) – Skye 7.
If an existing chimney is to be used it must be swept and checked,
it must be in good condition, free from cracks and blockages, and
should not have an excessive cross sectional area. If it was previously
used by an open fire then the chimney should be swept one month
after installation to clear any soot falls which may have occurred due
to the difference in combustion between the stove and the open fire.
If you find that the chimney is in poor condition then expert advice
should be sought regarding the necessity of having the chimney lined.
If it is found necessary to line the chimney then a lining suitable for
Solid Fuel must be used.
If there is no existing chimney then a prefabricated block chimney
or a twin walled insulated stainless steel flue to BSEN 15287-1:2007
can be used either internally or externally. These chimneys must be
fitted in accordance with the manufacturers instructions and Building
Regulations.
Single wall flue pipe is suitable for connecting the stove to the chimney
but is not suitable for using for the complete chimney. If it is found
that there is excessive draw in the chimney then a draught stabilizer
should be fitted.
It is important that there is sufficient draw in the chimney and that the
chimney does not suffer from down-draught. When the chimney is
warm the draw should be not less than 1.25mm (0.05”) water gauge
(12 Pa). If in doubt about the chimney seek expert advice.
HEARTH AND FIRE SURROUND
The stove must stand on a fireproof hearth and must not be situated
closer than the minimum distance from combustible materials (see
specification table) to the sides or rear above hearth level unless
adequately fireproofed in accordance with local building regulations.
The hearth must be of fireproof material and at least 12mm (1/2in.)
thick. The positioning of the stove and the size of the hearth are
governed by building regulations for Class 1 appliances. These
building regulations state that the hearth must extend in front of the
stove by at least 225mm (9 in.) and to the sides of the stove by at
least 150mm (6 in.). When the fire door is open, it extends beyond
the flat front of the stove by 430mm – Skye 5 or 480mm – Skye 7.
If in doubt as to the positioning of the stove, expert advice should be
sought either from the supplier or the local building inspector. The
fireplace must allow good circulation of air around the appliance to
ensure that maximum heat is transferred to the room and also to
prevent the fireplace from overheating. A gap of 150mm (6”) each
side and 300mm (12”) above the appliance should give sufficient air
circulation. If a wooden mantelpiece or beam is used in the fireplace
it should be a minimum of 460mm (18”), and preferably 600mm
(24”) from the appliance. In some situations it may be necessary to
shield the beam or mantelpiece to protect it.
In order for the fire to operate correctly and to allow for access,
there must be an air gap behind the appliance of at least 50mm, but
be aware that this distance will need to be greater in some cases to
meet Building Regulation requirements.
The appliance should be installed on a floor with adequate loadbearing
capacity. If an existing construction does not meet this
requirement then please take suitable measures to achieve this. (e.g.
load distributing plate.)
CONNECTIONS TO FLUES
The stove must be connected to the flue using flue pipe of the
following sizes: 125mm (5”) diameter – Skye 5. 150mm (6”) diameter – Skye 7.
This may be stainless steel, cast iron, or thick wall steel pipe. Straight
lengths of Charnwood Pipe to match the stove are available if
required. If using twin wall flue, the flue spigot must be shielded
to protect exposed combustible material. This can be done with a
shielded starter length of flue.
There are several ways of connecting the stove to the flue. These are
illustrated in Figs. 7 to 10.
If the top flue connection or optional vertical rear flue connector is
used then the chimney may be swept through the appliance.
A spacer (part 77, pages 20-21) is required to attach the optional
vertical rear flue connector to the Skye 7.
Horizontal lengths of flue must be kept to a minimum and should not
be more in length than the flue diameter.
The stove comes with the blanking plate (fig. 11) fitted to the top
flue outlet. The seal for the top outlet is a 155mm dia ring of rope
seal. The seal for the rear outlet is a length of adhesive backed
fibre webbing supplied with instructions ref: TIS093. This is applied
to the flue collar or the Vertical Rear Flue adapter for rear outlet
installations. For top outlet installations, the blanking plate must be
removed, have the webbing fitted to its sealing face, and fitted to
the rear flue outlet. Ensure that the fold on the clamping plate is
in line with the lugs on the firebox as shown in Fig 11. Ensure that
the clamping plate does not prevent the throat plate from seating
correctly. All flue connections must be well sealed. The top outlet
connection is made directly to the cast top, the Skye is supplied with
a flue collar for rear outlet installations.
Fig.7. Vertical register plate with bricked up fireplace

Fig.8. Horizontal register plate with rear flue connection

Fig. 9. Horizontal register plate with top flue connection

Fig. 10. Horizontal register plate with optional vertical rear flue connector

SOOT DOORS
It is possible to pass a 16 inch diameter sweeps brush through the
appliance but in most back outlet installations it will be necessary to
have a soot door to enable the chimney to be swept. The optional
vertical rear flue connector does allow the chimney to be swept
through the stove. Soot doors may either be in the actual brickwork
of the chimney or in the register plate. Various positions of soot
doors are shown in Figs. 7 to 10.
Fig. 11. Flue Blanking Plate

PRE LIGHTING CHECK
Ensure that upper throat plate (Skye 7, top flue outlet connection
only) and the throat plate is fitted in the roof of the appliance. The
location and positioning of the throat plate is shown in Fig. 6.
Check that the front fence is fitted correctly and that the door closes
properly.
COMMISSIONING
On completion of the installation allow a suitable period of time for
the fire cement and mortar to dry out before lighting the fire. Make
a layer of ash or sand on the base of the stove before lighting. Check
to ensure that smoke and fumes are taken from the appliance up
the chimney and emitted safely. Also check all joints and seals. On
completion of the installation and commissioning please leave the
operating instructions with the customer and advise them on the use
of the appliance.
Flue draught can be checked by removing the bolt that is located
to the right of the rear flue exit behind the rear panel (Skye 5) or
removing the bolt underneath the front left hand side (Skye 7)
FITTING THE REAR HEAT SHIELD
The Skye is supplied with an optional rear heat shield. When fitted to
the back of the stove it will reduce the rear distance to combustibles:
Skye 5: 90mm Skye 7: 100mm
To fit the optional rear heat shield, loosen the button head allen
screws and slide the heat shield on so that the slots on the back of
the heat shield fit over the screws. (fig. 12)
Fig. 12. Fitting the optional rear heat shield.

CAA AND SMOKE CONTROL
The Clean Air Act 1993 and Smoke Control Areas
Under the Clean Air Act local authorities may declare the whole or
part of the district of the authority to be a smoke control area. It
is an offence to emit smoke from a chimney of a building, from a
furnace or from any fixed boiler if located in a designated smoke
control area. It is also an offence to acquire an “unauthorised fuel”
for use within a smoke control area unless it is used in an “exempt”
appliance (“exempted” from the controls which generally apply in
the smoke control area).
In England appliances are exempted by publication on a list by the
Secretary of State in accordance with changes made to sections 20
and 21 of the Clean Air Act 1993 by section 15 of the Deregulation
Act 2015. Similarly in Scotland appliances are exempted bypublication
on a list by Scottish Ministers under section 50 of the Regulatory
Reform (Scotland) Act 2014.
In Northern Ireland appliances are exempted by publication on
a list by the Department of Agriculture, Environment and Rural
Affairs under Section 16 of the Environmental Better regulation Act
(Northern Ireland) 2016.
In Wales appliances are exempted by regulations made by Welsh
Ministers.
Further information on the requirements of the Clean Air Act can be
found here: https://www.gov.uk/smoke-control-area-rules
Your local authority is responsible for implementing the Clean Air Act
1993 including designation and supervision of smoke control areas
and you can contact them for details of Clean Air Act requirements.
The Skye 5 Store Stand and Skye 5 Low have been recommended
as suitable for use in smoke control areas when burning wood logs.
The Skye 5 Store Stand and Skye 5 Low models include factory-fitted
modifications to the air controls which have been designed to meet
Clean Air Act requirements for smoke control Exemption.
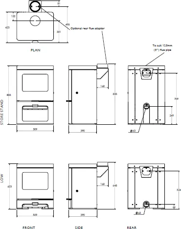
SKYE 5 DIMENSIONS

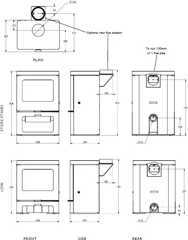
SKYE 7 DIMENSIONS

Charnwood Skye 5 Store Stand Parts List
Issue C

Item Part No. Description Item Part No. Description
*These items are not shown on the drawing.
# Please specify colour when ordering.
To obtain spare parts please contact your local stockist
giving Model, Part No. and Description. In case of
difficulty contact the manufacturer at the address shown.
This drawing is for identification purposes only.
1 008/BU002/S Rope Door Seal Inc Adhesive
2* 008/FW29 Door Seal Adhesive
3 006/BU018 Glass
4 008/BU003 Glass Seal
5 004/KV23 Glass Retainer
6 011/BU031 Brick Throat Plate
7 004/XV30 Brick Bracket
8 011/BU029S Set of Firebricks
9 002/BU015L LH Side Fire Plate
10 002/BU015R RH Side Fireplate
11 002/BU016 Back Fireplate
12 002/BU007 Front Fence
13 004/EZ095 Ashpan/Riddling Tool
14 004/BU017 Ashpan
15 010/BU097 Carrier Bar Clamping Bracket
16 002/BU030 Carrier Bar
17 012/AY13 Idler Rod
18 010/BU077 Riddler Rod Assembly
19 010/BU033 Mover Bar
20 002/CG20S8 Set of Grate Bars (8)
21 002/BU098 Riddler Spigot
22 008/FFM081 Circlip
23# 002/BU009 Cast Top
24 010/BU012 Blanking Plate
25 008/BU004 Flue Fixing Rope Seal
26 008/KS134 Blanking Plate Seal
27 010/BU019 Blanking Plate Retainer
28 010/EY51 Clamping Plate
29# 010/BU013 Top Flue Trim Ring
30# 003/BU001A Door Casting
31 004/BU050 Rope Seal Channel
32 002/BU041 Upper Hinge
33 002/BU042 Lower Hinge
34 010/BU063 Door Latch
35 010/BU064 Door Latch Bracket
36# 010/BU060 Door Catch Arm
37 008/FFW029 M10 Brass Washer
38 008/FFW027 M10 Wavy Washer
39 010/BU061 Tabbed Locking Washer
40 008/FFN019 M10 Half Nut
41 008/BU049 Door Handle
42 008/BU110 Air Control Gasket
43 008/EZ006 Airbox Gasket
44 010/BU111 Air Control Top Slider Plate
45 004/BU112 Wood/Multifuel Surround Plate
46 010/BU130 Air Control Lower Plate
47 004/BU115 Air Control Slider
48 004/BU113 Wood/Multifuel Selection Slide
49 004/BR015 Clicker Retainer Plate
50 008/ES36/01 Brass Ball Catch
51 004/ER016 Control Rod
52 008/BU037 Air Control Handle
53 008/BR052 Felt Washer
54 004/BU120 Air Box Cover
55 008/BR044 Duct Gasket
56 004/BR054 Blanking Plate
57 004/BR053 Air Inlet Spigot
58 008/FFS067 Defra Stop
59 002/BU040 Door Hinge Bracket
60 008/FFW024 M8 Brass Washer
61 004/BU039 Door Hinge Shim
62 010/DY24 Spacer
63 012/BU011 Serial No. Label
64# 001/BU010 Firebox
65# 010/BU081 Rear Heatshield
66# 004/BU080 Rear Panel
67# 004/BU059 Rear Lower Panel
68# 004/BU093L Left Side Panel
69# 004/BU093R Right Side Panel
70# 010/BU058 Base Plate
71# 002/BU072 Front Casting
72# 002/PV12B Flue Collar
73 010/EW51 Ash Carrier (Optional Extra)
74# 010/BU034 Vertical Rear Flue Adapter (Opt’l Extra)
Charnwood Skye 5 Low Parts List Issue B

Item Part No. Description Item Part No. Description
This drawing is for identification purposes only.
1 008/BU002/S Rope Door Seal Inc Adhesive
2* 008/FW29 Door Seal Adhesive
3 006/BU018 Glass
4 008/BU003 Glass Seal
5 004/KV23 Glass Retainer
6 011/BU031 Brick Throat Plate
7 004/XV30 Brick Bracket
8 011/BU029S Set of Firebricks
9 002/BU015L LH Side Fire Plate
10 002/BU015R RH Side Fireplate
11 002/BU016 Back Fireplate
12 002/BU007 Front Fence
13 004/EZ095 Ashpan/Riddling Tool
14 004/BUL048 Ashpan/Riddling Tool Holder
15 004/BU017 Ashpan
16 010/BU097 Carrier Bar Clamping Bracket
17 002/BU030 Carrier Bar
18 012/AY13 Idler Rod
19 010/BU077 Riddler Rod Assembly
20 010/BU033 Mover Bar
21 002/CG20S8 Set of Grate Bars (8)
22 002/BU098 Riddler Spigot
23 008/FFM081 Circlip
24# 002/BU009 Cast Top
25 010/BU012 Blanking Plate
26 008/BU004 Flue Fixing Rope Seal
27 008/KS134 Blanking Plate Seal
28 010/BU019 Blanking Plate Retainer
29 010/EY51 Clamping Plate
30# 010/BU013 Top Flue Trim Ring
31# 003/BU001A Door Casting
32 004/BU050 Rope Seal Channel
33 002/BU041 Upper Hinge
34 002/BU042 Lower Hinge
35 010/BU063 Door Latch
36 010/BU064 Door Latch Bracket
37# 010/BU060 Door Catch Arm
38 008/FFW029 M10 Brass Washer
39 008/FFW027 M10 Wavy Washer
40 010/BU061 Tabbed Locking Washer
41 008/FFN019 M10 Half Nut
42 008/BU049 Door Handle
43 008/BU110 Air Control Gasket
44 008/EZ006 Airbox Gasket
45 010/BU111 Air Control Top Slider Plate
46 004/BU112 Wood/Multifuel Surround Plate
47 010/BU130 Air Control Lower Plate
48 004/BU115 Air Control Slider
49 004/BU113 Wood/Multifuel Selection Slide
50 004/BR015 Clicker Retainer Plate
51 008/ES36/01 Brass Ball Catch
52 004/ER016 Control Rod
53 008/BU037 Air Control Handle
54 008/BR052 Felt Washer
55 004/BU120 Air Box Cover
56 008/BR044 Duct Gasket
57 004/BR054 Blanking Plate
58 004/BR053 Air Inlet Spigot
59 008/FFS067 Defra Stop
60 002/BU040 Door Hinge Bracket
61 008/FFW024 M8 Brass Washer
62 004/BU039 Door Hinge Shim
63 010/DY24 Spacer
64 012/BUL011 Serial No. Label
65# 001/BUL010 Firebox
66# 010/BU081 Rear Heatshield
67# 004/BUL080 Rear Panel
68# 004/BUL093L Left Side Panel
69# 004/BUL093R Right Side Panel
70 004/BUL089 Front Casting Reciever
71# 002/BUL071 Front Casting
72# 002/PV12B Flue Collar
73 010/EW51 Ash Carrier (Optional Extra)
74# 010/BU034 Vertical Rear Flue Adapter (Opt’l Extra)
*These items are not shown on the drawing.
# Please specify colour when ordering.
To obtain spare parts please contact your local stockist
giving Model, Part No. and Description. In case of
difficulty contact the manufacturer at the address
shown.
Charnwood Skye 7 Store Stand Parts List
Issue C

Item Part No. Description Item Part No. Description
1 008/AU035S Rope Door Seal Inc Adhesive
2* 008/FW29 Door Seal Adhesive
3 006/AU018 Glass
4 008/EW45 Glass Seal
5 004/KV23 Glass Retainer
6 010/AU032 Upper Throat Plate
7 011/AU031S Set of Throat Plate Bricks Inc. Bracket
8 004/XV30 Brick Bracket
9 011/AU029S Set of Firebricks
10 010/AU019 Undergrate Deflector
11 002/BU015L LH Side Fire Plate
12 002/BU015R RH Side Fireplate
13 002/AU016 Back Fireplate
14 002/AU008 Deepening Bar
15 002/AU007 Front Fence
16 004/EZ095 Ashpan/Riddling Tool
17 004/AP017 Ashpan
18 010/BU097 Carrier Bar Clamping Bracket
19 002/AY30 Carrier Bar
20 012/AY13 Idler Rod
21 010/BU077 Riddler Rod Assembly
22 010/AU033 Mover Bar
23 002/CG20S10 Set of Grate Bars (10)
24 002/BU098 Riddler Spigot
25 008/FFM081 Circlip
26# 003/AU009 Cast Top
27 010/KZ132 Blanking Plate
28 008/KZ136 Flue Fixing Rope Seal
29 008/KS134 Blanking Plate Seal
30 010/KZ133 Blanking Plate Retainer
31 010/AY51 Clamping Plate
32# 010/KZ131 Top Flue Trim Ring
33# 003/AU001A Door Casting
34 004/AU050 Rope Seal Channel
35 002/BU041 Upper Hinge
36 002/BU042 Lower Hinge
37 010/BU063 Door Latch
38 010/BU064 Door Latch Bracket
39# 010/AU060 Door Catch Arm
40 008/FFW029 M10 Brass Washer
41 008/FFW027 M10 Wavy Washer
42 010/BU061 Tabbed Locking Washer
43 008/FFN019 M10 Half Nut
44 008/BU049 Door Handle
45 008/BU110 Air Control Gasket
46 008/KZ006 Air Box Gasket
47 010/AU111 Air Control Top Slider Plate
48 004/AU112 Undergrate Slider Spacer
49 004/AU113 Multifuel Selection Slider
50 004/BR015 Clicker Retainer Plate
51 008/ES36/01 Brass Ball Catch
52 010/AU130 Air Control Lower Plate
53 004/AU115 Air Control Slider
54 004/AU013 Air Control Rod
55 008/BU037 Air Control Handle
56 008/BR052 Felt Washer
57 004/KZ039 Air Box Cover
58 008/CR063 Duct Gasket
59 004/CR064 Blanking Plate
60 010/CR048/S Air Inlet Spigot
61 008/FFS067 Defra Stop
62 002/BU040 Door Hinge Bracket
63 008/FFW024 M8 Brass Washer
64 004/BU039 Door Hinge Shim
65 010/DY24 Spacer
66 012/AU011 Serial No. Label
67# 001/AU010 Firebox
68# 005/AU081 Rear Heatshield
69# 005/AU080 Rear Panel
70# 005/AU059 Rear Lower Panel
71# 005/AU093L Left Side Panel
72# 005/AU093R Right Side Panel
73# 010/AU058 Base Plate
74# 003/AU072 Front Casting
75 010/AU014 Air Control Rod Guide
76 010/EW51 Ash Carrier (Optional Extra)
77# 010/AU021 Vertical Rear Flue Adapter Spacer
78# 010/TW33 Vertical Rear Flue Adapter (Opt’l Extra)
79 002/CH12B Flue Collar
*These items are not shown on the drawing.
# Please specify colour when ordering.
To obtain spare parts please contact your local stockist giving Model, Part No.
and Description. In case of difficulty contact the manufacturer at the address
shown. This drawing is for identification purposes only.
Charnwood Skye 7 Low Stand Parts List
Issue C

Item Part No. Description Item Part No. Description
1 008/AU035S Rope Door Seal Inc Adhesive
2* 008/FW29 Door Seal Adhesive
3 006/AU018 Glass
4 008/EW45 Glass Seal
5 004/KV23 Glass Retainer
6 010/AU032 Upper Throat Plate
7 011/AU031S Set of Throat Plate Bricks Inc. Bracket
8 004/XV30 Brick Bracket
9 010/AU019 Undergrate Deflector
10 011/AU029S Set of Firebricks
11 002/BU015L LH Side Fire Plate
12 002/BU015R RH Side Fireplate
13 002/AU016 Back Fireplate
14 002/AU008 Deepening Bar
15 002/AU007 Front Fence
16 004/EZ095 Ashpan/Riddling Tool
17 004/BUL048 Tool Holder Tray
18 004/AP017 Ashpan
19 010/BU097 Carrier Bar Clamping Bracket
20 002/AY30 Carrier Bar
21 012/AY13 Idler Rod
22 010/BU077 Riddler Rod Assembly
23 010/AU033 Mover Bar
24 002/CG20S10 Set of Grate Bars (10)
25 002/BU098 Riddler Spigot
26 008/FFM081 Circlip
27# 003/AU009 Cast Top
28 010/KZ132 Blanking Plate
29 008/KZ136 Flue Fixing Rope Seal
30 008/KS134 Blanking Plate Seal
31 010/KZ133 Blanking Plate Retainer
32 010/AY51 Clamping Plate
33# 010/KZ131 Top Flue Trim Ring
34# 003/AU001A Door Assembly
35 004/AU050 Rope Seal Channel
36 002/BU041 Upper Hinge
37 002/BU042 Lower Hinge
38 010/BU063 Door Latch
39 010/BU064 Door Latch Bracket
40# 010/AU060 Door Catch Arm
41 008/FFW029 M10 Brass Washer
42 008/FFW027 M10 Wavy Washer
43 010/BU061 Tabbed Locking Washer
44 008/FFN019 M10 Half Nut
45 008/BU049 Door Handle
46 008/BU110 Air Control Gasket
47 008/KZ006 Air Box Gasket
48 010/AU111 Air Control Top Slider Plate
49 004/AU112 Undergrate Slider Spacer
50 004/AU113 Multifuel Selection Slider
51 004/BR015 Clicker Retainer Plate
52 008/ES36/01 Brass Ball Catch
53 010/AU130 Air Control Lower Plate
54 004/AU115 Air Control Slider
55 004/AU013 Air Control Rod
56 008/BU037 Air Control Handle
57 008/BR052 Felt Washer
58 004/KZ039 Air Box Cover
59 008/CR063 Duct Gasket
60 004/CR064 Blanking Plate
61 010/CR048/S Air Inlet Spigot
62 008/FFS067 Defra Stop
63 002/BU040 Door Hinge Bracket
64 008/FFW024 M8 Brass Washer
65 004/BU039 Door Hinge Shim
66 010/DY24 Spacer
67 012/AUL011 Serial No. Label
68# 001/AUL010 Firebox
69# 005/AU081 Rear Heatshield
70# 005/AUL080 Rear Panel
71# 005/AUL093L Left Side Panel
72# 005/AUL093R Right Side Panel
73 010/AU014 Air Control Rod Guide
74# 003/AUL072 Front Casting
75* 010/EW51 Ash Carrier (Optional Extra)
76# 010/TW33 Vertical Rear Flue Adapter (Opt’l Extra)
77 010/AU021 Vertical Rear Flue Adapter Spacer
78# 002/CH12B Flue Collar
*These items are not shown on the drawing.
# Please specify colour when ordering.
To obtain spare parts please contact your local stockist giving Model, Part No.
and Description. In case of difficulty contact the manufacturer at the address
shown. This drawing is for identification purposes only.
CERTIFICATION
Charnwood
AJ WELLS & SONS LTD
Bishops Way, Newport, Isle Of Wight PO30 5WS, United Kingdom
A Division of A.J.Wells & Sons Limited Registered In England No. 03809371
CE certificate for compliance with EN13240:2001
EN13240:2001
ROOMHEATERS FIRED BY SOLID FUEL
| Model: | SKYE 5 | SKYE 5 | SKYE 7 | SKYE 7 |
| EC Certificate of conformity no: | BU44-CPD-2017 BUL44-CPD-2017 | BU44-CPD-2017 BUL44-CPD-2017 | AU44-CPD-2017 AUL44-CPD-2017 | AU44-CPD-2017 AUL44-CPD-2017 |
| Fuel type: | WOOD LOGS | SOLID FUEL | WOOD LOGS | SOLID FUEL |
| Rated space heating thermal output | 5kW | 5kW | 7kW | 7kW |
| Emission of CO in combustion products | 0.06% | 0.10% | 0.05% | 0.08% |
| Mean flue gas temperature: | 239°C | 247°C | 284°C | 291°C |
| Energy efficiency: | 86% | 82% | 80% | 81% |
| Particles (mg/m3 n) | 25 | 13 | 22 | 8 |
| Minimum distance to combustible materials with uninsulated flue Side: Rear: | 300 270 | 300 270 | 350 350 | 350 350 |
| Minimum distance to combustible materials with insulated flue & rear heat shield Side: Rear: | 200 90 | 200 90 | 350 100 | 350 100 |
| Fulfilled requirements: BStV of the City of Munich and the City of Regensburg FBStVO of the City of Aachen and the City of Düsseldorf 1.and 2. level of 1. BlmSchV of Germany | ✔ | ✔ | ✔ | ✔ |



















