Mendip Stoves Churchill 5 SE MK5 Wood Burning Stove
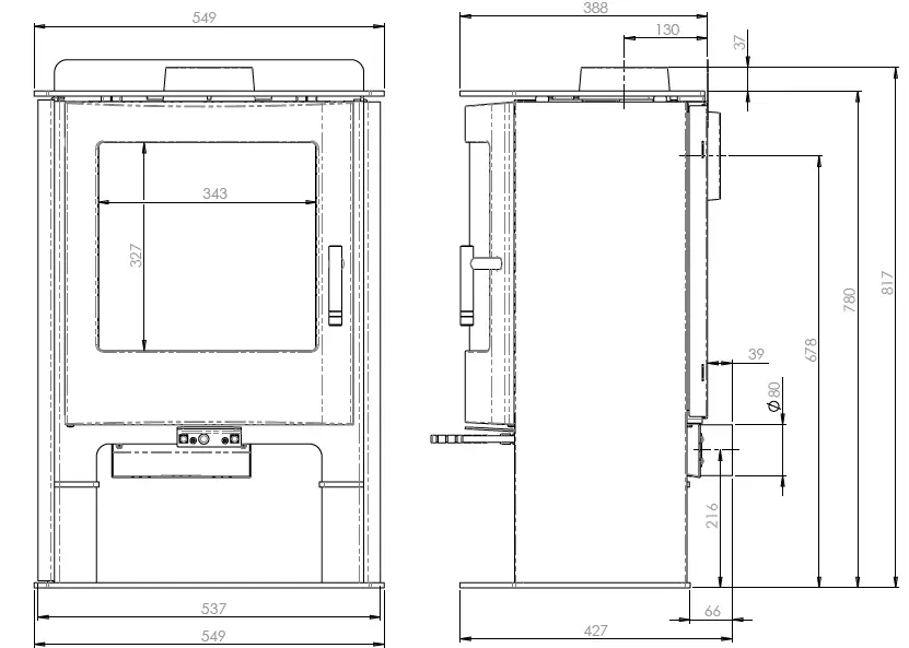
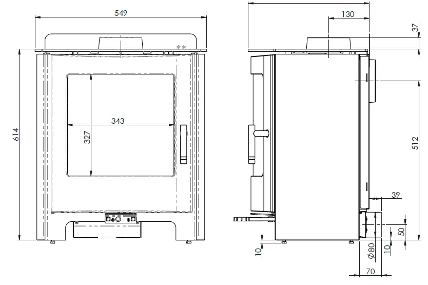
STOVE DIMENSIONS AND CONNECTION MEASUREMENTS
CHURCHILL RADIANT
CHURCHILL CONVECTION
CHURCHILL CONVECTION LOGSTORE
** The additional, top flue rear convection panel (supplied loose within the stove) needs to be used when installing the stove 100mm from a combustible wall; this slots over the rear convection panel and provides additional radiant protection from the flue collar.
The direct air intake spigot (80mm diameter) to the rear of the stove is removable with a 2.5mm Allen key.
The SE appliances include a modified air control to prevent closure of the secondary air control beyond 25% open
MENDIP STOVES WARRANTY
5-Year Extended Warranty
If you have purchased your stove from a Mendip Stoves registered retailer, then your stove will carry a 2-year warranty as standard. The 2 year warranty can be further extended to a total warranty period of 5 years by registering your Mendip Stove within one month of the latter of the purchase date or installation on date. Accordingly, the start date for the warranty period is the date of purchase. During the registration on the process, the Registered Retailer details will be required for your Extended Warranty to be activated. Any product purchased outside of our registered Retailer Network will carry a standard 12-month, non-extendable warranty. It is a condition on of the Extended Warranty that the installation on complies with the relevant Building Regulations and is carried out by a suitably trained and qualified individual (HETAS in the UK or equivalent in other countries) with the certificate of installation on and proof of purchase supplied. Full terms and conditions are detailed in the Warranty Statement on the Eurostove website www.eurostove.co.uk. In the event of any conflict of informal on the wording on the website shall prevail. Important Note: Should any problems be experienced with your product, claims must first be submitted to the Retailer whom the appliance was purchased from who will offer immediate assistance or contact Eurostove on your behalf. Your stove should be serviced annually be a registered dealer or a suitably qualified and competent heating engineer as a condition of the extended warranty of the stove, failure to maintain a service record will invalidate the extended warranty on your stove.
Register online today to activate the warranty: online.httpp://www.mendipstoves.co.uk/SIT/stoveregistration
INSTALLATION MANUAL
CHURCHILL 5 Dual Control
CHURCHILL 5 CONVECTION Dual Control
CHURCHILL 5 CONVECTION LOG STORE Dual Control
This manual refers to the stoves listed above, which are tested in accordance with EN 13240.
Thank you for purchasing your new stove from Mendip Stoves. Please read this manual carefully to ensure that you get maximum enjoyment and performance from your new stove and to prevent any potential operational problems. Please note that “all local regulations, including those referring to national and European Standards, need to be complied with when installing this appliance”. For further information on installing and using fireplaces and wood-burning stoves, please see the relevant building regulations.
These instructions cover the basic principals to ensure the satisfactory installation of your multi-fuel stove, although the detail may need slight modification to suit particular local site conditions.
HEALTH AND SAFETY PRECAUTIONS
INFORMATION FOR THE USER, INSTALLER AND SERVICE ENGINEER
Special care must be taken when installing a stove such that the requirements of the Health & Safety at Work Act are met.
Handling: Adequate facilities must be available for loading, unloading and site handling.
Fire Cement
Some types of fire cement are caustic and should not be allowed to come into contact with the skin. In case of contact wash immediately with plenty of water.
PREPARATORY WORK AND SAFETY CHECKS
IMPORTANT WARNING
This stove must not be installed into a chimney that serves any other heating appliance. There must not be an extractor fan filled in the same room as the stove because this can cause the stove to emit fumes into the room.
Asbestos
This stove contains no asbestos. If there is a possibility of disturbing any asbestos in the coarse of installation then please seek specialist guidance and use appropriate protective equipment.
Metal Parts
When installing or servicing this stove care should be taken to avoid the possibility of personal injury.
CO Alarms:-
Building regulations require that whenever a new or replacement fixed solid fuel or wood/biomass appliance is installed in a dwelling a carbon monoxide alarm must be filled in the same room as the appliance. Further guidance on the installation of the carbon monoxide alarm is available in BS EN 50292:2002 and from the alarm manufacturer’s instructions.
The provision of an alarm must not be considered a substitute for either installing the appliance correctly or ensuring regular servicing and maintenance of the appliance and chimney system.
Stove paint Aerosols
Paint aerosols are flammable and therefore dangerous to use around a lit stove. Be sure to allow aerosol spray paints to dry and ventilate the room well before lighting the stove. The use of any aerosol around lit stove is dangerous and care must be taken in handling aerosols.
Fireguards: The use a fireguard to BS 8423:2002 in the presence of children, aged and/or infirm persons is essential for their safety, even when the stove is not in use.
The glass on the stove is ceramic glass and able to withstand very high temperatures however it is not toughened and a hard impact could cause the glass to break.
IMPORTANT:
These instructions cover the basic principles to ensure the satisfactory installation of Mendip Stoves product:- Churchill models, although the detail may need slight modification to suit the particular local site. In all cases the installation must comply with current Building Regulations, Local Authority Byelaws, and other specifications or regulations as they affect the installation of the stove. It should be noted that the Building Regulations requirements may be met by adopting the relevant recommendations given in British Standards BS 8303, and BS EN 15287 as an alternative means to achieve an equivalent level of performance to that obtained following the guidance given in Approved Document J.
FLUE & CHIMNEY CONNECTION TO STOVE
- The outlet from the chimney should be above the roof of the building in accordance with the provisions of the Building Regulations Approved Document. If the installation is into an existing chimney then it must be sound and have no cracks or other faults which might allow fumes into the house. Older properties, especially, may have chimney faults or the cross-section may be too large.
- Mendip Stoves recommend the use of a solid fuel flue lining system for all installation into existing chimneys. All chimney systems must be used in accordance with Building Regulations Approved Document.
- If an existing chimney is used the chimney must be clear of obstruction and be swept clean immediately before installation of the stove. The chimney should be tested to confirm the chimney will provide the correct chimney pressure for the stove.
- If the stove is filled in place of an open fire the chimney should be swept one month after installation to clear any soot falls which may have occurred due to the difference in combustion between the stove and the open fire. If there is no existing chimney then either a prefabricated block chimney in accordance with Building Regulations
- Approved Document or a twin-walled insulated stainless steel flue to BS 1856-1 . These chimneys must be filled in accordance with the manufacturer’s instructions and
- Building Regulations. A single wall metal flue pipe is suitable for connecting the stove to the chimney but is not suitable for using for the complete chimney. The connecting flue pipe must have a minimum diameter of 125 mm and its dimension should be not less than the size of the outlet socket of the stove. Registered smoke exempt models with a 125mm collar burning wood only can be installed on a flue of 125mm throughout. Any bend in the chimney or connecting flue pipe should not exceed 45° . 90° bends should not be used other than within 150mm of stove rear flue outlet.
Chimney Connection
In order for the stove to perform satisfactorily, the chimney height must be sufficient to ensure an adequate draught to clear the products of combustion and prevent smoke problems into the room.
A chimney height of 4.5 meters (or more) – measured vertically from the outlet of the stove to the top of the chimney -should provide a satisfactory draught.The flue should also not be horizontal for over 150mm without using the calculation procedure given in BSEN13384-1:2005; this calculation can be used as the basis for deciding whether a particular chimney design will provide sufficient draught.
| Tested Gas flow rates flue gas temperatures | Flue gas flow rate Wood /smokeless briquette fuel | Test flue gas temperature wood /smokeless briquetted fuel | @ pascals of pressure |
| CHURCHILL 5 | 5.1/5.0 g/sec | 238/248 °C | 12 pa |
| CHURCHILL 5 CONVECTION | 5.1/5.0 g/sec | 238/248 °C | 12 pa |
If it is found that there is excessive draught in the chimney then a draught stabiliser should be filled.
Adequate provision e.g. easily accessible soot door or doors must be provided for sweeping the chimney and connecting flue pipe.
Your appliance needs to be maintained routinely, the throat plate/baffle should be cleaned regularly (monthly). The flue pipe can be cleaned using a flexible brush. Only Use a dry cloth on external surfaces. Over time the glass may become dirty, clean it with a damp cloth and polish off with a dry cloth. If the stove has not been used for some time the flue should be checked for blockages before use.
Do not modify the appliance; only use spares authorized by the manufacturer.
STOVE PERFORMANCE & TESTING
Mendip Stoves, Churchill Dual Control 5kW models are tested in accordance with EN 13240.
Weight & Nominal Heat Output for Wood and Smokeless Fuels
| Log Length | Wood Reload | Weight Wood Load | smokeless briquetted fuel Reload | Weight smokeless briquetted fuel | |
| Churchill 5 | 35cm | 1hr | 1.2kg | 2hr | 1.5kg |
THE MINIMUM DISTANCE TO COMBUSTIBLE MATERIALS
Combustible materials should not be located where the heat dissipating through the walls of fireplaces or flues could ignite it. Therefore when installing the stove in the presence of Combustible materials due account must be taken of the guidance on the separation of Combustible material given in Building Regulations Approved Document J and also in these stove instructions. The minimum distances to flammable materials are specified on the EN 13240 plate on the back of the stove. When installing the stove 7 5 mm from a combusable wall behind , use the additonal, top flue rear convection panel supplied with the stove, this slots over the rear Convection panel providing additional radiant protection from the flue collar. A twin wall insulated flue should be filled flush to the flue collar for this type of installation.
| Distance to Combustibles | Rear | Optional Side flat convection panels | Side Round convection panels | Logs placed in logstore | Corner position | 12mm non- combustible floor plate |
| Churchill 5 DC | 75mm | 250mm | N/A | Yes, with additional convector panel | 150mm when fitted with flat side convectors | YES |
| Churchill 5 DC Convection | 75mm | N/A | 150mm | Yes, with additional convector panel | 100mm | YES |
| Churchill 5 DC Convection Logstore | 75mm | N/A | 150mm | Yes, convector panel fitted asstandard | 100mm | YES |
A DIAGRAM TO ILLUSTRATE THE MINIMUM DISTANCE TO COMBUSTIBLE MATERIALS
Churchill 5 Dual Control Standard Model
Pictured on an 800mm wide and 850mm deep floor plate.
Churchill 5 Dual Control Convection Model
INSTALLING THE CHURCHILL CONVECTION IN A CORNER POSITION
Churchill 5 Dual Control
Convection Model
Pictured on a 1000mm wide and 1000mm deep glass teardrop floor plate.
MINIMUM DISTANCE TO NON-COMBUSTIBLE MATERIALS
The stove can be recessed in a suitable sized non Combustible fireplace but a permanent free air gap of at least 50mm must be left around the sides, the top and the back of the stove; this is to facilitate a reasonable heat output and allows access to the stove for removal and maintenance. A clearance of 100mm will give a better heat output.
All non Combustible walls closer than 100mm to the stove should be at least 75mm thick. For practical reasons the back wall of the fireplace recess and the hearth should ideally be made of non Combustible material. When installing your stove in a non Combustible chamber, Combustible materials should not be located where the heat dissipating through the walls of fireplace or flues could ignite it. Therefore when installing the stove in the presence of Combustible materials due account must be taken of the guidance on the separation of Combustible material given in Building Regulations Approved Document J and also in these stove instructions. The minimum distances to flammable materials are specified on the EN 13240 plate on the back of the stove.
To ensure that the stove has sufficient air flow available to it during operation, please allow at least 40mm of clearance from the back of the air intake to the rear wall. This means that if you are installing your stove between 50mm and 100mm away from a non Combustible wall, it may be necessary to remove the intake spigot.
HEARTH
The hearth should be able to accommodate the weight of the stove and its chimney if the chimney is not independently supported. The Churchill stoves have been tested and are suitable to be installed on a 12 mm non Combustible plate, such as 12 mm glass plates. installation of all hearths should comply in size and construction so that it is in accordance with the provisions of the current Building Regulations Approved Document.
The clearance distances to Combustible material beneath, surrounding or on the hearth and walls adjacent to the hearth should comply with the guidance on the separation of Combustible material given in Building Regulations Approved Document J and also in these stove instructions.
If the stove is to be installed on a wooden floor, it must be covered with a non-Combustible material at least 12 mm thick, in accordance with Building Regulations Approved Document J, to a distance of 30 cm in front of the stove and 15 cm to each side measuring from the door of the combustion chamber.
HOW TO FIT A LOG STORE LEGS
Loxton -Churchill – Woodland
COMBUSTION AIR & PERMANENT AIR VENT
In order for the stove to perform efficiently and safely there should be an adequate permanent air supply into the room in which the stove is installed to provide combustion air. This is particularly necessary if the room is double-glazed or a flue draught stabilizer is operating in the same room as the appliance. The provision of air supply to the stove must be in accordance with current Building Regulations Approved Document J. An opening window is not appropriate for this purpose. Air inlets must be positioned in such a way that they cannot be blocked. An air inlet may be a vent (the vent must be open and the capacity for the vent sufficient when the stove is lit) .
Churchill models take all combustion air (primary, secondary & tertiary) from a single 80mm port at the bottom rear of the stove, with the door closed the airport supplies all combustion air for the appliance. This port can be connected to the outside via a 80mm pipe so the appliance does not draw combustion air from the room. However as this stove needs the door to be ajar when lighting and combustion air is taken from the room when reloading, Mendip stoves recommend the use of an additional air vent as laid out in Document.
The stove requires a permanent air vent to the room. This is to provide adequate air supply in order for the stove to operate safely and efficiently. In accordance with current Building Regulations, the installer may have filled a permanent air supply vent into the room in which the stove is installed to provide combustion air. This air vent should not under any circumstances be shut off or sealed.
COMBUSTION CHAMBERS
Mendip Stoves are filled internally with vermiculite heat deflection panels and baffles, these panels are designed to ensure the maximum efficiency and are an integral part of the clean burn process of the stove. These baffles should not be removed other than for cleaning the stove. Any defective panels should be replaced, small hairline cracks do not need replacement however these can develop during long term use to a larger crack, if this passes through the vermiculite to the stove body then the panel must be replaced. When refueling your stove place the wood fuel into the chamber (wearing a glove), impact from logs can cause the heat deflection panels to crack.
Connection to chimney
Mendip Stoves are built with a top flue outlet as standard, this can be altered to a rear connection by removing the top collar, rear cover plate then exchanging collar and plate. Care should be taken to ensure an airtight fit when refing collar and plate. When installing a rear flue exit model please remove rear cleaning steel plate inside the flue collar box. A decorative cover plate is included in each stove to cover the hole in the convection top plate. This collar allows connection to either a masonry chimney or a prefabricated factory-made insulated metal chimney.
COMMISSIONING AND HANDOVER
Ensure all loose parts (bricks and grates) are filled in accordance with the instructions given in the instruction booklet. On completion of the installation allow a suitable period of me for any fire cement/silicon and mortar to cure, a small fire may be lit to check that smoke and fumes are taken from the stove up the chimney and emitted safely into the atmosphere.
Do not run at full output for at least 24 hours after this appliance has been installed.
On completion of the installation and commissioning ensure that the operating instructions for the stove are left with the customer. Ensure to advise the customer on the correct use of the appliance with the fuels likely to be used in the stove and not them to use only the recommended fuels for the stove. Advise the user what to do should smoke or fumes be emitted from the stove. The customer should be warned to use a fireguard to BS 8423:2002 in the presence of children, aged, and/or infirm persons.
OPERATING YOUR STOVE – CHURCHILL DUAL CONTROL
THE CHURCHILL STOVE HAS THREE AIR CONTROL LEVERS TO HELP REGULATE YOUR STOVE.
Air regulation, the three control levers perform differing tasks in regulating the combustion air on your appliance:
Primary air: this is generally used when starting the fire or re-igniting the fire. If burning smokeless briquetted fuel then the primary will need to be open. Primary air comes from below the grate.
Secondary air: this is commonly known as air wash, preheated air flows in a continuous thin stream down the glass and into the very heart of the wood fire, when burning wood this should always be open to enable cleaner combustion.
Tertiary Air: this is injected into the rear of the fire chamber above the logs, enabling re-combustion of already burnt gases and improving the quality of combustion.
If the stove is to be operated in a Smoke Control Area then this control MUST remain pushed in at all times.
LIGHTING YOUR STOVE FOR THE FIRST TIME
Before lighting your stove for first to me make sure you have read this manual fully and acquainted yourself with the controls of this appliance.
Ensure that you have allowed sufficient time for the heat-resistant sealant to cure.
The heat-resistant paint on your stove will cure and harden the first time you light your appliance.
The curing process produces a good deal of smoke and odor, it is therefore important that the first time you light your stove the room should be well ventilated.
During the process, it is important to open and close the stove door periodically (every 30mins) during the first couple of firings, therefore, preventing the door seal cord around the door from sticking and coming away from the door. Once the heat-resistant paint has hardened the smell will disappear.
Your stove is NOT designed to be used with the door open, the stove door must be kept closed except when lighting the stove, adding firewood or removing ash in order to prevent flue gases from escaping.
Use of Firelighters
Quality Firelighters should be used when lighting your stove. (Never use mentholated spirit, petrol or other flammable liquids). Lighting your stove with firelighters will be more reliable and easier than using paper. Lighting your fire with paper results in excess smoke, more ash and possible blackening of the glass.
HOW TO LIGHT YOUR WOODBURNING STOVE
Note: If the chimney is externally filled or the stove has been installed on a larger diameter clay chimney liner then on cold days it may be necessary to warm the flue using firelighters prior to lighting with wood.
- Place two small dry split logs (¼ split) on the fire bed. Kindling stacked as in the picture allows combustion air to flow freely and will aid ignition. On top of the kindling two or more nontoxic firelighters.

- Open fully Primary and Secondary air by pulling out the levers, this provides the stove with a mix of primary and secondary air to help establish the fire.

- Light the firelighters and push the door to the closed position, latch in 1st position so the door is open 2 mm*. (see picture) This provides additional combustion air for start-up and reduces condensation on the door glass.

- Once the flames from the logs are fully established, this can take up to 10 mins. The door can now be closed. Slide the Primary air inwards to the closed position. If the stove flames begin to falter and generate smoke in the chamber pull out the primary lever again to re-establish the fire, it may be necessary to unlatch the door again until the fire is fully established.

- Once the fire bed is established close the primary air, and slide the secondary in b 50%, for the stove to burn cleanly plenty of secondary air is needed, do not be tempted to shut the fire down too early as this may cause smoke.
At nominal heat output, expect to refuel your stove approximately once an hour. Check load weights for your model on the table on page 6.
For optimum combustion efficiency, the tertiary air control should be pushed in.
WOOD FUEL
Good quality wood is the most important factor in your stove working efficiently and cleanly. Always use dry split hardwood firewood (moisture content of 20% or less). The dryness of the firewood plays an important role because the use of wet wood results in poor fuel economy and may cause a tarry sooty film on the internals of the stove.
Newly cut wood contains 60–70% water, making it totally unsuitable for use as firewood; it should be stacked and air dried under cover for two years before being used as firewood.
Do not burn liquid fuels, driftwood, finished, sawn wood, pallet wood, chipboard/plywood, varnished wood or plastic coated wood, wood treated with preservatives, or household waste.
WARNING NOTE
Properly installed, operated, and maintained this stove will not emit fumes into the dwelling. Occasional fumes from de-ashing and re-fuelling may occur. However, persistent fume emission is potentially dangerous and must not be tolerated.
If fume emission does persist, then the following immediate action should be taken:-
- Open doors and windows to ventilate the room and then leave the premises.
- Let the fire go out.
- Check for flue or chimney blockage and clean if required
- Do not attempt to relight the fire until the cause of the fume emission has been identified and corrected.
If necessary seek expert advice. The most common cause of fume emission is flue way or chimney blockage. For your own safety these must be kept clean at all times
CO Alarm
Your installer should have fitted a CO alarm in the same room as the appliance. If the alarm sounds unexpectedly, follow the instructions given under “Warning Note” above.
Aerosols
Aerosols are flammable and therefore dangerous to use around a lit stove. Do not use aerosol sprays near your lit stove. The use of any aerosol is dangerous and care must be take in handling aerosols.
OPERATING YOUR STOVE
Suitable fuels:– Your stove is tested to burn wood or registered smokeless briquette fuel. Wood briquettes can also be burnt but special account should be taken of fuel weight. For a full list of suitable fuels, check with the official solid fuels approvals body, HETAS or Solid Fuel Association. Do not overload stove as this can cause excessive heat and damage the stove (see table on page 6).
Wood and smokeless briquette fuel should not be burned at the same time as they require a different air supply for them to burn cleanly and efficiently. Wood requires predominantly secondary air and smokeless fuel predominantly primary air. If you want to change fuel type, wait until the stove requires refuelling and then refuel with wood or smokeless liquefied fuel and adjust the air controls accordingly.
ALWAYS KEEP THE FUEL LOAD BELOW TERTIARY PORTS AT REAR OF STOVE.
Only use fuels approved for use on heating stoves.
Do not burn liquid fuels, driftwood, finished wood, sawn wood, pallet wood, chipboard/plywood varnished wood or plastic coated wood, wood treated with preservatives, or any household waste.
DO NOT EXCEED SPECIFIED FUEL WEIGHTS (SEE pg.7).
DO NOT RUN AT FULL OUTPUT FOR EXTENDED PERIODS OF TIME.
DO NOT BURN HOUSE COAL. DO NOT BURN HOUSEHOLD WASTE.
THIS APPLIANCE IS NOT AN INCINERATOR.
MENDIP STOVES RECOMMEND THE USE OF A FLUE THERMOSTAT TO CHECK YOUR STOVE IS NOT OVERHEATING. PLACE FLUE THERMOSTAT DIRECTLY ABOVE THE COLLAR OF THE STOVE AND REFER TO THE TEMPERATURE GAUGE ON PAGE 6.
RE-FUELLING WHEN BURNING WOOD
Adding fuel to your stove when you only have glowing embers, and the flames have died down, is the cleanest way to refuel your stove.
- Before refueling, Pull open both the Primary and Secondary controls fully.
- Unlatch the door to equalize the pressure inside the stove with that of the room.
- Then, open the door gently.
- If it is necessary, use a poker to create a level bed before adding a piece of wood, below the level of
the tertiary airports (please check weight table page 6). - Now, close the door.
- Once the flames are fully established, close Primary air fully and close Secondary air to the nominal position halfway in (50% air supply). For optimum combustion efficiency, the tertiary air control should be pushed in.
Please regard these instructions as guidelines because each installation will be slightly different. Experience will determine the settngs that produce best results.
To prevent overheating your appliance we recommend that you use a flue thermostat (placed on a noninsulated section of pipe directly above the collar of the stove).
The efficient operating temperature range is between 180°C and 250°C
These stoves are not designed to run overnight or for long periods unattended (see page 14)
INCOMPLETE COMBUSTION
Incomplete combustion may lead to a build-up of hard, shiny soot on the inside of your stove and glass. It is generally the results of an insufficient air supply to the combustion chamber. If you find that this build-up is occurring to your Mendip Stove, you should:
- Increase the amount of secondary air used when running the stove, ensure the tertiary air control is pushed in fully.
- Check that the fuel you use is suitable and dry (less than 20% moisture content).
- Check that your flue system (chimney) is producing sufficient draught.
It is important to check the draft conditions before lighting your stove. This may be done, for instance, by crumpling a piece of newspaper, placing it in the combustion chamber and lighting it. The draft conditions are good if the smoke is drawn away through the chimney.
TROUBLESHOOTING
Fire Will Not Burn – check
- the air inlet is not obstructed in any way,
- that chimney and flue ways are clear,
- that a suitable fuel is being used,
- that there is an adequate air supply into the room,
- that an extractor fan is not filled in the same room as the fire.
Fire Blazing Out Of Control – check
- the doors are tightly closed,
- the air controls are turned down to the minimum setting,
- the flue damper is closed (if filled),
- a suitable fuel is being used,
- the door seals are in good condition,
- the chimney draft may be too strong
- check ash pan seal and
- check for ash below ash pan causing pan to seat incorrectly and clean out.
Soot forms on the window
- The firewood may be too wet
- the intake of secondary air may be insufficient
- fire not hot enough
The stove fails to heat fully
- The firewood may be too wet
- the intake of secondary air may be insufficient
Smoke or odour
- weak chimney draft
- check for blockages in the flue pipe/chimney
- check the height of the chimney relative to the surroundings
Soot in the chimney
- The firewood may be too wet
- intake of secondary air may be insufficient
LIGHTING THE STOVE – SOLID FUELS
SOLID SMOKELESS FUELS (Smokeless briquetted fuel) –
The Churchill models are suitable for use with good quality smokeless fuels (Smokeless briquetted fuel) and has been fully tested to the relevant European standard. Only use registered smokeless fuels on this stove. Take special note of load quanttittes (page 6).
Note: on cold days it maybe necessary to warm the flue using two firelighters.
- Place Firelighters and a few smaller pieces of dry wood (kindling) among a small quantity of fuel in the combustion chamber.
- Fully open (pull out) Primary and Secondary air, the stove now has total primary and secondary air for start-up.
- Using a long match light the firelighters and securely close door.
- Once the fire is established, open the door and add a full load of fuel (see weight table on page 7) Do Not Overload. Do not cover the tertiary airports.
- Close fire door and adjust the Primary air to about 80% open and the Secondary air to 10% open.
- Once the additional fuel is burning, adjust the amount of primary air entering the combustion chamber to your personal preference.
Please regard these instructions as guidelines because each installation will be slightly different. Experience will determine the settings that produce best results.
To prevent overheating your appliance we recommend that you use a flue thermostat (placed on a non-insulated section of pipe directly above the collar of the stove).
The efficient operating temperature range is between 180°C and 250°C
These stoves are not designed to run overnight or for long periods unattended (see “Overnight Burning”)
To Re-fuel Your Stove Using Solid Fuel:
- Your stove will need to be refueled approximately every 2 hours (see page 6.)
- Before refueling, open the control to full primary air.
- Then slowly open door to allow the pressure to equalise between the inside of the stove and the room.
- Once the door has been opened, de-ash your stove with use of poker (not provided).
- Add fuel (see weight table on page 6), ensuring the fuel is placed below the level of the tertiary air ports.
- Finally, close the door and when then fire has re-established reduce the primary air supply to your preferred settings.
OVERNIGHT BURNING
Mendip Stoves do not recommend burning registered smokeless briquette fuel in a slumbering position, Mendip stoves are designed to burn wood or quality registered smokeless fuels. Wood burns more efficiently and cleanly if it is burnt hoer. Mendip stoves do not recommend that their stoves are burnt overnight for this reason.
As a nighttime regime we recommend that the fire is loaded when hot and burnt for five minutes with the secondary air control fully open, until the new wood has taken and is burning, Then place the Secondary Air to 50%. On returning to the stove in the morning the fire will have burnt out, reload with some paper (or a firelighter) and some kindling, Fully open the Primary and Secondary air controls and the fire should relight quickly.
MAINTENANCE
Mendip stoves recommends that your model needs to have the ash removed from the stove at regular intervals (weekly if used daily). Allowing the ash pan to over flow can impede the funcon of the stove and can cause possible damage to the stove grate and ash pan. To remove ash pan, use heat protecng glove provided. Li and pull out of firebox chamber. Take care to support ash pan during movement. Make sure the stove is completely cold before cleaning out ash (embers can remain hot for over 24 hours).
Ash must be stored in a non-Combustible container and must not be mixed with other Combustible waste.
Annual service
The stove should be serviced by a registered dealer once a year. The stove, the flue pipe connection and the chimney should be checked regularly by a qualified engineer. The chimney should also be checked for blockages before relighting the stove if it has not been used for an extended period of time. Insulating fire bricks checked for wear and replaced if necessary door and ashpan rope seals should be changed annually, and glass clamps & glass should be checked to make sure glass is correctly positioned.
To clean the inside of the stove, remove all ash, soot and tar residue from the combustion chamber. Remove insulated chamber panels and baffle, dirt and soot will collect behind it and this must be cleaned out. The paint can wear thin in exposed places due to overheating. This, and other lacquer damage, may be repaired using Mendip paint spray available from your Mendip dealer. To clean the outside of the stove use a dry cloth.
Your stove should be serviced annually by a registered dealer as a condition of the extended warranty of the stove, failure to maintain a service record will invalidate the extended warranty on your stove.
Prolonged nonuse (summer)
If the stove is to be left unused for a prolonged period of time(e.g. over the summer) then it should be given a thorough clean to remove ash and unburned fuel residues. To enable a good flow of air through the appliance to reduce condensation and subsequent damage, leave the air controls fully open.
It is important that the flue connection, any appliance baffles or throat plates, and the chimney are swept prior to lighting up after a prolonged shutdown period.
Spare parts & unauthorized alterations
Only the manufacturer’s own components, or replacement parts recommended and approved by Mendip stoves, shall be used for appliance servicing and repair.
Any unauthorized alterations will invalidate the stove warranty and compliance with EN13240.
SWEEPING YOUR CHIMNEY & CHIMNEY FIRES
Ensure that your appliance, flue ways and chimney are swept regularly. This can be incorporated in the service regime of your appliance. Regular sweeping is essential and means at least once a year for smokeless fuels and a minimum of twice a year for wood. If a throat plate is incorporated, it is essential that the throat plate is removed and cleaned above, all ash and debris should be removed. Ensure adequate access to cleaning doors where it is not possible to sweep the chimney through the appliance.
Where a chimney has served an open fire installation previously it is possible that the higher flue gas temperature from a closed appliance may loosen deposits that were previously firmly adhered, with the consequent risk of flue blockage. It is therefore recommended that the chimney be swept a second time within a month of regular use after installation of the stove.
Chimney Fires
If the chimney is thoroughly and regularly swept, chimney fires should not occur. However, if a chimney fire does occur set the air control setting to the minimum, and fightly close the doors of the stove. This should cause the chimney fire to go out in which case the control should be kept at the minimum setting until the fire in the stove has gone out. The chimney and flue ways should then be cleaned. If the chimney fire does not go out when the above action is taken then the fire brigade should be called immediately.
After a chimney fire, the chimney should be carefully examined for any damage. Expert advice should be sought if necessary.
BURNING WOOD IN A SMOKE CONTROL AREA
You must purchase a smoke-exempt version of a Mendip Stove; the tertiary air control should be pushed in fully at all times to comply with Regulations. Any alteration to this setting will invalidate the stove’s compliance for smoke control areas.
The Clean Air Act 1993 and Smoke Control Areas
Under the Clean Air Act local authorities may declare the whole or part of the district of the authority to be a smoke control area. It is an offence to emit smoke from a chimney of a building, from a furnace or from any fixed boiler if located in a designated smoke control area. It is also an offence to acquire an “unauthorised fuel” for use within a smoke control area unless it is used in an “exempt” appliance (“exempted” from the controls which generally apply in the smoke control area).
In England appliances are exempted by publication on a list by the Secretary of State in accordance with changes made to sections 20 and 21 of the Clean Air Act 1993 by section 15 of the Deregulation Act 2015. Similarly in Scotland appliances are exempted by publication on a list by Scotish Ministers under section 50 of the Regulatory Reform (Scotland) Act 2014.
In Wales and Northern Ireland, these are authorized by Regulations made by Welsh Ministers and by the Department of the Environment respectively.
Further information on the requirements of the Clean Air Act can be found here:
https://www.gov.uk/smoke-control-area-rules
Your local authority is responsible for implementing the Clean Air Act 1993 including designation and supervision of smoke control areas and you can contact them for details of Clean Air Act requirements.
The Churchill 5 SE Dual Control (MK5) stove has been recommended as suitable for use in smoke control areas when burning wood logs. The appliances can also burn authorized fuels in smoke control areas.
More information regarding authorized fuels can be found at http://smokecontrol.defra.gov.uk/fuels.php .
The SE appliances include a modified air control to prevent the closure of the secondary air control beyond 25%open (11mm) alterations should not be attempted. Mendip Stoves smoke control stoves should not be burnt with the door left open.
The refuelling procedure :
Allow the newly charged fuel to burn with the secondary air control set at maximum for up 3 to 4 minutes. After this period, with flames from the logs fully established, close the secondary air supply to the low output setting. When operating at high output (secondary air set fully open) the new refuel charge does not require any boost air to establish combustion.
Refueling on to a low fire bed
If there is insufficient burning material in the fire bed to light a new fuel charge, excessive smoke emission can occur.
Refueling must be carried out onto a sufficient quality of glowing embers and ash that the new fuel charge will ignite in a reasonable period. If there are too few embers in the fire bed, add suitable kindling to prevent excessive smoke.
Fuel Overloading
The maximum amount of fuel specified in this manual should not be exceeded, overloading can cause excess smoke.
Air controls & doors left open
Operation with the air controls fully open can cause excess smoke. The appliance must not be operated with air controls, appliance dampeners or the door left open except as direct in the instructions.
STOVE PARTS, COMBUSTION
“This section shows the parts contained in your stove, each stove has over 80 spare-parts and, each part is detailed. When new parts are required the section will allow spares to be recognized and ordered. As a further source of reference please visit www.eurostove.co.uk for latest spare-part information.
LOOSE PARTS
Always use the operating tools provided when handling parts likely to be hot when the stove is in use. Your stove has the following parts in the stove.
- Cast Iron grate & log retainer.
- Ashpan
- Stove Glove
- Top plate decorative cover plate.
- Instruction manual, service record card & warranty card
- Vermiculite brick linings, are integral to the stoves performance (Do not throw away)
- Top flue rear convection panel.
- Moisture absorbency bag
- Ashpan tool
COMBUSTION CHAMBER
HOW TO REMOVE THE WOODBURNER INTERNAL PARTS
To remove the vermiculite brick set take the following steps:
Remove the log guard.
Lift out the 2 base bricks next to the grate.
Remove the left hand vermiculite side brick by Lifting the top baffle brick and pulling the side brick down from the top.
t is now possible to remove the top baffle brick by
Lifting up the left side and sliding it to the left then dropping it down.
The right-hand side brick can be removed by gently pulling it down from the top.
You may find it easier to remove the cast iron grate before finally removing the rear brick.
To remove the upper steel baffles/ turbulence plates
Firstly lift the upper, ribbed, turbulence plate, slide forwards towards the front of the stove.
This will create enough space to allow the plate to drop down so that the baffle can be removed.
To remove rear steel baffle simply push this away from the holding frame, which it rests on, and twist it to fit through the opening.
You now have access to the flue system, whether the collar is situated on the top or to the rear of your stove.
VERMICULITE BRICK SET PART NUMBERS
| VERMICULITE BRICKS REFERENCE TABLE | |||
| Diagram No. | Part No. | Description | No. Of Parts |
| ES-500-400-1 | Full Brick Set – Churchill 5 | 8 | |
| 1 | ES-500-412-1 | Rear Brick | 1 |
| 2 | ES-500-413-1 | Baffle Brick | 1 |
| 3 | ES-500-414-1 | Right Side Brick | 1 |
| 4 | ES-500-415-1 | left Side Brick | 1 |
| 5 | ES-500-417-1 | Base Brick Side | 2 |
| 6 | ES-500-417-2 | Base Brick Rear | 2 |
| 7 | ES-500-420-0 | RH Spacer | 1 |
| 8 | ES-500-421-0 | LH Spacer | 1 |
STOVE PART NUMBERS


CHURCHILL 5 MK5 DOOR ASSEMBLY – (Complete CH-500-300-0)
| Diagram No. | Part No. | Descrip�on |
| 1 | CH-500-209-0 | Door Handle |
| 2 | CH-500-120-0 | Glass Clamp |
| 3 | CH-500-201-0 | Door Frame (only) |
| 4 | M90502-01-01-99-03 | Glass (bowed) |
| 5 | M90520-06-02-01-05 | Door Rope Seal Kit |
| 6 | M90520-06-13-99-02 | Handle Fixing Kit |
| 7 | M90026-01-02-01-04 | Glass Seal Kit (incl. 6 Clamp Pads) |
| 8 | CH-500-116-0 | Secondary Air Wash Guide Plate |
| Not Pictured | M90520-06-12-99-02 | Handle Catch Assembly |
Declaration of Performance DOP
| NO: | DOP 7 | |||
| Product type: | Freestanding stove | |||
| Type, batch or serial number: | Churchill 5 DC / Loxton 5 DC | |||
| Intended use of the product: | Heat distribution/room heating. Without hot water supply. | |||
| Name and Address of the manufacturer: | Mendip Stoves Eurostove Ltd Unit H1, Mendip Industrial Estate, Rooksbridge, Somerset TA9 4NG | |||
| AVCP: System(s) of assessment and verification of constancy op performance (AVCP) of the construction product as set out in CPR, Annex V | System 3 ISO 9001 CA15256 | |||
| Notified body: Kiwa Gastec, Malvern View Business Park , Stella Way, Bishops Cleeve Cheltenham GL52 7DQ UK Test report no: 61511-1 | NB NB | 0558 0558 | KIWA UK No 61511-1 KIWA UK No 61511-1 | (wood) (maxibrite) |
| Declared performance: | ||||
| Harmonized technical specification | EN13240:2001/A2:2004/AC2007 | |||
| Essential characteristics | Performance | |||
| Fire safety | ||||
| Reaction to fire | Al | |||
| Distance to combustible materials | Minimum distances, in mm Rear – 75mm Side = 350mm std , Side with flat convector panel = 250mm, Side with rounded convector = 150mm Corner position with flat convector panel = 150mm Corner position with flat convector panel = 100mm | |||
| Risk of burning fuel falling out | NPD | |||
| Emission of combustion products | CO [0,09%](w) [0,08%] (maxibrite) NOx [ 103 mg/Nm3] (w) [135 mg/Nm3] (maxibrite) OGC [ 74 mgC/Nm3](w) [61 mgC/Nm3] (maxibrite) Dust [27 mg/Nm3 ] (w) [17 mg/Nm3 ] (maxibrite) | |||
| Surface temperature | Pass | |||
| Electrical safety | – | |||
| Cleanability | Pass | |||
| Maximum water operating pressure | – | |||
| Flue gas temperature at the nominal heat output | T 238° (w) 248° (C) | |||
| Mechanical resistance (to carry a chimney/flue) | NPD | |||
| Thermal output | ||||
| Normal heat output | 5.0 kW wood 4.9kW maxibrite | |||
| Room heating output | 5.0 kW wood 4.9kW maxibrite | |||
| Water heating output | N/A -*kW | |||
| Energy efficiency | r| [79.5%] (W) [76.1%] (C)–– | |||

Mendip Stoves Ltd.
Unit H1 Mendip Industrial Estate Mendip Road, Rooksbridge Somerset
BS26 2UG
Website
www.mendipstoves.co.uk
Email
[email protected]
Telephone
01934 750 500
Mendip Stoves Churchill 5 SE MK5 Wood Burning Stove





























