ARNU053SJS4 Multi V Standard Wall Mounted Unit
Owner’s Manual
ARNU053SJS4 Multi V Standard Wall Mounted Unit
Job Name/Location:………………
Date:……………………..
PO No.:……………………..
Architect:…………………….
Tag #:……………………..
For: File……………………………..
Resubmit…………………………….
Approval Other…………………….
GC:…………………………..
Engr:………………………..
Mech:………………….
Rep:………………………..
(Company)…………………….
(Project Manager)………………………
ARNU053SJS4
Multi V™ Standard Wall Mounted Unit
5,500 Btu/h Indoor Unit
Performance:
| Total Cooling Capacity (Btu/h)1 | 6,100 |
| Heating Capacity (Btu/h) 1 | 5,500 |
| Max Power Input (W)2 | 30 |
| H / M / L Power Input at Factory Default (W) | 11/10/2009 |
Rated capacity is certified under AHRI Standard 1230. Ratings are subject to change without notice. Current certified ratings are available at www.ahridirectory.org.
Electrical:
| Power Supply (V/Hz/Ø) | 208-230 / 60 / 1 |
| Rated Amps | 0.25 |
Piping:
| Refrigerant | |
| Liquid Line (in., O.D.) | 1/2 Flare |
| Vapor Line (in., O.D.) | 1/4 Flare |
| Condensate | |
| Condensate Line (in., I.D.) | 1 |
| Factory Installed Pump | No |
Controls Features:
| • Auto changeover (Heat Recovery only) • Auto operation • Auto restart • Dual thermistor control • Dual setpoint control • Multiple auxillary heater applications • Timer (on/off) • Weekly schedule • Auto direction/ swing (up/down) • Fan speed control | • Jet cool (fast cooling) • Filter life display • Child lock • Group control • Hot start • Self diagnostics • External on/off control • Wi-Fi (built-in) • Auto Fan • Leak Detection |
Optional Accessories:
- Wireless Remote Controller – PWLSSB21H
- MultiSITE™ CRC2 Controller – PREMTBVC2
- MultiSITE™ CRC2+ Controller – PREMTBVC3
- MultiSITE™ CRC2+Z Controller – PREMTBVC4
- Simple Remote Controller – PREMTC00U
- Standard III Remote Controller – PREMTB100
- Standard III Remote Controller – PREMTBB10
- Remote Temperature Button Sensor – ZRTBS01
- Simple Dry Contact (1 contact, 24 VAC external power) – PDRYCB100
- Dry Contact for Third Party Thermostat – PDRYCB320
- Dry Contact for Economizer – PDRYCB400
- Auxillary Heater Kit – PRARS1
Unit Data:
| Refrigerant Type | R410A |
| Refrigerant Control | EEV |
| Sound Pressure dB(A) (H / M / L) | Washable |
| Primary Filter Type | 19.6 |
| Unit Net Weight (lbs.) | 30 / 29 / 28 |
| Unit Shipping Weight (lbs.) | 21.8 |
Fan:
| Type | Cross Flow |
| Quantity | 1 |
| Motor/Drive | Brushless Digitally Controlled/Direct |
| Motor Quantity | 1 |
| Air Flow Rate H / M / L (CFM) | 240 / 230 / 208 |
Notes:
- See Engineering Manual for sensible and latent capacities.
- Max. power input is rated at maximum setting value.
- Sound Pressure levels are tested in an anechoic chamber under ISO Standard 3745.
- All communication cable must be minimum 18 AWG, 2-conductor, twisted, stranded, shielded and must comply with applicable local and national codes. Ensure the communication cable is properly grounded at the main outdoor unit only. Do not ground the outdoor unit to indoor units / heat recovery units communication cable at any other point. Wiring must comply with all applicable local and national codes.
- Power wiring is field provided and must comply with the applicable local and national codes.
- This unit comes with a dry nitrogen charge.
- All capacities are net with a combination ratio between 95 – 105%.
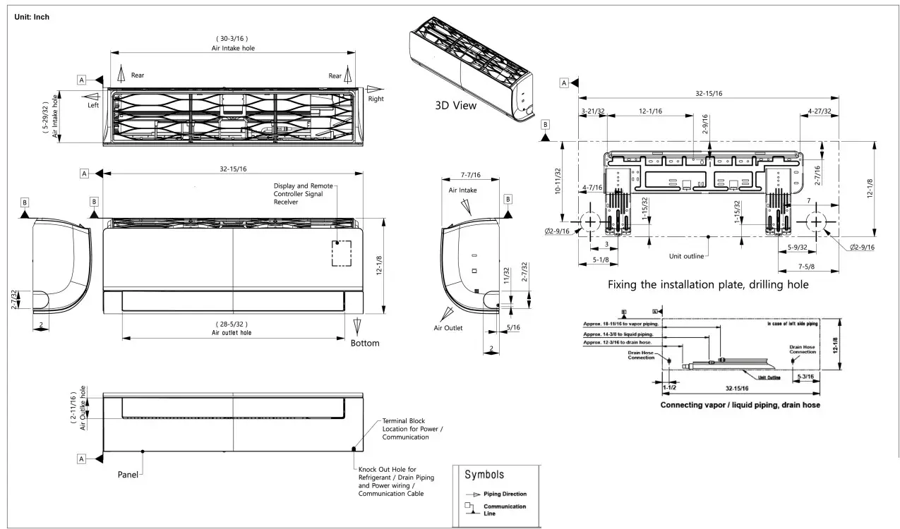
- Must follow installation instructions in the applicable LG installation manual.
Multi V™ Standard Wall Mounted Unit
ARNU053SJS4
5,500 Btu/h Indoor Unit
Tag No.:……………….
Date:…………..
PO No.:………………
Note
- Unit should be installed in compliance with the installation manual.
- Unit should be grounded in accordance with local. state, and federal codes and regulations.
- All field-supplied electrical codes and materials must comply with local, state, and federal codes and regulations.
- Review the electrical information provided in the engineering and installation manuals for instructions on choosing the power wiring. circuit breaker; designing the electrical system; and installation.
For continual product development, LG reserves the right to change specifications without notice.
© LG Electronics U.S.A., Inc., Englewood Cliffs, NJ. All rights reserved.
“LG Life’s Good” is a registered trademark of LG Corp. /www.lghvac.com
SB_MultiV_Standard_Wall_Mounted_ARNU053SJS4_2023_02_27_100737![]()

















