LG LAN181HSV5 Multi F Wall Mounted Art Cool Mirror Indoor Unit Owner’s Manual
Performance
Nominal Cooling Capacity (Btu/h): 18,000
Nominal Heating Capacity (Btu/h): 21,600
Cooling Nominal Test Conditions: Heating Nominal Test Conditions
Indoor: 80°F DB / 67°F WB: Indoor: 70°F DB / 60°F WB
Outdoor: 95°F DB / 75°F WB:Outdoor: 47°F DB / 43°F WB
Electrical
Power Supply (V¹/Hz/Ø): 208-230/60/1
Rated Amps (A): 0.4
Piping
Installed Liquid Pipe (in., O.D.): ø1/4
Installed Vapor Pipe (in., O.D.): ø1/2
Liquid Connection (in., O.D.): ø3/8
Vapor Connection (in., O.D.): ø5/8
Drain (in., O.D. / I.D.): 27/32 , 5/8
Temperature Sensor: Thermistor
Controls Features
- 4-Way auto swing
- 24-Hour on/off timer
- Auto operation
- Auto restart
- Chaos wind
- Inverter (variable speed fan)
- Jet cool/Jet heat
- 3M Micro Filter
- Self-cleaning indoor coil
- Sleep mode
- Condensate sensor connection
- Built-in Wi-Fi via Smart ThinQ app
- Compatible with Single Zone
- HSV5 Outdoor Units
Included Accessories
- Wireless Remote Controller — AKB74955602
Optional Accessories
- MultiSITE™ CRC1 – PREMTBVC0
- MultiSITE CRC1+ – PREMTBVC1
- Dry Contact – PDRYCB300
Entering Mixed Air
Cooling (°F WB): 57 ~ 77
Heating (°F DB): 59 ~ 81
Unit Data
Refrigerant Type: R410A
Refrigerant Control: EEV
Sound Pressure (H/M/L) (±3dB[A])2:44 / 38 / 34
Primary Filter: Washable Pre-filter
Secondard Filter: 3M Micro Dust
Net Weight (lbs.): 29.8
Shipping Weight (lbs.): 36.4
Fan
Type: Cross Flow
Quantity: 1
Motor/Drive: Brushless Digitally Controlled/Direct
Air Flow H/M/L (CFM): 558 / 438 / 353
Notes
- Acceptable operating voltage: 187V-253V.
- Sound Pressure levels are tested in an anechoic chamber under ISO Standard 3745.
- See Engineering Manual for sensible and latent capacities.
- All communication / connection (power) cable from the outdoor unit to the indoor unit is field supplied and must be a minimum of four-conductor, 18 AWG, stranded, shielded or unshielded (if shielded, it must be grounded to the chassis of the outdoor unit only), and must comply with applicable local and national codes.
- Power wiring cable size must comply with the applicable local and national code.
- The indoor unit comes with a dry helium charge.
- Corresponding refrigerant piping length is in accordance with standard length of each outdoor unit and the level difference is 0 ft. All capacities are net with a combination ratio between 95 – 105%.
- Must follow installation instructions in the applicable LG installation manual.
- . Multi compatible 18k IDUs include socket adapters for refrigerant pipe connections with Multi F systems.
For a complete list of available accessories, contact your LG representative.
For continual product development, LG reserves the right to change specifications without notice
. © LG Electronics U.S.A., Inc., Englewood Cliffs, NJ. All rights reserved. “LG Life’s Good” is a registered trademark of LG Corp. /www.lghvac.com
LAN181HSV5
Multi F Wall Mounted Art Cool™ Mirror Indoor Unit 18,000 Btu/h
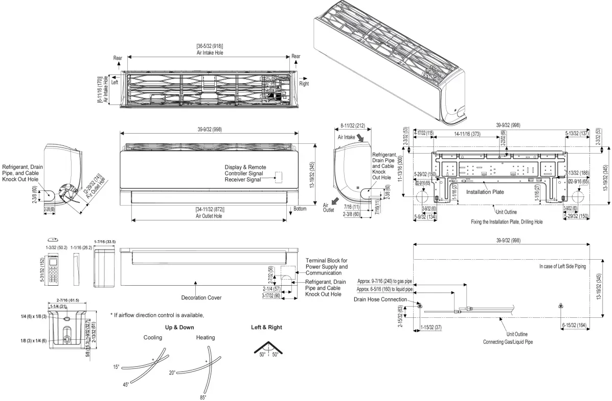
DIMENSION























