BT9920
XXL DISPLAY Wall Mount
INSTALLATION GUIDE
SPECIFICATIONS
- Designed to wall mount extra large signage displays up to 120” such as LG’s 110UM5J
- Suitable for standard or interactive screens over 72″
- Max load: 200kg (440lbs)
- Fits screens with VESA® and non-VESA fixings up to 1600 x 800mm
- Low profile design mounts screen 52mm (2″) from wall
- Cable management
- Simple ‘hook-on’ installation with all mounting hardware included
![]()
INSTALLATION SAFETY INSTRUCTIONS
CAUTION:
This mount is intended for use only with the maximum weights indicated. Use with equipment heavier than the maximum indicated may result in instability causing possible injury.
Do not attempt to install this product until all instructions and warnings have been read and properly understood. Please keep these instructions for future reference. Please check carefully to make sure there are no missing or defective parts – defective parts must never be used. B-Tech AV Mounts, its distributors and dealers are not liable or responsible for damage or injury caused by improper installation, improper use or failure to observe these safety instructions. In such cases, all guarantees will expire.
General
B-Tech AV Mounts recommends that a professional AV installer or other suitably qualified person install this product. Great care must always be taken during installation as most AV equipment is of a fragile nature, possibly heavy and easily damaged if dropped. If you do not fully understand the instructions or are not sure how to install this product safely, then please consult a professional for advice and/or to install this product for you. Failure to mount this product correctly may cause serious injury or death both during installation and at any time thereafter. Do not mount any AV equipment that exceeds the specific weight limit of the product you are installing. This weight limit will be clearly stated on each product and its packaging and will vary from product to product.
Product location
Please pay careful attention to where this product is located. Check load capacity of the wall prior to installation as some surfaces are not suitable for installation. Designed for indoor use, this mount is suitable for public or home installation. If located in a public or frequently populated area ensure that the product is out of the immediate reach of people. If any AV equipment is to be suspended over the likely path or location of people then great care should be taken to secure all parts of the installation from falling. When drilling holes it is essential to avoid contact with electrical cables and water or gas pipes contained within. Use of a good quality live wire detector and hidden object locator is therefore recommended. Only drill into structures when you are sure it is safe to do so.
Fixing hardware
It is highly recommended that all fixing screws be used where supplied and that the purpose of all other fixing hardware is fully understood. In some cases more AV equipment fixing hardware will be supplied to accommodate different models of equipment and set up configurations. The installer must be satisfied that any supplied fixing hardware is suitable for each specific installation. The fixing kit supplied with the product may not be suitable for all walls. If any fixing screws or included hardware are deemed not sufficient for a safe installation then please consult a professional or your local hardware store.
Hazard limitation
When routing cables take advantage of any built-in cable management features that the product might provide and ensure that all cables are tidy and secure. Check to see that any moving aspect of the product can do so unhindered by any cabling. Some products have moving parts and the potential to cause injury through the crushing or trapping of fingers or other body parts. Particular attention to the nature of moving parts is required especially when assembling installing and adjusting during set up. Immediately after installation double-check that the work done is safe and secure. Double-check all necessary fixings are present and are of ample tightness. It is recommended that periodic inspections of the product and its fixing points are made as frequently as possible (no more than 6 months apart) to ensure that safety is maintained. If in doubt consult a professional AV installer or another suitably qualified person.

| ITEM | DESCRIPTION | QTY |
| 1 | WALL PLATE | 2 |
| 2 | M8 SLIDING INSERT | 19 |
| 3 | M8 x 12mm CSK SCREW | 16 |
| 4 | MOUNTING RAIL | 2 |
| 5 | RAIL END CAP | 4 |
| 6 | INTERFACE ARM | 2 |
| 7 | CABLE MANAGEMENT CLIP | 3 |
| 8 | M8 x 10mm HEX SCREW | 3 |
| 9 | 5AF HEX KEY | 1 |
| 10 | 5AF LONG HEX KEY | 1 |
| SCREEN FIXING KIT | ||
| A | M6 x 16mm CROSS SCREW | 4 |
| B | M6 x 25mm CROSS SCREW | 4 |
| C | M6 x 40mm CROSS SCREW | 4 |
| D | M8 x 16mm CROSS SCREW | 4 |
| E | M8 x 25mm CROSS SCREW | 4 |
| F | M8 x 40mm CROSS SCREW | 4 |
| G | M10 x 16mm CROSS SCREW | 4 |
| H | M10 x 25mm CROSS SCREW | 4 |
| I | M10 x 40mm CROSS SCREW | 4 |
| J | ID8.1 T5mm SPACER | 4 |
| K | ID8.1 T13mm SPACER | 4 |
| L | ID8.1 T24mm SPACER | 4 |
| M | ID10.3 T7mm SPACER | 4 |
| N | MULTIWASHER | 4 |
| WALL FIXINGS KIT | ||
| Al | ST8 x 45 WOOD SCREW | 12 |
| A2 | No.10 WALL PLUG | 12 |
Suitable for loads up to 200kg (440lbs)
INSTALLATION TOOLS REQUIRED

INSTALLATION INSTRUCTIONS
- ATTACH MOUNTING RAILS TO WALL PLATES
i. Insert 4x item 2 in both ends of item 4. 2 in the top channel and 2 in the bottom channel and set approx.1500mm apart.
Repeat for both rails.

ii. Attach item 1 to item 4 by fastening item 3 into item 3.
iii. Fit item 5 to the ends of item 4.
FIX MOUNT TO WALL
i. Pre-drill holes for the wall fixings and insert 16x item A2*, assemble 4x item A1 into the top holes and leave approx. 10mm gap to hook on item 1.
ii. Hook item 1 onto the top item A1 using the keyholes fixings.
iii. Add the remaining item A1 and secure all fixings.
3. FIX CABLE MANAGEMENT CLIPS TO RAILS
i. In suitable positions along the bottom of the rail, insert item 2 into item 4.
ii Fix item 7 to item 4 using items 2 & 8.
4. ATTACH INTERFACE ARMS TO SCREEN
Fix item 6 to the rear of the screen using the interface kit provided (items A – N).
Note: Ensure interface arms are positioned the correct way round and the same holes are used on both arms.
5. HOOK SCREEN ONTO RAILS
Using item 6, hook the screen onto both mounting rails (item 4).
Note: This procedure may require two people.
6. LEVEL SCREEN & SECURE MOUNT
i. Optional: Ensure the screen is level using the height adjustment screws on top of item 6.
ii. Secure mount by tightening the safety screws on the bottom item 6.
iii. Tidy any screen cables to the mount using item 7.
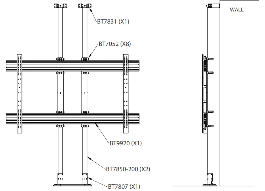
alternative pole mounted INSTALLATIONS
FLOOR-TO-CEILING 
Additional M8 x 12mm CSK screws & M8 sliding nuts (BT6183) required for installation
FLOOR-TO-WALL
Additional M8 x 12mm CSK screws & M8 sliding nuts (BT6183) required for installation
CONTACT: [email protected]
©2022 B-Tech International Design and Manufacturing Ltd. All rights reserved.
B-Tech AV Mounts is a division of B-Tech International Design and Manufacturing Ltd.
B-Tech AV Mounts and the B-Tech logo are registered trademarks.
All other brands and product names are trademarks of their respective owners.
Photographs are for illustrative purposes only. E&OE.
AMA-BT9920-V1-0222-BTECH MADE IN VIETNAM
https://www.btechavmounts.com/bt9920
For More Information Visit www.btechavmounts.com
















