evonicfires E810 DS Double Sided Evoflame and E-Smart Instruction Manual
IMPORTANT INFORMATION AND HEALTH & SAFETY
When using electrical appliances, basic precautions should always be followed to reduce the risk of fire, electric shock, and injury to persons, including the following:
- Read all of the instructions carefully before using the appliance, only use this appliance as described in this manual. Any other use not recommended by the manufacturer may cause injury to persons, or damage to the appliance.
- Remove all packaging and dispose of it at an appropriate recycling facility.
- When transporting or storing the appliance and power lead, keep in a dry place, away from excessive vibration and store so as to avoid damage.
- This fireplace is hot when in use. To avoid burns, do not let bare skin touch hot surfaces. The trim around the heater outlet becomes hot during heater operation. DANGER: High temperatures may be generated under certain abnormal conditions.
- Do not install this appliance immediately in front of a fixed socket outlet.
- Do not install this appliance in the immediate surroundings of a bath, shower, swimming pool or any other area where the appliance could come into contact with water or humidity, e.g. a bathroom.
- Do not use in areas where gasoline, paint, or any flammable liquids are used or stored.
- This appliance is only suitable for indoor use, do not use outdoors.
- Do not cover the appliance, or let the air inlet/outlet to be obstructed in any way as it may overheat.
- Keep the power lead away from hot surfaces and the heater outlet. Do not route the power lead in front of the appliance, or under any carpets or rugs. Do not allow the power lead to be coiled up once installed, as this can cause overheating.
- A maintenance hatch must be installed into the surrounding installation to allow future access.
- Always use a certified electrician should new circuits or outlets be required. And always use properly grounded, fused and polarised outlets.
- Where the power lead passes through any masonry wall, stone surround etc. ensure that suitable rubber bushes are fitted at any possible wear points.
- If the power lead is damaged do not use the appliance until it has been replaced.
- Do not use any external switching device, timers, or extension leads. Do not connect the appliance to a circuit that is frequently switched on and off by the utility.
- In the event of a malfunction, switch off the appliance, and disconnect it from the mains power supply. Have the appliance inspected by a certified electrician before reusing.
- Do not use the appliance if it is damaged. In the event of any damage to the appliance, please contact the retailer from whom the appliance was purchased.
- Any repairs must only be performed by a certified electrician.
- Extreme caution is necessary when any heater is used by, located near children or people of reduced mobility, and whenever the unit is left operating and unattended.
- Young children should be supervised to ensure that they do not play with the appliance.
- Disconnect from the power supply before performing any cleaning, maintenance or relocation of the unit. Do not use steam cleaners, or aerosols near the appliance.
- Do not burn wood or anything else in this appliance.
- Do not strike the glass. The glass used is toughened safety glass, if broken it will shatter into small chunks which are less likely to cause injury.
- Do not drill or screw any new holes into the appliance.
COMPONENTS FOR EVOFLAME
| Model | Log Sets & Quantity | Chippings | Black Vermiculite | Suction Lifter | Remote Control | Electrical Lead | E-Series Instruction Manual |
| Woodland or Silver Birch | |||||||
| E810DS | 4 x small | 4 x | 4 x | 1 x | 1 x | 1 x | 1 x |
| E1030DS | 4 x large | 4 x | 4 x | 1 x | 1 x | 1 x | 1 x |
COMPONENTS FOR E-SMART
| Model | Log Sets & Quantity | Glass Stones Clear & Amber | Black Vermiculite | Suction Lifter | Remote Control | Electrical Lead | E-Series Instruction Manual |
| Woodland or Silver Birch | |||||||
| Lindstrom DS I | 4 x large | 4 x Clear 4 x Amber | 5 x | ‘I x | 1 x | ‘I x | 1 x |
| Stora DS | 4 x small | 2 x Clear 2 x Amber | 4 x | ‘I x | 1 x | ‘I x | 1 x |
INSTALLATION
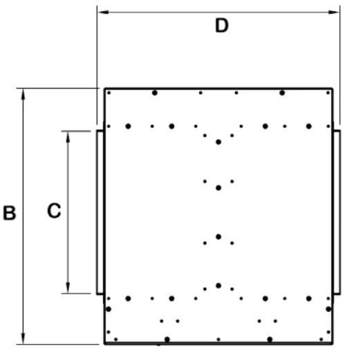
MODEL DIMENSIONS
The model shown in these drawings is an E1030DS, however the same processes apply to all DS appliances.
Scan the QR code for more detailed specification drawings.



| Model | Width | Height | Depth | |
| Overall unit (A) | Overall unit (B) | Openings (C) | Overall unit (D) | |
| E810 DS | 864mm | 1208mm | 1002mm | 535mm |
| E1030 DS | 1056mm | 558mm | 355mm | 530mm |
| Lindstrom DS | 1056mm | 558mm | 355mm | 530mm |
| Stora DS | 864mm | 1208mm | 1002mm | 535mm |
INSTALLATION REQUIREMENTS
Before installing the appliance please read and take into account the following important requirements;
- Consult a qualified professional to check the structure of the installation site.
- The appliance must not be installed anywhere that it may come into contact with water, i.e. a bathroom.
- Do not use silicones or adhesives to seal in the appliance, and do not apply wet plaster directly to the appliance.

CHECKS BEFORE INSTALLATION
We recommend turning on the appliance before installation, connect the appliance to a power source using the provided electrical lead, and depress the right side of the rocker switch.
Remove the electrical lead from the wall and continue with the installation.
TOOLS REQUIRED
- Tape Measure
- Pencil
- Spirit Level
- Screwdriver
- PZ2 Screw Bit
INSTALLATION STEPS
- Remove the two bottom mounted transit brackets from both sides. You will not need these for the installation.

- Determine the finished height and position that you want the appliance to be located. Build your base support taking into consideration the 50mm ventilation gap under the appliance. Then place the appliance onto the support and check that it is well supported.

- Your plasterboard can now line up with the plaster kits on the edge of the appliance.

- Your installation is now complete and you can set up your logs.
LOG LAYOUTS
When you have your appliance installed you can set up your log sets. If your model comes with Chippings, Glass Stones and/or Vermiculite lay this on the fuel bed first, then continue with laying out your logs. The following images show an example of how you could lay them out.

INSTALLING / REMOVING THE FRONT GLASS
- Unscrew and remove the glass retainer panel.

- Apply the Suction Lifter to the glass and place the bottom edge in first, then angle the top edge into the appliance. Then replace the top retainer panel.

Warning
The Suction Lifter is provided to assist in moving the glass NEVER as the sole support of the glass.
Always support the glass throughout the entire process until the glass is fully fitted. The glass is toughened safety glass and if broken will shatter into many small chunks.
TROUBLESHOOTING
Evoflame Only – LED Strip Replacement
Scan the QR code to be taken to a video in our maintenance series.
Please note; this video shows an old method of removing the front glass panel. Refer to page 13 for the new method.
Fan Re-setting & Replacement
Scan the QR code to be taken to a video in our maintenance series.
Please note; this video shows an old method of removing the front glass panel. Refer to page 13 for the new method.
Heater Access & Replacement
Scan the QR code to be taken to a video in our maintenance series.
Please note; this video shows an old method of removing the front glass panel. Refer to page 13 for the new method.
E-Smart Only – E-Smart LED Replacement
Scan the QR code to be taken to a video in our maintenance series.
Please note; this video shows an old method of removing the front glass panel. Refer to page 13 for the new method.
REPORT A FAULT
If you have any difficulties or problems with your appliance then please get in touch so that we can assist you. Please scan the QR code to be taken to our websites Report a Fault page, we will then be in touch with you shortly.
WARRANTY & REGISTRATION
WARRANTY
If this appliance should prove to be defective due to faulty design, materials or workmanship within 12 months of purchase, the product will be repaired free of charge, subject to the following conditions:
The electric fire shall have been purchased and used solely within the UK and Ireland for domestic purposes and in accordance with the Users operating instructions.
It is the purchasers responsibility to prove that the unit is under warranty, e.g. receipt of purchase.
All warranties, will be invalidated if unauthorised repairs or modifications are made to the electric fire, or in case of accident, misuse or damage caused by improper installation, or to damage occurring during transit to or from the repairer and altered or missing serial numbers.
Any parts, which have been replaced under this warranty, shall become our property.
The company shall not be liable for any consequential loss or damage what so ever, arising from or in connection with this electric fire.
This Warranty does not apply to Heating elements, Bulbs or fuses. ‘No fault found’, service calls and installation errors are not covered under the manufacturers warranty and will result in a charge being made for the Call-Out by our appointed service engineer.
This warranty is in addition to and does not affect the purchasers statutory rights of consumers.
REGISTER YOUR FIRE
To register a product please visit: www.evonicfires.co.uk and complete the fields required under the Register a Product Section. By registering your appliance, an extra 12 months will be added to your warranty.
EU DIRECTIVES
All Evonic Fires products meet the requirements of the EC Directives.
These directives have been met by compliance with the following standards:
EU 2011-65/EU 2015/863 Restriction of Hazardous Substances.
References to the relevant designated standards used:
EN 55014-1:2006 + A1:2009 + A2:2011 Electromagnetic Compatibility.
EN 55014-2:2015 Electromagnetic Compatibility.
EN 61000-3-2:2014 Electromagnetic Compatibility (EMC). Limits. Limits for
Harmonic Current Emissions.
EN 61000-3-3:2013 Electromagnetic Compatibility (EMC). Limits. Limitation of
Voltage Changes, Voltage Fluctuations and Flicker.
EN 60335-1:2012 + A11:2014 Household and similar electrical appliances – Safety
EN 60335-2-30:2009+A11:2012 Household and similar electrical appliances. Safety.
Particular requirements for room heaters
UKCA STANDARDS
All Evonic Fires products are in conformity with the relevant UK Statutory Instruments (and their amendments).
2016 No. 1101 The Electrical Equipment (Safety) Regulations 2016
2016 No. 1091 The Electromagnetic Compatibility Regulations 2016
2012 No. 3032 The Restriction Of Use Of Certain Hazardous Substances In
Electrical And Electronic Equipment Regulations 2012
Contact US
CK Fires Ltd / Evonic Fires 1, Evonic House, Clifford Park, Clifford Lane, Stratford-on-Avon, CV37 8HW
Tel: +44 (0)1789 263868
Fax: +44 (0)1789 293080
Email: [email protected]
www.evonicfires.co.uk
Follow us on:
Instagram | Facebook | Twitter | LinkedIn
@evonicfires


























