real flame EVO750TRIM-AU Electric Fire Instruction Manual
GLASS DIMENSIONS

| EVOGLASS750-AU | EVOGLASS900-AU | EVOGLASS900P-AU | |
| A | 81 | 157 | 157 |
| B | 561 | 561 | 675 |
| C | 740 | 891 | 891 |
| D | 578 | 578 | 578 |
FASTENERS INCLUDED




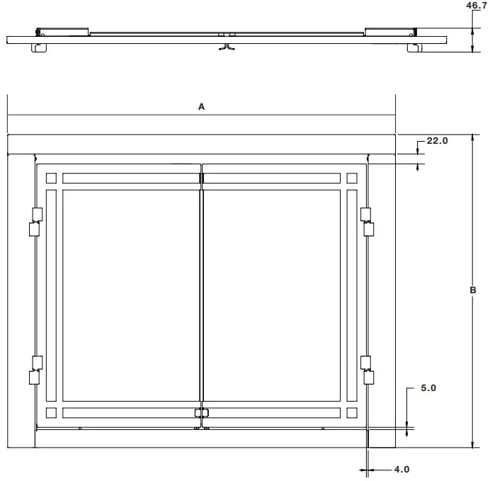
DOOR DIMENSIONS

| EVODOOR750-AU | EVODOOR900-AU | EVODOOR900P-AU | |
| A | 859 | 1011 | 1011 |
| B | 694 | 694 | 808 |
DOOR ASSEMBLY
- Ensure magnets are in approximate locations before installation.




Install one door at a time
Use built in handles to open and close doors.

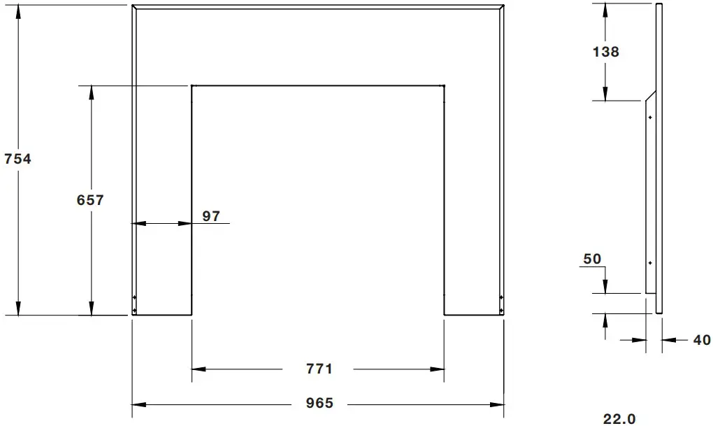
TRIM DIMENSIONS
EVO750TRIM-AU
TRIM ASSEMBLY
- The trim is pre-assembled from the factory with an optional bottom trim. If the firebox will be installed in an elevated location, the bottom trim will be required. If the firebox will be installed on the floor, remove the bottom trim. To remove the bottom trim remove eight (8) screws as shown.

- Prior to installing the trim, remove inner decorative panels from the fireplace by tilting the top inwards, then pull up and out.

- Installation Option – If installing into an existing opening, screw the fireplace to the trim, using the four (4) provided screws. Push the trim and fireplace into the final installed location. Go to Step 4.

Installation Option – If installing into a new construction, screw the fireplace and trim to the wall. Using a ¼” or 6mm drill bit, drill out the existing holes in the trim. Slide the trim over the fireplace and using a suitable screw attach to framing. Go to Step 4.
- Re-install the inner decorative panel by sliding the bottom in first, then tilt to top in place.

WARRANTY
TWO YEAR LIMITED WARRANTY
Products to which this limited warranty applies
This limited warranty applies to your newly purchased Real Flame EVO Firebox Accessories. This limited warranty applies only to purchases made in any State and Territory of Australia and New Zealand. This limited warranty applies to the original purchaser of the product only and is not transferable.
What this limited warranty covers and for how long
Products covered by this limited warranty have been tested and inspected prior to shipment and, subject to the provisions of this warranty, Glen Dimplex warrants such products to be free from defects in material and workmanship for a period of 2 years from the date of the first purchase of this product. The limited 2 year warranty period also applies to any implied warranties that may exist under applicable law. Some jurisdictions do not allow limitations on how long an implied warranty lasts, so the above limitation may not apply to the purchaser.
What this limited warranty does not cover
This limited warranty does not apply to products that have been repaired (except by Glen Dimplex or its authorised service representatives) or otherwise altered. This limited warranty does further not apply to defects resulting from misuse, abuse, accident, neglect, incorrect installation, improper maintenance or handling, or operation with an incorrect power source.
What you must do to get service under this limited warranty
Defects must be brought to the attention of Technical Service at 1300 554 155 for Australia and 09 274 8265 for New Zealand. Please have proof of purchase, catalogue/ model and serial numbers available when calling. Limited warranty service requires a proof of purchase of the product.
What Glen Dimplex will do in the event of a defect
In the event a product or part covered by this limited warranty is proven to be defective in material or workmanship during the 2 years limited warranty period you have the following rights:
- Glen Dimplex will in its sole discretion either repair or replace such defective product or part without charge. If Glen Dimplex is unable to repair or replace such product or part, or if repair or replacement is not commercially practicable or cannot be timely made, Glen Dimplex may, in lieu of repair or replacement, choose to refund the purchase price for such product or part.
- Limited warranty service will be performed solely by dealers or service agents of Glen Dimplex authorised to provide limited warranty services.
- The purchaser is responsible for removal and transportation of such product or part (and any repaired or replacement product or part) to and from the authorised dealer’s or service agent’s place of business.
- This limited warranty does not entitle the purchaser to on-site or in-home services. On-site or inhome services may be performed at the purchaser’s request and expense at Glen Dimplex’s thencurrent rates for such services.
- Glen Dimplex will not be responsible for, and the limited warranty services shall not include, any expense incurred for installation or removal of the product or part (or any replacement product or part) or any labour or transportation costs. Such costs shall be the purchaser’s responsibility.
What Glen Dimplex and its dealers and service agents are also not responsible for:
IN NO EVENT WILL GLEN DIMPLEX, OR ITS DIRECTORS, OFFICERS, OR AGENTS, BE LIABLE TO THE PURCHASER OR ANY THIRD PARTY, WHETHER IN CONTRACT, IN TORT, OR ON ANY OTHER BASIS, FOR ANY INDIRECT, SPECIAL, PUNITIVE, EXEMPLARY, CONSEQUENTIAL, OR INCIDENTAL LOSS, COST, OR DAMAGE ARISING OUT OF OR IN CONNECTION WITH THE SALE, MAINTENANCE, USE,OR INABILITY TO USE THE PRODUCT, EVEN IF GLEN DIMPLEX OR ITS DIRECTORS, OFFICERS, OR AGENTS HAVE BEEN ADVISED OF THE POSSIBILITY OF SUCH LOSSES, COSTS OR DAMAGES, OR IF SUCH LOSSES, COSTS, OR DAMAGES ARE FORESEEABLE. IN NO EVENT WILL GLEN DIMPLEX, OR ITS OFFICERS, DIRECTORS, OR AGENTS BE LIABLE FOR ANY DIRECT LOSSES, COSTS, OR DAMAGES THAT EXCEED THE PURCHASE PRICE OF THE PRODUCT. SOME JURISDICTIONS DO NOT ALLOW THE EXCLUSION OR LIMITATION OF INCIDENTAL OR CONSEQUENTIAL DAMAGES, SO THE ABOVE LIMITATION OR EXCLUSION MAY NOT APPLY TO THE PURCHASER.





















