Miele PWM920 EL-RH Commercial Washing Machine

Product Information
The PWM 920 EL/RH Commercial Washing Machine is a high-quality washing machine designed for commercial use. It is manufactured by Miele and complies with all relevant regulations and standards. The washing machine must be installed by Miele Service or by properly trained staff of an authorized dealer.
The washing machine should only be operated in a well-ventilated room that is frost-free and does not pose a risk of explosion. It can be installed on a concrete base if desired, but the stability and load-bearing capacity of the base must be assessed according to the provided technical data.
Installation and Planning Notes
Installation Requirements
- The washing machine must be installed by Miele Service or by properly trained staff of an authorized dealer.
- This washing machine must be installed in accordance with all rel-evant regulations and standards. Local energy supplier regulations must also be observed.
- This washing machine must only be operated in a room that has sufficient ventilation and which is frost-free.
- The washing machine should not be installed or operated in any area where there is a risk of explosion.
General operating conditions
This washing machine is intended only for use in a commercial envi-ronment and must only be operated indoors.
- Ambient temperature: 32-105°F (0-40°C)
- Relative humidity: non-condensing
- Maximum height above sea level of location site: 6500 ft (2000 m)
Depending on the nature of the installation site, sound emissions and vibration may occur.
Tip: Have the installation site inspected and seek the advice of a spe-cialist in instances where increased noise may cause a nuisance.
Installation
The washing machine must be set up on a level and firm surface with the minimum stated load bearing capacity (see “Technical data”).
The floor load created by the washing machine is concentrated and transferred to the installation footprint via the machine feet.
Tip: A concrete floor is the most suitable installation surface for this appliance. It is far less prone to vibration during the spin cycle than wooden floorboards or a carpeted surface.
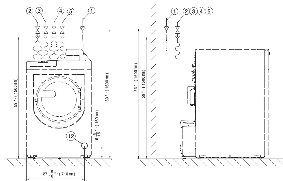
The washing machine requires a gap of at least 2″ (50 mm) at each side to allow for movement during operation. To ensure suitable ac-cess for further maintenance and service work, please ensure a mini-mum distance of 16″ (400 mm) is maintained between the back of the machine and the wall.
Machines with an integrated sampling valve must have a gap of at least 8″ (200 mm) on the left hand side.
Installation on Concrete Base
- The washing machine can be installed on a concrete base if desired.
- The concrete materials and the durability of the concrete base must be assessed in accordance with the floor load bearing capacity given in “Technical data”.
- To guarantee the stability of the washing machine, make sure that the concrete base is sufficiently stable on the floor and that it is ca-pable of withstanding any burden or force from the washing ma-chine.
- The washing machine must be secured to the concrete base using the fixtures and fastenings supplied.
- The washing machine must be secured to the base immediately after installation!
- There is a risk of the washing machine falling off a raised base dur-ing a spin cycle if it is not secured.
Leveling the Machine:
- Align the washing machine vertically and horizontally using the adjustable feet and a level.
- The washing machine must stand perfectly level on all four feet to ensure safe and proper operation. Otherwise water and energy con-sumption will be increased and the machine could move.
- After aligning the machine tighten the lock nuts by turning them in a counterclockwise direction with a wrench. This will prevent the feet from moving.

Securing the Machine:
- Secure the feet of the washing machine to the concrete base using the provided fixtures and fastenings.
- If installing on a different type of flooring, purchase suitable fitting materials separately.
- Fittings supplied are for installation on a concrete floor. For other types of flooring please purchase suitable fitting materials sepa-rately.
Electrical Connection:
- The electrical connection must only be carried out by a qualified electrician who must ensure that all electrical work is carried out in accordance with applicable electrical regulations and standards.
- The washing machine must be connected to an electrical supply that complies with local and national regulations. Please also observe your insurance and energy supplier’s regulations as well as any health and safety at work regulations.
- The required voltage, power consumption and specifications for external fusing are quoted on the data plate on the washing machine. Ensure that the supply voltage complies with the voltage quoted on the data plate before connecting the washing machine to the power supply.
- Connection to a supply voltage other than the one quoted on the data plate can lead to functional faults and damage the washing machine.
If more than one voltage is quoted on the data plate, the washing machine can be converted for connection to the voltages stated. - Conversion to a different voltage must only be carried out by a
Miele Service engineer or by an authorized Service Dealer. The wiring instructions given on the wiring diagram must be followed.
The washing machine can either be hard-wired or connected via a plug and socket that complies with national codes and regulations. For a hard-wired connection an all-pole isolation device must be in-stalled on site. - For hard-wired machines connection should be made via a suitable switch with all-pole isolation which, when in the off position, ensures a 1/8″ (3 mm) gap between all open contacts. These include circuit breakers, fuses and relays.
If the power supply cannot be permanently disconnected, the isolator switch (including plug and socket) must be safeguarded against be-ing switched on either unintentionally or without authorization.
Tip: We recommend connection to the power supply via a suitable plug and socket which must be easily accessible for servicing and maintenance work after the machine has been installed. - If it is necessary to install a residual current device (RCD) in accordance with local regulations, a type B residual current device (sensi-tive to universal current) must be used.
An existing type A residual current device (RCD) must be exchanged for a type B RCD. - If necessary, equipotential bonding with good galvanic contact must be guaranteed in compliance with all applicable local and na-tional installation specifications.
Equipotential bonding must have an ground current rating >10 mA.
Accessories for equipotential bonding are not supplied and need to be ordered separately.
Water Connection:
According to national regulations for drinking water quality, with ef-fect from March 21, 2021, a non-return valve to prevent backsiphon-ing must be installed between the faucet and the water inlet hose during commissioning on all machines in Germany. The non-return valve prevents water from the water inlet hose from flowing back into the on-site drinking water supply.
Non-return valves are supplied.
The flow pressure must amount to a minimum of 100 kPa (14.5 psi) and must not exceed an overpressure of 1,000 kPa (145 psi). If the flow pressure is higher than 1,000 kPa (145 psi), a pressure reducing valve must be used.
The machine must be connected to the water connection using the water inlet hoses provided.
The connection points are subject to water connection pres-sure.
Turn on the water supplies slowly and check for leaks. Correct the position of the seal and screw thread if appropriate.
Cold-water connection
For the cold-water connection one shut-off valve each with a ¾” external thread is required. A connector (Y-piece) can be used if required to connect 2 water inlet hoses with a ¾” screw thread to a single faucet with a 1″ male thread.
The water inlet hose for cold water (blue stripes) is not intended to be used with a hot-water connection.
Hot water connection
To minimize energy consumption during operation with hot water, the washing machine should be connected to a suitable hot water ring circuit if present.
So-called “transmission lines” (single lines to hot water generators) can result in cooling down of the water remaining in the pipes if not in constant use. More electrical energy would be needed in order to heat the suds.
Use the water inlet hose supplied (red stripes) for the hot water con-nection.
The temperature of the water intake must not exceed 158°F (70°C) on machines with electric heating (EL).
The temperature of the water intake must not exceed 194°F (90°C) on machines without heating (OH).
The machine must be connected to the water supply using the inlet hoses provided.
If there is no hot water supply at the installation location, the inlet hose for hot water must also be connected to the cold water supply. An additional Y-piece is required in this case. Cold water consump-tion increases accordingly to account for the missing hot water in-take.
For functional and technical reasons it is not possible to operate the machine exclusively with a hot water connection.
Even if a hot water connection is present, the washing machine must be connected to a cold water intake.
Drain valve
A motorized dump valve is used to drain the machine. An HT DN 70 angle connector can be used for draining the machine directly into the waste water system (without a siphon) or into an on-site gully (with odor trap).
- A vented drainage system is vital for unimpeded drainage.
- If several machines are connected to a single drain pipe, this should be sufficiently large to allow all machines to drain simultane-ously.
- The appropriate Miele installation kit mat. no.: 05 238 090 is avail-able from Miele or Miele Technical Service for venting an HT DN 70 pipe.
- If the slope for drainage is extremely steep, the piping must be vented to prevent formation of a vacuum in the machine’s drain system.
Slow or obstructed drainage or a backup of water in the drum as a re-sult of undersized pipework can result in faults occurring during pro-gram sequences, which will result in error messages appearing in the display.
Risk of burning due to hot suds. Outflowing suds can be as hot as 203°F (95°C). Avoid direct contact.
Dispenser pump connections
Up to 12 dispenser pumps can be connected to the washing machine.
Dispenser pump connections on the back of the machine
Connections 1 and 2 are provided for viscous agents and can also be used for high-pressure dispensing systems with water injection. The dispensing systems must be fitted with a separate drinking water safety feature in accordance with EN 61770 and EN 1717. The maxi-mum flow rate is 1500 ml/min with a maximum flow pressure 43 psi (300 kPa).
These connectors are sealed and need to be drilled open using an 8 mm drill bit before connecting.
Connections 3 to 12 are provided for liquid detergent. High-pressure dispensing systems with water injection must not be connected to these connections. These connectors are sealed and must be cut to the diameter of the hose with a small saw prior to being made.
If opened connectors are no longer required, they must be resealed using a suitable sealant (e.g., silicone).
Connection terminals for five time-controlled dispenser pumps, which can be operated without a multifunction module, are located behind the cover adjacent to the electrical connection. Calibration of the dispenser pumps and regulation of dispensing quantities is carried out semi-automatically for washing machines fitted with an optional multifunction module. Information regarding settings is given in the operating instructions.
A flowmeter or flow sensors can be connected for precise monitoring of the dispensing quantity.
Connections for level monitoring are available for every agent dispensed.
Optional accessories
Only use genuine Miele parts and accessories with this machine.
Using spare parts or accessories from other manufacturers will void the warranty, and Miele cannot accept liability.
Payment system kit (BSK)
The washing machine can be equipped with a payment system (e.g., for self-service operations) using the optional BSK payment system kit. This must be connected and programmed by Miele Technical Ser-vice. Payment systems with mechanical or electronic coin validator are available from Miele as optional accessories for individual target groups.
The programming required for connecting a payment system must be carried out by Miele Technical Service or an authorized
Miele dealer only. An external power supply is not required for a pay-ment system.
Peak-load negoti-ation kit (BSS)
The washing machine can be connected to an energy management system via a peak-load negotiation kit which is available as an op-tional accessory.
Peak-load negotiation monitors the energy consumption of a system and deactivates individual pieces of equipment temporarily in order to ensure that certain total load limits are not exceeded. Monitoring is externally controlled.
The kit provides three signal contacts and a neutral conductor via a terminal block. The terminal block is marked with “a”, “b”, “c”, and “d”:
- Output signal, start of machine operation
- Output signal, machine heating request
- Peak-load input signal, machine heating deactivated
- Neutral conductor

When the peak-load function is activated the current program is stopped and a message appears in the display on the washing ma-chine. The program is resumed automatically when the peak-load system reactivates the heating.
XKM RS232 com-munication module
The serial interface RS-232 can be retrofitted to the washing machine via an XKM RS 232 (optional accessory available from Miele). This communication module must only be used with Miele Profes-sional machines that are fitted with an appropriate slot for the module.
The data interface provided via communication module
XKM RS232 complies with SELV (Safety Extra Low Voltage) in ac-cordance with EN 60950.
Machines connected to this interface must also be SELV compliant.
Communication module XKM RS 232 is supplied with a connection cable and a D-sub-connector.
Hard-water kit (APWM062)
The hard-water connection on the washing machine can be retrofitted with the optional hard-water kit (APWM062).
The additional water connection allows hard water to be used and the program runtime will therefore be reduced. In addition, hard wa-ter is particularly suitable for the final rinse cycles.
Plinth (UO/UG)
The machine can be installed on a machine base (open or box base, available as an optional Miele accessory).
Elevating the washing machine gives a better ergonomic working position when loading or unloading. At the same time it facilitates the installation of a drain connection.
The washing machine must be secured to the base immediately after installation! The base must be secured to the floor!
There is a risk of the washing machine falling off a raised base dur-ing a spin cycle if it is not secured.
Vapor and suds venting kit (APWM 063)
If excessive suds form, suds may escape from the vapor vent. The optional vapor and suds venting kit (BWS) can be used to remove the suds.
Dimensions
Standard

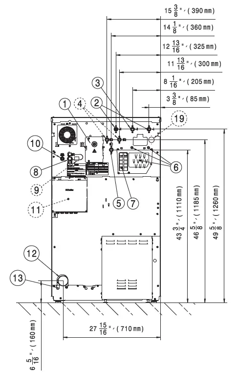
Installation
- Electrical connection
- Cold-water connection
- Hot-water connection
- Hard-water connection (cold) (optional)
- Cold-water connection for liquid dispensing
- Drain valve

- Electrical connection
- Cold-water connection
- Hot-water connection
- Hard-water connection (cold) (optional)
- Cold-water connection for liquid dispensing
- Connection for peak-load negotiation
- Overflow
- Connection for Connector Box
- Connection for Connector Kit (optional)
- Connection LAN
- Connector Box (optional)
- Drain valve
- Connection for equipotential bonding
- Connection for water recovery (optional)

Floor anchoring
- Standard

- Multiple side-by-side installation

Technical data
Electrical version and electrical data
- Connection voltage 208/240 V 3 Ph
- Frequency 60 Hz
- Total amps. 3 X 49.2 A
- Max. fuse (time delay fuse) 3 X 49.2 A
- Mimimum circuit ampacity 3 X 50 A
Water connection
Models with detergent drawer (DD)
- Permitted flow pressure 145 psi (1000 kPa)
- Maximum water intake rate 47.5 l/min
- Cold-water connection (to be provided on site, male thread according to DIN 44991, flat seal) 3 x ½” with ¾” thread connection
- Optional cold-water connection for liquid dispensing (to be provided on site, male thread according to DIN 44991, flat seal)
- Optional hard-water connection, cold (on-site external thread according to DIN 44991, flat seal) 2 x ½” with ¾” thread connection (Optional)
- Hot-water connection (≤ 158°F (70°C)) (on-site external thread according to DIN 44991, flat seal) 1 x ½” with ¾” thread connection
- Length of water-inlet hoses supplied 5′ 1″ (1.55 m)
Drainage
- Maximum drain water temperature 203°F (95°C)
- Waste water connection (on machine) Plastic pipe HT DN 70
- Drain (on site) Connection DN 70
- Maximum drainage rate 200 l/min
Connection for equipotential bonding
- Male thread M10
- Toothed washers M10
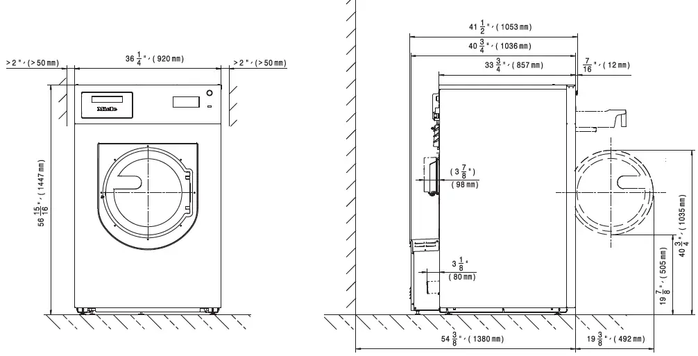
Installation dimensions
- Casing width (without add-on components) 36 1/4″ (920 mm)
- Casing height (without add-on components) 56 3/8″ (1432 mm)
- Casing depth (without add-on components) 33 3/4″ (857 mm)
- Overall machine width 36 3/8″ (924 mm
- Overall machine width 36 3/8″ (924 mm
- Overall machine height 56 15/16″ (1447 mm)
- Overall machine depth 41 1/2″ (1053 mm)
- Minimum width of transport opening 40 3/16″ (1020 mm)
- Minimum distance between wall and front of machine 54 3/8″ (1380 mm)
- Door-opening diameter 16 5/16″ (415 mm)
- Door-opening angle 180°
Anchoring
Standard
- Required anchor points 2
- DIN 571 wood screw (diameter x length) 1/2″ x 3 1/2″ (12 mm x 90 mm)
- Rawl plugs (diameter x length) 5/8″ x 3 1/8″ (16 mm x 80 mm)
With plinth (UO/UG)
- Required anchor points 4
- DIN 571 wood screw (diameter x length) 1/2″ x 3 1/2″ (12 mm x 90 mm)
- Rawl plugs (diameter x length) 5/8″ x 3 1/8″ (16 mm x 80 mm)
Concrete plinth
- Required anchor points 2
- DIN 571 wood screw (diameter x length) 1/2″ x 3 1/2″ (12 mm x 90 mm)
- Rawl plugs (diameter x length) 5/8″ x 3 1/8″ (16 mm x 80 mm)
Transport data, weight and floor load
Models with detergent drawer (DD)
- Packaging width 43″ (1090 mm)
- Packaging height 62 3/8″ (1585 mm)
- Packaging depth 44 1/2″ (1130 mm)
- Gross volume 1952 l
- Gross weight* 937 – 1012 lb (425 – 459 kg)
- Net weight* 886.3 – 959 lb (402 – 435 kg)
- Maximum floor load during operation 5765 N
*depending on equipment configuration
Emissions data
- Workplace-related sound pressure level, washing 51 dB (A)
- Sound power level, washing 60.0 dB (A)
- Workplace related sound pressure level, spinning 65 dB (A)
- Sound power level, spinning 77.0 dB (A)
- Average heat dissipation rate to installation site 6.48 MJ/h
For more detailed installation and usage instructions, refer to the complete user manual.
Please have the model and serial number of your machine available when contacting Technical Service.
U.S.A.
Miele, Inc.
National Headquarters
9 Independence Way Princeton, NJ 08540
Phone: 800-991-9380
www.mieleusa.com/professional
[email protected]
Technical Service & Support Phone: 800-991-9380 [email protected]

























