Miele PWM 916 EL-RH Plan Commercial Washing Machine Instruction

Installation notes
Explanation of the safety instructions and warnings on the machine
| Read the operating instructions | |
![]() | Read all the instructions, e.g. the installation instruc- tions |
| Warning, hot surfaces | |
![]() | Warning, voltage up to 1000 volts |
![]() | Earthing |
![]() | Equipotential bonding |
Installation requirements
- The washing machine must be installed and commissioned by a Miele Service technician or by an authorised dealer.
- The washing machine must be installed in accordance with applicable regulations and standards. Local energy supplier and water authority regulations must also be observed.
- This washing machine must only be operated in a room that has sufficient ventilation and which is frost-free.
- This machine should not be installed or operated in any area where there is a risk of explosion
General operating conditions
This washing machine is intended only for use in a commercial environment and must only be operated indoors.
- Ambient temperature: 0-40 °C
- Relative humidity: non-condensing
- Maximum height above sea level of location site: 2000 m
Depending on the nature of the installation site, sound emissions and vibration may occur.
Tip: Have the installation site inspected and seek the advice of a professional in instances where increased noise may cause a nuisance.
Installation
Transport the washing machine to its installation site using a suitable pallet truck and remove the transport packaging.
The washing machine must be set up on a completely level, horizontal and firm surface with the minimum stated load bearing capacity (see “Technical data”).
Tip: A concrete floor is the most suitable installation surface. It is far less prone to vibration during the spin cycle than wooden floorboards or a carpeted surface. The floor load created by the washing machine is the load exerted by the area of the machine in contact with and transferred to the installation surface. The washing machine requires a gap of at least 50 mm on each side to allow for movement during operation. Please ensure a minimum distance of 400 mm is maintained between the rear of the appliance and the rear wall. The washing machine must not be installed on a carpeted floor. The feet of the washing machine must be secured to the fastening points on the floor using the fittings supplied.The fittings supplied are for bolting the machine to a concrete floor. If other floor types are present at the installation site, the fastening material must be ordered by the customer.
Installation on concrete plinth
The washing machine can be installed on a concrete plinth if desired. The concrete materials and the durability of the concrete plinth must be assessed in accordance with the floor load bearing capacity given in “Technical data
- To guarantee the stability of the washing machine, make sure that the concrete plinth is sufficiently stable on the floor and that it is capable of withstanding any burden or force from the washing machine.
- The washing machine must be secured to the concrete plinth using the fixtures and fastenings supplied.
The washing machine must be secured to the plinth immediately after installation! There is a risk of the washing machine falling off a raised plinth during a spin cycle if it is not secured.
Levelling the machine
- Align the washing machine vertically and horizontally using the adjustable feet and a spirit level.
The washing machine must stand evenly and horizontally on all four feet to ensure trouble-free and energy-efficient operation. Otherwise the water and energy consumption increases and the washing machine might move around. After aligning the machine, tighten the lock nuts by turning them in an counterclockwise direction with a wrench. This will prevent the feet from adjusting themselves.
Securing the machine
The feet of the washing machine must be secured to the concrete plinth using the fixtures and fastenings supplied. Fittings supplied are for installation on a concrete floor. For other types of flooring, please purchase suitable fastening materials separately.
Electrical connection
- The electrical connection must only be carried out by a qualified electrician who must ensure that all electrical work is carried out in accordance with applicable electrical regulations and standards (BS 7671 in the UK).
- This washing machine must be connected to an electrical mains supply that complies with local and national regulations. Please also observe your insurance and energy supplier’s regulations as well as any health and safety at work regulations.
- The required voltage, connected load and fusing rating can be found on the data plate on the washing machine. Before connecting the machine to the power supply, please ensure that the mains supply voltage complies with the values given on the data plate. Connection to a supply voltage other than the one quoted on the data plate can lead to functional faults and damage the washing machine! If more than one voltage is quoted on the data plate, the washing machine can be converted for connection to the voltages stated.
- Conversion to a different voltage must only be carried out by a Miele Service engineer or by an authorised Service Partner. The wiring instructions given on the wiring diagram must be followed.
Tip: We recommend connection to the power supply via a suitably rated plug and socket which must be easily accessible for servicing and maintenance work after the machine has been installed. An electrical safety test must be carried out after installation and after any service work. The machine should be connected with a suitably rated plug and socket in accordance with IEC 60309-1 or hard wired. For a hard wired connection an all-pole isolation device must be installed. For hard-wired machines connection should be made via a suitable mains switch with all-pole isolation which, when in the off position, ensures a 3 mm gap between all open contacts. These include circuit breakers, fuses and relays (IEC/EN 60947). If the mains supply cannot be permanently disconnected, the isolator switch (including plug and socket) must be safeguarded against being switched on either unintentionally or without authorisation.
- If it is necessary to install a residual current device (RCD) in accordance with local regulations, a residual current device type B (sensitive to universal current) must be used. An existing type A residual current device (RCD) must be exchanged for a type B RCD.
- If necessary, equipotential bonding with good galvanic contact must be guaranteed in compliance with all applicable local and national installation specifications.
Equipotential bonding must have an earth current rating > 10 mA Accessories for equipotential bonding are not supplied and need to be ordered separately.
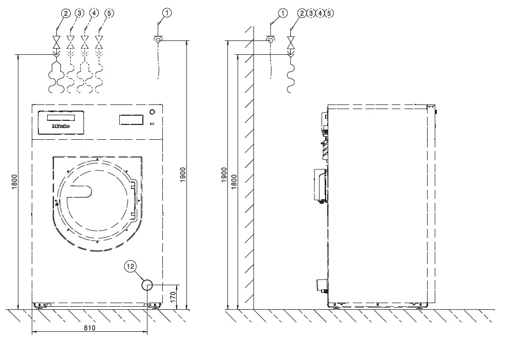
Water connection
For compliance to Regulation 4 of the water regulations guide please fit the supplied double check valves to the on-site water supplies for each inlet hose used. The non-return valve prevents water from the water inlet hose from flowing back into the on-site drinking water supply. Non-return valves are supplied. The flow pressure must amount to a minimum of 100 kPa and must not exceed 1000 kPa. If the flow pressure is higher than 1000 kPa, a pressure reducing valve must be used. The machine must be connected to the water supply using the inlet hoses provided. The connection points are subject to water supply pressure. Turn on the stopcock slowly and check for leaks. Correct the position of the seal and screw thread if appropriate.Only connect the washing machine to the water supply with the hoses supplied.
Cold water connection
For the cold water connection one stopcock each with a 3/4″ external thread is required. A connector (Y-piece) can be used if required to connect 2 water inlet hoses with a ¾” screw thread to a single stopcock with a 1″ male thread.
Hot water connection
To minimise energy consumption during operation with hot water, the washing machine should be connected to a suitable hot water ring circuit if present. So-called “transmission pipes” (single pipes to hot water generators) can result in cooling down of the water remaining in the pipes if not in constant use. More energy would then be consumed to heat the suds up again. The temperature of the water intake must not exceed 70 °C on machines with electric heating (EL). The machine must be connected to the water supply using the inlet hoses provided. If there is no hot water supply at the installation location for the washing machine, the inlet hose for hot water must also be connected to the cold water supply. A Y-piece is required in this case. The cold water consumption increases accordingly to account for the missing hot water intake.For functional and technical reasons it is not possible to operate the machine exclusively with a hot water connection. Even if a hot water connection is present, the washing machine must be connected to a cold water intake.
Drain valve
In the case of washing machines with a drain valve, a motorised valve is used to drain the machine. An HT DN 70 angle connector can be used for draining the machine directly into the waste water system (without a siphon) or into an on-site floor drain (with odour trap). Thanks to an improved closing mechanism and a larger cross-section, even the coarsest of soiling does not leave any deposits or debris behind which could result in blockages. The drain valve can also be operated manually to allow the suds container to be emptied in the event of a power outage.A vented drainage system is vital for unimpeded drainage. If several machines are connected to a single drain pipe, this should be sufficiently large to allow all machines to drain simultaneously. The appropriate Miele installation kit (mat. no.: 05 238 090) is available to order from the Miele Customer Service Department or your Miele dealer for venting an HT DN 70 pipe. If the slope for drainage is extremely steep, the piping must be vented to prevent formation of a vacuum in the machine’s drainage system. Slow or obstructed drainage or a backup of water in the drum as a result of undersized pipework can result in faults occurring during programmes, which will result in fault messages appearing in the display. Outflowing suds can be as hot as 95 °C. Danger of burning! Avoid direct contact.
Dispensing pump connections
Up to 12 dispensing pumps can be connected to the washing machine.
Dispensing pump connections on the back of the machine Connections 1 and 2 are provided for viscous agents and can also be used for high-pressure dispensing systems with water injection. The dispensing systems must be fitted with a separate drinking water safety mechanism in accordance with Regulation 4 of The Water Supply (Water Fittings) Regulations 1999 EN 61770 and EN 1717. The maximum flow rate is 1500 ml/min with a maximum flow pressure of 300 kPa. These connectors are sealed and need to be drilled open using a 8 mm drill bit before connecting.

Connections 3 to 12 are provided for liquid detergent. High-pressure dispensing systems with water injection must not be connected to these connections. The connectors are sealed and must be cut to the diameter of the hose with a small saw before they are connected. If opened connectors are no longer required, they must be resealed using a suitable sealant (e.g. silicone). External dispensing pumps are connected and calibrated via the Connector Box, which is available as an option. A flowmeter or flow sensors can also be connected for monitoring the dispensing quantity precisely. Connections for level monitoring are available for every agent dispensed.
Optional accessories
Only use genuine Miele spare parts and accessories with this machine. Using spare parts or accessories from other manufacturers will invalidate the guarantee, and Miele cannot accept liability.
Hard water kit (APWM062)
The hard water connection on the washing machine can be retrofitted with the optional hard water kit (APWM062).The additional water connection allows hard water to be used and the programme running time will therefore be reduced. In addition, hard water is particularly suitable for the final rinse cycles.
APWM 019/020 Connector Box
The Connector Box allows external hardware from Miele and other suppliers to be connected to the Miele Professional washing machine. Flowmeters for the water inlet can also be connected to the Connector Box (APWM 065). Peak load / energy management A peak-load or energy management system can be connected via the Connector Box. The peak-load negotiation monitors the energy consumption of a system and deactivates individual pieces of equipment temporarily in order to ensure that certain total load limits are not exceeded. Monitoring is externally controlled. When the peak-load function is activated, the heating is deactivated and the programme stopped. A message appears in the display to inform you of this. The programme is resumed automatically when the peak-load function finishes. Liquid dispensing connection External liquid dispensing pumps with a “container empty” indicator or flowmeter can be used to dispense liquid detergents. The dispensing pumps can only be programmed by the Miele Customer Service Department using the Miele Diagnostic Support system (MDU). It is particularly important to observe manufacturer’s instructions when using a combination of cleaning agents and special application products.Payment device The washing machine can be fitted with a single-machine payment system as an optional accessory via the Connector Box. The programming required for connecting a payment system can be carried out during the initial commissioning process. After initial commissioning, changes may only be carried out by your Miele dealer or the Miele Customer Service Department.
WiFi/LAN interface
The washing machine is equipped with a WiFi/LAN interface for exchanging data. The data interface provided on the LAN connection complies with SELV (Safety Extra Low Voltage) in accordance with EN 60950. The LAN connection uses a RJ45 connector in accordance with EIA/ TIA 568-B. Connected appliances must also comply with SELV.
Plinth (APWM 030/034)
The washing machine can be installed on a plinth (open or box plinth, available as an optional Miele accessory). Elevating the washing machine gives a better ergonomic working position when loading or unloading. It also simplifies the installation of a drain connection. The washing machine must be secured to the plinth immediately after installation! The plinth must be secured to the floor! There is a risk of the washing machine falling off a raised plinth during a spin cycle if it is not secured.
Standard
Dimensions in mm
- Electrical connection
- Cold water connection
- Warm water connection/hot water connection (for EH and RH variants)
- Cold water connection for hard water (optional)
- Cold water connection for liquid dispensing l Drain pipe
Installation

Dimensions in mm
- Electrical connection
- Cold water connection
- Warm water connection/hot water connection (for EH and RH variants)
- Cold water connection for hard water (optional)
- Cold water connection for liquid dispensing
- Dispensing pump connections
- Overflow and ventilation
- Connector Box connection
- Connector Kit connection (optional)
- LAN connection
- Connector Box (optional)
- Drain pipe
- Connection for equipotential bonding
- Water recovery connection (optional)
Plinth
Dimensions in mm
- Electrical connection
- Cold water connection
- Hot water connection for RH variants
- Cold water connection for hard water (optional)
- Cold water connection for liquid dispensing l Drain pipe

Dimensions in mm
- Electrical connection
- Cold water connection
- Hot water connection for RH variants
- Cold water connection for hard water (optional)
- Cold water connection for liquid dispensing
- Dispensing pump connections
- Overflow and ventilation
- Connector Box connection
- Connector Kit connection (optional)
- LAN connection
- Connector Box (optional)
- Drain pipe
- Connection for equipotential bonding
- Water recovery connection (optional)
Standard

Plinth

Floor anchoring
Standard

Multiple side-by-side installation
Marine applications
Plinth
Dimensions in mm
Screw/anchor point
Technical data
| Voltage versions and electrical data | |
| 3N AC 400 V EL | |
| Supply voltage | 3N AC 400 V |
| Frequency | 50/60 Hz |
| Required fuse rating (on site) | 25 A |
| Power rating | 14,6 kW |
| Connection cable, min. cross-section | 4 mm² |
| 3N AC 400 V RH | |
| Supply voltage | 3N AC 400 V |
| Frequency | 50/60 Hz |
| Required fuse rating (on site) | 16 A |
| Power rating | 9,6 kW |
| Connection cable, min. cross-section | 2,5 mm² |
| 3 AC 230 V EL | |
| Supply voltage | 3N AC 230 V |
| Frequency | 50/60 Hz |
| Required fuse rating (on site) | 50 A |
| Power rating | 14,6 kW |
| Connection cable, min. cross-section | 10 mm² |
| 3 AC 440/480 V EL | |
| Supply voltage | 3 AC 440/480 V |
| Frequency | 50/60 Hz |
| Required fuse rating (on site) | 25 A |
| Power rating | 13,4/15,7 kW |
| Connection cable, min. cross-section | 4 mm² |
| 3 AC 400 V EL | |
| Supply voltage | 3 AC 400 V |
| Frequency | 50/60 Hz |
| Required fuse rating (on site) | 25 A |
| Power rating | 14,6 kW |
| Connection cable, min. cross-section | 4 mm² |
Plumbing
Cold water connection
- Required flow pressure 100 – 1000 kPa (1 – 10 bar)
- Maximum flow rate 31,5 l/min
Threaded union required (male thread, to be provided by customer in accordance with DIN 44991, flat sealing) 3 x 3/4″
Hot water connection
- Maximum permissible hot water temperature 70 °C
- Required flow pressure 100 – 1000 kPa (1 – 10 bar)
- Maximum flow rate 16 l/min
- Threaded union required (male thread, in accordance with DIN 44991, flat sealing) 1 x 3/4″
- Length of water inlet hose supplied 1550 mm
Hot water connection (for variants without heating or with reduced heater rating)
- Maximum permissible hot water temperature 90 °C
- Required flow pressure 100 – 1000 kPa (1 – 10 bar)
- Maximum flow rate 16 l/min
- Threaded union required (male thread, in accordance with DIN 44991, flat sealing) 1 x 1″
- Length of water inlet hose supplied
Hard water connection (optional)
- Required flow pressure 100 – 1000 kPa (1 – 10 bar)
- Maximum flow rate 32 l/min
- Threaded union required (male thread, in accordance with DIN 44991, flat sealing) 2 x 3/4″
- Length of water inlet hose supplied 2 x 1550 mm
Drainage
- Maximum drain water temperature 95 °C
- Waste water connection (on machine) Plastic pipe HT DN 70
- Drain (on site) Connection DN 70
- Maximum drainage rate 200 l/min
Connection for equipotential bonding
- Male thread M10
- Toothed washers M10
Technical data
Installation dimensions
- Casing width (without add-on components) 920 mm
- Casing height (without add-on components) 1447 mm
- Casing depth (without add-on components) 754 mm
- Overall machine width 924 mm
- Overall machine height 1450 mm
- Overall machine depth 846 mm
- Minimum width of transport opening 1020 mm
- Minimum safety distance between wall and appliance front 1280 mm
- Diameter of door opening 415 mm
- Door opening angle 180°
Anchoring
Standard
- Required anchor points 2
- DIN 571 wood screw (diameter x length) 12 mm x 90 mm
- Rawl plugs (diameter x length) 16 mm x 80 mm
With plinth (APWM UO/UG)
- Required anchor points 4
- DIN 571 wood screw (diameter x length) 12 mm x 90 mm
- Rawl plugs (diameter x length) 16 mm x 80 mm
Concrete plinth
- Required anchor points 2
- DIN 571 wood screw (diameter x length) 12 mm x 90 mm
- Rawl plugs (diameter x length) 16 mm x 80 mm
Transport data, weight and floor load
Models with detergent drawer (DD)
- Packaging width 1210 mm
- Packaging height 1585 mm
- Packaging depth 1130 mm
- Gross volume 1952 l
- Gross weight* 391 kg
- Net weight* 371 kg
- Max. floor load in operation* 5424 N
- *depending on equipment configuration
Emissions data
- Sound pressure level at workplace, washing 51 dB (A)
- Sound power level, washing 60,0 dB (A)
- Sound pressure level at workplace, spinning 65 dB (A)
- Sound power level, spinning 76,0 dB (A)
- Average heat dissipation rate to installation room 6,48 MJ/h
Miele & Cie. KG Carl-Miele-Straße 29 33332 Gütersloh Germany Telefon: 05241 89-0 Internet: www.miele.com/professional






















