Thermobox Room Divider
Hidden for fireplaces Chalet-II
Installation instructions
(С2-H-TRD)
С2-H-TRD Thermobox Room Divider
NEVERDARK Hidden Installation
Thermobox Room Divider for Chalet-II
(C2-H-TRD)
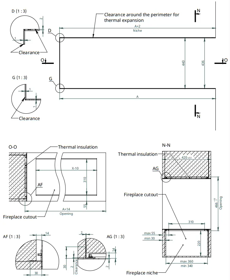
Main view

| Thermobox | Fireplace | ||||
| A | B | C | X | Y | |
| Model | Length of thermobox | Height of thermobox | Depth of hermobox | Max. length of the fireplace | Width of the fireplace |
| C2-H-TRD-800 | 800 | 500 | 410 | 800 | 320 |
| C2-H-TRD-900 | 900 | 900 | |||
| C2-H-TRD-1050 | 1050 | 1100 | |||
| C2-H-TRD-1300 | 1300 | 1200 | |||
| C2-H-TRD-1500 | 1500 | 1400 | |||
Options

Dimensions
![]() | ![]() |
Niche
![]() | ![]() |






















