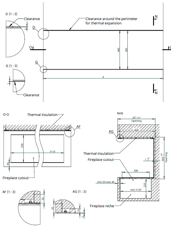
neverdark C2-Н-TTS Thermobox Three Sided


| Thermobox | Fireplace | ||||
| A | B | C | X | Y | |
| Model | Length of thermobox | Height of thermobox | Depth of hermobox | Max. length of the fireplace | Width of the fireplace |
| C2-H-TTS-800 | 800 |
500 |
410 | 800 |
320 |
| C2-H-TTS-900 | 900 | 900 | |||
| C2-H-TTS-1050 | 1050 | 1100 | |||
| C2-H-TTS-1300 | 1300 | 1200 | |||
| C2-H-TTS-1500 | 1500 | 1400 | |||
OPTION

DIMENSION

DIMENSION 2

Niche

Niche 2




















