NEVERDARK Н-TLC Built-In Thermo Boxes

Main view
| Thermobox | Fireplace | ||||
| A | B | C | X | Y | |
| Model | Length of the thermobox | Height of the thermobox | Depth of the thermobox | Burner length | Width of the fireplace |
| H-TLC-800 | 800 |
460 |
340 | 700 |
250 |
| H-TLC-900 | 900 | 800 | |||
| H-TLC-1100 | 1100 | 1000 | |||
| H-TLC-1300 | 1300 | 1200 | |||
| H-TLC-1600 | 1600 | 1500 | |||
| H-TLC-2200 | 2200 | 2000 | |||
| H-TLC-2700 | 2700 | 2500 | |||
Options

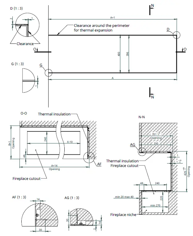
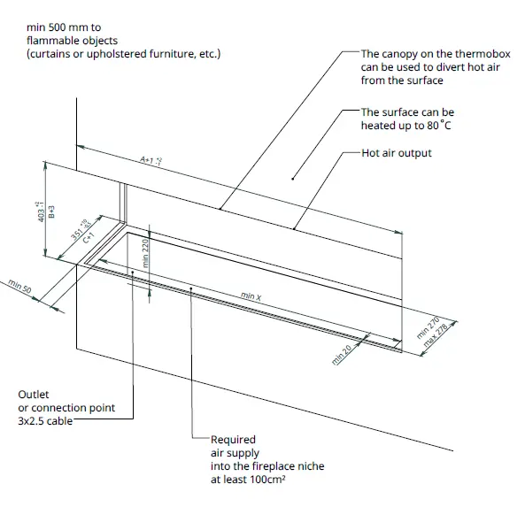
Dimensions


Installation


neverdark.one
NEVERDARK Hidden Installation Thermobox Left Corner for Automatic, Firetec (H-TLC)





















