FRICO TWT10521 Thermowarm

OVERVIEW

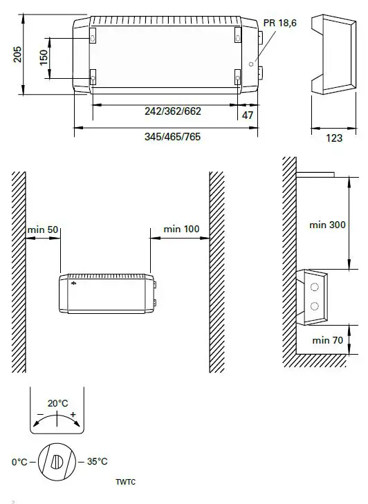
Mounting and assembly
Thermovarm is a small and neat ribbed pipe radiator. It is especially suitable for spaces where relatively high output is needed but there is limited space. The front plate is removable, which makes the radiator easy to clean. TWT has sides of grey thermoplastic and either a lacquered or flocked front plate.
TWTC has sides of black thermoplastic and front plate, inner sides, brackets and elements are in lacquered corrosion proof design.
Mounting
The radiator is attached to the wall with four screws. There is a template for placing the screws on the bottom of the carton. Stick a sharp instrument through the marks on the carton to mark where to place the screws. The two upper holes are “keyholes”. See sketches on page 2. Electrical connection of TWT100 and TWT200 must be permanent and done by an authorized electrician.
Versions
- TWT100 is equipped with thermostat and output switching 0-1/1. 230V or 400V. Protection class IP44.
- TWT300 is equipped with thermostat, cord and plug. Available in 230V only. Protection class IP 21.
- TWT200 is equipped with thermostat and output switching 0-1/1. 230V or 400V. TWT200 has flocked front plate and is approved for use in children’s rooms and in household personal hygiene rooms where there is a maximum temperature of 60°C. Protection class IP44.
- TWTC is equipped with thermostat, cord and plug. Available in 230V only. TWTC is in corrosion-proof design. Protecion class IP54.
Thermostat
The thermostat is of the capillary tube type and adjustable between 0-35°C.
TWT:
A Celsius scale is marked on the side of the thermostat dial. The dial is on the right side of the heater.
The scale of the thermostat dial can be turned to calibrate the thermostat to the room temperature in question.
TWTC:
The thermostat is protected under a threaded lid on the right side of the heater. The lid can be removed by a screwdriver. See sketch on page 2 for thermostat setting. The thermo-stat is set by turning the notch to the desired temperature.
Overheat protection
TWT:
The overheat protection can be reset by pushing the button on the end plate of the heater.
TWTC:
The overheat protectionis protected under a threaded lid on the side of the heater. The lid can be removed by a screwdriver. The over-heat protection is reset by pushing the but-ton.
Cleaning
Remove dust with a vacuum cleaner or a soft brush.
For the 200 series with flocked front plate: The surface can be washed with mild soap solution or carpet foam. Remove spots with chemically pure petrol. Avoid strong solvents such as acetone and similar.
Maintenance
In all electrical heating appliances, small clicks can occur due to movement when the material expands and contracts with changes in temperature.
Safety
This appliance can be used by children aged from 8 years and above and persons with reduced physical, sensory or mental capabilities or lack of experience and knowledge if they have been given supervision or instruction concerning use of the appliance in a safe way and understand the hazards involved. Children shall not play with the appliance. Cleaning and user maintenance shall not be made by children without supervision.
Main offi ce Frico AB
Box 102
SE-433 22 Partille Sweden
Tel: +46 31 336 86 00
[email protected] www.frico.se
For latest updated information and information about your local contact: www.frico.se
Get In Touch
Call: 0845 6880112
Email: [email protected]
Our Address
Puravent, Adremit Limited, Unit 5a, Commercial Yard, Settle, North Yorkshire, BD24 9RH

















