FISHER PAYKEL HP60IDCHX3 60cm Integrated Insert Rangehood Installation Guide

IMPORTANT!
SAVE THESE INSTRUCTIONS
The models shown in this user guide may not be available in all markets and are subject to change at any time. For current details about model and specification availability in your country, go to our website fisherpaykel.com or contact your local Fisher & Paykel dealer.
Registration
Register your product with us so we can provide you with the best service possible.
To register your product visit our website: fisherpaykel.com
INTRODUCTION
Welcome to the family of Fisher & Paykel appliances. Our team has spent thousands of hours designing, engineering and testing this Integrated Rangehood to ensure you get the perfect product for your home. For more information on your product please visit fisherpaykel.com or contact our Customer Care team.

SAFETY AND WARNINGS

IMPORTANT SAFETY INFORMATION
READ THE ENTIRE SET OF INSTRUCTIONS BEFORE INSTALLING OR USING THIS APPLIANCE. A copy of the user guide and installation guide for this product can also be found at fisherpaykel.com.
WARNING!
When using this appliance always exercise basic safety precautions including the following:
- Read the entire set of instructions before installing or using this appliance.
- Please make this information available to the person installing the appliance — doing so could reduce your installation costs.
- Always switch the power off prior to installation, servicing or cleaning of the rangehood.
- This appliance must be installed and connected to the mains power supply only by a suitably qualified person according to these installation instructions and in compliance with any applicable local building and electricity regulations.
Failure to install the appliance correctly could invalidate any warranty or liability claims. - To comply with electrical safety regulations, the rangehood must be plugged into a socket near the appliance. The socket must be accessible, or have an accessible isolating switch, to enable the end user to isolate the rangehood from the power for the purpose of internal cleaning or maintenance.
- A power outlet should be within 750 mm of the motor assembly and can either be on the wall, behind the chimney or in the ceiling.
- If the supply cord of this equipment is damaged, it must only be replaced by the manufacturer, its service agent or similarly qualified person in order to avoid a hazard.
- Ducting accessories are not supplied. All ducting must comply with local requirements and building codes.
- Attention should be given to ensure that any applicable regulations concerning the discharge of exhaust air are fulfilled.
- Before connecting any pipes, consult municipal ordinances to ensure that any applicable regulations concerning the discharge of exhaust air are adhered to and request permission from the person in charge of the building.
- Exhaust air must not be discharged into an existing flue that is used for exhausting fumes from appliances burning gas or other fuels.
- There shall be adequate ventilation of the room when the rangehood is used at the same time as appliances burning gas or other fuels.
- For Australia and New Zealand: Range hoods and other cooking fume extractors may adversely affect the safe operation of appliances burning gas or other fuels (including those in other rooms) due to back flow of combustion gases. These gases can potentially result in carbon monoxide poisoning. After installation of a range hood or other cooking fume extractor, the operation of flued gas appliances should be tested by a competent person to ensure that back flow of combustion gases does not occur.
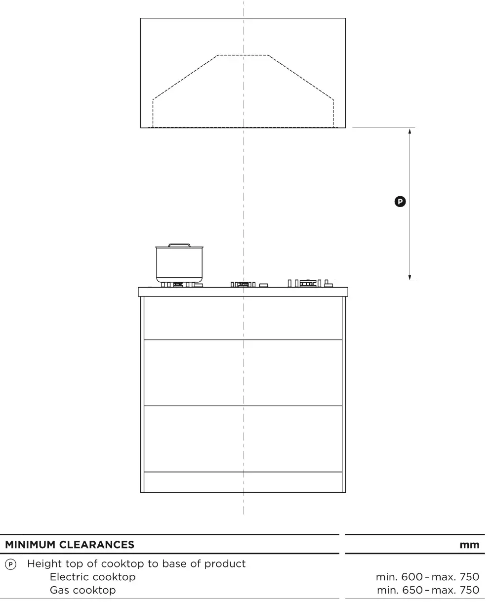
- The minimum distance between the supporting surface for cooking vessels on the cooktop and the lowest part of the rangehood shall be 600 mm or 650 mm if installed over a gas cooktop.
- Stainless steel is very easily damaged during installation if abraded or knocked by tools. It is recommended to protect the top of the rangehood with cardboard or polystyrene during the installation to minimise the risk of damage occurring.
- To reduce the risk of damage occurring to the cooktop, it is recommended that the surface of the cooktop is protected with cardboard or a similar object during installation of the rangehood.
- This appliance is not intended for use by persons (including children) with reduced physical, sensory or mental capabilities, or lack of experience and knowledge, unless they have been given supervision or instruction concerning the use of the appliance by a person responsible for their safety.
- Children should be supervised to ensure they do not play with the appliance.
Cleaning and user maintenance shall not be made by children without supervision. - You must read the details concerning the method and frequency of cleaning.
- There is a fire risk if cleaning is not carried out in accordance with the instructions.
- Never leave frying food unattended since grease can overheat and catch fire.
The risk of fire is even greater in the case of used oil. - Do not flambé under the rangehood.
- Never use the rangehood without the filters in place.
- During an electrostatic discharge (ESD) it is possible that the device will stop working. By switching the device off and on the device will again work as intended.
- CAUTION: accessible parts may become hot when used with cooking appliances.
- Remove all packaging, including protective wrappings, before use.
INSTALLATION INSTRUCTIONS
Contents of packaging

Product and cabinetry cutout dimensions


IMPORTANT!
Actual product dimensions may vary by ± 2mm.
Please read the entire instructions before installing the rangehood.
Height of rangehood

Rangehood installation height above the cooktop is the user’s preference.
Lower installation heights will improve the efficiency of capturing cooking odours, grease, and smoke. This rangehood must be installed between the minimum and maximum dimensions indicated in the table above.
Venting requirements
IMPORTANT!
To reduce risk of fire and to properly exhaust air, be sure to duct air outside. Do not vent exhaust air into spaces within walls or ceilings or into attics, crawl spaces, or garages.
The range hood can be installed to operate with the exhaust air ducted externally from the kitchen or with the exhaust air recirculating within the kitchen.
External venting

For best results:
- Use the shortest and straightest duct route possible. Elbows and transitions increase noise and reduce air flow efficiency.
- Use rigid or semi-rigid ducting 150mm diameter with a 160mm (minimum) round hole in the wall or ceiling.
Note: In difficult installations where flexible ducting is required ensure that it is pulled tight.
Recirculating

This range hood can be installed to recirculate within the kitchen where ducting externally is not practical.
The carbon filters fit on the blowers within the cavity of the range hood and absorb odours as they pass over the filters. The exhaust air then passes through the blower unit and the diverter before recirculating back into the kitchen from the side vents at the top of the chimney.
Note: A ducting hole is not required in the wall or ceiling when installing a range hood to be recirculated.
To operate this range hood with the air recirculating the following is required:
- Carbon filters (refer to ‘Parts and accessories’).
- 150mm ducting. The ducting diameter must match the diameter or the blower outlet.
- 150mm louvered vent.
IMPORTANT!
Venting directly into the cabinet with no ducting and louvered vent is not permitted.
To recirculate your perimeter insert range hood:
- Determine the desired location of the 150mm louvered vent on your cabinetry.
The louvered vent can be placed on the side or front of your cabinet provided there is sufficient clearance from the surrounding cabinetry to enable ventilated air to recirculate back into your kitchen.
Note: Placement of the louvered vent on the top of your cabinetry is not recommended.
This should only be done if objects can be prevented from falling through the louvers into the blower. - Create a cutout in your cabinet to fit the 150mm louvered vent. Place the louvered vent on the hole created and secure (A).
- Connect the blower outlet to the louvered vent with a length of 150mm rigid ducting, and secure the joints with aluminum tape. Ensure there is no slack in the ducting.

Installation
WARNING!
- This product is heavy and requires two persons for installation.
- Failure to install the screws or fixing device in accordance with these instructions may result in electrical hazards.
The manufacturer is not liable for any damage caused by not following these instructions.
Prepare for installation
- Before installing your cooker hood:
♦Read the instructions carefully.
♦Unpack the cooker hood and check that all functions are working.
♦Ensure that the voltage (V) and the frequency (Hz) indicated on the serial plate match the voltage and frequency at the installation site.
♦The stainless steel and glass surfaces of the cooker hood are very easily damaged during installation if grazed or knocked by tools. Take care to protect the surfaces.
♦Protect the hob surface below with cardboard, or the like, to prevent damage occurring whilst the cooker hood is being installed above. - Fit the 150mm ducting adapter with non return flap to the cooker hood using the screws supplied.
- Provide an opening on the underside of the cupboard (refer to ‘Product and cabinetry cutout dimensions’).
- Remove the filters and face plate of the cooker hood.


5) Lift the rangehood and fit through the opening of the cupboard till the spring loaded brackets / clips hold the product in place.

6) Secure rangehood while tightening the 4 brackets / clips.

7) Connect duct and plug rangehood in.
OPERATING INSTRUCTIONS
This rangehood should be turned on for a few minutes before cooking in order to establish air currents upward through the rangehood. This will also enable hot air removal from your kitchen and keep the rangehood surface cool. When heat, smoke, moisture, grease and cooking odours are produced, they will be carried outside instead of drifting into other rooms.
Use the low fan speeds for normal use and the higher fan speeds for high heat, strong odours or fumes.
Rangehood width
- The rangehood width is recommended to be no less than the width of the cooktop.
- A wider rangehood can be used to increase the capture area if space is not restricted.
- The rangehood should ideally be centred above the cooktop for proper performance.
Induction cooking considerations
Induction cooktops use energy efficient technology that only heats the contents of a cooking pot. Unlike gas or traditional electric cooktops, the surrounding air does not get heated when using an induction cooktop. As a result, rangehood filters, splashbacks and surrounding cabinetry do not get warmed up, increasing the likelihood of condensation on these cooler surfaces. Other factors like ambient temperature, humidity, natural ventilation of the room, size of the cookware and how the induction cooktop is being used also influence condensation. For example, rapid boiling on high cooktop heat settings like PowerBoost increases the rate at which water is evaporated, increasing the likelihood of condensation. It is important to understand that neither the rangehood nor the induction cooktop are faulty as a result of this phenoenon.
Condensation can be minimised by:
- Installing the rangehood at the maximum height above the cooktop.
- Using the rangehood on a lower speed setting when boiling.
- Using the induction cooktop on a lower heat setting when boiling.
- Switching the rangehood on 5 minutes before cooking and letting it run for at least 5 minutes after cooking.
Gas cooking considerations
Using a powerful gas cooktop or multiple gas burners operating at the same time can cause the rangehood surfaces to become hot. This effect can be reduced by:
- Using the maximum speed setting to enable hot air to be extracted quickly.
- Installing the rangehood at the maximum recommended height.
- Consult the cooktop installation and user guide for details on the installation height of the rangehood.
Touch control panel

CLEANING AND MAINTENANCE
WARNING!
- Before servicing or cleaning your rangehood, switch the power off at the control panel and disconnect the power to prevent power from being switched on accidentally.
- Allow the appliance to cool after the power has been turned off before servicing.
- There is a risk of fire if cleaning is not carried out in accordance with these instructions.
IMPORTANT!
- Never use abrasive or oil based cleaners.
- Wear gloves to protect against sharp edges.Clean your rangehood regularly to avoid the build-up of grease. Grease deposits are corrosive and may damage the rangehood. Use warm water with a mild liquid detergent and a clean soft cloth to wipe down all surfaces of the rangehood.
- Corrosive chemicals.
- Abrasive cleaning products.
- Citrus-based cleaning products.
- Hard brushes and steel wool.
Note: in areas of high humidity or coastal environments, cleaning should be carried out more frequently.
Filter cleaning
Aluminium filters

- The clean filter light reminder will illuminate to remind you to clean the filters.
- Depending on use, and at least once a month, the aluminium grease filters should be removed and cleaned with hot soapy water or in a dishwasher.
- If washed in a dishwasher, the filters should be placed in an upright position to prevent food from falling on them.
- After rinsing and drying, replace the filters
Note: some discolouration of the frames may occur.
Removing the aluminium filters:
- Open the glass panel.
- Pull the relative filter catch, tilting it downwards until it disengages from the supports.
- Reverse these instructions when refitting the filters.
Note: Do NOT operate the rangehood without the filters in place. The filters help prevent damage to the inside of the rangehood.
Carbon filters — for use in recirculation mode
Active carbon filters are disposable items designed to remove grease and odours from cooking vapours before the air is channelled back into the kitchen. The active carbon filters must be replaced periodically to work properly, at least once every three months, depending on the frequency with which the rangehood is used.
Note: fully saturated carbon filters can become a barrier to air movement therefore limiting rangehood performance. In the event of fire, grease laden filters could be flammable and therefore regular replacement is recommended.
Lighting
Slimline LED strip lighting illuminates the cooking space, allows greater dimming control, and means no lightbulb changes.
Replacing LED lights
To replace the LED lights please contact your Fisher & Paykel trained and supported service technician. Refer to fisherpaykel.com or your seperate service and warranty book provided with your rangehood for contact details.
PARTS AND ACCESSORIES

SERVICE AND WARRANTY
For details of your manufacturer’s warranty and contacts for servicing, please refer to your separate service and warranty book provided with your rangehood.
Complete and keep for safe reference:

© Fisher & Paykel Appliances 2022. All rights reserved.
The models shown in this guide may not be available in all markets and are subject to change at any time.
The product specifications in this guide apply to the specific products and models described at the date of issue. Under our policy of continuous product improvement, these specifications may change at any time.
For current details about model and specification availability in your country, please go to our website or contact your local Fisher & Paykel dealer.
105938B 04.22



















