MONOGRAM ZGP486NDTSS 48″ All Gas professional Range

BURNER PERFORMANCE
| Front Left Burner Element | 23,000-BTU |
| Back Left Burner Element | 18,000-BTU |
| Second From Left Front Burner Element | 15,000-BTU |
| Second From Left Back Burner Element | 15,000-BTU |
| Third From Left Front Burner Element | 23,000-BTU |
| Third From Left Back Burner Element | 18,000-BTU |
| Griddle | 18,000-BTU |
VERSATILE GAS BURNER CONFIGURATION
Delivering exceptional cooking flexibility, the two 23,000-BTU multi-ring brass burners and dual-stack burners offer a range of heat settings, from gentle simmer to intense flame
3-PIECE GRATES WITH REVERSIBLE WOK FEATURE
Designed to adapt to different cooking styles, these reversible grates are flat on one side and uniquely contoured on the other to perfectly fit round-bottom woks
WIFI MONITORING AND REMOTE CONTROL WITH THE SMARTHQTM APP
Perfect for a busy lifestyle, built-in WiFi capabilities allow for the remote activation of cooking functions, like preheating the oven, setting timers, activating Chef Connect and more
DYNAMIC OVEN LCD
Functional and stylish, the LCD shows which oven mode is currently in use and other helpful information, like oven temperature, timer and probe temp
CHEF CONNECT
Stay completely connected with Chef Connect, the smart and convenient feature that can effortlessly synchronize a range of kitchen items such as surface lights and even the vent when the burners are on
INDUSTRY EXCLUSIVE–CUSTOM COLOR LED ACCENT LIGHTING
For an elevated level of luxury, use the Smart HQTM app to customize the accent lighting color and brightness to perfectly match your kitchen décor or dining ambiance
RING-LIT KNOBS
Delivering a modern approach to customization, the SmartHQTM app allows for the range knobs to be set in any color you choose, indicating when a burner is on and showing the status of the oven
SOLID BRASS BLADES ON PRECISION MACHINED KNOBS
With an unmatched attention to detail, all knobs on the new Monogram Pro ranges and range tops come with solid brass accents
SEAMLESS STAINLESS TOP FRAME
Meticulously crafted from one piece of stainless steel that covers the cooktop and control panel, this seamless and stylish surface is easy to clean and beautiful to look at
SOFT-CLOSE HINGES
Specially designed, soft-close hinges ensure that the oven door always closes smoothly and quietly for a new level of kitchen refinement
4 OVEN RACKS (FULL-EXTENSION), 1 LOW PROFILE
Oven racks glide smoothly in and out on stainless steel ball bearings for easy access
PRECISION OVEN MODES WITH SMARTHQ
APP Simplify the cooking process with Precision Oven Modes that automatically track progress and make time and temperature adjustments
PRECISE AIR CONVECTION SYSTEM
Designed to optimize air movement in the oven, the convection fan system automatically adjusts airflow–forwards or backwards– depending on the oven mode being used
*Natural Gas Model

SPECIFICATIONS
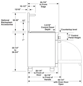
| Overall Width | 47 7/8″ (121.6 cm) |
| Overall Height | 35 1/4″ (89.5 cm) |
| Overall Depth | 28 1/4″ (71.6 cm) |
| Door Clearance | 48 1/4″ (122.5 cm) |
| Cutout Width | 48″ (121.92 cm) |
| Cutout Height | 35 1/4″ – 36 3/4″ (89.5 – 93.3 cm) |
| Shipping Weight | 672 lbs (305 kg) |
ATTENTION ELECTRICIAN:
Electrical requirements: Ranges must be hooked up to a 120V, 60Hz properly grounded dedicated circuit protected by a 15-amp circuit breaker or time-delay fuse. See installation instructions for further details.
OVERALL DIMENSIONS

SIDE VIEW WITH A BACKSPLASH

DIMENSIONS AND INSTALLATION INFORMATION (IN INCHES)

ADDITIONAL CLEARANCES:
Allow 12″ minimum clearance to an adjacent wall on each side.
Working areas adjacent to the range top should have 18″ minimum clearance between countertop and the bottom of the wall cabinet.
**As defined in the National Fuel Gas Code (ANSI Z223.1/CSA B149.1, Current Edition). Clearances from non-combustible materials are not part of the ANSI Z21.1/CSA 1.1 scope and are not certified by CSA. Clearances less than 12″ must be approved by local codes and/or the authority having jurisdiction.
HELPFUL TIPS
All Professional Ranges are factory set for natural gas.
NOTE
A propane conversion kit is included with the range. High Altitude kit for operation above 6,000 feet (for Natural and LP gas models), is available at an additional cost. The conversion must be performed by a qualified gas installer at additional cost.
HA NG Service Kit: WB28X39726
HA LP Service Kit: WB28X39727
INSTALLATION INFORMATION
Before installing, consult installation instructions packed with product or online at Monogram.com for current dimensional data. A suitable overhead vent hood is required.
ADVANCE PLANNING
Refer to dimensional drawings for appropriate placement and necessary clearances when planning the installation.
- Working areas adjacent to the range should have 18″ minimum clearance between countertop and cabinet bottom.
- Clearance between range and side wall or combustible material must be at least 12″ on each side.
- Installation must conform with local codes. In the absence of local codes, the range must comply with the National Fuel Gas Code, ANSI Z223.1-1990.
A suitable overhead vent hood is required. A custom hood installation with exposed horizontal combustible surfaces must have an Auto-On feature. Refer to hood installation instructions for specific hood clearances. The surface of the entire back wall above the range and below the hood must be covered with a non combustible material such as metal, ceramic tile, brick, marble or other stone. |
DIMENSIONS AND INSTALLATION INFORMATION (IN INCHES)
UTILITY LOCATIONS

Locate gas and electric as shown

HELPFUL TIPS
GAS PRESSURE REGULATOR
You must use the gas pressure regulator supplied with this rangetop. For proper operations the inlet pressure to the regulator should be as follows:
Natural Gas:
Minimum pressure: 6″ of Water Column
Maximum pressure: 13″ of Water Column Propane (LP) Gas:
Minimum pressure: 11″ of Water Column Maximum pressure: 13″ of Water Column See installation instructions for more details
OPTIONAL BACKSPLASH ACCESSORIES
- The range requires a 12″ minimum clearance to a vertical combustible surface at the rear. A backsplash is required for installations with less than 12″ clearance. The following backsplash accessories are available, or a custom, noncombustible backsplash can be used.
- Order one with a 36″-wide range backsplash:
- UX12BS48PSS12″-height backsplash
- UXADBS48PSS30″-36″ adjustable-height backsplash with warming shelf



















