Thermador PRG364WDH Gas Professional Range

FEATURES & BENEFITS
- Exclusive Star® Burner delivers superior flame spread for more even heating with QuickC lean Base® designed for easy cleaning
- 2 ExtraLow® burners offer precision simmering, melting or keeping warm
- Non-stick griddle provides even heating across the entire cooking surface
- Powerful, 20,500 BTU bake and 17,500 BTU broil burners
- Convection Bake offers precise multi-level baking results
TECHNICAL DETAILS
| Circuit Breaker | 20 A |
| Volts | 120 V, 60Hz |
| Energy Source | Gas |
| Plug Type USA | 120V – 3 Prong |
| Power Cord Length | 65″ (1,651mm) |
| Gas Supply | 3/4″ |
WARRANTY
| Limited Warranty, Entire Appliance, Parts and Labor | 2 Year |
RANGETOP

| Total number of cooktop Burners | 4 + Griddle |
| 1 – Power of Back Left Burner BTU | 15,000 and XLO |
| 2 – Power of Front Left Burner BTU | 18,000 and XLO |
| 3 – Power of Center 12″ Electric Griddle | 1,630 W (6-Pass) |
| 4 – Power of Back Right Burner BTU | 15,000 |
| 5 – Power of Front Right Burner BTU | 18,000 |
OVEN
| Oven Capacity | 5.1 cu. ft. |
Cooking Modes
Bake, Convection Bake, Roast, Broil
| Sabbath | Yes |
| Self Clean | No |
| Telescopic Rack(s) | 3 |
| Interior Lights | 2 |
| Bake Power | 20,500 BTU |
| Broil Power | 17,500 BTU |
| Home Connect® (Wi-Fi Enabled) | Yes |
| Cavity Interior Dimensions (HxWxD) | 16 3/8″ x 29 1/8″ x 18 5/8″ |
| Cavity Usable Dimensions (HxWxD) | 11 1/4″ x 25 5/8″ x 16 3/4″ |
DIMENSIONS & WEIGHT
| Overall Appliance Dimensions (HxWxD) | 35 3/4″ – 36 3/4″ x 35 15/16″ x 24 3/4″ |
| Required Cutout Size (HxWxD) | 35 3/4″ – 36 3/4″ x 36″ x 24″ |
| Net Weight | 335 lbs. |
ACCESSORIES (INCLUDED)
3 Telescopic Racks, Meat Probe, 1 Griddle Plate. 1 Grease Tray, 1 Lg. Broil Pan, Island Trim
ACCESSORIES (OPTIONAL)
PWOKRINGHC
Wok Ring

PAGRIDDLE
Professional Griddle, Sits on Top of Grates Over 2 Star Burners, High-Release Coating

PAGRIDLFW
12″ Pro Griddle with Tray, (Fusion Coating Option for Griddle Models)

PA12LCVRW
12″ Professional Griddle Cover

PARKB36DHY
Metallic Blue Knob Kit

PA12CHPBLK
Chopping Block / Cutting Board

PA12GRILLW
12″ Pro Grill Plate with Tray, (for Griddle Models), Non-Fusion Coating

PA12GRILFW
12″ Grill Plate with Tray (for Griddle Models), Fusion Coating

PA36WLBH
Pro Harmony 7″ Low Backguard*

PALPKITGA
LP Conversion Kit, Pro Harmony Gas Models with 4 and 6 Burners

PAALTKITH
High Altitude Kit, Natural Gas or Dual-Fuel Pro Harmony Ranges, 5,400 ft. to 10,200 ft.
Contact Customer Support
High Altitude Kit, Gas or Dual-Fuel Pro Harmony Ranges Connected to LP Gas, 10,000 ft. to 10,200 ft.
*Models PCG305xx, PRD305xx, PRD606xx, PRG305xx, PRG304xx and PRD304xx are suitable for 0″ rear clearance to combustible surfaces. All other models: when using the included Island Trim a minimum 6″ (152 mm) rear clearance is required to a combustible surface. When installing against a combustible surface, a Thermador® Low Backguard is required for a 0″ rear clearance to the combustible surface. A Thermador Low Backguard must be purchased separately. A rear clearance to a surface covered in a noncombustible material (metal, ceramic tile, brick, marble, or stone) is 0″ when using the included Island Trim. Clearances of less than 6″ (152 mm) should be approved by the local codes and/or by the local authority having jurisdiction. Clearances from non-combustible materials are not part of the ANSI Z21.1 scope and are not certified by CSA.
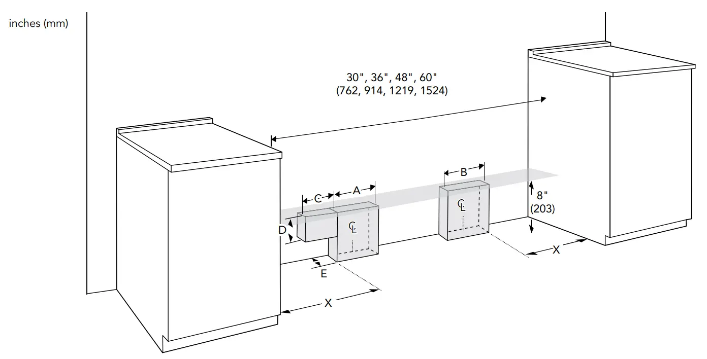
36-INCH RANGE DIMENSIONS

36-INCH RANGE CUTOUT DIMENSIONS

| Range model | Gas zone A | Electric zone B | X | C | D | E |
| All Harmony series | 4” (102) | 6” (152) | 5” (127) | N/A | N/A | 2” (51) |
| 36”/ 48” Grand series | 4” (102) | 6” (152) | 8” (203) | 4” (102) | 3” (76) | 2” (51) |
| 60” Grand series | 4” (102) | 6” (152) | 8” (203) | 4” (102) | 3” (76) | 1” (25) |
ELECTRICAL SUPPLY
IMPORTANT: The cord supplied with gas ranges having an electric griddle requires a NEMA 5-20 receptacle as shown here. Local codes my require a different wiring method.

WARNING: This appliance is equipped with a three-prong grounding plug for protection against shock hazard and should be plugged directly into a properly grounded receptacle. DO NOT cut or remove the grounding prong from this plug. DO NOT ALTER THIS PLUG.
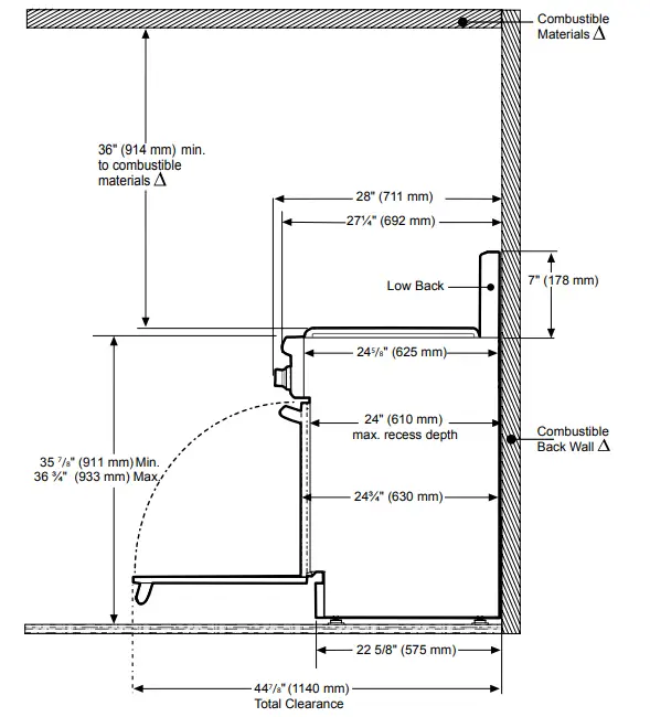
36-INCH RANGE DIMENSIONS AND CLEARANCE REQUIREMENTS WITH “LOW BACK”
NOTE: A 36-inch minimum clearance is required between the top of the cooking surface and the bottom of an unprotected cabinet. A 30-inch clearance can be used when the bottom of the wood or metal cabinet is protected by not less than 1/4 inch of a flame retardant material covered with not less than No. 28 MSG sheet steel, 0.015 inch (0.4 mm) thick stainless steel, 0.024 inch (0.6 mm) aluminum, or 0.020 inch (0.5 mm) thick copper.

As defined in the “National Fuel Gas Code” (ANSI Z223.1, Current Edition). Clearances from non-combustible materials are not part of the ANSI Z21.1 scope and are not certified by CSA. Clearances of less than 6″ (152 mm) must be approved by the local codes and/or by the local authority having jurisdiction.
36-INCH RANGE DIMENSIONS AND CLEARANCE REQUIREMENTS WITH “FLUSH ISLAND TRIM”

As defined in the “National Fuel Gas Code” (ANSI Z223.1, Current Edition). Clearances from non-combustible materials are not part of the ANSI Z21.1 scope and are not certified by CSA. Clearances of less than 6″ (152 mm) must be approved by the local codes and/or by the local authority having jurisdiction.
These warranties give you specific legal rights and you may have other rights that vary from state to state. Limited warranty from date of delivery. For complete warranty details, refer to your Use & Care manual, or ask your dealer.
Specifications are for planning purposes only. Refer to installation instructions and consult your countertop supplier prior to making counter opening. Consult with a heating and ventilation engineer for your specific ventilation requirements. For the most detailed information, refer to installation instructions accompanying product or write to Thermador indicating the model number. Specifications are correct at time of printing. Thermador reserves the right to change product specifications or design without notice. Some models are certified for use in Canada.
Thermador is not responsible for products that are transported from the U.S. for use in Canada.
CUSTOMER SUPPORT

1 800 735 4328 | USA THERMADOR.COM | CANADA THERMADOR.CA | ©2023 BSH HOME APPLIANCES CORPORATION. ALL RIGHTS RESERVED.


















