Navien NGR 130-03TB Gas Range

- Before using the product, be sure to read the ‘Safety Precautions’ to use the product properly.
- Keep this manual in a place that can be easily found by the person using the product.
- The product warranty is included in this manual.
- This product was manufactured for use only in the Republic of Korea, and the quality is not guaranteed in foreign countries.
FOR KOREA UNIT STANDARD ONLY - The product exterior and the specifications, etc. may be changed without prior notice for quality improvement.
Safety Precautions
The safety-related precautions indicated below are for preventing unexpected dangers or damage by using the product safely and correctly. Please read them carefully to use the product properly. This product is not intended for users who are unable to use the device safely without supervision or instruction due to physical, sensory, or mental issues, or a lack of experience or knowledge.
Safety Warning Symbols
The safety warning symbols below are used in this user’s manual. While all safety warning symbols indicate a potential danger, they do not cover all potential issues that may occur while using the product. Therefore, you need to pay close attention to safety while using the product.
This symbol indicates potential serious injury or death if not prevented. This symbol indicates potential injury or property damage to the user if not prevented. |
Warning
- Be sure to wear gloves while installing the product.
You may suffer an abrasion injury from a sharp edge. - Do not install the product in places where wind blows.
There is a risk of fire as flammable material may catch fire due to the wind. - Do not let the gas hose contact the product directly or pass under the product.
There is a risk of explosions or fire as the gas hose may be damaged by the burner’s heat. - Be sure to check whether there is a problem with the gas stop valve.
The burner will not ignite if the stop valve is blocked or if the capacity is incorrect. - Check if the gas (LNG) is the same as the one on the product nameplate.
If it does not match, there is a risk of carbon monoxide poisoning or injury due to insecure combustion if it is used as it is.
Warning
- If gas is leaking, do not turn on the light, use electronic appliance switches, or use the power plug, and close the gas stop valve immediately.
① Ventilate by opening the window.
② Contact Navien customer support using an outside line.
If you use the house phone or a cellular phone during a gas leak, there is a risk of explosions or fire due to static or sparks. - If there is an earthquake, fire, or an abnormal condition, such as abnormal combustion, sounds, or smells, stop use immediately and ventilate after closing the gas stop valve.
- Never use a grilling pot (a pot which is used for baking things like sweet potatoes without water) or an empty container.
There is a risk of damaging the product or fire due to an overheat sensor failure.
If overheated, the overheat sensor will be activated to extinguish the fire automatically but this is not a failure. - Do not disassemble, remodel, or repair the product at your own discretion.
This may cause an unexpected electric shock, explosion, or fire.
You cannot get a free repair if you disassemble, remodel, or repair at your discretion. Be sure to contact Navien customer support for repairs. - Do not place flammable objects near the product.
This may cause a fire. - Do not touch the product with your hands before it cools down after use. In particular, take precaution to prevent children from going near or touchingthe product.
There is a risk of being burnt due to the intense heat of the product. - The user’s attention is required at all times during use. Do not leave the product unattended when the gas fire is on.
This may cause a fire. - Do not use a cooking container that is large enough to cover the product.
This may cause fire, product failure, or carbon monoxide poisoning due to overheating. - Do not use for any purpose other than cooking.
This may cause a fire or product damage. - Avoid a repeat igniting action.
- Use after 3-4 seconds when igniting it again after an ignition failure.
- Take precautions to prevent your body or clothing from getting close to the fire.
There is a risk of catching on fire or injury. - Use after checking whether the grate is placed in a proper location.
If not placed properly, there is a risk of injury as the grate may sway and the pot could fall over. - Avoid placing a hot pot directly above the caution label on the upper plate or touching the label.
The caution label may become discolored or damaged due to the heat. - Only use cooking containers which have clean bottoms.
The thermal efficiency is reduced when cooking with containers that have debris on their bottoms, and it may also cause a fire. - Do not use it in places where there is blowing air (e.g., near fans, in front of open windows).
This may cause safety devices to malfunction. - Ventilate frequently while in use.
Not doing so may cause carbon monoxide poisoning. - Ignite after checking the location and ignition handle of the burner to use.
If you activate a different ignition handle, this may cause a fire or burn. - A sound like ‘pow’ may be generated when you turn off the product and the flame is extinguished.
This sound is generated by the flame being extinguished near the hole due and trying to keep burning when the gas supply is cut. Don’t worry because this is not a failure. - Make sure that the flame is turned off after using low fire.
- Do not turn off the fire by manipulating the gas stop valve.
This may cause a fire or injury. - If you suddenly open and close the sink door or cabinet at the bottom of the product, the fire may be turned off by the sudden change of internal air.
This is not a failure. Try igniting again.
- Do not apply a shock to the overheat sensor.
Take precautions because applying shocks to the overheat sensor may cause problem in the operation of safety features. This may cause a failure.
There is a risk of fire from overheating in case of failure. - Keep the overheat sensor clean at all times.
Not doing so may result in a failure to operate the safety device. - Do not use this by remodeling or removing the overheat sensor at your discretion.
There is a risk of fires due to malfunctions or overheating in case of failure. - Use the product by making the top of the overheat sensor and the bottom center of the cooking container come fully in contact with each other.
If not, sensor malfunctions may cause a fire or may cause the burner to turn off while cooking. - For more information on the overheat sensor, see ‘How to Use the Overheat Sensor.’
Cleaning and Maintenance
- Assemble burner head, grate and burner cap correctly to the original position before using the product after cleaning.
If not assembled properly, the flame might not light or it may become deformed due to overheating. - Do not spray water on the product.
If water goes into the control or power unit, this may cause a fire. - Never use flammable materials (e.g., thinner, benzene).
There is a risk of fire due to the ignition of the flammable material.
Caution
- Have a gas specialty shop or a qualified installation company connect the gas.
- Remove the hose end cap.
- Insert the hose up to the red line.
- Tighten it securely with a hose fixing ring.
- Install it in a place with a hard, flat bottom.
Using the product in an unstable place may cause a fire or an injury. - Install in a well-ventilated area that can be ventilated at all times.
- Do not install attachments, such as shelves, around the product after installing it.
This becomes a direct cause of fire. - Do not place flammable materials or objects under the product.
This may cause a fire. - Install a heat sink on flammable walls.
- Maintain enough distance between the product and the wall. Between the top of the product and ceiling or shelf, etc.: 100 cm or more Between the sides/back of the product and the flammable wall: 15 cm or more
- Place the burner head above the burner body correctly.
The burner will not ignite if the burner head is separated or slanted, and the spark will be unstable even if ignited. - Place the burner head and the grate on the product and check if there is a gap.
- Take precautions to avoid applying shocks to the overheat sensor while assembling the burner head.
- If the overheat sensor does not operate up and down smoothly, be sure to contact Navien customer support.
Cleaning and Maintenance
- Turn the ignition handle to the Off position and clean it in a state where the gas stop valve has been closed.
- Only clean after the product cools down completely.
You may get burned by the high temperature after use. - Be sure to wear gloves while cleaning the product.
You may suffer an abrasion injury by a sharp edge. - Do not disassemble the top plate at your discretion.
There is a risk of electric shock. - When you reassemble after cleaning the ignition handle, assemble correctly by checking the direction of the handle.
Assemble so that the ‘I’ mark in front of the handle faces up. - Discoloration of the burner unit or grate is not a failure.
The burner unit and the grate are exposed to high heat that is 700°C or greater.
Discoloration due to high temperature is a natural phenomenon and it does not affect product performance. - The generation of scratches on the grate is not a failure.
Even though a repeated use of the cooking container or high temperature may cause natural scratches, this does not affect the product performance. - Wipe using a neutral detergent and remove the moisture.
If you leave it wet for a long period of time, this may cause rust.
Remove any moisture near the burner head flame hole completely. - After the product cools down, wipe off any food residue left on the top plate immediately using a soft cloth, etc.
It is easier to wipe off food residue before it hardens.
The product surface may be damaged if you wipe it off using metal or a nylon scrubbing pad.
If debris continues to stick, this will cause a sensor malfunction. - Wipe the burner head’s flame hole and the needle at the top of the ignition plug using a soft brush or toothbrush. (Be extra careful while cleaning because the ignition plug can break.)
Ignition may fail if the flame hole is blocked.
Take extra precaution to prevent it from having different heat sensing parts or having a piece of cloth stick while cleaning. - Wipe the top and the sides of the sensor using a soft cloth, etc., in a state where the overheat sensor is being held securely to keep it from rotating.
- Wipe the moisture below the cooking container before use.
You may be injured due to an abnormal operation of the overheat sensor.
| Usable | Not Usable |
| Soft cloth, toothbrush, sponge, scrubbing pad, neutral detergent | Back of sponge, nylon scrubbing pad, rough scrubbing pad, cleanser, detergent powder, rough brush, tooth powder, melamine foam sponge, metal scrubbing pad, cosmetic cleanser, acidic (citric acid) detergent, weakly alkaline detergent, thinner, benzene, Alcon, flammable spray, penetrant, lubricant |
| ※ Refer to the details below on how to prevent bumping. Bumping is a condition where soup or similar items. are heated to become higher than a certain temperature and they overflow by boiling all the sudden.
|
- If the ignition is not working well due to the slow “tick” and “tick” spark sounds, replace the battery.
- If the battery is low, a beeping buzzer sound (1 high sound and 1 low sound) will be generated. This is not a product defect, but a signal sound for replacing the battery.
- When inserting the battery, check the + and – first. If it is difficult to check the + and -, the side where you can touch the spring when you insert your hand into the battery case is the – pole. (Take precautions to avoid injuring your hand.)

※ The battery case is at the bottom center of the product.
※ The battery replacement service is a paid-for service.
How to Replace Battery
Caution
- If foreign materials, such as water, has entered the battery case, this may cause a contact failure.
- When you replace the battery, make sure that the product has been cooled, turn the ignition switch to the Off position, and be sure to replace it with two new alkaline batteries (1.5V-LR20) in a state where the gas stop valve has been closed.
- The hours of use may vary depending on the usage situation, time of use, or the battery manufacturer, even for new batteries.
- When you replace the battery, make sure your hands are clean without any foreign materials. (The product defect may occur due to contamination or other reasons.)
※ Discard the waste batteries by putting them into a waste battery collection box.
Points to Check Before Requesting Service
| Condition | Cause | Corrective action |
| Does not ignite | 1. The gas stop valve is closed | Open the gas stop valve completely. |
| 2. the burner head is not assembled correctly. | Assemble the burner head correctly. | |
| 3. The ignition sound (da-da-da-da- da) is not generated or slow. | Replace the batteries with new ones. Alkaline battery / 1.5 V / two LR20 (D) | |
| 4. There is a foreign material in the ignition plug. | Wipe off the foreign material and remove the moisture. | |
| 5. There is foreign material on the thermal sensing stick. | Wipe off the thermal sensing stick. | |
| 6. There is air in the gas pipe. | Repeat the igniting action several times. | |
| 7. Other ignition failure cases may be due to gas valve failures. | Contact the local city gas provider. | |
| If it turns off right away after igniting | the gas stop valve is not open completely. | Open the gas stop valve completely. |
| the burner head is not assembled correctly. | Assemble the burner head correctly. | |
| The flame hole is blocked at the burner head. | Clean the burner head. | |
| If a ‘pow’ sound is generated when the flame is extinguishing, | the burner head is not assembled correctly. | Assemble the burner head correctly. |
| If the fire goes out during use, | the overheat sensor is activated. | Cool down the overheated pot and re-ignite. |
| Check if the pot and the overheat sensor are in contact. | ||
| Check if the container type is appropriate. | ||
| If the flame is yellow | a flame hole is blocked at the burner head. | Clean the burner head. |
| If the flame is red | the combustion is inadequate due to an incomplete combustion. | Ventilate by opening the window. |
| If the flame size is abnormal | The gas is different. | Check the gas. |
| the burner head is not assembled correctly. | Assemble the burner head correctly. | |
| If you smell gas, | the gas hose connection is incomplete. | Contact the local city gas provider or our customer support. |
Warranty Card
Free service
Paid service
| ||||||||||||||||||||||||||||||||||||||||||||||||||||||||||||||||||||||
※ You will incur a service charge if you request service for any situation that is not a result of product failure.
Please read the user’s manual carefully before contacting a service center.
※ This Warranty Card is exclusive to be used in the Republic of Korea. Store the Warranty Card in a safe place, as it will not be reissued.
- Customer Service Center 1588 – 1144
- KyungDong Navien Homepage www.kdnavien.co.kr
- KyungDong Navien Online Mall www.navienhouse.com
Buzzer Sound Alarm
Condition | Buzzer Sound | Corrective action |
| Does not ignite | Beep (2 long beeps) | Place the ignition handle in the original position and re-ignite. |
| If the fire turns off right away after igniting | ||
| If the ignition handle is in the On position when the fire is not on. | ||
| Detection of an overheat sensor problem | Beep (3 long beeps) | Check the state of the pot and the overheat sensor to see if they’re in contact. |
| If gas is blocked due to the operation of the overheat sensor | Beep (3 short beeps) | Cool down the burner adequately and re- ignite or use another burner. |
| Beep (14 short beeps) | ||
| Time to replace the battery | Beep (1 high sound and 1 low sound) | Replace the batteries with new ones. |
How to Use the Overheat Sensor
- Adjust the center of the cooking container to the center of the overheat sensor.
- The bottom of the cooking container must be flat.
- The amount of oil while frying must be 200 ml or more. There are cases of oil being ignited due to a malfunction if the bottom of the pot and the top of the overheat sensor are not in close contact each other.
Appropriate Case

Attached to the bottom center of the cooking container
Cases Where Overheat Sensor Might Not Operate Properly


How to Use the Cooking Container
(O: Appropriate container, △: Used selectively, X: Container which may not operate properly)
Container Type | Possibility of Cooking | Note |
| ○ | – |
![]() | △ | Cooking methods other than stir frying or frying are possible. |
![]() | ☓ | The overheat sensor will not be in close contact with the bottom of the pot and may not operate properly. |
![]() | There is a possibility of gas leak as main internal parts become damaged due to overheating. |
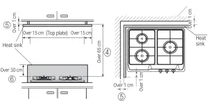
How to Install Product
※ Please be sure to check the details below before installing the product.
※ This product is a built-in only product.
|
Maintain a safe distance.
Secure a definite separation distance from the flammable materials when installing the product.
① Between flammable materials, such as a ceiling or shelf and the exhaust port: 100 cm or more
② From the product to the sides: 15 cm
③ From the product to the back of the sink: 15 cm
Install correctly in when installing a heat sink.
④ Between the product and the ceiling heat sink: 65 cm
⑤ Between the heat sink and the flammable wall: 1 cm or more
⑥ Heat sink: 30 cm or more from the top of the product
For the top plate die cutting dimensions, cut precisely within the tolerance ( mm).
At least 550 mm is required for the vertical width of the sink.
Use a thermosetting resin top plate, an equivalent plate, or better, for the top plate of the sink.
Cut the top plate of the sink by maintaining right angle within the tolerance on the drawing.
How to Assemble the Product

※ To prevent errors in the assembly of the burner head , place the burner head above the burner body and check if it rotates left to right.
Part Names
Below shows the main product components, their names, and the features.

Part
- User Manual
※ Batteries are not included.
How to Use the Gas Range
- Turn the gas stop valve left to open by matching the gas pipe shown in the figure.

- Ignite by pressing the ignition handle and turning it all the way.

- Adjust to the proper fire power by turning the ignition handle.

- Turn the ignition handle in the direction of the arrow to turn off the flame.

- Turn the gas stop valve right to close as shown in the figure.

Product Specifications
| Items | Specification | ||
| Burner Name | Gas Range (3-hole) | ||
| Model Type | NGR 130-03TB | ||
| Gas | City gas (13A) | ||
| Ignition Method | One-touch automatic ignition method | ||
| Power | DC 1.5 V X 2 = 3 V | ||
| Hose connection | Ø 11.5 mm (9.5 hose) | ||
| External Dimensions | W 580 × D 480 x H 60 (mm) | ||
| Top Plate Die Cutting Dimensions | W 550 × D 430 | ||
| Weight | 6.3 kg (8.5 kg including packaging) | ||
| Top Plate Material | Stainless | ||
| Gas Consumption Amount | Gas consumption of each overheat prevention burner | Total Consumption Amount | |
| Large Overheat Prevention Burner (Right) | 3.6 | 8.6 | |
| Large Overheat Prevention Burner (Left) | 3.6 | ||
| Medium overheat prevention burner | 1.7 | ||


Enamel, copper, steel, nickel silver, aluminum, stainless steel

























