User Manual for
Puzzle Lift
Chapter 1 General
1. Names of Parts
Installation

Tool List
| No. | Name | Specs | QTY | Unit | Remarks |
| 1 | Forklift | 3∼4.5 tons | 1 | Unit | Timbers and steel wires |
| 2 | Driller | 220V | 1 | Set | |
| 3 | Electric wrench | 4 tons | 1 | Set | |
| 4 | Scaffoldings | 2 | Set | ||
| 5 | Cables for working | 100m | 2 | Roll | Portable cable roller |
| 6 | Ink box | 1 | Set | ||
| 7 | Level bar | 1 | Pc | ||
| 8 | Gradienter | 1 | Set | ||
| 9 | Torque wrench | Kg.f | 1 | Set | |
| 10 | Open end wrench | 7-32mm | 3 | Set | |
| 11 | Oil gun | I | Set | ||
| 12 | Hammer | 1/2¾ pounds | 2 | Set | |
| 13 | Adjustable spanner | 8 10 12 ft | 2 | Set | |
| 14 | Ratchet wrench | 10\24 | 2 | Set | |
| 15 | Steel tape | 7m | 2 | Pc | |
| 16 | Steel tape | 30m | 2 | Pc | |
| 17 | Steel ruler | 30cm | 2 | Pc | |
| 18 | Angle ruler | 2 | Pc | ||
| 19 | Retainer pliers | Outward | 1 | Pc | |
| 20 | Retainer pliers | Inward | 1 | Pc | |
| 21 | Ladder | 2 | Pc | ||
| 22 | Screwdriver (+,-) | Large | 2 | Set | |
| 23 | Screwdriver (+,-) | Small | 2 | Set | |
| 24 | Diagonal pliers | 2 | Pc | ||
| 25 | Cable stripper | 2 | Pc | ||
| 26 | Multimeter | 2 | Pc | ||
| 27 | Box spanner | 1 | Set | ||
| 28 | Allen wrench | I | Set | ||
| 29 | Lighting | 1 | Pc | ||
| 30 | Brush | 1 | Pc | For cleaning | |
| 31 | Insulation tape | 1 | Pc | ||
| 32 | Chain block | 2 | Set |
Chapter 2 Structure Assembly
1. Key inspections before installation
- Make sure that the following has been completed before assembly:
a. No piping exists at ceiling or wall surfaces that may intervene with the system installation
b. All civil construction at the site has been accomplished
c. No problems exist between the ongoing installation and preceding construction
d. Decide the sequence of installation when installing multiple units
e. Choose a proper place for material storage
f. Check the transportation route of materials, equipment and basement height
g. Make sure that fire safety measures have been completed.
h. Make sure enough light is available in the work area
i. Make sure there is no moisture or puddles in the area of construction
j. Right positioning of temporary electricity (220V/400V) - Make sure to have the necessary tools, devices, instruments, and equipment
a. Prepare and place all tools, devices, instruments and equipment that will be used during installation
b. Make sure that the tools are placed and kept properly
c. Only authorized personnel should have access to the working area
d. Prepare the necessary safety devices like warning signage, fire extinguishers, etc. - Installation of steel structures.
Appendix: general layout of foundation.
1) Preparation of foundation
a. Check and review the drawing dimensions and site measurements before starting.
b. Coordinate with the construction company to define a horizon reference level, and perform lineation accordingly.
c. In case of any interference during construction, perform a thorough check and keep in close coordination with construction personnel before taking any measurements.
Notifications:
a) Reserve proper access for vehicles
b) Make sure that no objects interfere with the system height
c) Make sure that the placement of parking system posts, building columns, cabinets and fire hydrants doesn’t interfere with each other
d) No conflicts exist between the post position and drainage area.
e) 180mm minimum distance has to be left from wall to post center for frame installation and maintenance of BDP when installed indoors.
f) Construction can only be commenced when tolerance of diagonal distances < ±5mm during lineation.
d. Starting Out
a) Using chalk lines when ground is dry; and using nylon wire when it’s wet;
b) Make sure diagonal distances are measured equally.
e. Level measurement
a) Using Gradienter
b) Take the highest point of the sliding rail surface as reference
2) Provision of devices & equipment
a. Preparation
a) Guarantee availability of forklift and trolleys
b) Coordinate with warehouse for devices & equipment, moving route, moving schedule, etc. with construction team, support, ropes and steel ropes cables which may be required during unloading from truck.
Note: Make sure to install fences & warning signage to prevent free access of irrelevant personnel
b. Moving devices/equipment from site to system and moving inside system
a) Size, weight and length, etc. don’t exceed capacity of trucks and forklifts.
b) No more than 19.6in. should extend out of the truck during the move.
c) Max 5 platforms are allowed to be moved at one time (to avoid damage)
d) Be sure to provide enough support during move to avoid damage
e) Be well organized during moving
f) Cushion pad or wood should be properly placed between each layer’s devices/equipment
g) Avoid piling up 3 or more cases vertically
Safety attentions:
a. Be aware of your surroundings during hoisting, moving, unloading, etc.
b. Operation of hoists, cranes, trucks, etc. should be performed only by skilled personnel
c. Working method, sequences and signals, etc. shall be defined before implementation.
d. When stacking materials, pay attention to the center of gravity to maintain stability and safety.
3. Expansion bolt anchoring
1) Drilling with electric drillBolts specs Diameter (mm) Depth (mm) Remarks M10*120 10 100 M16*225 16 180 
2) Insert bolts 3)Hammer downward 4) Place gaskets and washers and fasten tightly Safety Precautions:
a. Check all manual or electric tools before starting use
b. Keep the tools well organized after using
c. Do not place any tools, devices and instruments on movable machinery
d. Use standard cables and accessories
e. Comply with electrical safety codes or standards - Posts erection
1) Put the posts on anchored bolts, check and adjust verticality of posts, and fix with nuts temporarily.
a. Apply plumb bob during structure erection
b. Horizontal or vertical tolerance of posts shall < ±2mm
c. Declination of posts shall < ± 2mm; depth of parallelism <5mm, other errors doesn’t exceed requirements stated on drawings. If no specific requirements indicated, implement as per JB/T8910
2) Adjust post height by means of gaskets under posts to make sure that the tops of posts are on the same level. Allowable height error of posts shall ≤3mm
3) Arrangements of posts are suggested as shown in Fig 1
Fig 1. Arrangements of posts
Fig 2 Arrangements for 3+2 posts
Fig 3 Arrangements for 4+3 Posts
- Assembly of back cross beam (Bolts M14*50)
1) Hoist the back cross beam onto the base plate of the back post.
2) Fix the beams with bolts, but do not fasten them until the entire structure is in position . Follow the below instructions during installation.
- Assembly of front cross beam (Bolts M14*50)
Follow the same pattern of the back cross beams. - Assembly of side beams (Bolts M16*50)
1) Find the left, middle and right beams and split them to prepare assembly (cylinder and guide wheel’s position and quantity are different)
2) Pre-assemble the steel rope cable guide wheels, cylinder seat, cylinder, steel rope cable amplify wheel and pull rod with the side beams and then hoist.
3) Put side beam into the middle of the front and back cross beams.
4) Use bolts to fix beams and do not fasten tightly until the structure is in position.
5) Wire the steel rope cables correctly and pull somewhat tight. - Center adjustment of structure and bolt connection
1) During the installation and assembly process, ensure that there are no verticality error between posts and ground <5mm, and parallelism level error <5mm. Other error values should strictly follow the drawing’s requirements. If no specific requirements stated, please comply JB/T8910 codes.
2) After steel structure installation, a rectangle shape should be made with a diagonal distance error no bigger than ±5mm.
3) In case of a tilted flat spring washer being requested, please follow the requirements.
4) To prevent any missing or inconsistent fastening of bolts, please use special tools such as a torque wrench to achieve same torque to all bolts.
5) Use a chain block to test and adjust the verticality of posts, parallelism of front and back beams, diagonal distances, and only then, fasten all bolts.
(From top to bottom: back cross beam; side beams, front cross beam, post and chain block)
6) Connection of fasteners
a. Regarding the parts used to fasten the steel structure, base plates and platforms. Angles between bolts, nuts and to-be-fastened parts shall be no bigger than 1° and without any incline or bending.
b. After nuts and bolts are fastened properly, 2~4mm of bolts shall be left visible
c. Fastening torque for high strength bolts used for steel frame is 156N.m.
d. A spring washer shall be applied to locking devices to prevent damage and the washer should be pressed flat after assembly.
7) When assembling fastening parts, bolts should be able to be screwed into threads or nuts freely, and end surface of nut should be perpendicular to the axle line of threads. Threads should be smooth in surface and complete in formation. In case of connections where multiple bolts are needed, a crossing sequence should be applied to fastening by THREE times.
8) Specs table of fastening parts
Benchmark of Bolts’ Torque (kgf-cm)APPLICATION STANDARD ELECTRONICS VEHICLE MOTOR 8T STEEL STRUCTURE 10T NO. NPT NO. T Series 0.5T 1.8T 2.4T 1 M3 6 3 10.8 14.4 2 M4 14 7 25 34 3 M5 29 14.5 52 70 4 M6 49 24.5 88 118 5 M8 122 61 220 295 6 M0 245 122 440 590 7 M12 430 215 770 1040 8 M14 690 350 1240 1660 9 M16 1100 550 2000 2650 10 M18 1500 760 2700 3600 11 M20 2150 1080 3900 5200 12 M22 2950 1500 5300 7000 13 M24 3700 1850 6700 8800 9) After the cross beam and side beams are fastened, check for errors in diagonal lines of the post centerlines. Only when they are in allowable range, the anchor bolts are allowed to be fastened in diagonal sequence.
10) After finishing fastening, inspect parallel degrees of front & back cross beams and verticality of posts again to make sure they are in allowable ranges. And then fill checklist and keep a record.
11) After the above is complete and the entire system is horizontal, adjust clearances (if any) between post base plates and ground surface, and pour with non-shrink cement inside to prevent center alteration.
Chapter 3 Mechanical System Assembly
1. Installation of pump station and hydraulic oil piping (Appendix: assembly diagram)
- The pump station should be put into position as shown in diagram.
a. Pump station and main oil piping is connected with a hose as per drawing, tight and well-sealed.
b. The pressure gauge of the pump shall be in normal closed status. Do not open its valve unless testing oil pressures in order to prevent gauge damage from constant high pressure.
c. Before injecting oil into the tank, clean inside the tank thoroughly, make sure the hydraulic oil is filtered in advance, and then close the tank tightly. When opening it again, clean the tank cap and its perimeters first to avoid secondary pollution. Running or using the system when the tank cap is open is strictly prohibited under any circumstances.
d. During oil piping installation, in case of an error in tube centerlines caused by obvious coaxial deviation of pipe fittings, do not forcibly fix oil tubes onto the steel structures, adjust and calibrate the fittings to the proper positions.
e. Oil tubes shall be connected and mounted strictly as per drawings
f. During installation of oil cylinders, check oil inlet and outlet to ensure proper a seal. Otherwise, use kerosene or gasoline to clean them and re-seal, and then install. After installation and before piping connection, the oil port seal shall not be opened. Just prior to the piping connection, open the seal first and connect the piping quickly. The cylinder shoud be installed correctly, precisely in position, and tightly fastened. - Inject oil into cylinders
a. After piping is connected and upper platform assembled, manually operate the control panel to lift all upper platforms to standard positions.
b. Sequence of oil injection: starting at the farthest cylinder to the pump station and then to the nearest ones. During oil injection, loosen the air valve/outlet at the bottom of the cylinder until all air inside is squeezed out by the oil. Then close and fasten the air valve/outlet.
c. Keep injecting new oil into the oil tank after each cylinder is filled with oil in sequence, and make sure the oil level in the tank reaches the standard height after injecting oil to all cylinders.
d. Oil tubes cannot be twisted or bent during this process.
IMPORTANT NOTICE:
After one end of the oil hose has been connected, put the other end freely onto the O-ring and fasten the nut of tube cap. During this, the hose is NOT allowed to turn with the tube cap. - Installation of 2-way stop valve and oil piping
a. Oil routes of 2-way stop valve cannot be installed forcibly, and the oil tube should be in a free status after connection. Re-adjust if they are not in the proper condition.
b. A cone shaped gasket will be used for sealing. - Self-inspection and installation of double nipple, elbow, tee joint and cold-drawn pipe cap.
a. Check and make sure threads and contact end surfaces are free from any damages to ensure good sealing effect;
Only those sealing parts with correct models and specs shall be applied to connection and installation;
O-ring shall be added to all joint positions of the loose joint, double nipple, tee joint, elbow, inlet & outlet f cylinder, and ports of valves etc.;
Before applying O-rings, lubricate them.
b. Installation of O-ring
During installation process of all fittings such as double nipples, tee joints or elbows, the 2 surfaces contacting O-ring should never turn or rotate. The only part that is allowed to turn is the nut for fastening. Double nipples, elbows and tee joints are not allowed to be turned during installation.
c. All parts related with hydraulic oil should be kept clean and cannot be placed onto platforms or steel structures freely.
2. Assembly of upper platforms (Appendix: upper platform assembly diagram)
- Place parts such as side beams, pull rods, ramps, steel rope cable adjusting seats, adjusting rods, etc. to the site and assemble them as per the following Figure.
Fig 1: Diagram for steel rope cable adjusting seat - The steel rope cable grip should be used properly and correctly: grip seat to be on the side of the longer rope; while the U shape is on the other side with the shorter rope (as showed in Fig 2). An adjustable allowance of >10cm should remain at the adjustment screw.
Quantity of rope grips:Steel rope diameter (mm) 6~16 17~27 28~37 Grip quantity 3 4 5 Distance of each 2 grips shall be equivalent to 6-7 times of steel rope cable diameter. For instance, if applying 10mm steel rope cables, distance of grips shall be 60-70mm; and if applying 12mm steel rope cables, grips distance should be 72~84mm.
- The grips at the bottom of the platform shall be horizontally placed in the same direction.
- Certain clearances should be made between the steel rope cables and the rope holes on the side beam to avoid friction.
- When the upper platform is lowered to the ground, the lifting steel rope cable should have the proper intensity.

1 Longer side of rope; 2 rope grip; 3&4 distance between two rope grips 5 adjustable screw; 6 rope adjust housing 7 shorter side of rope 8 bundle rope end with 8*300 tie; 9 30cm reserved length of rope 10 U shaped screw for grip; 11 eye ring of rope; 12 2cm reserved length of rope - Pay attention to the installation of anti-off device of the steel rope cable to avoid any interference with steel rope.
After the upper platform has been assembled, manually operate the system and lift the upper platform to its correct position, starting from the one furthest from the hydraulic pump.
Then assemble all wave plates.
- No deviations/deflections are allowed to exist between hanging rings and steel ropes.
a. Lift the upper platforms and leave 50-60mm between the platform bottom and anti-falling frame top
b. Adjust steel rope cable adjustment rod to tighten all steel rope cables and ensure the flatness of the platform suspension status.
c. Make sure that when the platform lowers to the ground, that the rubber cushion pad at the bottom of the platform is in contact thoroughly with the guide rail surface.
3. Assembly of lower platform (appendix: assembly drawing of sliding platforms)
| Description | Tolerance | Requirements | Remark |
| clearance between platform and ground level | Vertical height difference | ≤±50mm | |
| Horizontal gap | ≤40mm | ||
| Platform diagonal distance | Deviation | ≤5mm |
- Installation of sliding rails
a. Lineation of sliding rails
Draw center lines of the guide rails on the ground along the horizontal direction of posts
b. Take lineation of foundation as benchmark and put guide rails on correct position and ensure that the rails are parallel and have the exact same distance as showed in below figure.
c. Find the existing holes at the guide rail and drill into the ground to a depth of around 100mm.
d. Insert the anchor bolts into the holes and fasten. No bending should take place during operation.
Leave the corner angles for cutting, welding and then grinding, ensure a flat contact surface where there is step surface deviation smaller than 2mm.
e. Two ends of guide rail should be welded with angled steel (size 30×30×δ3) to act as stopper.
f. Check again and make sure the rubber pad of platform and guide rail share the same center line. - Assembly of lower platforms
a. Place the lower platforms onto the guide rails and push them manually to see whether it slides
smoothly. Pay attention to any deviations or jamming that happen with the platform rollers.
b. Make sure that no problems arise between platforms and surrounding frames during slide movement. - Install all necessary parts of lower platform
a. Assemble side beams of platform; install driving & drive mechanism; and assemble platform frames.
b. Install sliding motors to integrate with driving & drive mechanism, adjust and calibrate gear transmission systems properly.
c. place cable conduits (coordinate with electricians to wire cables in advance)
d. install door shaped anti-falling frame
e. Fix and fasten electrical and control components and have electrician’s inspection and confirmation before feeding electricity.
Note:
After installation is finished, perform a load test. Test methods and results should comply with JB/T8910 codes. Check all fastening parts and fixtures afterwards, and pay special attention to loose or extended steel rope cables, and adjust if necessary.
Chapter 4 Electrical System Installation
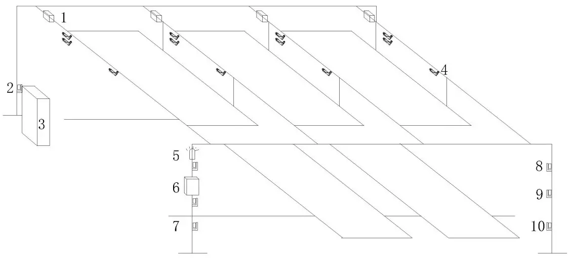
1. Installation of electrical parts
- Diagram of electrical parts
1. 2-Way Stop Valve;
2. Photocell Sensor (Over-length Detection);
3. Cabinet (With Pump Station)
4. Limit Switch;
5. Alarm;
6. Control Panel;
7. Receiver of Photocell Sensor
8. Photocell Sensor (Over-height Detection)
9. Photocell Sensor (Over Length Detection)
10. Photocell Sensor (Accidental Entrance of Human/Vehicle)
Note:
1. Sliding limit switches of lower platform, located at rear ends, aren’t showed in diagram,
2. The above indicated are referential positions. Detailed locations shall be as per detailed drawing. - Mounting of Cabinet
Generally, the cabinet should be placed at the indicated position in the diagram, and close to the control panel as much as possible, unless otherwise stated. Then connect oil hoses and solenoid. - Control Panel
a. The location of the control panel should be as indicated in the drawing; mount on left post and fix on existing holes by screws.
b. When mounted on the wall, it should be fixed by anchor bolts. - Installation of photocell sensors
a. Receiver and emitter shall be installed at left and right posts respectively.
Cautions:
– After the above installation, commission each car space and adjust all limit switches for lifting and sliding, to make sure cars are able to be stopped at designated positions precisely.
– Adjust all over-travel switches to be fully functional and protective in case of malfunctions of limit switch;
– Adjust the loose detector of steel rope cables to secure its sensitivity.
2. Safety codes and requirements of electrical system installation
- Before operating the system temporarily and during construction and installation, warn the surrounding staff/personnel first to ensure their safety.
- The cabinet and control panel shouldn’t be fixed without confirmation of a supervising engineer and owner.
- The photocell sensors and limit switches should be well affixed.
- The cabinet should be locked in the construction and commissioning stage Please take special care of the construction drawings and keep them properly stored.
- The welding machine must be grounded before use.
- Keep the inside of the cabinet clean during the entire construction process.
- Make sure that the waterproof cable heads have correct specifications and are well sealed.
- Seal the wire ducts to prevent entrance of small animals / debris.
- Wire ducts should join with the cabinet through the bottom or the lower side. Make sure that the cables are well insulated and free from any insulation layer damages.
- Install and mount the cabinet & control panel according to the drawing or instruction of a supervising engineer.
- Take water proofing into consideration during wiring and ducting.
- The connection method of wiring shall comply with GB standards and are make sure they are connected firmly.
- No wires or cables are allowed to joint or connect inside duct.
- No less than 80mm cable shall be reserved in the junction box for the sake of wiring
- Cable’s codes shall be clearly marked.
- At least 10% length of cables shall be reserved and correctly marked as backup cable
- Warning signage should be provided during the entire construction period to prevent accidents.
3. Installation requirements
The electrical system should be installed as per codes of GB17907 and JB/T8910.
- The purpose of all elements, buttons and switches should be clearly marked at the front side of the cabinets. Those installed inside should be clearly marked with codes.
- The skins of cables and wires should be complete and free from any damage.
- Grounding resistance <4Ω; power circuit insulation resistance ≥0.5MΩ, other circuits’ (control, lighting, signal, etc.) ≥0.2 M, and power circuit and other circuits shall be lined separately.
4. Electrical wiring diagram (please turn to specific drawing)
Chapter 5 Pressure-Tight Test
- Test steps
1) Open the hydraulic pump, keep the solenoid valve and 2-way stop valve closed, turn the lifting overflow valve on slightly and adjust overflow pressure of the back-pressure overflow valve to 2MPa;
2) Turn the solenoid valve to its lifting status but keep the 2-way stop valve closed and adjust overflow pressure of the lifting overflow valve to 16MPa;
3) Turn the solenoid valve status to “low” and keep 2-way stop valve closed, adjust overflow pressure of lowering overflow valve to 10MPa. - Cautions
1) Before adjusting 1-way throttle valve, its flow shall be at max status. Then turn it lower to make the lowering speed of upper platform at no load 10m/min.
2) If any hydraulic oil leakage should take place during use, clean oil ASAP.
3) Pay extra attention to the position of the cylinder seat to make sure that the piston rod can extend to the max position during its operation. The extended piston rod should be parallel with the center line of the side beam, no deviation or off-course of this is allowed.
4) A complete set of water proof solution should be provided for the pump station to protect it from rain or moisture; for those installed in a pit, water drainage and water proofing should be provided; the pit edges should be 10cm higher than the surrounding ground, and well covered.


Fig 2 Arrangements for 3+2 posts
Fig 3 Arrangements for 4+3 Posts

1) Find the left, middle and right beams and split them to prepare assembly (cylinder and guide wheel’s position and quantity are different)
(From top to bottom: back cross beam; side beams, front cross beam, post and chain block)
Fig 1: Diagram for steel rope cable adjusting seat

c. Find the existing holes at the guide rail and drill into the ground to a depth of around 100mm.
1. 2-Way Stop Valve;















