
POTTER SMD10-3A Synchronization Module Instruction Manual


We recommend use of this product in accordance with installation instructions provided in this manual.
Fire Alarm Equipment Visual Appliance Accessory for the Hearing Impaired
GENERAL DESCRIPTION
AMSECO’s SMDI 0-3A is designed to provide operation of synchronized temporal pattern (code 3) tones and synchronized strobe flashes on all AMSECO series Select-A-Horn,Select-A-Horn/Strobe and Select-A-Strobe, as well as the ability to silence the horn while maintaining the strobe flashes. It has the capability of connecting two style Y (class B) circuits or one style Z (class A) circuit, and is rated for 3 amperes per circuit.
SMDI 0-3A can be interconnected so that more than two alarm zones can be synchronized by connecting SYNC terminals as shown in the wiring Fig.6 and 7 (Daisy chain connection).
The Max number of interconnected SMDIO-3A is twenty (20).
All input are polarized for compatibility with standard reverse polarity supervision of circuit wiring by a Fire Alarm Control Panel (F.A.C.P.).
SMDI 0-3A is available in standard red color.
The SMDI 0-3A can be interconnected so that more than two alarm zones can be synchronized by connecting the sync terminals (daisy chain connection). The maximum number of interconnected modules is twenty.
All inputs are polarized for compatibility with standard reverse polarity supervision of circuit wiring for F.C.A.P.
For additional compatibility information refer to Compatibility document 5401513 Rev A.
WIRING DIAGRAM
Fig. 1
Wiring Diagram for One Class “A” Circuit.

Note 1 :
The SMDIO-3A terminals will accept two #12 to #18 AWG wires per terminal.
Use SMDIO-3A Sync module only on NAC circuit with continuous applied voltage.
The total length of wire connection of the SMDIO-3A’s Sync terminal should not exceed ‘2,000ft of #18AWG overall between the first and last SMDIO-3A (The Max. impedance is 14 ohms). If this limit is exceeded, loss of synchronization between SMDIO-3A’s may result.
Do not loop wires under terminal. Use both terminals (or leads) for connection.
Break wire run to provide electrical supervision.
Note 2 :
In Canada, installation should be in accordance with
1) CAN/ULC-S524-06
2) Canadian Electrical code, Part 1.
3) Final acceptance subject to Authorities Having Jurisdiction.
Fig.2
Wiring Diagram for Two Class “B” Circuit with audible silence feature.

Note : INPUT must be powered continuously for OUTPUT2 operation.
Fig.4
Wiring Diagram for Two Class “B” Circuit with no audible silence feature.

Fig.5
Wiring Diagram for One Class “B” Circuit with no audible silence feature.

Fig.6
Wiring diagram for Synchronization with more than two alarm zones.

Note
When the connection between two or more synchronization modules is disconnected or loses continuity, the strobe lights connected to one synchronization module may not be synchronized with the strobe lights on a different synchronization module.
Fig.7
Wiring Diagram for Four Class “B” Circuit.


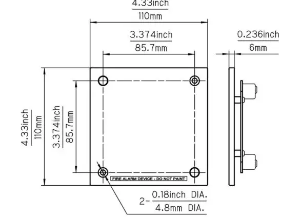
DIMENSIONS

INSTALLATION



SPECIFICATIONS


Note:
UL and ULC current values have different standards-UL1971 and CAN/ULC-526.
Note
The total current required by all devices connected to the SMDI 0-3A shall not exceed 3.0 Amps. average, and not exceed 5.0 Amps. peak.
The SMDIO-3A shall be connected to circuits that provide continuous power voltage.
(Do not use SMDIO-3A on coded or interrupted circuits where the voltage is cycled on and off.)
INST. SHT. No. SMD103A-H1003 S100618-4/4
Potter Electric Signal Company, LLC
1609 Park 370 Place, Hazelwood, MO 63042
Phone 800-325-3936 / 314-878-4321 / FAX:314-878-7264

Read More About This Manual & Download PDF:

















