

Installation plan
PLW 8617
It is essential to read the operating instructions as well as the service documentation before the machine is installed or used for the first time.
Installation notes
Please read and observe the installation plan, operating instructions, programming manual, and service documents regarding the installation and setting up of this machine.
Heating
The machine type is available in two different types of heating:
– Electric (EL)
– Steam electric (D / EL)
This installation plan describes all the connection options. Depending on the machine type and equipment variant individual connection options can be omitted.
Purpose of the installation plan
The installation plan provides you with information on the technical data as well as the site conditions required for installing the machine.
This machine must be installed by a suitably qualified person with the appropriate electrical and plumbing qualifications in accordance with the installation instructions supplied. This machine must be installed in accordance with all applicable standards and guidelines, including legal requirements and health and safety regulations. The machine must be commissioned and operatives trained in its use by Miele Service or by an approved Miele Service Partner only.
Installation of several machines
Several machines can be installed in a row. A gap of 3/16″ (5 mm) is required between two machines. A gap of 1/8″ (3 mm) is required between a machine and a partition wall. The gaps must be sealed with suitable flexible sealant after installation on site. The drip trays of the individual machines can be connected together. Alternatively, a continuous drip tray can also be installed in the toe-kick.
Mobile plinth
The single-door appliance can be installed on a mobile plinth. This makes the rear of the appliance accessible for maintenance and repairs, even when it is installed in a row or against a wall. The screw for adjusting the height of the mobile plinth is size M10 (width across flats 0.669″ (17 mm)).
Mount the cover provided for this purpose on the device waterproof hose feed-throughs. This will prevent the ingress of water into the unit when shut-off valves or hose fittings are leaking.
Mounting the top Cover
Mount the cover provided for this purpose on the device’s waterproof hose feed-throughs. This will prevent the ingress of water into the machine when control valves or hose fittings are leaking. Mount a front panel above the machine on-site with a lockable access panel. The utility connections are accessed from the loading / unclean side.
Electrical connection
Connection to the electrical supply must be carried out in accordance with local and national safety regulations. The power cord must be protected from the risk of thermal damage.
The power cord should have a length of 9′ 10″ (3 m) on-site, starting from above the intended position of the machine.
The top edge of the top-box paneling is at a height of 8′ 2″ (2495 mm).
The machine’s electrical connection is established from above. Establish the connection with the machine. This
makes it easier to perform safety inspections during maintenance or repair work.
Route the power cord so that it does not rest on the wash chamber.
Electrical phase order must be connected in the correct sequence (clockwise electromagnetic field).
Do not allow the power cord to rest on the hot wash chamber!
The power cord may overheat and pose a safety hazard (avoid the use of fire). Secure all cords, including test cords, so that they cannot rest on or directly above the wash chamber.
Grounding
For added safety, the machine should be protected with a residual current device with a trip current of 30 amps. Grounding should be carried out if required. The screw connection point for grounding (size M8) is located at the back of the machine. Grounding must be carried out before the machine is commissioned.
Instructions for routing the utility connections
Plan the central control valves for the water-, steam- and compressed air connections so they are easily accessible. Only use suitable control valves.
The lines for high-pressure steam and condensate require their own control valves. They require a dirt trap and condensate trap in the supply line for high-pressure steam. On-site, check and install a non-return valve for the
condensate line if necessary.
For the standard installation, route the supply lines vertically from the ceiling. The on-site connections must end at a height of 110 1/4″ (2800 mm) above the finished floor level. Secure the lines once they have been routed.
Supply connections
The cold water connection, hot water connection, and the deionized water supply, as well as the connections for high-pressure steam, condensate, and compressed air, should be routed from the ceiling to ensure easy connection.
To connect the machine to the on-site connections, allow the hoses to be pulled out of the TC (MAV):
– Steam 11 13/16″ (300 mm)
– Water 35 7/16″ (900 mm)
– Compressed air 35 7/16″ (900 mm)
Waterline connection
The connections have a 3/4″ hose thread.
Steam line connection
Should be 1/2″ male pipe thread
Compressed air connection
The machine has a compressed air connection for industrial compressed air.
Industrial compressed air must be available to control the door.
– The industrial compressed air requires an on-site coupling socket for a Limit 1/2″ female quick-release fastener (e.g. type KKA 6S-04M from SMC).
Installing a steam condenser
If you connect the vent to an air conditioning system, a steam condenser must be installed. If the machine is vented outside, you do not need a steam condenser.
Observe the following when installing the steam condenser:
– The cooling circuit connections (feed and return lines) must be routed from the ceiling.
– Install the main switches and central control valves so they are easily accessible.
– In the case of a machine with steam heating, install a non-return valve directly downstream of the machine’s condensate trap. This prevents surges when the machine is turned on.
– Route the feed and return lines for the cooling circuit vertically from the ceiling. The cooling circuit feed line and cooling circuit return line are connected to the nozzles on the steam condenser. To do this, you will require a hose with an internal diameter of 9/16″ (14 mm) and a nominal pressure of 116 psi (800 kPa)..
– Only use the intended conversion kits (UBS) containing pressure hoses for the supply line and drain.
– Allow the connection hoses to hang down from the ceiling to a length of approximately 4′ 11″ (1500 mm).
– Align the line sections correctly and fasten them securely.
– The ends of the cooling circuit feed and return lines should terminate within the installation area of the machine using a hose nozzle.
– If there is no cooling circuit, connect the steam condenser to a cold water connection.
– If a steam condenser with heat recovery is used, only DI water with a maximum temperature of 68°F (20°C) may flow into the system.
Drain connection – machines with drain pump (AP)
Observe the following instructions when connecting a drain with a drain pump:
– The drain manifold (at least DN 100; minimum diameter 4″) can be installed:
– under the floor
– to the ceiling
– Install and odor trap on site.
– Observe the maximum delivery head for the drain pump (see Technical data).
– If the machine is drained vertically towards the ceiling, it is advisable to use pipelines instead of hoses. If
necessary, DN 25 to DN 40 (minimum diameter 1″ to 1 9/16″) pipes can be used. High temperatures, pressures, and mechanical loads from the pump place excessive strain on the hose.
– Install the wastewater line for connecting the drain hose next to the machine.
– Hose feed-throughs in the sidewalls of the casing are not possible for structural reasons.
– If you are installing several machines in a row, you can create a toe-kick drip tray specifically for your requirements.
You can place the drain hoses in this tray.
Vent connection
Ventilation to the atmosphere must be fan-assisted. Dry contacts are available to alert the fan controls to start the fan. The permissible flow rates can be found under Technical data at the end of this manual.
Provide an air intake of 8,829 ft³/h (250 m³/h) for each machine on the unclean side to replace extracted air. Connect the machine to the ventilation or air-conditioning system. If necessary, connect a steam condenser upstream. Install the ducting with a slope in the direction of the extract airflow. This prevents any condensate from flowing back into the machine. Drain the system at the lowest point.
Install separate ducting for each machine. Ducting for several machines must not be combined!
Connection module – fan control
9 dry contacts are available on the machine for the connection. The connections are located on the unclean side in the top-box paneling.
The contacts can support a maximum load of 200–240 V / 1 A / 50–60 Hz.
When assigning the dry contacts, it is not permitted to have a standard voltage and, for example, an extra-low voltage next to each other.
Maintain a sufficient distance between contacts with incompatible voltages.
Network connection
It must not be possible to access the machine via the Internet or other public or unsecured networks. Either create a separate network environment to network the machines, install a firewall or restrict access by configuring the router appropriately.
Also, observe the safety instructions provided in the operating instructions regarding integrating the machine in your network environment (section: Network connection).
Supported network protocols
Network protocols | Description | Port |
| DHCPv4 | Assigning dynamic IPv4 addresses | 68/UDP |
| DHCPv6 | Assigning dynamic IPv6 addresses | 546/UDP |
| NTP | Time server | 123/UDP |
| HTTPS | Web interface for configuring the washer-disinfector | 443/TCP |
The ICMPv4 and ICMPv6 protocols are also supported.
The machine has an RJ45 network connection. Ideally, network sockets are to be installed above the machine n
site. Use CAT 5e cable or better. When you route the network cable through the opening in the electrical connection, you will need a cable length of approximately 4″ (100 mm) inside the MAV to connect to the
machine.
Only machines that are compliant with IEC 60950-1, IEC 62368-1, and IEC 61010-1 must be connected to these interfaces.
Dimensions
Dimensions metric – imperial
|
| ||||||||||||||||||||||||||||||||||||||||||||||||||||||||||||||||||||||||||||||||||||||||
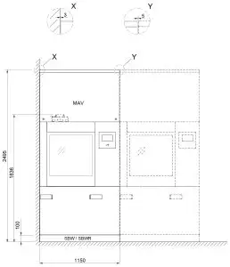
Dimensions front view (in mm)

| MAV | top-box paneling |
| SBW | plinth floor pan |
| SBWR | plinth floor pan rollable |
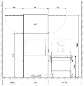
Dimensions side view (in mm)

| MAV | Montageaufsatzverkleidung |
| SBW | plinth floor pan |
| SBWR | plinth floor pan roller |
Connections on the infeed side

| EL | Electrical connection | PA | Equipotential bonding |
| KW | Coldwater connection | WW | Hot water connection |
| DK | Coldwater connection, steam condenser | D | Steam line connection |
| VE | DI water connections – Boiler | DL | Compressed air connection – Industrial use |
| AW | Wastewater | NW | Network connection |
Floor drain

Observe the height!
The on-site supply lines must end at a height of 110 1/4″ (2,800 mm) above the finished floor level.
TC (MAV) connections

Installation field – supply lines on-site (in mm)

| EL | Electrical connection | PA | Equipotential bonding |
| KW | Coldwater connection | WW | Hot water connection |
| DK | Coldwater connection, steam condenser | D | Steam line connection |
| VE | DI water connections – Boiler | DL | Compressed air connections – Industrial use |
| AW | Wastewater | NW | Network connection |
| AL | Extraction | W | Collection tray drainage |
Technical data
Electrical connection
| Voltage (standard version) | 3 AC 208V 60Hz |
| Power rating | 21 kW |
| Fuse rating | 60 A |
| Power cord must be provided | 6/4 AWG |
| Min. power cord, length (H05(07)RN-F) from the top edge of top-box paneling with ceiling installation | 13′ 1″ / 4 m |
| Equipotential bonding and grounding conductor: pin with external thread, washers, and nut, provided with the machine, size | M8 |
– On-site PA connection at max. distance of 13′ 1″ (4 m) from the machine
| Coldwater | ||
| Minimum temperature | 41 °F | 5 °C |
| Maximum temperature | 68 °F | 20 °C |
| Max. permitted water hardness | 4 gpg | 4 °dH |
| Recommended flow pressure | 29 psi | 200 kPa |
| Maximum pressure | 145 psi | 1000 kPa |
| Flow rate | 3.96 g/min | 15 l/min |
| On-site threaded union in accordance with DIN 44991 (flat sealing) | 3/4″ male GHT – male Garden Hose Thread | 3/4″ male GHT – male Garden Hose Thread |
| Hot water | ||
| Minimum temperature | 41 °F | 5 °C |
| Maximum temperature | 149 °F | 65 °C |
| Max. permitted water hardness | 4 gpg | 4 °dH |
| Recommended flow pressure | 29 psi | 200 kPa |
| Maximum pressure | 145 psi | 1000 kPa |
| Flow rate | 3.96 g/min | 15 l/min |
| On-site threaded union in accordance with DIN 44991 (flat sealing) | 3/4″ male GHT – Garden Hose Thread | 3/4″ male GHT – Garden Hose Thread |
| DI water | ||
| Minimum temperature | 41 °F | 5 °C |
| Maximum temperature | 149 °F | 65 °C |
| Total water hardness DI water | < 3 gpg | <3 °dH<0,5 mmol CaO/l |
| Max. conductivity | 15 µS/cm | 15 µS/cm |
| Evaporation residue | <500 mg/l | <500 mg/l |
| PH value | 5-8 | 5-8 |
| Chloride content | <100 mg/l | <100 mg/l |
| Recommended flow pressure | 44 psi | 300 kPa |
| Minimum flow pressure with increased intake time and process cycle times | 29 psi | 200 kPa |
| Maximum pressure | 145 psi | 1000 kPa |
| Flow rate | 3.96 g/min | 15 l/min |
| On-site threaded union in accordance with DIN 44991 (flat sealing) | 3/4″ male GHT – Garden Hose Thread | 3/4″ male GHT – Garden Hose Thread |
| Drain pump (AP) | ||
| Maximum drainage temperature | 201 °F | 94 °C |
| Max. drain pump delivery head from the bottom edge of the machine | 9′ 8″ | 3 m |
| Max. transient flow rate | 43 g/min | 160 l/min |
| Drain pump drain hose (int. dia. x wall thickness x l) | 7/8″ x 1 3/16″ x 118 1/8″ | 22 x 3 x 3000 mm |
| Hose sleeve, to be provided on site | 7/8″ x 1 3/16″ | 22 x 30 mm |
| Steam condenser (optional) | ||
| Steam condenser hose connector | 3/4″ male GHT – Gar- den Hose thread | 3/4″ male GHT – Gar- den Hose thread |
| Internal diameter for the on-site water connection hose to the steam condenser | 1/2″ | 13 mm |
| Connection hose length from hose sleeve | 59 1/16″ | 1500 mm |
| Max. delivery head | 9′ 8″ | 3 m |
| Max. transient flow rate | 39.63 g/min | 150 l/min |
| Drain hose (int. dia. x wall thickness x l) | 9/16″ x 1/8″ x 98 7/16″ | 14 x 3 x 2500 mm |
| Hose sleeve, to be provided on-site | 9/16″ x 1 3/16″ | 14 x 30 mm |
| Condensate drain hose connection (steam condenser) | ||
| Max. delivery head | 9′ 8″ | 3 m |
| Max. transient flow rate | 42.27 g/min | 160 l/min |
| Drain hose (int. dia. x wall thickness x l) | 1/4″ x 1/16″ x 89 7/16″ | 6 x 2 x 2500 mm |
| Hose sleeve, to be provided on-site | 1/4″ x 13/16″ | 6 x 20 mm |
| Drain manifold minimum diameter | 4″ | DN 100 |
| Manifold drain | ||
| Drain manifold minimum diameter 3 to 5 machines | 4″ | DN 100 |
| Drain manifold minimum diameter 5 to 8 machines | 5 7/8″ | DN 150 |
| Compressed air | ||
| Industrial use [for laboratory machines] (min.–max.) | 87-116 psi | 600-800 kPa |
| Heating steam | ||
| Machine version with electrically heated drying unit (TA/E) | ||
| Steam pressure | 36-145 psi | 250-1.000 kPa |
| Boiling point | 282-363 °F | 139-184 °C |
| Peak capacity | 110 lbs/h | 50 kg/h |
| On-site threaded union (conical) | 1/2” External thread | |
A dirt and condensate trap is to be provided on-site directly upstream of the machine’s steam connection. Steam should be dry and subscribe to TRD 611. Steam pressure has a direct impact on the duration of program cycles. Due consideration of this should be given when designing the steam supply system.
| Machine data | ||
| Height including toe-kick/drip tray | 68 1/8″ | 1730 mm |
| Height including toe-kick/drip tray and MAV | 98 1/4″ | 2495 mm |
| Width | 45 1/4″ | 1150 mm |
| Depth | 39″ | 990 mm |
| Net weight incl. toe-kick/drip tray, top-box paneling, etc. | 1,213 lbs | 550 kg |
| Floor load in operation | 2167 daN/ft | 8 kN/m² |
| Min. access width, incl. transport pallet | 42 15/16″ | 1090 mm |
| Min. access height, incl. transport pallet | 76″ | 1930 mm |
Exhaust air
The connector has the dimension 4 15/16″ (125 mm)
| I. Connection without steam condenser to external fan-assisted venting system: | ||
| Flow rate of on-site venting system during the wash process | 3532 ft³/h | 100 m³/h |
| Flow rate of on-site venting system during the drying process | 12360 ft³/h | 350 m³/h |
| Mean temperature/max. transient | 158/203 °F | 70 °C / 95 °C |
| Mean relative humidity/max. transient | 80 % / 100 % | 80 % / 100 % |
| II. Connection with a steam condenser to external fan-assisted venting system: | ||
| Flow rate of on-site venting system during the wash process | 3532 ft³/h | 100 m³/h |
| Flow rate of on-site venting system during the drying process | 12360 ft³/h | 350 m³/h |
| Mean temperature/max. transient | 82/90 °F | 28 °C / 32 °C |
| Mean relative humidity/max. transient Heat dissipation rate | <70 % / 100 % | <70 % / 100 % |
| During the wash process | 2047 btu | 0,6 kWh |
| From load while unloading, max. (longest program with full load carrier) Ambient conditions | 4777 btu | 1,4 kWh |
| Permitted ambient temperature | 41-104 °F | 5-40 °C |
| Max. relative humidity up to 88°F (31°C) | 80 % | 80 % |
| Rel. humidity, declining proportionally to 104°F (40°C) | 50 % | 50 % |
| Transport conditions – permitted temperature range | -4-140 °F | -20-60 °C |
| Transport conditions – permitted relative humidity | 10-85 % | 10-85 % |
| Transport conditions – permitted air pressure | 500-1060 hPa | 500-1060 hPa |
| Max. installation altitude above sea level | 4921′ | 1500 m |
Please have the model and a serial number of your machine available when contacting Technical Service.
U.S.A.
Miele, Inc.
National Headquarters
9 Independence Way
Princeton, NJ 08540
Phone: 800-991-9380
Fax: 609-419-4241
www.mieleusa.com/professional
[email protected]
Technical Service & Support
Phone: 800-991-9380
Fax: 800-220-1348
[email protected]
Canada
Importer
Miele Limited
Professional Division
161 Four Valley Drive
Vaughan, ON L4K 4V8
Phone: 1-888-325-3957
Fax: 1-800-803-3366
www.mieleprofessional.ca
[email protected]
Miele Professional
Technical Service
Phone: 1-888-325-3957
Fax: 1-800-803-3366
[email protected]
Manufacturer: Miele & Cie. KG
Carl-Miele-Straße 29, 33332 Gütersloh, Germany



















